BÜRO- UND GEWERBEHAUS RÖSSLIMATT
LUZERN, 2022-2025
EINGELADENER PROJEKTWETTBEWERB, 2020, 1. Preis
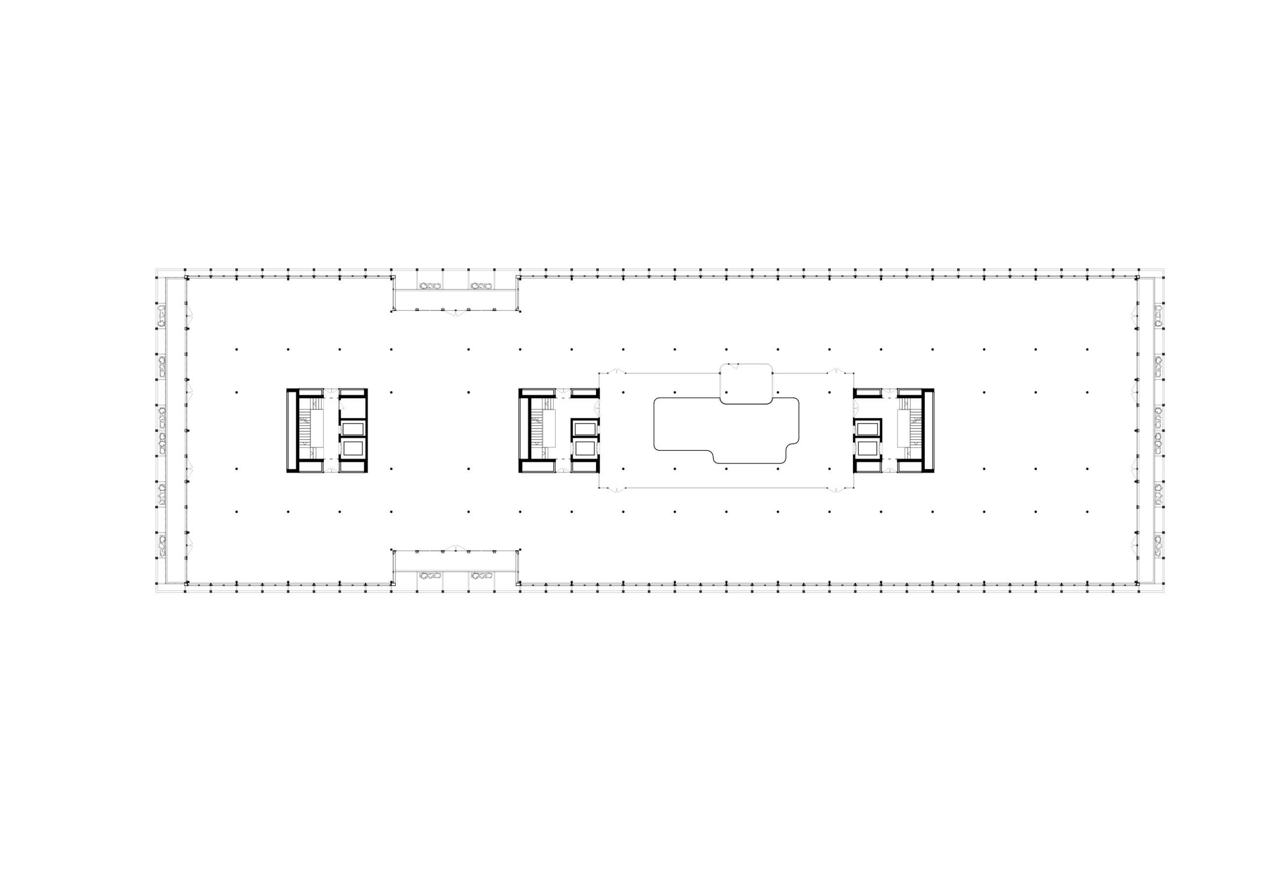
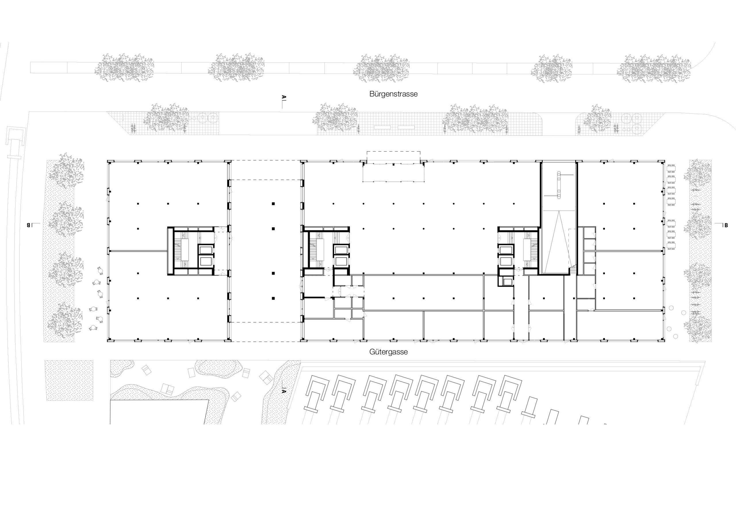
Als Auftakt für das Quartier Rösslimatt fasst der neue Stadtbaustein die Baufelder B und C zu einem einzigen, differenzierten und vielschichtigen Gebäude zusammen. Gleichermassen robust und einladend im Sockelbereich wird der öffentliche Anspruch des Gebäudes markiert. Die darüber liegenden Bürogeschosse werden von einem Kleid aus Metall und Glas umhüllt und stellen den Austausch einer modernen Arbeitswelt zwischen innen und aussen her. An ausgezeichneten städtebaulichen Stellen zieht sich die Bürofassade zurück und schafft begrünte, klimatische Pufferzonen. Wie Köpfe und Taillen helfen sie, das Gebäude zu zonieren, ihm einen Massstab zu geben und im Quartier zu verankern. Während die durchgängigen Balkone an den Stirnseiten Blicke zur Allee und in den Park freigeben, leiten die Einzüge die Fussgänger durch die zweigeschossige Passage.
Drei in der Mittelzone gesetzte Treppenkerne strukturieren das Gebäude sowohl statisch als auch räumlich. Als betonierte Kerne verbinden sie sich mit dem Untergeschoss und bilden das Rückgrat des Gebäudes. Das eingeführte Stützenraster gewährleistet eine maximale Nutzungsflexibilität. Die Schnittstelle der beiden Gebäudeteile über dem Durchgang ist als flexible Schaltzone ausgebildet, die je nach gewünschter Nutzung dem einen oder dem anderen Gebäudeteil zugeschlagen werden kann. Eine gemeinsame Tiefgarage im ersten Untergeschoss erschliesst alle Treppenkerne, während im zweiten Untergeschoss mit kleinerem Fussabdruck alle Technikräume untergebracht sind.
Adresse: Der Gebäudeteil C ist auf die geplante Nutzung des Grossmieters ausgelegt. Ein ausladendes Vordach und ein Rückzug der Fassade markieren den Haupteingang des Single Tenants an der Bürgenstrasse. Von aussen ist der grosszügige Wartebereich für Besucher einsehbar. Ein repräsentativer Empfangs-Desk und Zutrittssysteme vermitteln zwischen internem und externem Bereich.
Atrium: Das Herzstück des Gebäudes C bildet das dahinter liegende Atrium, das hell und grosszügig ausgestaltet ist und über eine spiralartige Treppe alle Geschosse repräsentativ miteinander verbindet. Es liegt zentral im Gebäudeteil C, eingespannt zwischen den beiden Kerne, die mit Liften und Fluchttreppen ausgestattet sind. Diese sind jedoch so ausgebildet, dass sie zum Atrium hin grossflächig verglast sind, wodurch kurze Distanzen über die Geschosse hinweg einfach überwunden werden können. Als verbindende, repräsentative Vertikalerschliessung stellt das Atrium die visuelle und räumliche Verbindung über die Geschosse hinweg sicher und ermöglicht den Mitarbeitenden kurze Wege und eine gute Orientierung. Mit Steharbeitsplätzen und Lounge-Bereichen ausgestattet bietet sie zudem die Möglichkeit für den Informellen Austausch der Mitarbeitenden.
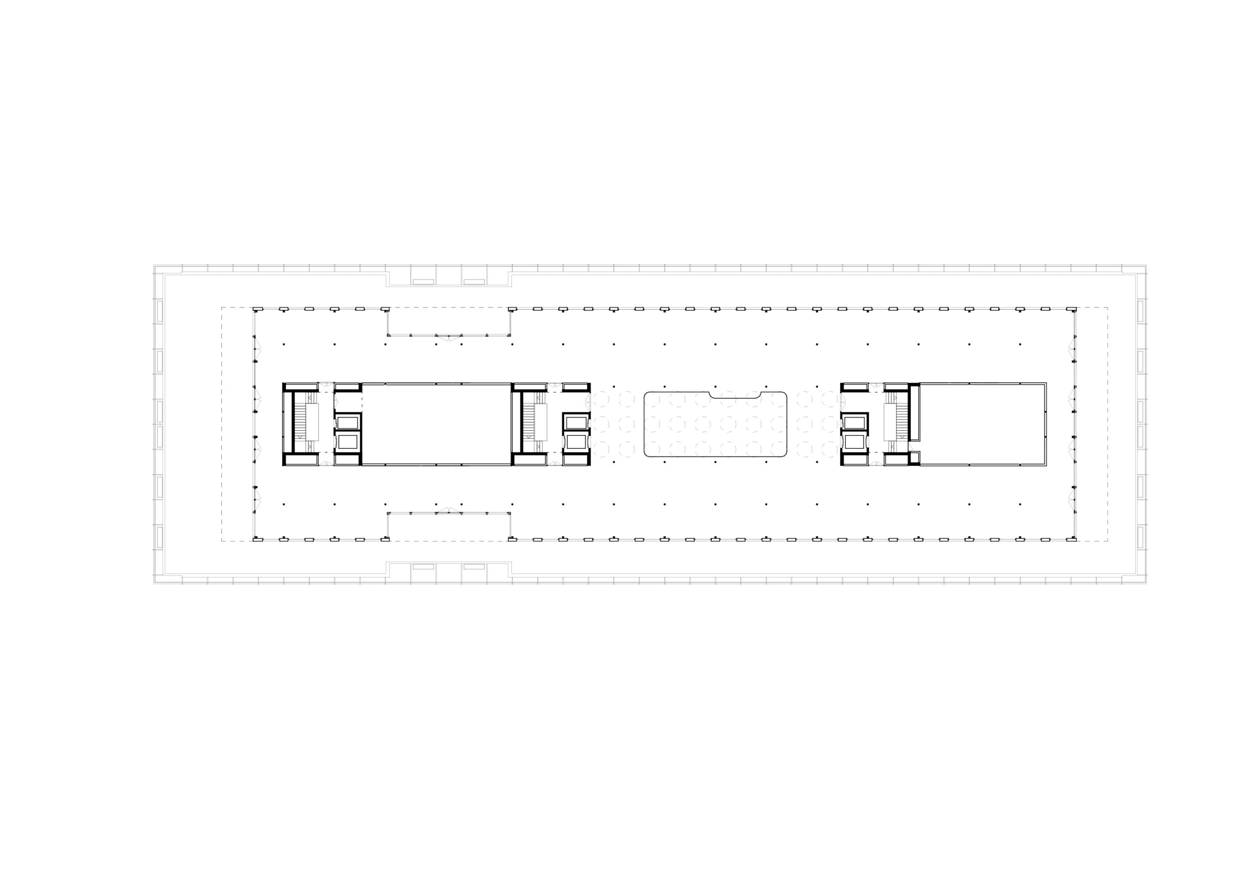
Plaza: Das erste Obergeschoss ist als öffentliche Plaza ausgebildet. Hier befinden sich Personalrestaurant mit Free-Flow, Work-Café, Konferenz- und Meetingräume sowie verschieden Amenities. Die Plaza ist für die Mitarbeitenden gut auffindbar und als Ort der Begegnung und des Austauschs ausgebildet. Externe Gäste gelangen über den Empfang und die Spiraltreppe direkt in den Konferenzbereich. Dieser ist so ausgestaltet, dass die mittig platzierten Konferenzräume flexibel zu grösseren Einheiten zusammen gefasst werden können. Sie können jedoch auch komplett zur Seite geschoben werden, wodurch sich das Work-Café in eine grosse Town-Hall für Meetings mit 200 Personen umwandeln lässt.
Bürokonzept: Bei der Entwicklung des Bürokonzepts wurde grossen Wert auf nutzungsspezifische Flexibilität sowie auf eine optimale Belichtung gelegt. Das Atrium belichtet die Mitte des Gebäudes, so dass Arbeitsplätze auch in der Nähe des Atriums angelegt werden können. Ein Fassadenraster von 2.70 Metern, kurze Erschiessungswege und eine einfache Leitungsführung ermöglichen es, die Büroflächen flexibel als Open Space oder als Einzelbüros zu nutzen.
Das Bürolayout des Grossmieters basiert auf dem Konzept des „Activity Based Working“ und dem Leitgedanken „Your Office Is Where You Are“. Der gesamte Gebäudeteil des Hauptmieters ist so konzipiert, dass überall – im Atrium, auf den Balkonen, im Café, in der Bürolandschaft oder auf dem Dach des Attikageschosses – gearbeitet werden kann und soll. Die Mitarbeiter sucht sich dabei die für ihre Tätigkeit die gerade am besten geeignete Arbeitsumgebung aus; feste Arbeitsplätze gibt es nicht. Akustisch abgetrennte und mit einem Vorhang abtrennbare „Working Pills“ zonieren die Bürolandschaft in einzelne Neighbourhoods unterschiedlicher Grösse. Sie stehen für Telefongespräche, konzentrierte Einzelarbeit oder Meetings zur Verfügung und können individuell gebucht werden. Der Standort der „Working Pills“ innerhalb der Bürolandschaft ist flexibel. Er kann je nach gewünschter Grösse der Neighbourhood variiert werden.
Erdgeschossnutzung Öffentliche Erdgeschossnutzungen sind ein wichtiger Faktor für die Attraktivität des neuen Areals Rösslimatt. Der Platzierung der Gastro-, Atelier- und Gewerbeflächen wird deshalb grösste Beachtung geschenkt. Die Gebäudeköpfe entlang der Allee, entlang des neuen Parkbandes sowie die Flächen direkt beim Durchgang wurden dabei als Orte mit dem höchsten zu erwartenden Publikumsverkehr ausgelotet. Das grösste Potenzial für solche Flächen liegt schwergewichtig beim Erdgeschoss entlang der Güterstrasse. Um die Attraktivität dieses Standorts zu stärken sind hier Gastro-, Atelier- und Gewerbeflächen vorgesehen, die sich über interne Treppen ins 1. Obergeschoss erweitern lassen.
–
Erarbeitet mit Demuth Hagenmüller & Lamprecht Architekten
Zusammenarbeit mit Alessandra Villa Architektur
Mitarbeit Wettbewerb
Lilian Demuth, Sandra Hagenmüller, Andreas Lamprecht, Alessandra Villa
Mitarbeit Planung und Ausführung
Bernard Resewski, Andreas Lober, Federico Farinatti, Paula Seeling, Manuel Oswald, Maria Milic Sticca, Jan Pelcik, Sandra Hagenmüller, Andreas Lamprecht
Bauherrschaft
SBB Immobilien AG
Baumanagagement
Caretta + Weidmann AG
Totalunternehmer
Implenia Schweiz AG
Landschaftsarchitekt: w+s Landschaftsarchitekten AG
Ingenieur: Walt Galmarini AG
HLKS-Planer: ADZ AG
Elektroplaner: Boess AG
Bauphysik: Durable GmbH
Fassade: Mebatech AG
Lichtplanung: Reflexion AG
Brandschutz: Makiol Wiederkehr AG
BÜRO- UND GEWERBEHAUS RÖSSLIMATT
LUZERN, 2022-2025
EINGELADENER PROJEKTWETTBEWERB, 2020, 1. Preis
Als Auftakt für das Quartier Rösslimatt fasst der neue Stadtbaustein die Baufelder B und C zu einem einzigen, differenzierten und vielschichtigen Gebäude zusammen. Gleichermassen robust und einladend im Sockelbereich wird der öffentliche Anspruch des Gebäudes markiert. Die darüber liegenden Bürogeschosse werden von einem Kleid aus Metall und Glas umhüllt und stellen den Austausch einer modernen Arbeitswelt zwischen innen und aussen her. An ausgezeichneten städtebaulichen Stellen zieht sich die Bürofassade zurück und schafft begrünte, klimatische Pufferzonen. Wie Köpfe und Taillen helfen sie, das Gebäude zu zonieren, ihm einen Massstab zu geben und im Quartier zu verankern. Während die durchgängigen Balkone an den Stirnseiten Blicke zur Allee und in den Park freigeben, leiten die Einzüge die Fussgänger durch die zweigeschossige Passage.
Drei in der Mittelzone gesetzte Treppenkerne strukturieren das Gebäude sowohl statisch als auch räumlich. Als betonierte Kerne verbinden sie sich mit dem Untergeschoss und bilden das Rückgrat des Gebäudes. Das eingeführte Stützenraster gewährleistet eine maximale Nutzungsflexibilität. Die Schnittstelle der beiden Gebäudeteile über dem Durchgang ist als flexible Schaltzone ausgebildet, die je nach gewünschter Nutzung dem einen oder dem anderen Gebäudeteil zugeschlagen werden kann. Eine gemeinsame Tiefgarage im ersten Untergeschoss erschliesst alle Treppenkerne, während im zweiten Untergeschoss mit kleinerem Fussabdruck alle Technikräume untergebracht sind.
Adresse: Der Gebäudeteil C ist auf die geplante Nutzung des Grossmieters ausgelegt. Ein ausladendes Vordach und ein Rückzug der Fassade markieren den Haupteingang des Single Tenants an der Bürgenstrasse. Von aussen ist der grosszügige Wartebereich für Besucher einsehbar. Ein repräsentativer Empfangs-Desk und Zutrittssysteme vermitteln zwischen internem und externem Bereich.
Atrium: Das Herzstück des Gebäudes C bildet das dahinter liegende Atrium, das hell und grosszügig ausgestaltet ist und über eine spiralartige Treppe alle Geschosse repräsentativ miteinander verbindet. Es liegt zentral im Gebäudeteil C, eingespannt zwischen den beiden Kerne, die mit Liften und Fluchttreppen ausgestattet sind. Diese sind jedoch so ausgebildet, dass sie zum Atrium hin grossflächig verglast sind, wodurch kurze Distanzen über die Geschosse hinweg einfach überwunden werden können. Als verbindende, repräsentative Vertikalerschliessung stellt das Atrium die visuelle und räumliche Verbindung über die Geschosse hinweg sicher und ermöglicht den Mitarbeitenden kurze Wege und eine gute Orientierung. Mit Steharbeitsplätzen und Lounge-Bereichen ausgestattet bietet sie zudem die Möglichkeit für den Informellen Austausch der Mitarbeitenden.
Plaza: Das erste Obergeschoss ist als öffentliche Plaza ausgebildet. Hier befinden sich Personalrestaurant mit Free-Flow, Work-Café, Konferenz- und Meetingräume sowie verschieden Amenities. Die Plaza ist für die Mitarbeitenden gut auffindbar und als Ort der Begegnung und des Austauschs ausgebildet. Externe Gäste gelangen über den Empfang und die Spiraltreppe direkt in den Konferenzbereich. Dieser ist so ausgestaltet, dass die mittig platzierten Konferenzräume flexibel zu grösseren Einheiten zusammen gefasst werden können. Sie können jedoch auch komplett zur Seite geschoben werden, wodurch sich das Work-Café in eine grosse Town-Hall für Meetings mit 200 Personen umwandeln lässt.
Bürokonzept: Bei der Entwicklung des Bürokonzepts wurde grossen Wert auf nutzungsspezifische Flexibilität sowie auf eine optimale Belichtung gelegt. Das Atrium belichtet die Mitte des Gebäudes, so dass Arbeitsplätze auch in der Nähe des Atriums angelegt werden können. Ein Fassadenraster von 2.70 Metern, kurze Erschiessungswege und eine einfache Leitungsführung ermöglichen es, die Büroflächen flexibel als Open Space oder als Einzelbüros zu nutzen.
Das Bürolayout des Grossmieters basiert auf dem Konzept des „Activity Based Working“ und dem Leitgedanken „Your Office Is Where You Are“. Der gesamte Gebäudeteil des Hauptmieters ist so konzipiert, dass überall – im Atrium, auf den Balkonen, im Café, in der Bürolandschaft oder auf dem Dach des Attikageschosses – gearbeitet werden kann und soll. Die Mitarbeiter sucht sich dabei die für ihre Tätigkeit die gerade am besten geeignete Arbeitsumgebung aus; feste Arbeitsplätze gibt es nicht. Akustisch abgetrennte und mit einem Vorhang abtrennbare „Working Pills“ zonieren die Bürolandschaft in einzelne Neighbourhoods unterschiedlicher Grösse. Sie stehen für Telefongespräche, konzentrierte Einzelarbeit oder Meetings zur Verfügung und können individuell gebucht werden. Der Standort der „Working Pills“ innerhalb der Bürolandschaft ist flexibel. Er kann je nach gewünschter Grösse der Neighbourhood variiert werden.
Erdgeschossnutzung Öffentliche Erdgeschossnutzungen sind ein wichtiger Faktor für die Attraktivität des neuen Areals Rösslimatt. Der Platzierung der Gastro-, Atelier- und Gewerbeflächen wird deshalb grösste Beachtung geschenkt. Die Gebäudeköpfe entlang der Allee, entlang des neuen Parkbandes sowie die Flächen direkt beim Durchgang wurden dabei als Orte mit dem höchsten zu erwartenden Publikumsverkehr ausgelotet. Das grösste Potenzial für solche Flächen liegt schwergewichtig beim Erdgeschoss entlang der Güterstrasse. Um die Attraktivität dieses Standorts zu stärken sind hier Gastro-, Atelier- und Gewerbeflächen vorgesehen, die sich über interne Treppen ins 1. Obergeschoss erweitern lassen.
–
Erarbeitet mit Demuth Hagenmüller & Lamprecht Architekten
Zusammenarbeit mit Alessandra Villa Architektur
Mitarbeit Wettbewerb
Lilian Demuth, Sandra Hagenmüller, Andreas Lamprecht, Alessandra Villa
Mitarbeit Planung und Ausführung
Bernard Resewski, Andreas Lober, Federico Farinatti, Paula Seeling, Manuel Oswald, Maria Milic Sticca, Jan Pelcik, Sandra Hagenmüller, Andreas Lamprecht
Bauherrschaft
SBB Immobilien AG
Baumanagagement
Caretta + Weidmann AG
Totalunternehmer
Implenia Schweiz AG
Landschaftsarchitekt: w+s Landschaftsarchitekten AG
Ingenieur: Walt Galmarini AG
HLKS-Planer: ADZ AG
Elektroplaner: Boess AG
Bauphysik: Durable GmbH
Fassade: Mebatech AG
Lichtplanung: Reflexion AG
Brandschutz: Makiol Wiederkehr AG
BÜRO- UND GEWERBEHAUS RÖSSLIMATT
LUZERN, 2022-2025
EINGELADENER PROJEKTWETTBEWERB, 2020, 1. Preis
Als Auftakt für das Quartier Rösslimatt fasst der neue Stadtbaustein die Baufelder B und C zu einem einzigen, differenzierten und vielschichtigen Gebäude zusammen. Gleichermassen robust und einladend im Sockelbereich wird der öffentliche Anspruch des Gebäudes markiert. Die darüber liegenden Bürogeschosse werden von einem Kleid aus Metall und Glas umhüllt und stellen den Austausch einer modernen Arbeitswelt zwischen innen und aussen her. An ausgezeichneten städtebaulichen Stellen zieht sich die Bürofassade zurück und schafft begrünte, klimatische Pufferzonen. Wie Köpfe und Taillen helfen sie, das Gebäude zu zonieren, ihm einen Massstab zu geben und im Quartier zu verankern. Während die durchgängigen Balkone an den Stirnseiten Blicke zur Allee und in den Park freigeben, leiten die Einzüge die Fussgänger durch die zweigeschossige Passage.
Drei in der Mittelzone gesetzte Treppenkerne strukturieren das Gebäude sowohl statisch als auch räumlich. Als betonierte Kerne verbinden sie sich mit dem Untergeschoss und bilden das Rückgrat des Gebäudes. Das eingeführte Stützenraster gewährleistet eine maximale Nutzungsflexibilität. Die Schnittstelle der beiden Gebäudeteile über dem Durchgang ist als flexible Schaltzone ausgebildet, die je nach gewünschter Nutzung dem einen oder dem anderen Gebäudeteil zugeschlagen werden kann. Eine gemeinsame Tiefgarage im ersten Untergeschoss erschliesst alle Treppenkerne, während im zweiten Untergeschoss mit kleinerem Fussabdruck alle Technikräume untergebracht sind.
Adresse: Der Gebäudeteil C ist auf die geplante Nutzung des Grossmieters ausgelegt. Ein ausladendes Vordach und ein Rückzug der Fassade markieren den Haupteingang des Single Tenants an der Bürgenstrasse. Von aussen ist der grosszügige Wartebereich für Besucher einsehbar. Ein repräsentativer Empfangs-Desk und Zutrittssysteme vermitteln zwischen internem und externem Bereich.
Atrium: Das Herzstück des Gebäudes C bildet das dahinter liegende Atrium, das hell und grosszügig ausgestaltet ist und über eine spiralartige Treppe alle Geschosse repräsentativ miteinander verbindet. Es liegt zentral im Gebäudeteil C, eingespannt zwischen den beiden Kerne, die mit Liften und Fluchttreppen ausgestattet sind. Diese sind jedoch so ausgebildet, dass sie zum Atrium hin grossflächig verglast sind, wodurch kurze Distanzen über die Geschosse hinweg einfach überwunden werden können. Als verbindende, repräsentative Vertikalerschliessung stellt das Atrium die visuelle und räumliche Verbindung über die Geschosse hinweg sicher und ermöglicht den Mitarbeitenden kurze Wege und eine gute Orientierung. Mit Steharbeitsplätzen und Lounge-Bereichen ausgestattet bietet sie zudem die Möglichkeit für den Informellen Austausch der Mitarbeitenden.
Plaza: Das erste Obergeschoss ist als öffentliche Plaza ausgebildet. Hier befinden sich Personalrestaurant mit Free-Flow, Work-Café, Konferenz- und Meetingräume sowie verschieden Amenities. Die Plaza ist für die Mitarbeitenden gut auffindbar und als Ort der Begegnung und des Austauschs ausgebildet. Externe Gäste gelangen über den Empfang und die Spiraltreppe direkt in den Konferenzbereich. Dieser ist so ausgestaltet, dass die mittig platzierten Konferenzräume flexibel zu grösseren Einheiten zusammen gefasst werden können. Sie können jedoch auch komplett zur Seite geschoben werden, wodurch sich das Work-Café in eine grosse Town-Hall für Meetings mit 200 Personen umwandeln lässt.
Bürokonzept: Bei der Entwicklung des Bürokonzepts wurde grossen Wert auf nutzungsspezifische Flexibilität sowie auf eine optimale Belichtung gelegt. Das Atrium belichtet die Mitte des Gebäudes, so dass Arbeitsplätze auch in der Nähe des Atriums angelegt werden können. Ein Fassadenraster von 2.70 Metern, kurze Erschiessungswege und eine einfache Leitungsführung ermöglichen es, die Büroflächen flexibel als Open Space oder als Einzelbüros zu nutzen.
Das Bürolayout des Grossmieters basiert auf dem Konzept des „Activity Based Working“ und dem Leitgedanken „Your Office Is Where You Are“. Der gesamte Gebäudeteil des Hauptmieters ist so konzipiert, dass überall – im Atrium, auf den Balkonen, im Café, in der Bürolandschaft oder auf dem Dach des Attikageschosses – gearbeitet werden kann und soll. Die Mitarbeiter sucht sich dabei die für ihre Tätigkeit die gerade am besten geeignete Arbeitsumgebung aus; feste Arbeitsplätze gibt es nicht. Akustisch abgetrennte und mit einem Vorhang abtrennbare „Working Pills“ zonieren die Bürolandschaft in einzelne Neighbourhoods unterschiedlicher Grösse. Sie stehen für Telefongespräche, konzentrierte Einzelarbeit oder Meetings zur Verfügung und können individuell gebucht werden. Der Standort der „Working Pills“ innerhalb der Bürolandschaft ist flexibel. Er kann je nach gewünschter Grösse der Neighbourhood variiert werden.
Erdgeschossnutzung Öffentliche Erdgeschossnutzungen sind ein wichtiger Faktor für die Attraktivität des neuen Areals Rösslimatt. Der Platzierung der Gastro-, Atelier- und Gewerbeflächen wird deshalb grösste Beachtung geschenkt. Die Gebäudeköpfe entlang der Allee, entlang des neuen Parkbandes sowie die Flächen direkt beim Durchgang wurden dabei als Orte mit dem höchsten zu erwartenden Publikumsverkehr ausgelotet. Das grösste Potenzial für solche Flächen liegt schwergewichtig beim Erdgeschoss entlang der Güterstrasse. Um die Attraktivität dieses Standorts zu stärken sind hier Gastro-, Atelier- und Gewerbeflächen vorgesehen, die sich über interne Treppen ins 1. Obergeschoss erweitern lassen.
–
Erarbeitet mit Demuth Hagenmüller & Lamprecht Architekten
Zusammenarbeit mit Alessandra Villa Architektur
Mitarbeit Wettbewerb
Lilian Demuth, Sandra Hagenmüller, Andreas Lamprecht, Alessandra Villa
Mitarbeit Planung und Ausführung
Bernard Resewski, Andreas Lober, Federico Farinatti, Paula Seeling, Manuel Oswald, Maria Milic Sticca, Jan Pelcik, Sandra Hagenmüller, Andreas Lamprecht
Bauherrschaft
SBB Immobilien AG
Baumanagagement
Caretta + Weidmann AG
Totalunternehmer
Implenia Schweiz AG
Landschaftsarchitekt: w+s Landschaftsarchitekten AG
Ingenieur: Walt Galmarini AG
HLKS-Planer: ADZ AG
Elektroplaner: Boess AG
Bauphysik: Durable GmbH
Fassade: Mebatech AG
Lichtplanung: Reflexion AG
Brandschutz: Makiol Wiederkehr AG
BÜRO- UND GEWERBEHAUS RÖSSLIMATT
LUZERN, 2022-2025
EINGELADENER PROJEKTWETTBEWERB, 2020, 1. Preis
Als Auftakt für das Quartier Rösslimatt fasst der neue Stadtbaustein die Baufelder B und C zu einem einzigen, differenzierten und vielschichtigen Gebäude zusammen. Gleichermassen robust und einladend im Sockelbereich wird der öffentliche Anspruch des Gebäudes markiert. Die darüber liegenden Bürogeschosse werden von einem Kleid aus Metall und Glas umhüllt und stellen den Austausch einer modernen Arbeitswelt zwischen innen und aussen her. An ausgezeichneten städtebaulichen Stellen zieht sich die Bürofassade zurück und schafft begrünte, klimatische Pufferzonen. Wie Köpfe und Taillen helfen sie, das Gebäude zu zonieren, ihm einen Massstab zu geben und im Quartier zu verankern. Während die durchgängigen Balkone an den Stirnseiten Blicke zur Allee und in den Park freigeben, leiten die Einzüge die Fussgänger durch die zweigeschossige Passage.
Drei in der Mittelzone gesetzte Treppenkerne strukturieren das Gebäude sowohl statisch als auch räumlich. Als betonierte Kerne verbinden sie sich mit dem Untergeschoss und bilden das Rückgrat des Gebäudes. Das eingeführte Stützenraster gewährleistet eine maximale Nutzungsflexibilität. Die Schnittstelle der beiden Gebäudeteile über dem Durchgang ist als flexible Schaltzone ausgebildet, die je nach gewünschter Nutzung dem einen oder dem anderen Gebäudeteil zugeschlagen werden kann. Eine gemeinsame Tiefgarage im ersten Untergeschoss erschliesst alle Treppenkerne, während im zweiten Untergeschoss mit kleinerem Fussabdruck alle Technikräume untergebracht sind.
Adresse: Der Gebäudeteil C ist auf die geplante Nutzung des Grossmieters ausgelegt. Ein ausladendes Vordach und ein Rückzug der Fassade markieren den Haupteingang des Single Tenants an der Bürgenstrasse. Von aussen ist der grosszügige Wartebereich für Besucher einsehbar. Ein repräsentativer Empfangs-Desk und Zutrittssysteme vermitteln zwischen internem und externem Bereich.
Atrium: Das Herzstück des Gebäudes C bildet das dahinter liegende Atrium, das hell und grosszügig ausgestaltet ist und über eine spiralartige Treppe alle Geschosse repräsentativ miteinander verbindet. Es liegt zentral im Gebäudeteil C, eingespannt zwischen den beiden Kerne, die mit Liften und Fluchttreppen ausgestattet sind. Diese sind jedoch so ausgebildet, dass sie zum Atrium hin grossflächig verglast sind, wodurch kurze Distanzen über die Geschosse hinweg einfach überwunden werden können. Als verbindende, repräsentative Vertikalerschliessung stellt das Atrium die visuelle und räumliche Verbindung über die Geschosse hinweg sicher und ermöglicht den Mitarbeitenden kurze Wege und eine gute Orientierung. Mit Steharbeitsplätzen und Lounge-Bereichen ausgestattet bietet sie zudem die Möglichkeit für den Informellen Austausch der Mitarbeitenden.
Plaza: Das erste Obergeschoss ist als öffentliche Plaza ausgebildet. Hier befinden sich Personalrestaurant mit Free-Flow, Work-Café, Konferenz- und Meetingräume sowie verschieden Amenities. Die Plaza ist für die Mitarbeitenden gut auffindbar und als Ort der Begegnung und des Austauschs ausgebildet. Externe Gäste gelangen über den Empfang und die Spiraltreppe direkt in den Konferenzbereich. Dieser ist so ausgestaltet, dass die mittig platzierten Konferenzräume flexibel zu grösseren Einheiten zusammen gefasst werden können. Sie können jedoch auch komplett zur Seite geschoben werden, wodurch sich das Work-Café in eine grosse Town-Hall für Meetings mit 200 Personen umwandeln lässt.
Bürokonzept: Bei der Entwicklung des Bürokonzepts wurde grossen Wert auf nutzungsspezifische Flexibilität sowie auf eine optimale Belichtung gelegt. Das Atrium belichtet die Mitte des Gebäudes, so dass Arbeitsplätze auch in der Nähe des Atriums angelegt werden können. Ein Fassadenraster von 2.70 Metern, kurze Erschiessungswege und eine einfache Leitungsführung ermöglichen es, die Büroflächen flexibel als Open Space oder als Einzelbüros zu nutzen.
Das Bürolayout des Grossmieters basiert auf dem Konzept des „Activity Based Working“ und dem Leitgedanken „Your Office Is Where You Are“. Der gesamte Gebäudeteil des Hauptmieters ist so konzipiert, dass überall – im Atrium, auf den Balkonen, im Café, in der Bürolandschaft oder auf dem Dach des Attikageschosses – gearbeitet werden kann und soll. Die Mitarbeiter sucht sich dabei die für ihre Tätigkeit die gerade am besten geeignete Arbeitsumgebung aus; feste Arbeitsplätze gibt es nicht. Akustisch abgetrennte und mit einem Vorhang abtrennbare „Working Pills“ zonieren die Bürolandschaft in einzelne Neighbourhoods unterschiedlicher Grösse. Sie stehen für Telefongespräche, konzentrierte Einzelarbeit oder Meetings zur Verfügung und können individuell gebucht werden. Der Standort der „Working Pills“ innerhalb der Bürolandschaft ist flexibel. Er kann je nach gewünschter Grösse der Neighbourhood variiert werden.
Erdgeschossnutzung Öffentliche Erdgeschossnutzungen sind ein wichtiger Faktor für die Attraktivität des neuen Areals Rösslimatt. Der Platzierung der Gastro-, Atelier- und Gewerbeflächen wird deshalb grösste Beachtung geschenkt. Die Gebäudeköpfe entlang der Allee, entlang des neuen Parkbandes sowie die Flächen direkt beim Durchgang wurden dabei als Orte mit dem höchsten zu erwartenden Publikumsverkehr ausgelotet. Das grösste Potenzial für solche Flächen liegt schwergewichtig beim Erdgeschoss entlang der Güterstrasse. Um die Attraktivität dieses Standorts zu stärken sind hier Gastro-, Atelier- und Gewerbeflächen vorgesehen, die sich über interne Treppen ins 1. Obergeschoss erweitern lassen.
–
Erarbeitet mit Demuth Hagenmüller & Lamprecht Architekten
Zusammenarbeit mit Alessandra Villa Architektur
Mitarbeit Wettbewerb
Lilian Demuth, Sandra Hagenmüller, Andreas Lamprecht, Alessandra Villa
Mitarbeit Planung und Ausführung
Bernard Resewski, Andreas Lober, Federico Farinatti, Paula Seeling, Manuel Oswald, Maria Milic Sticca, Jan Pelcik, Sandra Hagenmüller, Andreas Lamprecht
Bauherrschaft
SBB Immobilien AG
Baumanagagement
Caretta + Weidmann AG
Totalunternehmer
Implenia Schweiz AG
Landschaftsarchitekt: w+s Landschaftsarchitekten AG
Ingenieur: Walt Galmarini AG
HLKS-Planer: ADZ AG
Elektroplaner: Boess AG
Bauphysik: Durable GmbH
Fassade: Mebatech AG
Lichtplanung: Reflexion AG
Brandschutz: Makiol Wiederkehr AG
BÜRO- UND GEWERBEHAUS RÖSSLIMATT
LUZERN, 2022-2025
EINGELADENER PROJEKTWETTBEWERB, 2020, 1. Preis
Als Auftakt für das Quartier Rösslimatt fasst der neue Stadtbaustein die Baufelder B und C zu einem einzigen, differenzierten und vielschichtigen Gebäude zusammen. Gleichermassen robust und einladend im Sockelbereich wird der öffentliche Anspruch des Gebäudes markiert. Die darüber liegenden Bürogeschosse werden von einem Kleid aus Metall und Glas umhüllt und stellen den Austausch einer modernen Arbeitswelt zwischen innen und aussen her. An ausgezeichneten städtebaulichen Stellen zieht sich die Bürofassade zurück und schafft begrünte, klimatische Pufferzonen. Wie Köpfe und Taillen helfen sie, das Gebäude zu zonieren, ihm einen Massstab zu geben und im Quartier zu verankern. Während die durchgängigen Balkone an den Stirnseiten Blicke zur Allee und in den Park freigeben, leiten die Einzüge die Fussgänger durch die zweigeschossige Passage.
Drei in der Mittelzone gesetzte Treppenkerne strukturieren das Gebäude sowohl statisch als auch räumlich. Als betonierte Kerne verbinden sie sich mit dem Untergeschoss und bilden das Rückgrat des Gebäudes. Das eingeführte Stützenraster gewährleistet eine maximale Nutzungsflexibilität. Die Schnittstelle der beiden Gebäudeteile über dem Durchgang ist als flexible Schaltzone ausgebildet, die je nach gewünschter Nutzung dem einen oder dem anderen Gebäudeteil zugeschlagen werden kann. Eine gemeinsame Tiefgarage im ersten Untergeschoss erschliesst alle Treppenkerne, während im zweiten Untergeschoss mit kleinerem Fussabdruck alle Technikräume untergebracht sind.
Adresse: Der Gebäudeteil C ist auf die geplante Nutzung des Grossmieters ausgelegt. Ein ausladendes Vordach und ein Rückzug der Fassade markieren den Haupteingang des Single Tenants an der Bürgenstrasse. Von aussen ist der grosszügige Wartebereich für Besucher einsehbar. Ein repräsentativer Empfangs-Desk und Zutrittssysteme vermitteln zwischen internem und externem Bereich.
Atrium: Das Herzstück des Gebäudes C bildet das dahinter liegende Atrium, das hell und grosszügig ausgestaltet ist und über eine spiralartige Treppe alle Geschosse repräsentativ miteinander verbindet. Es liegt zentral im Gebäudeteil C, eingespannt zwischen den beiden Kerne, die mit Liften und Fluchttreppen ausgestattet sind. Diese sind jedoch so ausgebildet, dass sie zum Atrium hin grossflächig verglast sind, wodurch kurze Distanzen über die Geschosse hinweg einfach überwunden werden können. Als verbindende, repräsentative Vertikalerschliessung stellt das Atrium die visuelle und räumliche Verbindung über die Geschosse hinweg sicher und ermöglicht den Mitarbeitenden kurze Wege und eine gute Orientierung. Mit Steharbeitsplätzen und Lounge-Bereichen ausgestattet bietet sie zudem die Möglichkeit für den Informellen Austausch der Mitarbeitenden.
Plaza: Das erste Obergeschoss ist als öffentliche Plaza ausgebildet. Hier befinden sich Personalrestaurant mit Free-Flow, Work-Café, Konferenz- und Meetingräume sowie verschieden Amenities. Die Plaza ist für die Mitarbeitenden gut auffindbar und als Ort der Begegnung und des Austauschs ausgebildet. Externe Gäste gelangen über den Empfang und die Spiraltreppe direkt in den Konferenzbereich. Dieser ist so ausgestaltet, dass die mittig platzierten Konferenzräume flexibel zu grösseren Einheiten zusammen gefasst werden können. Sie können jedoch auch komplett zur Seite geschoben werden, wodurch sich das Work-Café in eine grosse Town-Hall für Meetings mit 200 Personen umwandeln lässt.
Bürokonzept: Bei der Entwicklung des Bürokonzepts wurde grossen Wert auf nutzungsspezifische Flexibilität sowie auf eine optimale Belichtung gelegt. Das Atrium belichtet die Mitte des Gebäudes, so dass Arbeitsplätze auch in der Nähe des Atriums angelegt werden können. Ein Fassadenraster von 2.70 Metern, kurze Erschiessungswege und eine einfache Leitungsführung ermöglichen es, die Büroflächen flexibel als Open Space oder als Einzelbüros zu nutzen.
Das Bürolayout des Grossmieters basiert auf dem Konzept des „Activity Based Working“ und dem Leitgedanken „Your Office Is Where You Are“. Der gesamte Gebäudeteil des Hauptmieters ist so konzipiert, dass überall – im Atrium, auf den Balkonen, im Café, in der Bürolandschaft oder auf dem Dach des Attikageschosses – gearbeitet werden kann und soll. Die Mitarbeiter sucht sich dabei die für ihre Tätigkeit die gerade am besten geeignete Arbeitsumgebung aus; feste Arbeitsplätze gibt es nicht. Akustisch abgetrennte und mit einem Vorhang abtrennbare „Working Pills“ zonieren die Bürolandschaft in einzelne Neighbourhoods unterschiedlicher Grösse. Sie stehen für Telefongespräche, konzentrierte Einzelarbeit oder Meetings zur Verfügung und können individuell gebucht werden. Der Standort der „Working Pills“ innerhalb der Bürolandschaft ist flexibel. Er kann je nach gewünschter Grösse der Neighbourhood variiert werden.
Erdgeschossnutzung Öffentliche Erdgeschossnutzungen sind ein wichtiger Faktor für die Attraktivität des neuen Areals Rösslimatt. Der Platzierung der Gastro-, Atelier- und Gewerbeflächen wird deshalb grösste Beachtung geschenkt. Die Gebäudeköpfe entlang der Allee, entlang des neuen Parkbandes sowie die Flächen direkt beim Durchgang wurden dabei als Orte mit dem höchsten zu erwartenden Publikumsverkehr ausgelotet. Das grösste Potenzial für solche Flächen liegt schwergewichtig beim Erdgeschoss entlang der Güterstrasse. Um die Attraktivität dieses Standorts zu stärken sind hier Gastro-, Atelier- und Gewerbeflächen vorgesehen, die sich über interne Treppen ins 1. Obergeschoss erweitern lassen.
–
Erarbeitet mit Demuth Hagenmüller & Lamprecht Architekten
Zusammenarbeit mit Alessandra Villa Architektur
Mitarbeit Wettbewerb
Lilian Demuth, Sandra Hagenmüller, Andreas Lamprecht, Alessandra Villa
Mitarbeit Planung und Ausführung
Bernard Resewski, Andreas Lober, Federico Farinatti, Paula Seeling, Manuel Oswald, Maria Milic Sticca, Jan Pelcik, Sandra Hagenmüller, Andreas Lamprecht
Bauherrschaft
SBB Immobilien AG
Baumanagagement
Caretta + Weidmann AG
Totalunternehmer
Implenia Schweiz AG
Landschaftsarchitekt: w+s Landschaftsarchitekten AG
Ingenieur: Walt Galmarini AG
HLKS-Planer: ADZ AG
Elektroplaner: Boess AG
Bauphysik: Durable GmbH
Fassade: Mebatech AG
Lichtplanung: Reflexion AG
Brandschutz: Makiol Wiederkehr AG
BÜRO- UND GEWERBEHAUS RÖSSLIMATT
LUZERN, 2022-2025
EINGELADENER PROJEKTWETTBEWERB, 2020, 1. Preis
Als Auftakt für das Quartier Rösslimatt fasst der neue Stadtbaustein die Baufelder B und C zu einem einzigen, differenzierten und vielschichtigen Gebäude zusammen. Gleichermassen robust und einladend im Sockelbereich wird der öffentliche Anspruch des Gebäudes markiert. Die darüber liegenden Bürogeschosse werden von einem Kleid aus Metall und Glas umhüllt und stellen den Austausch einer modernen Arbeitswelt zwischen innen und aussen her. An ausgezeichneten städtebaulichen Stellen zieht sich die Bürofassade zurück und schafft begrünte, klimatische Pufferzonen. Wie Köpfe und Taillen helfen sie, das Gebäude zu zonieren, ihm einen Massstab zu geben und im Quartier zu verankern. Während die durchgängigen Balkone an den Stirnseiten Blicke zur Allee und in den Park freigeben, leiten die Einzüge die Fussgänger durch die zweigeschossige Passage.
Drei in der Mittelzone gesetzte Treppenkerne strukturieren das Gebäude sowohl statisch als auch räumlich. Als betonierte Kerne verbinden sie sich mit dem Untergeschoss und bilden das Rückgrat des Gebäudes. Das eingeführte Stützenraster gewährleistet eine maximale Nutzungsflexibilität. Die Schnittstelle der beiden Gebäudeteile über dem Durchgang ist als flexible Schaltzone ausgebildet, die je nach gewünschter Nutzung dem einen oder dem anderen Gebäudeteil zugeschlagen werden kann. Eine gemeinsame Tiefgarage im ersten Untergeschoss erschliesst alle Treppenkerne, während im zweiten Untergeschoss mit kleinerem Fussabdruck alle Technikräume untergebracht sind.
Adresse: Der Gebäudeteil C ist auf die geplante Nutzung des Grossmieters ausgelegt. Ein ausladendes Vordach und ein Rückzug der Fassade markieren den Haupteingang des Single Tenants an der Bürgenstrasse. Von aussen ist der grosszügige Wartebereich für Besucher einsehbar. Ein repräsentativer Empfangs-Desk und Zutrittssysteme vermitteln zwischen internem und externem Bereich.
Atrium: Das Herzstück des Gebäudes C bildet das dahinter liegende Atrium, das hell und grosszügig ausgestaltet ist und über eine spiralartige Treppe alle Geschosse repräsentativ miteinander verbindet. Es liegt zentral im Gebäudeteil C, eingespannt zwischen den beiden Kerne, die mit Liften und Fluchttreppen ausgestattet sind. Diese sind jedoch so ausgebildet, dass sie zum Atrium hin grossflächig verglast sind, wodurch kurze Distanzen über die Geschosse hinweg einfach überwunden werden können. Als verbindende, repräsentative Vertikalerschliessung stellt das Atrium die visuelle und räumliche Verbindung über die Geschosse hinweg sicher und ermöglicht den Mitarbeitenden kurze Wege und eine gute Orientierung. Mit Steharbeitsplätzen und Lounge-Bereichen ausgestattet bietet sie zudem die Möglichkeit für den Informellen Austausch der Mitarbeitenden.
Plaza: Das erste Obergeschoss ist als öffentliche Plaza ausgebildet. Hier befinden sich Personalrestaurant mit Free-Flow, Work-Café, Konferenz- und Meetingräume sowie verschieden Amenities. Die Plaza ist für die Mitarbeitenden gut auffindbar und als Ort der Begegnung und des Austauschs ausgebildet. Externe Gäste gelangen über den Empfang und die Spiraltreppe direkt in den Konferenzbereich. Dieser ist so ausgestaltet, dass die mittig platzierten Konferenzräume flexibel zu grösseren Einheiten zusammen gefasst werden können. Sie können jedoch auch komplett zur Seite geschoben werden, wodurch sich das Work-Café in eine grosse Town-Hall für Meetings mit 200 Personen umwandeln lässt.
Bürokonzept: Bei der Entwicklung des Bürokonzepts wurde grossen Wert auf nutzungsspezifische Flexibilität sowie auf eine optimale Belichtung gelegt. Das Atrium belichtet die Mitte des Gebäudes, so dass Arbeitsplätze auch in der Nähe des Atriums angelegt werden können. Ein Fassadenraster von 2.70 Metern, kurze Erschiessungswege und eine einfache Leitungsführung ermöglichen es, die Büroflächen flexibel als Open Space oder als Einzelbüros zu nutzen.
Das Bürolayout des Grossmieters basiert auf dem Konzept des „Activity Based Working“ und dem Leitgedanken „Your Office Is Where You Are“. Der gesamte Gebäudeteil des Hauptmieters ist so konzipiert, dass überall – im Atrium, auf den Balkonen, im Café, in der Bürolandschaft oder auf dem Dach des Attikageschosses – gearbeitet werden kann und soll. Die Mitarbeiter sucht sich dabei die für ihre Tätigkeit die gerade am besten geeignete Arbeitsumgebung aus; feste Arbeitsplätze gibt es nicht. Akustisch abgetrennte und mit einem Vorhang abtrennbare „Working Pills“ zonieren die Bürolandschaft in einzelne Neighbourhoods unterschiedlicher Grösse. Sie stehen für Telefongespräche, konzentrierte Einzelarbeit oder Meetings zur Verfügung und können individuell gebucht werden. Der Standort der „Working Pills“ innerhalb der Bürolandschaft ist flexibel. Er kann je nach gewünschter Grösse der Neighbourhood variiert werden.
Erdgeschossnutzung Öffentliche Erdgeschossnutzungen sind ein wichtiger Faktor für die Attraktivität des neuen Areals Rösslimatt. Der Platzierung der Gastro-, Atelier- und Gewerbeflächen wird deshalb grösste Beachtung geschenkt. Die Gebäudeköpfe entlang der Allee, entlang des neuen Parkbandes sowie die Flächen direkt beim Durchgang wurden dabei als Orte mit dem höchsten zu erwartenden Publikumsverkehr ausgelotet. Das grösste Potenzial für solche Flächen liegt schwergewichtig beim Erdgeschoss entlang der Güterstrasse. Um die Attraktivität dieses Standorts zu stärken sind hier Gastro-, Atelier- und Gewerbeflächen vorgesehen, die sich über interne Treppen ins 1. Obergeschoss erweitern lassen.
–
Erarbeitet mit Demuth Hagenmüller & Lamprecht Architekten
Zusammenarbeit mit Alessandra Villa Architektur
Mitarbeit Wettbewerb
Lilian Demuth, Sandra Hagenmüller, Andreas Lamprecht, Alessandra Villa
Mitarbeit Planung und Ausführung
Bernard Resewski, Andreas Lober, Federico Farinatti, Paula Seeling, Manuel Oswald, Maria Milic Sticca, Jan Pelcik, Sandra Hagenmüller, Andreas Lamprecht
Bauherrschaft
SBB Immobilien AG
Baumanagagement
Caretta + Weidmann AG
Totalunternehmer
Implenia Schweiz AG
Landschaftsarchitekt: w+s Landschaftsarchitekten AG
Ingenieur: Walt Galmarini AG
HLKS-Planer: ADZ AG
Elektroplaner: Boess AG
Bauphysik: Durable GmbH
Fassade: Mebatech AG
Lichtplanung: Reflexion AG
Brandschutz: Makiol Wiederkehr AG
BÜRO- UND GEWERBEHAUS RÖSSLIMATT
LUZERN, 2022-2025
EINGELADENER PROJEKTWETTBEWERB, 2020, 1. Preis
Als Auftakt für das Quartier Rösslimatt fasst der neue Stadtbaustein die Baufelder B und C zu einem einzigen, differenzierten und vielschichtigen Gebäude zusammen. Gleichermassen robust und einladend im Sockelbereich wird der öffentliche Anspruch des Gebäudes markiert. Die darüber liegenden Bürogeschosse werden von einem Kleid aus Metall und Glas umhüllt und stellen den Austausch einer modernen Arbeitswelt zwischen innen und aussen her. An ausgezeichneten städtebaulichen Stellen zieht sich die Bürofassade zurück und schafft begrünte, klimatische Pufferzonen. Wie Köpfe und Taillen helfen sie, das Gebäude zu zonieren, ihm einen Massstab zu geben und im Quartier zu verankern. Während die durchgängigen Balkone an den Stirnseiten Blicke zur Allee und in den Park freigeben, leiten die Einzüge die Fussgänger durch die zweigeschossige Passage.
Drei in der Mittelzone gesetzte Treppenkerne strukturieren das Gebäude sowohl statisch als auch räumlich. Als betonierte Kerne verbinden sie sich mit dem Untergeschoss und bilden das Rückgrat des Gebäudes. Das eingeführte Stützenraster gewährleistet eine maximale Nutzungsflexibilität. Die Schnittstelle der beiden Gebäudeteile über dem Durchgang ist als flexible Schaltzone ausgebildet, die je nach gewünschter Nutzung dem einen oder dem anderen Gebäudeteil zugeschlagen werden kann. Eine gemeinsame Tiefgarage im ersten Untergeschoss erschliesst alle Treppenkerne, während im zweiten Untergeschoss mit kleinerem Fussabdruck alle Technikräume untergebracht sind.
Adresse: Der Gebäudeteil C ist auf die geplante Nutzung des Grossmieters ausgelegt. Ein ausladendes Vordach und ein Rückzug der Fassade markieren den Haupteingang des Single Tenants an der Bürgenstrasse. Von aussen ist der grosszügige Wartebereich für Besucher einsehbar. Ein repräsentativer Empfangs-Desk und Zutrittssysteme vermitteln zwischen internem und externem Bereich.
Atrium: Das Herzstück des Gebäudes C bildet das dahinter liegende Atrium, das hell und grosszügig ausgestaltet ist und über eine spiralartige Treppe alle Geschosse repräsentativ miteinander verbindet. Es liegt zentral im Gebäudeteil C, eingespannt zwischen den beiden Kerne, die mit Liften und Fluchttreppen ausgestattet sind. Diese sind jedoch so ausgebildet, dass sie zum Atrium hin grossflächig verglast sind, wodurch kurze Distanzen über die Geschosse hinweg einfach überwunden werden können. Als verbindende, repräsentative Vertikalerschliessung stellt das Atrium die visuelle und räumliche Verbindung über die Geschosse hinweg sicher und ermöglicht den Mitarbeitenden kurze Wege und eine gute Orientierung. Mit Steharbeitsplätzen und Lounge-Bereichen ausgestattet bietet sie zudem die Möglichkeit für den Informellen Austausch der Mitarbeitenden.
Plaza: Das erste Obergeschoss ist als öffentliche Plaza ausgebildet. Hier befinden sich Personalrestaurant mit Free-Flow, Work-Café, Konferenz- und Meetingräume sowie verschieden Amenities. Die Plaza ist für die Mitarbeitenden gut auffindbar und als Ort der Begegnung und des Austauschs ausgebildet. Externe Gäste gelangen über den Empfang und die Spiraltreppe direkt in den Konferenzbereich. Dieser ist so ausgestaltet, dass die mittig platzierten Konferenzräume flexibel zu grösseren Einheiten zusammen gefasst werden können. Sie können jedoch auch komplett zur Seite geschoben werden, wodurch sich das Work-Café in eine grosse Town-Hall für Meetings mit 200 Personen umwandeln lässt.
Bürokonzept: Bei der Entwicklung des Bürokonzepts wurde grossen Wert auf nutzungsspezifische Flexibilität sowie auf eine optimale Belichtung gelegt. Das Atrium belichtet die Mitte des Gebäudes, so dass Arbeitsplätze auch in der Nähe des Atriums angelegt werden können. Ein Fassadenraster von 2.70 Metern, kurze Erschiessungswege und eine einfache Leitungsführung ermöglichen es, die Büroflächen flexibel als Open Space oder als Einzelbüros zu nutzen.
Das Bürolayout des Grossmieters basiert auf dem Konzept des „Activity Based Working“ und dem Leitgedanken „Your Office Is Where You Are“. Der gesamte Gebäudeteil des Hauptmieters ist so konzipiert, dass überall – im Atrium, auf den Balkonen, im Café, in der Bürolandschaft oder auf dem Dach des Attikageschosses – gearbeitet werden kann und soll. Die Mitarbeiter sucht sich dabei die für ihre Tätigkeit die gerade am besten geeignete Arbeitsumgebung aus; feste Arbeitsplätze gibt es nicht. Akustisch abgetrennte und mit einem Vorhang abtrennbare „Working Pills“ zonieren die Bürolandschaft in einzelne Neighbourhoods unterschiedlicher Grösse. Sie stehen für Telefongespräche, konzentrierte Einzelarbeit oder Meetings zur Verfügung und können individuell gebucht werden. Der Standort der „Working Pills“ innerhalb der Bürolandschaft ist flexibel. Er kann je nach gewünschter Grösse der Neighbourhood variiert werden.
Erdgeschossnutzung Öffentliche Erdgeschossnutzungen sind ein wichtiger Faktor für die Attraktivität des neuen Areals Rösslimatt. Der Platzierung der Gastro-, Atelier- und Gewerbeflächen wird deshalb grösste Beachtung geschenkt. Die Gebäudeköpfe entlang der Allee, entlang des neuen Parkbandes sowie die Flächen direkt beim Durchgang wurden dabei als Orte mit dem höchsten zu erwartenden Publikumsverkehr ausgelotet. Das grösste Potenzial für solche Flächen liegt schwergewichtig beim Erdgeschoss entlang der Güterstrasse. Um die Attraktivität dieses Standorts zu stärken sind hier Gastro-, Atelier- und Gewerbeflächen vorgesehen, die sich über interne Treppen ins 1. Obergeschoss erweitern lassen.
–
Erarbeitet mit Demuth Hagenmüller & Lamprecht Architekten
Zusammenarbeit mit Alessandra Villa Architektur
Mitarbeit Wettbewerb
Lilian Demuth, Sandra Hagenmüller, Andreas Lamprecht, Alessandra Villa
Mitarbeit Planung und Ausführung
Bernard Resewski, Andreas Lober, Federico Farinatti, Paula Seeling, Manuel Oswald, Maria Milic Sticca, Jan Pelcik, Sandra Hagenmüller, Andreas Lamprecht
Bauherrschaft
SBB Immobilien AG
Baumanagagement
Caretta + Weidmann AG
Totalunternehmer
Implenia Schweiz AG
Landschaftsarchitekt: w+s Landschaftsarchitekten AG
Ingenieur: Walt Galmarini AG
HLKS-Planer: ADZ AG
Elektroplaner: Boess AG
Bauphysik: Durable GmbH
Fassade: Mebatech AG
Lichtplanung: Reflexion AG
Brandschutz: Makiol Wiederkehr AG
BÜRO- UND GEWERBEHAUS RÖSSLIMATT
LUZERN, 2022-2025
EINGELADENER PROJEKTWETTBEWERB, 2020, 1. Preis
Als Auftakt für das Quartier Rösslimatt fasst der neue Stadtbaustein die Baufelder B und C zu einem einzigen, differenzierten und vielschichtigen Gebäude zusammen. Gleichermassen robust und einladend im Sockelbereich wird der öffentliche Anspruch des Gebäudes markiert. Die darüber liegenden Bürogeschosse werden von einem Kleid aus Metall und Glas umhüllt und stellen den Austausch einer modernen Arbeitswelt zwischen innen und aussen her. An ausgezeichneten städtebaulichen Stellen zieht sich die Bürofassade zurück und schafft begrünte, klimatische Pufferzonen. Wie Köpfe und Taillen helfen sie, das Gebäude zu zonieren, ihm einen Massstab zu geben und im Quartier zu verankern. Während die durchgängigen Balkone an den Stirnseiten Blicke zur Allee und in den Park freigeben, leiten die Einzüge die Fussgänger durch die zweigeschossige Passage.
Drei in der Mittelzone gesetzte Treppenkerne strukturieren das Gebäude sowohl statisch als auch räumlich. Als betonierte Kerne verbinden sie sich mit dem Untergeschoss und bilden das Rückgrat des Gebäudes. Das eingeführte Stützenraster gewährleistet eine maximale Nutzungsflexibilität. Die Schnittstelle der beiden Gebäudeteile über dem Durchgang ist als flexible Schaltzone ausgebildet, die je nach gewünschter Nutzung dem einen oder dem anderen Gebäudeteil zugeschlagen werden kann. Eine gemeinsame Tiefgarage im ersten Untergeschoss erschliesst alle Treppenkerne, während im zweiten Untergeschoss mit kleinerem Fussabdruck alle Technikräume untergebracht sind.
Adresse: Der Gebäudeteil C ist auf die geplante Nutzung des Grossmieters ausgelegt. Ein ausladendes Vordach und ein Rückzug der Fassade markieren den Haupteingang des Single Tenants an der Bürgenstrasse. Von aussen ist der grosszügige Wartebereich für Besucher einsehbar. Ein repräsentativer Empfangs-Desk und Zutrittssysteme vermitteln zwischen internem und externem Bereich.
Atrium: Das Herzstück des Gebäudes C bildet das dahinter liegende Atrium, das hell und grosszügig ausgestaltet ist und über eine spiralartige Treppe alle Geschosse repräsentativ miteinander verbindet. Es liegt zentral im Gebäudeteil C, eingespannt zwischen den beiden Kerne, die mit Liften und Fluchttreppen ausgestattet sind. Diese sind jedoch so ausgebildet, dass sie zum Atrium hin grossflächig verglast sind, wodurch kurze Distanzen über die Geschosse hinweg einfach überwunden werden können. Als verbindende, repräsentative Vertikalerschliessung stellt das Atrium die visuelle und räumliche Verbindung über die Geschosse hinweg sicher und ermöglicht den Mitarbeitenden kurze Wege und eine gute Orientierung. Mit Steharbeitsplätzen und Lounge-Bereichen ausgestattet bietet sie zudem die Möglichkeit für den Informellen Austausch der Mitarbeitenden.
Plaza: Das erste Obergeschoss ist als öffentliche Plaza ausgebildet. Hier befinden sich Personalrestaurant mit Free-Flow, Work-Café, Konferenz- und Meetingräume sowie verschieden Amenities. Die Plaza ist für die Mitarbeitenden gut auffindbar und als Ort der Begegnung und des Austauschs ausgebildet. Externe Gäste gelangen über den Empfang und die Spiraltreppe direkt in den Konferenzbereich. Dieser ist so ausgestaltet, dass die mittig platzierten Konferenzräume flexibel zu grösseren Einheiten zusammen gefasst werden können. Sie können jedoch auch komplett zur Seite geschoben werden, wodurch sich das Work-Café in eine grosse Town-Hall für Meetings mit 200 Personen umwandeln lässt.
Bürokonzept: Bei der Entwicklung des Bürokonzepts wurde grossen Wert auf nutzungsspezifische Flexibilität sowie auf eine optimale Belichtung gelegt. Das Atrium belichtet die Mitte des Gebäudes, so dass Arbeitsplätze auch in der Nähe des Atriums angelegt werden können. Ein Fassadenraster von 2.70 Metern, kurze Erschiessungswege und eine einfache Leitungsführung ermöglichen es, die Büroflächen flexibel als Open Space oder als Einzelbüros zu nutzen.
Das Bürolayout des Grossmieters basiert auf dem Konzept des „Activity Based Working“ und dem Leitgedanken „Your Office Is Where You Are“. Der gesamte Gebäudeteil des Hauptmieters ist so konzipiert, dass überall – im Atrium, auf den Balkonen, im Café, in der Bürolandschaft oder auf dem Dach des Attikageschosses – gearbeitet werden kann und soll. Die Mitarbeiter sucht sich dabei die für ihre Tätigkeit die gerade am besten geeignete Arbeitsumgebung aus; feste Arbeitsplätze gibt es nicht. Akustisch abgetrennte und mit einem Vorhang abtrennbare „Working Pills“ zonieren die Bürolandschaft in einzelne Neighbourhoods unterschiedlicher Grösse. Sie stehen für Telefongespräche, konzentrierte Einzelarbeit oder Meetings zur Verfügung und können individuell gebucht werden. Der Standort der „Working Pills“ innerhalb der Bürolandschaft ist flexibel. Er kann je nach gewünschter Grösse der Neighbourhood variiert werden.
Erdgeschossnutzung Öffentliche Erdgeschossnutzungen sind ein wichtiger Faktor für die Attraktivität des neuen Areals Rösslimatt. Der Platzierung der Gastro-, Atelier- und Gewerbeflächen wird deshalb grösste Beachtung geschenkt. Die Gebäudeköpfe entlang der Allee, entlang des neuen Parkbandes sowie die Flächen direkt beim Durchgang wurden dabei als Orte mit dem höchsten zu erwartenden Publikumsverkehr ausgelotet. Das grösste Potenzial für solche Flächen liegt schwergewichtig beim Erdgeschoss entlang der Güterstrasse. Um die Attraktivität dieses Standorts zu stärken sind hier Gastro-, Atelier- und Gewerbeflächen vorgesehen, die sich über interne Treppen ins 1. Obergeschoss erweitern lassen.
–
Erarbeitet mit Demuth Hagenmüller & Lamprecht Architekten
Zusammenarbeit mit Alessandra Villa Architektur
Mitarbeit Wettbewerb
Lilian Demuth, Sandra Hagenmüller, Andreas Lamprecht, Alessandra Villa
Mitarbeit Planung und Ausführung
Bernard Resewski, Andreas Lober, Federico Farinatti, Paula Seeling, Manuel Oswald, Maria Milic Sticca, Jan Pelcik, Sandra Hagenmüller, Andreas Lamprecht
Bauherrschaft
SBB Immobilien AG
Baumanagagement
Caretta + Weidmann AG
Totalunternehmer
Implenia Schweiz AG
Landschaftsarchitekt: w+s Landschaftsarchitekten AG
Ingenieur: Walt Galmarini AG
HLKS-Planer: ADZ AG
Elektroplaner: Boess AG
Bauphysik: Durable GmbH
Fassade: Mebatech AG
Lichtplanung: Reflexion AG
Brandschutz: Makiol Wiederkehr AG
BÜRO- UND GEWERBEHAUS RÖSSLIMATT
LUZERN, 2022-2025
EINGELADENER PROJEKTWETTBEWERB, 2020, 1. Preis
Als Auftakt für das Quartier Rösslimatt fasst der neue Stadtbaustein die Baufelder B und C zu einem einzigen, differenzierten und vielschichtigen Gebäude zusammen. Gleichermassen robust und einladend im Sockelbereich wird der öffentliche Anspruch des Gebäudes markiert. Die darüber liegenden Bürogeschosse werden von einem Kleid aus Metall und Glas umhüllt und stellen den Austausch einer modernen Arbeitswelt zwischen innen und aussen her. An ausgezeichneten städtebaulichen Stellen zieht sich die Bürofassade zurück und schafft begrünte, klimatische Pufferzonen. Wie Köpfe und Taillen helfen sie, das Gebäude zu zonieren, ihm einen Massstab zu geben und im Quartier zu verankern. Während die durchgängigen Balkone an den Stirnseiten Blicke zur Allee und in den Park freigeben, leiten die Einzüge die Fussgänger durch die zweigeschossige Passage.
Drei in der Mittelzone gesetzte Treppenkerne strukturieren das Gebäude sowohl statisch als auch räumlich. Als betonierte Kerne verbinden sie sich mit dem Untergeschoss und bilden das Rückgrat des Gebäudes. Das eingeführte Stützenraster gewährleistet eine maximale Nutzungsflexibilität. Die Schnittstelle der beiden Gebäudeteile über dem Durchgang ist als flexible Schaltzone ausgebildet, die je nach gewünschter Nutzung dem einen oder dem anderen Gebäudeteil zugeschlagen werden kann. Eine gemeinsame Tiefgarage im ersten Untergeschoss erschliesst alle Treppenkerne, während im zweiten Untergeschoss mit kleinerem Fussabdruck alle Technikräume untergebracht sind.
Adresse: Der Gebäudeteil C ist auf die geplante Nutzung des Grossmieters ausgelegt. Ein ausladendes Vordach und ein Rückzug der Fassade markieren den Haupteingang des Single Tenants an der Bürgenstrasse. Von aussen ist der grosszügige Wartebereich für Besucher einsehbar. Ein repräsentativer Empfangs-Desk und Zutrittssysteme vermitteln zwischen internem und externem Bereich.
Atrium: Das Herzstück des Gebäudes C bildet das dahinter liegende Atrium, das hell und grosszügig ausgestaltet ist und über eine spiralartige Treppe alle Geschosse repräsentativ miteinander verbindet. Es liegt zentral im Gebäudeteil C, eingespannt zwischen den beiden Kerne, die mit Liften und Fluchttreppen ausgestattet sind. Diese sind jedoch so ausgebildet, dass sie zum Atrium hin grossflächig verglast sind, wodurch kurze Distanzen über die Geschosse hinweg einfach überwunden werden können. Als verbindende, repräsentative Vertikalerschliessung stellt das Atrium die visuelle und räumliche Verbindung über die Geschosse hinweg sicher und ermöglicht den Mitarbeitenden kurze Wege und eine gute Orientierung. Mit Steharbeitsplätzen und Lounge-Bereichen ausgestattet bietet sie zudem die Möglichkeit für den Informellen Austausch der Mitarbeitenden.
Plaza: Das erste Obergeschoss ist als öffentliche Plaza ausgebildet. Hier befinden sich Personalrestaurant mit Free-Flow, Work-Café, Konferenz- und Meetingräume sowie verschieden Amenities. Die Plaza ist für die Mitarbeitenden gut auffindbar und als Ort der Begegnung und des Austauschs ausgebildet. Externe Gäste gelangen über den Empfang und die Spiraltreppe direkt in den Konferenzbereich. Dieser ist so ausgestaltet, dass die mittig platzierten Konferenzräume flexibel zu grösseren Einheiten zusammen gefasst werden können. Sie können jedoch auch komplett zur Seite geschoben werden, wodurch sich das Work-Café in eine grosse Town-Hall für Meetings mit 200 Personen umwandeln lässt.
Bürokonzept: Bei der Entwicklung des Bürokonzepts wurde grossen Wert auf nutzungsspezifische Flexibilität sowie auf eine optimale Belichtung gelegt. Das Atrium belichtet die Mitte des Gebäudes, so dass Arbeitsplätze auch in der Nähe des Atriums angelegt werden können. Ein Fassadenraster von 2.70 Metern, kurze Erschiessungswege und eine einfache Leitungsführung ermöglichen es, die Büroflächen flexibel als Open Space oder als Einzelbüros zu nutzen.
Das Bürolayout des Grossmieters basiert auf dem Konzept des „Activity Based Working“ und dem Leitgedanken „Your Office Is Where You Are“. Der gesamte Gebäudeteil des Hauptmieters ist so konzipiert, dass überall – im Atrium, auf den Balkonen, im Café, in der Bürolandschaft oder auf dem Dach des Attikageschosses – gearbeitet werden kann und soll. Die Mitarbeiter sucht sich dabei die für ihre Tätigkeit die gerade am besten geeignete Arbeitsumgebung aus; feste Arbeitsplätze gibt es nicht. Akustisch abgetrennte und mit einem Vorhang abtrennbare „Working Pills“ zonieren die Bürolandschaft in einzelne Neighbourhoods unterschiedlicher Grösse. Sie stehen für Telefongespräche, konzentrierte Einzelarbeit oder Meetings zur Verfügung und können individuell gebucht werden. Der Standort der „Working Pills“ innerhalb der Bürolandschaft ist flexibel. Er kann je nach gewünschter Grösse der Neighbourhood variiert werden.
Erdgeschossnutzung Öffentliche Erdgeschossnutzungen sind ein wichtiger Faktor für die Attraktivität des neuen Areals Rösslimatt. Der Platzierung der Gastro-, Atelier- und Gewerbeflächen wird deshalb grösste Beachtung geschenkt. Die Gebäudeköpfe entlang der Allee, entlang des neuen Parkbandes sowie die Flächen direkt beim Durchgang wurden dabei als Orte mit dem höchsten zu erwartenden Publikumsverkehr ausgelotet. Das grösste Potenzial für solche Flächen liegt schwergewichtig beim Erdgeschoss entlang der Güterstrasse. Um die Attraktivität dieses Standorts zu stärken sind hier Gastro-, Atelier- und Gewerbeflächen vorgesehen, die sich über interne Treppen ins 1. Obergeschoss erweitern lassen.
–
Erarbeitet mit Demuth Hagenmüller & Lamprecht Architekten
Zusammenarbeit mit Alessandra Villa Architektur
Mitarbeit Wettbewerb
Lilian Demuth, Sandra Hagenmüller, Andreas Lamprecht, Alessandra Villa
Mitarbeit Planung und Ausführung
Bernard Resewski, Andreas Lober, Federico Farinatti, Paula Seeling, Manuel Oswald, Maria Milic Sticca, Jan Pelcik, Sandra Hagenmüller, Andreas Lamprecht
Bauherrschaft
SBB Immobilien AG
Baumanagagement
Caretta + Weidmann AG
Totalunternehmer
Implenia Schweiz AG
Landschaftsarchitekt: w+s Landschaftsarchitekten AG
Ingenieur: Walt Galmarini AG
HLKS-Planer: ADZ AG
Elektroplaner: Boess AG
Bauphysik: Durable GmbH
Fassade: Mebatech AG
Lichtplanung: Reflexion AG
Brandschutz: Makiol Wiederkehr AG
BÜRO- UND GEWERBEHAUS RÖSSLIMATT
LUZERN, 2022-2025
EINGELADENER PROJEKTWETTBEWERB, 2020, 1. Preis
Als Auftakt für das Quartier Rösslimatt fasst der neue Stadtbaustein die Baufelder B und C zu einem einzigen, differenzierten und vielschichtigen Gebäude zusammen. Gleichermassen robust und einladend im Sockelbereich wird der öffentliche Anspruch des Gebäudes markiert. Die darüber liegenden Bürogeschosse werden von einem Kleid aus Metall und Glas umhüllt und stellen den Austausch einer modernen Arbeitswelt zwischen innen und aussen her. An ausgezeichneten städtebaulichen Stellen zieht sich die Bürofassade zurück und schafft begrünte, klimatische Pufferzonen. Wie Köpfe und Taillen helfen sie, das Gebäude zu zonieren, ihm einen Massstab zu geben und im Quartier zu verankern. Während die durchgängigen Balkone an den Stirnseiten Blicke zur Allee und in den Park freigeben, leiten die Einzüge die Fussgänger durch die zweigeschossige Passage.
Drei in der Mittelzone gesetzte Treppenkerne strukturieren das Gebäude sowohl statisch als auch räumlich. Als betonierte Kerne verbinden sie sich mit dem Untergeschoss und bilden das Rückgrat des Gebäudes. Das eingeführte Stützenraster gewährleistet eine maximale Nutzungsflexibilität. Die Schnittstelle der beiden Gebäudeteile über dem Durchgang ist als flexible Schaltzone ausgebildet, die je nach gewünschter Nutzung dem einen oder dem anderen Gebäudeteil zugeschlagen werden kann. Eine gemeinsame Tiefgarage im ersten Untergeschoss erschliesst alle Treppenkerne, während im zweiten Untergeschoss mit kleinerem Fussabdruck alle Technikräume untergebracht sind.
Adresse: Der Gebäudeteil C ist auf die geplante Nutzung des Grossmieters ausgelegt. Ein ausladendes Vordach und ein Rückzug der Fassade markieren den Haupteingang des Single Tenants an der Bürgenstrasse. Von aussen ist der grosszügige Wartebereich für Besucher einsehbar. Ein repräsentativer Empfangs-Desk und Zutrittssysteme vermitteln zwischen internem und externem Bereich.
Atrium: Das Herzstück des Gebäudes C bildet das dahinter liegende Atrium, das hell und grosszügig ausgestaltet ist und über eine spiralartige Treppe alle Geschosse repräsentativ miteinander verbindet. Es liegt zentral im Gebäudeteil C, eingespannt zwischen den beiden Kerne, die mit Liften und Fluchttreppen ausgestattet sind. Diese sind jedoch so ausgebildet, dass sie zum Atrium hin grossflächig verglast sind, wodurch kurze Distanzen über die Geschosse hinweg einfach überwunden werden können. Als verbindende, repräsentative Vertikalerschliessung stellt das Atrium die visuelle und räumliche Verbindung über die Geschosse hinweg sicher und ermöglicht den Mitarbeitenden kurze Wege und eine gute Orientierung. Mit Steharbeitsplätzen und Lounge-Bereichen ausgestattet bietet sie zudem die Möglichkeit für den Informellen Austausch der Mitarbeitenden.
Plaza: Das erste Obergeschoss ist als öffentliche Plaza ausgebildet. Hier befinden sich Personalrestaurant mit Free-Flow, Work-Café, Konferenz- und Meetingräume sowie verschieden Amenities. Die Plaza ist für die Mitarbeitenden gut auffindbar und als Ort der Begegnung und des Austauschs ausgebildet. Externe Gäste gelangen über den Empfang und die Spiraltreppe direkt in den Konferenzbereich. Dieser ist so ausgestaltet, dass die mittig platzierten Konferenzräume flexibel zu grösseren Einheiten zusammen gefasst werden können. Sie können jedoch auch komplett zur Seite geschoben werden, wodurch sich das Work-Café in eine grosse Town-Hall für Meetings mit 200 Personen umwandeln lässt.
Bürokonzept: Bei der Entwicklung des Bürokonzepts wurde grossen Wert auf nutzungsspezifische Flexibilität sowie auf eine optimale Belichtung gelegt. Das Atrium belichtet die Mitte des Gebäudes, so dass Arbeitsplätze auch in der Nähe des Atriums angelegt werden können. Ein Fassadenraster von 2.70 Metern, kurze Erschiessungswege und eine einfache Leitungsführung ermöglichen es, die Büroflächen flexibel als Open Space oder als Einzelbüros zu nutzen.
Das Bürolayout des Grossmieters basiert auf dem Konzept des „Activity Based Working“ und dem Leitgedanken „Your Office Is Where You Are“. Der gesamte Gebäudeteil des Hauptmieters ist so konzipiert, dass überall – im Atrium, auf den Balkonen, im Café, in der Bürolandschaft oder auf dem Dach des Attikageschosses – gearbeitet werden kann und soll. Die Mitarbeiter sucht sich dabei die für ihre Tätigkeit die gerade am besten geeignete Arbeitsumgebung aus; feste Arbeitsplätze gibt es nicht. Akustisch abgetrennte und mit einem Vorhang abtrennbare „Working Pills“ zonieren die Bürolandschaft in einzelne Neighbourhoods unterschiedlicher Grösse. Sie stehen für Telefongespräche, konzentrierte Einzelarbeit oder Meetings zur Verfügung und können individuell gebucht werden. Der Standort der „Working Pills“ innerhalb der Bürolandschaft ist flexibel. Er kann je nach gewünschter Grösse der Neighbourhood variiert werden.
Erdgeschossnutzung Öffentliche Erdgeschossnutzungen sind ein wichtiger Faktor für die Attraktivität des neuen Areals Rösslimatt. Der Platzierung der Gastro-, Atelier- und Gewerbeflächen wird deshalb grösste Beachtung geschenkt. Die Gebäudeköpfe entlang der Allee, entlang des neuen Parkbandes sowie die Flächen direkt beim Durchgang wurden dabei als Orte mit dem höchsten zu erwartenden Publikumsverkehr ausgelotet. Das grösste Potenzial für solche Flächen liegt schwergewichtig beim Erdgeschoss entlang der Güterstrasse. Um die Attraktivität dieses Standorts zu stärken sind hier Gastro-, Atelier- und Gewerbeflächen vorgesehen, die sich über interne Treppen ins 1. Obergeschoss erweitern lassen.
–
Erarbeitet mit Demuth Hagenmüller & Lamprecht Architekten
Zusammenarbeit mit Alessandra Villa Architektur
Mitarbeit Wettbewerb
Lilian Demuth, Sandra Hagenmüller, Andreas Lamprecht, Alessandra Villa
Mitarbeit Planung und Ausführung
Bernard Resewski, Andreas Lober, Federico Farinatti, Paula Seeling, Manuel Oswald, Maria Milic Sticca, Jan Pelcik, Sandra Hagenmüller, Andreas Lamprecht
Bauherrschaft
SBB Immobilien AG
Baumanagagement
Caretta + Weidmann AG
Totalunternehmer
Implenia Schweiz AG
Landschaftsarchitekt: w+s Landschaftsarchitekten AG
Ingenieur: Walt Galmarini AG
HLKS-Planer: ADZ AG
Elektroplaner: Boess AG
Bauphysik: Durable GmbH
Fassade: Mebatech AG
Lichtplanung: Reflexion AG
Brandschutz: Makiol Wiederkehr AG
BÜRO- UND GEWERBEHAUS RÖSSLIMATT
LUZERN, 2022-2025
EINGELADENER PROJEKTWETTBEWERB, 2020, 1. Preis
Als Auftakt für das Quartier Rösslimatt fasst der neue Stadtbaustein die Baufelder B und C zu einem einzigen, differenzierten und vielschichtigen Gebäude zusammen. Gleichermassen robust und einladend im Sockelbereich wird der öffentliche Anspruch des Gebäudes markiert. Die darüber liegenden Bürogeschosse werden von einem Kleid aus Metall und Glas umhüllt und stellen den Austausch einer modernen Arbeitswelt zwischen innen und aussen her. An ausgezeichneten städtebaulichen Stellen zieht sich die Bürofassade zurück und schafft begrünte, klimatische Pufferzonen. Wie Köpfe und Taillen helfen sie, das Gebäude zu zonieren, ihm einen Massstab zu geben und im Quartier zu verankern. Während die durchgängigen Balkone an den Stirnseiten Blicke zur Allee und in den Park freigeben, leiten die Einzüge die Fussgänger durch die zweigeschossige Passage.
Drei in der Mittelzone gesetzte Treppenkerne strukturieren das Gebäude sowohl statisch als auch räumlich. Als betonierte Kerne verbinden sie sich mit dem Untergeschoss und bilden das Rückgrat des Gebäudes. Das eingeführte Stützenraster gewährleistet eine maximale Nutzungsflexibilität. Die Schnittstelle der beiden Gebäudeteile über dem Durchgang ist als flexible Schaltzone ausgebildet, die je nach gewünschter Nutzung dem einen oder dem anderen Gebäudeteil zugeschlagen werden kann. Eine gemeinsame Tiefgarage im ersten Untergeschoss erschliesst alle Treppenkerne, während im zweiten Untergeschoss mit kleinerem Fussabdruck alle Technikräume untergebracht sind.
Adresse: Der Gebäudeteil C ist auf die geplante Nutzung des Grossmieters ausgelegt. Ein ausladendes Vordach und ein Rückzug der Fassade markieren den Haupteingang des Single Tenants an der Bürgenstrasse. Von aussen ist der grosszügige Wartebereich für Besucher einsehbar. Ein repräsentativer Empfangs-Desk und Zutrittssysteme vermitteln zwischen internem und externem Bereich.
Atrium: Das Herzstück des Gebäudes C bildet das dahinter liegende Atrium, das hell und grosszügig ausgestaltet ist und über eine spiralartige Treppe alle Geschosse repräsentativ miteinander verbindet. Es liegt zentral im Gebäudeteil C, eingespannt zwischen den beiden Kerne, die mit Liften und Fluchttreppen ausgestattet sind. Diese sind jedoch so ausgebildet, dass sie zum Atrium hin grossflächig verglast sind, wodurch kurze Distanzen über die Geschosse hinweg einfach überwunden werden können. Als verbindende, repräsentative Vertikalerschliessung stellt das Atrium die visuelle und räumliche Verbindung über die Geschosse hinweg sicher und ermöglicht den Mitarbeitenden kurze Wege und eine gute Orientierung. Mit Steharbeitsplätzen und Lounge-Bereichen ausgestattet bietet sie zudem die Möglichkeit für den Informellen Austausch der Mitarbeitenden.
Plaza: Das erste Obergeschoss ist als öffentliche Plaza ausgebildet. Hier befinden sich Personalrestaurant mit Free-Flow, Work-Café, Konferenz- und Meetingräume sowie verschieden Amenities. Die Plaza ist für die Mitarbeitenden gut auffindbar und als Ort der Begegnung und des Austauschs ausgebildet. Externe Gäste gelangen über den Empfang und die Spiraltreppe direkt in den Konferenzbereich. Dieser ist so ausgestaltet, dass die mittig platzierten Konferenzräume flexibel zu grösseren Einheiten zusammen gefasst werden können. Sie können jedoch auch komplett zur Seite geschoben werden, wodurch sich das Work-Café in eine grosse Town-Hall für Meetings mit 200 Personen umwandeln lässt.
Bürokonzept: Bei der Entwicklung des Bürokonzepts wurde grossen Wert auf nutzungsspezifische Flexibilität sowie auf eine optimale Belichtung gelegt. Das Atrium belichtet die Mitte des Gebäudes, so dass Arbeitsplätze auch in der Nähe des Atriums angelegt werden können. Ein Fassadenraster von 2.70 Metern, kurze Erschiessungswege und eine einfache Leitungsführung ermöglichen es, die Büroflächen flexibel als Open Space oder als Einzelbüros zu nutzen.
Das Bürolayout des Grossmieters basiert auf dem Konzept des „Activity Based Working“ und dem Leitgedanken „Your Office Is Where You Are“. Der gesamte Gebäudeteil des Hauptmieters ist so konzipiert, dass überall – im Atrium, auf den Balkonen, im Café, in der Bürolandschaft oder auf dem Dach des Attikageschosses – gearbeitet werden kann und soll. Die Mitarbeiter sucht sich dabei die für ihre Tätigkeit die gerade am besten geeignete Arbeitsumgebung aus; feste Arbeitsplätze gibt es nicht. Akustisch abgetrennte und mit einem Vorhang abtrennbare „Working Pills“ zonieren die Bürolandschaft in einzelne Neighbourhoods unterschiedlicher Grösse. Sie stehen für Telefongespräche, konzentrierte Einzelarbeit oder Meetings zur Verfügung und können individuell gebucht werden. Der Standort der „Working Pills“ innerhalb der Bürolandschaft ist flexibel. Er kann je nach gewünschter Grösse der Neighbourhood variiert werden.
Erdgeschossnutzung Öffentliche Erdgeschossnutzungen sind ein wichtiger Faktor für die Attraktivität des neuen Areals Rösslimatt. Der Platzierung der Gastro-, Atelier- und Gewerbeflächen wird deshalb grösste Beachtung geschenkt. Die Gebäudeköpfe entlang der Allee, entlang des neuen Parkbandes sowie die Flächen direkt beim Durchgang wurden dabei als Orte mit dem höchsten zu erwartenden Publikumsverkehr ausgelotet. Das grösste Potenzial für solche Flächen liegt schwergewichtig beim Erdgeschoss entlang der Güterstrasse. Um die Attraktivität dieses Standorts zu stärken sind hier Gastro-, Atelier- und Gewerbeflächen vorgesehen, die sich über interne Treppen ins 1. Obergeschoss erweitern lassen.
–
Erarbeitet mit Demuth Hagenmüller & Lamprecht Architekten
Zusammenarbeit mit Alessandra Villa Architektur
Mitarbeit Wettbewerb
Lilian Demuth, Sandra Hagenmüller, Andreas Lamprecht, Alessandra Villa
Mitarbeit Planung und Ausführung
Bernard Resewski, Andreas Lober, Federico Farinatti, Paula Seeling, Manuel Oswald, Maria Milic Sticca, Jan Pelcik, Sandra Hagenmüller, Andreas Lamprecht
Bauherrschaft
SBB Immobilien AG
Baumanagagement
Caretta + Weidmann AG
Totalunternehmer
Implenia Schweiz AG
Landschaftsarchitekt: w+s Landschaftsarchitekten AG
Ingenieur: Walt Galmarini AG
HLKS-Planer: ADZ AG
Elektroplaner: Boess AG
Bauphysik: Durable GmbH
Fassade: Mebatech AG
Lichtplanung: Reflexion AG
Brandschutz: Makiol Wiederkehr AG
BÜRO- UND GEWERBEHAUS RÖSSLIMATT
LUZERN, 2022-2025
EINGELADENER PROJEKTWETTBEWERB, 2020, 1. Preis
Als Auftakt für das Quartier Rösslimatt fasst der neue Stadtbaustein die Baufelder B und C zu einem einzigen, differenzierten und vielschichtigen Gebäude zusammen. Gleichermassen robust und einladend im Sockelbereich wird der öffentliche Anspruch des Gebäudes markiert. Die darüber liegenden Bürogeschosse werden von einem Kleid aus Metall und Glas umhüllt und stellen den Austausch einer modernen Arbeitswelt zwischen innen und aussen her. An ausgezeichneten städtebaulichen Stellen zieht sich die Bürofassade zurück und schafft begrünte, klimatische Pufferzonen. Wie Köpfe und Taillen helfen sie, das Gebäude zu zonieren, ihm einen Massstab zu geben und im Quartier zu verankern. Während die durchgängigen Balkone an den Stirnseiten Blicke zur Allee und in den Park freigeben, leiten die Einzüge die Fussgänger durch die zweigeschossige Passage.
Drei in der Mittelzone gesetzte Treppenkerne strukturieren das Gebäude sowohl statisch als auch räumlich. Als betonierte Kerne verbinden sie sich mit dem Untergeschoss und bilden das Rückgrat des Gebäudes. Das eingeführte Stützenraster gewährleistet eine maximale Nutzungsflexibilität. Die Schnittstelle der beiden Gebäudeteile über dem Durchgang ist als flexible Schaltzone ausgebildet, die je nach gewünschter Nutzung dem einen oder dem anderen Gebäudeteil zugeschlagen werden kann. Eine gemeinsame Tiefgarage im ersten Untergeschoss erschliesst alle Treppenkerne, während im zweiten Untergeschoss mit kleinerem Fussabdruck alle Technikräume untergebracht sind.
Adresse: Der Gebäudeteil C ist auf die geplante Nutzung des Grossmieters ausgelegt. Ein ausladendes Vordach und ein Rückzug der Fassade markieren den Haupteingang des Single Tenants an der Bürgenstrasse. Von aussen ist der grosszügige Wartebereich für Besucher einsehbar. Ein repräsentativer Empfangs-Desk und Zutrittssysteme vermitteln zwischen internem und externem Bereich.
Atrium: Das Herzstück des Gebäudes C bildet das dahinter liegende Atrium, das hell und grosszügig ausgestaltet ist und über eine spiralartige Treppe alle Geschosse repräsentativ miteinander verbindet. Es liegt zentral im Gebäudeteil C, eingespannt zwischen den beiden Kerne, die mit Liften und Fluchttreppen ausgestattet sind. Diese sind jedoch so ausgebildet, dass sie zum Atrium hin grossflächig verglast sind, wodurch kurze Distanzen über die Geschosse hinweg einfach überwunden werden können. Als verbindende, repräsentative Vertikalerschliessung stellt das Atrium die visuelle und räumliche Verbindung über die Geschosse hinweg sicher und ermöglicht den Mitarbeitenden kurze Wege und eine gute Orientierung. Mit Steharbeitsplätzen und Lounge-Bereichen ausgestattet bietet sie zudem die Möglichkeit für den Informellen Austausch der Mitarbeitenden.
Plaza: Das erste Obergeschoss ist als öffentliche Plaza ausgebildet. Hier befinden sich Personalrestaurant mit Free-Flow, Work-Café, Konferenz- und Meetingräume sowie verschieden Amenities. Die Plaza ist für die Mitarbeitenden gut auffindbar und als Ort der Begegnung und des Austauschs ausgebildet. Externe Gäste gelangen über den Empfang und die Spiraltreppe direkt in den Konferenzbereich. Dieser ist so ausgestaltet, dass die mittig platzierten Konferenzräume flexibel zu grösseren Einheiten zusammen gefasst werden können. Sie können jedoch auch komplett zur Seite geschoben werden, wodurch sich das Work-Café in eine grosse Town-Hall für Meetings mit 200 Personen umwandeln lässt.
Bürokonzept: Bei der Entwicklung des Bürokonzepts wurde grossen Wert auf nutzungsspezifische Flexibilität sowie auf eine optimale Belichtung gelegt. Das Atrium belichtet die Mitte des Gebäudes, so dass Arbeitsplätze auch in der Nähe des Atriums angelegt werden können. Ein Fassadenraster von 2.70 Metern, kurze Erschiessungswege und eine einfache Leitungsführung ermöglichen es, die Büroflächen flexibel als Open Space oder als Einzelbüros zu nutzen.
Das Bürolayout des Grossmieters basiert auf dem Konzept des „Activity Based Working“ und dem Leitgedanken „Your Office Is Where You Are“. Der gesamte Gebäudeteil des Hauptmieters ist so konzipiert, dass überall – im Atrium, auf den Balkonen, im Café, in der Bürolandschaft oder auf dem Dach des Attikageschosses – gearbeitet werden kann und soll. Die Mitarbeiter sucht sich dabei die für ihre Tätigkeit die gerade am besten geeignete Arbeitsumgebung aus; feste Arbeitsplätze gibt es nicht. Akustisch abgetrennte und mit einem Vorhang abtrennbare „Working Pills“ zonieren die Bürolandschaft in einzelne Neighbourhoods unterschiedlicher Grösse. Sie stehen für Telefongespräche, konzentrierte Einzelarbeit oder Meetings zur Verfügung und können individuell gebucht werden. Der Standort der „Working Pills“ innerhalb der Bürolandschaft ist flexibel. Er kann je nach gewünschter Grösse der Neighbourhood variiert werden.
Erdgeschossnutzung Öffentliche Erdgeschossnutzungen sind ein wichtiger Faktor für die Attraktivität des neuen Areals Rösslimatt. Der Platzierung der Gastro-, Atelier- und Gewerbeflächen wird deshalb grösste Beachtung geschenkt. Die Gebäudeköpfe entlang der Allee, entlang des neuen Parkbandes sowie die Flächen direkt beim Durchgang wurden dabei als Orte mit dem höchsten zu erwartenden Publikumsverkehr ausgelotet. Das grösste Potenzial für solche Flächen liegt schwergewichtig beim Erdgeschoss entlang der Güterstrasse. Um die Attraktivität dieses Standorts zu stärken sind hier Gastro-, Atelier- und Gewerbeflächen vorgesehen, die sich über interne Treppen ins 1. Obergeschoss erweitern lassen.
–
Erarbeitet mit Demuth Hagenmüller & Lamprecht Architekten
Zusammenarbeit mit Alessandra Villa Architektur
Mitarbeit Wettbewerb
Lilian Demuth, Sandra Hagenmüller, Andreas Lamprecht, Alessandra Villa
Mitarbeit Planung und Ausführung
Bernard Resewski, Andreas Lober, Federico Farinatti, Paula Seeling, Manuel Oswald, Maria Milic Sticca, Jan Pelcik, Sandra Hagenmüller, Andreas Lamprecht
Bauherrschaft
SBB Immobilien AG
Baumanagagement
Caretta + Weidmann AG
Totalunternehmer
Implenia Schweiz AG
Landschaftsarchitekt: w+s Landschaftsarchitekten AG
Ingenieur: Walt Galmarini AG
HLKS-Planer: ADZ AG
Elektroplaner: Boess AG
Bauphysik: Durable GmbH
Fassade: Mebatech AG
Lichtplanung: Reflexion AG
Brandschutz: Makiol Wiederkehr AG
BÜRO- UND GEWERBEHAUS RÖSSLIMATT
LUZERN, 2022-2025
EINGELADENER PROJEKTWETTBEWERB, 2020, 1. Preis
Als Auftakt für das Quartier Rösslimatt fasst der neue Stadtbaustein die Baufelder B und C zu einem einzigen, differenzierten und vielschichtigen Gebäude zusammen. Gleichermassen robust und einladend im Sockelbereich wird der öffentliche Anspruch des Gebäudes markiert. Die darüber liegenden Bürogeschosse werden von einem Kleid aus Metall und Glas umhüllt und stellen den Austausch einer modernen Arbeitswelt zwischen innen und aussen her. An ausgezeichneten städtebaulichen Stellen zieht sich die Bürofassade zurück und schafft begrünte, klimatische Pufferzonen. Wie Köpfe und Taillen helfen sie, das Gebäude zu zonieren, ihm einen Massstab zu geben und im Quartier zu verankern. Während die durchgängigen Balkone an den Stirnseiten Blicke zur Allee und in den Park freigeben, leiten die Einzüge die Fussgänger durch die zweigeschossige Passage.
Drei in der Mittelzone gesetzte Treppenkerne strukturieren das Gebäude sowohl statisch als auch räumlich. Als betonierte Kerne verbinden sie sich mit dem Untergeschoss und bilden das Rückgrat des Gebäudes. Das eingeführte Stützenraster gewährleistet eine maximale Nutzungsflexibilität. Die Schnittstelle der beiden Gebäudeteile über dem Durchgang ist als flexible Schaltzone ausgebildet, die je nach gewünschter Nutzung dem einen oder dem anderen Gebäudeteil zugeschlagen werden kann. Eine gemeinsame Tiefgarage im ersten Untergeschoss erschliesst alle Treppenkerne, während im zweiten Untergeschoss mit kleinerem Fussabdruck alle Technikräume untergebracht sind.
Adresse: Der Gebäudeteil C ist auf die geplante Nutzung des Grossmieters ausgelegt. Ein ausladendes Vordach und ein Rückzug der Fassade markieren den Haupteingang des Single Tenants an der Bürgenstrasse. Von aussen ist der grosszügige Wartebereich für Besucher einsehbar. Ein repräsentativer Empfangs-Desk und Zutrittssysteme vermitteln zwischen internem und externem Bereich.
Atrium: Das Herzstück des Gebäudes C bildet das dahinter liegende Atrium, das hell und grosszügig ausgestaltet ist und über eine spiralartige Treppe alle Geschosse repräsentativ miteinander verbindet. Es liegt zentral im Gebäudeteil C, eingespannt zwischen den beiden Kerne, die mit Liften und Fluchttreppen ausgestattet sind. Diese sind jedoch so ausgebildet, dass sie zum Atrium hin grossflächig verglast sind, wodurch kurze Distanzen über die Geschosse hinweg einfach überwunden werden können. Als verbindende, repräsentative Vertikalerschliessung stellt das Atrium die visuelle und räumliche Verbindung über die Geschosse hinweg sicher und ermöglicht den Mitarbeitenden kurze Wege und eine gute Orientierung. Mit Steharbeitsplätzen und Lounge-Bereichen ausgestattet bietet sie zudem die Möglichkeit für den Informellen Austausch der Mitarbeitenden.
Plaza: Das erste Obergeschoss ist als öffentliche Plaza ausgebildet. Hier befinden sich Personalrestaurant mit Free-Flow, Work-Café, Konferenz- und Meetingräume sowie verschieden Amenities. Die Plaza ist für die Mitarbeitenden gut auffindbar und als Ort der Begegnung und des Austauschs ausgebildet. Externe Gäste gelangen über den Empfang und die Spiraltreppe direkt in den Konferenzbereich. Dieser ist so ausgestaltet, dass die mittig platzierten Konferenzräume flexibel zu grösseren Einheiten zusammen gefasst werden können. Sie können jedoch auch komplett zur Seite geschoben werden, wodurch sich das Work-Café in eine grosse Town-Hall für Meetings mit 200 Personen umwandeln lässt.
Bürokonzept: Bei der Entwicklung des Bürokonzepts wurde grossen Wert auf nutzungsspezifische Flexibilität sowie auf eine optimale Belichtung gelegt. Das Atrium belichtet die Mitte des Gebäudes, so dass Arbeitsplätze auch in der Nähe des Atriums angelegt werden können. Ein Fassadenraster von 2.70 Metern, kurze Erschiessungswege und eine einfache Leitungsführung ermöglichen es, die Büroflächen flexibel als Open Space oder als Einzelbüros zu nutzen.
Das Bürolayout des Grossmieters basiert auf dem Konzept des „Activity Based Working“ und dem Leitgedanken „Your Office Is Where You Are“. Der gesamte Gebäudeteil des Hauptmieters ist so konzipiert, dass überall – im Atrium, auf den Balkonen, im Café, in der Bürolandschaft oder auf dem Dach des Attikageschosses – gearbeitet werden kann und soll. Die Mitarbeiter sucht sich dabei die für ihre Tätigkeit die gerade am besten geeignete Arbeitsumgebung aus; feste Arbeitsplätze gibt es nicht. Akustisch abgetrennte und mit einem Vorhang abtrennbare „Working Pills“ zonieren die Bürolandschaft in einzelne Neighbourhoods unterschiedlicher Grösse. Sie stehen für Telefongespräche, konzentrierte Einzelarbeit oder Meetings zur Verfügung und können individuell gebucht werden. Der Standort der „Working Pills“ innerhalb der Bürolandschaft ist flexibel. Er kann je nach gewünschter Grösse der Neighbourhood variiert werden.
Erdgeschossnutzung Öffentliche Erdgeschossnutzungen sind ein wichtiger Faktor für die Attraktivität des neuen Areals Rösslimatt. Der Platzierung der Gastro-, Atelier- und Gewerbeflächen wird deshalb grösste Beachtung geschenkt. Die Gebäudeköpfe entlang der Allee, entlang des neuen Parkbandes sowie die Flächen direkt beim Durchgang wurden dabei als Orte mit dem höchsten zu erwartenden Publikumsverkehr ausgelotet. Das grösste Potenzial für solche Flächen liegt schwergewichtig beim Erdgeschoss entlang der Güterstrasse. Um die Attraktivität dieses Standorts zu stärken sind hier Gastro-, Atelier- und Gewerbeflächen vorgesehen, die sich über interne Treppen ins 1. Obergeschoss erweitern lassen.
–
Erarbeitet mit Demuth Hagenmüller & Lamprecht Architekten
Zusammenarbeit mit Alessandra Villa Architektur
Mitarbeit Wettbewerb
Lilian Demuth, Sandra Hagenmüller, Andreas Lamprecht, Alessandra Villa
Mitarbeit Planung und Ausführung
Bernard Resewski, Andreas Lober, Federico Farinatti, Paula Seeling, Manuel Oswald, Maria Milic Sticca, Jan Pelcik, Sandra Hagenmüller, Andreas Lamprecht
Bauherrschaft
SBB Immobilien AG
Baumanagagement
Caretta + Weidmann AG
Totalunternehmer
Implenia Schweiz AG
Landschaftsarchitekt: w+s Landschaftsarchitekten AG
Ingenieur: Walt Galmarini AG
HLKS-Planer: ADZ AG
Elektroplaner: Boess AG
Bauphysik: Durable GmbH
Fassade: Mebatech AG
Lichtplanung: Reflexion AG
Brandschutz: Makiol Wiederkehr AG
BÜRO- UND GEWERBEHAUS RÖSSLIMATT
LUZERN, 2022-2025
EINGELADENER PROJEKTWETTBEWERB, 2020, 1. Preis
Als Auftakt für das Quartier Rösslimatt fasst der neue Stadtbaustein die Baufelder B und C zu einem einzigen, differenzierten und vielschichtigen Gebäude zusammen. Gleichermassen robust und einladend im Sockelbereich wird der öffentliche Anspruch des Gebäudes markiert. Die darüber liegenden Bürogeschosse werden von einem Kleid aus Metall und Glas umhüllt und stellen den Austausch einer modernen Arbeitswelt zwischen innen und aussen her. An ausgezeichneten städtebaulichen Stellen zieht sich die Bürofassade zurück und schafft begrünte, klimatische Pufferzonen. Wie Köpfe und Taillen helfen sie, das Gebäude zu zonieren, ihm einen Massstab zu geben und im Quartier zu verankern. Während die durchgängigen Balkone an den Stirnseiten Blicke zur Allee und in den Park freigeben, leiten die Einzüge die Fussgänger durch die zweigeschossige Passage.
Drei in der Mittelzone gesetzte Treppenkerne strukturieren das Gebäude sowohl statisch als auch räumlich. Als betonierte Kerne verbinden sie sich mit dem Untergeschoss und bilden das Rückgrat des Gebäudes. Das eingeführte Stützenraster gewährleistet eine maximale Nutzungsflexibilität. Die Schnittstelle der beiden Gebäudeteile über dem Durchgang ist als flexible Schaltzone ausgebildet, die je nach gewünschter Nutzung dem einen oder dem anderen Gebäudeteil zugeschlagen werden kann. Eine gemeinsame Tiefgarage im ersten Untergeschoss erschliesst alle Treppenkerne, während im zweiten Untergeschoss mit kleinerem Fussabdruck alle Technikräume untergebracht sind.
Adresse: Der Gebäudeteil C ist auf die geplante Nutzung des Grossmieters ausgelegt. Ein ausladendes Vordach und ein Rückzug der Fassade markieren den Haupteingang des Single Tenants an der Bürgenstrasse. Von aussen ist der grosszügige Wartebereich für Besucher einsehbar. Ein repräsentativer Empfangs-Desk und Zutrittssysteme vermitteln zwischen internem und externem Bereich.
Atrium: Das Herzstück des Gebäudes C bildet das dahinter liegende Atrium, das hell und grosszügig ausgestaltet ist und über eine spiralartige Treppe alle Geschosse repräsentativ miteinander verbindet. Es liegt zentral im Gebäudeteil C, eingespannt zwischen den beiden Kerne, die mit Liften und Fluchttreppen ausgestattet sind. Diese sind jedoch so ausgebildet, dass sie zum Atrium hin grossflächig verglast sind, wodurch kurze Distanzen über die Geschosse hinweg einfach überwunden werden können. Als verbindende, repräsentative Vertikalerschliessung stellt das Atrium die visuelle und räumliche Verbindung über die Geschosse hinweg sicher und ermöglicht den Mitarbeitenden kurze Wege und eine gute Orientierung. Mit Steharbeitsplätzen und Lounge-Bereichen ausgestattet bietet sie zudem die Möglichkeit für den Informellen Austausch der Mitarbeitenden.
Plaza: Das erste Obergeschoss ist als öffentliche Plaza ausgebildet. Hier befinden sich Personalrestaurant mit Free-Flow, Work-Café, Konferenz- und Meetingräume sowie verschieden Amenities. Die Plaza ist für die Mitarbeitenden gut auffindbar und als Ort der Begegnung und des Austauschs ausgebildet. Externe Gäste gelangen über den Empfang und die Spiraltreppe direkt in den Konferenzbereich. Dieser ist so ausgestaltet, dass die mittig platzierten Konferenzräume flexibel zu grösseren Einheiten zusammen gefasst werden können. Sie können jedoch auch komplett zur Seite geschoben werden, wodurch sich das Work-Café in eine grosse Town-Hall für Meetings mit 200 Personen umwandeln lässt.
Bürokonzept: Bei der Entwicklung des Bürokonzepts wurde grossen Wert auf nutzungsspezifische Flexibilität sowie auf eine optimale Belichtung gelegt. Das Atrium belichtet die Mitte des Gebäudes, so dass Arbeitsplätze auch in der Nähe des Atriums angelegt werden können. Ein Fassadenraster von 2.70 Metern, kurze Erschiessungswege und eine einfache Leitungsführung ermöglichen es, die Büroflächen flexibel als Open Space oder als Einzelbüros zu nutzen.
Das Bürolayout des Grossmieters basiert auf dem Konzept des „Activity Based Working“ und dem Leitgedanken „Your Office Is Where You Are“. Der gesamte Gebäudeteil des Hauptmieters ist so konzipiert, dass überall – im Atrium, auf den Balkonen, im Café, in der Bürolandschaft oder auf dem Dach des Attikageschosses – gearbeitet werden kann und soll. Die Mitarbeiter sucht sich dabei die für ihre Tätigkeit die gerade am besten geeignete Arbeitsumgebung aus; feste Arbeitsplätze gibt es nicht. Akustisch abgetrennte und mit einem Vorhang abtrennbare „Working Pills“ zonieren die Bürolandschaft in einzelne Neighbourhoods unterschiedlicher Grösse. Sie stehen für Telefongespräche, konzentrierte Einzelarbeit oder Meetings zur Verfügung und können individuell gebucht werden. Der Standort der „Working Pills“ innerhalb der Bürolandschaft ist flexibel. Er kann je nach gewünschter Grösse der Neighbourhood variiert werden.
Erdgeschossnutzung Öffentliche Erdgeschossnutzungen sind ein wichtiger Faktor für die Attraktivität des neuen Areals Rösslimatt. Der Platzierung der Gastro-, Atelier- und Gewerbeflächen wird deshalb grösste Beachtung geschenkt. Die Gebäudeköpfe entlang der Allee, entlang des neuen Parkbandes sowie die Flächen direkt beim Durchgang wurden dabei als Orte mit dem höchsten zu erwartenden Publikumsverkehr ausgelotet. Das grösste Potenzial für solche Flächen liegt schwergewichtig beim Erdgeschoss entlang der Güterstrasse. Um die Attraktivität dieses Standorts zu stärken sind hier Gastro-, Atelier- und Gewerbeflächen vorgesehen, die sich über interne Treppen ins 1. Obergeschoss erweitern lassen.
–
Erarbeitet mit Demuth Hagenmüller & Lamprecht Architekten
Zusammenarbeit mit Alessandra Villa Architektur
Mitarbeit Wettbewerb
Lilian Demuth, Sandra Hagenmüller, Andreas Lamprecht, Alessandra Villa
Mitarbeit Planung und Ausführung
Bernard Resewski, Andreas Lober, Federico Farinatti, Paula Seeling, Manuel Oswald, Maria Milic Sticca, Jan Pelcik, Sandra Hagenmüller, Andreas Lamprecht
Bauherrschaft
SBB Immobilien AG
Baumanagagement
Caretta + Weidmann AG
Totalunternehmer
Implenia Schweiz AG
Landschaftsarchitekt: w+s Landschaftsarchitekten AG
Ingenieur: Walt Galmarini AG
HLKS-Planer: ADZ AG
Elektroplaner: Boess AG
Bauphysik: Durable GmbH
Fassade: Mebatech AG
Lichtplanung: Reflexion AG
Brandschutz: Makiol Wiederkehr AG
BÜRO- UND GEWERBEHAUS RÖSSLIMATT
LUZERN, 2022-2025
EINGELADENER PROJEKTWETTBEWERB, 2020, 1. Preis
Als Auftakt für das Quartier Rösslimatt fasst der neue Stadtbaustein die Baufelder B und C zu einem einzigen, differenzierten und vielschichtigen Gebäude zusammen. Gleichermassen robust und einladend im Sockelbereich wird der öffentliche Anspruch des Gebäudes markiert. Die darüber liegenden Bürogeschosse werden von einem Kleid aus Metall und Glas umhüllt und stellen den Austausch einer modernen Arbeitswelt zwischen innen und aussen her. An ausgezeichneten städtebaulichen Stellen zieht sich die Bürofassade zurück und schafft begrünte, klimatische Pufferzonen. Wie Köpfe und Taillen helfen sie, das Gebäude zu zonieren, ihm einen Massstab zu geben und im Quartier zu verankern. Während die durchgängigen Balkone an den Stirnseiten Blicke zur Allee und in den Park freigeben, leiten die Einzüge die Fussgänger durch die zweigeschossige Passage.
Drei in der Mittelzone gesetzte Treppenkerne strukturieren das Gebäude sowohl statisch als auch räumlich. Als betonierte Kerne verbinden sie sich mit dem Untergeschoss und bilden das Rückgrat des Gebäudes. Das eingeführte Stützenraster gewährleistet eine maximale Nutzungsflexibilität. Die Schnittstelle der beiden Gebäudeteile über dem Durchgang ist als flexible Schaltzone ausgebildet, die je nach gewünschter Nutzung dem einen oder dem anderen Gebäudeteil zugeschlagen werden kann. Eine gemeinsame Tiefgarage im ersten Untergeschoss erschliesst alle Treppenkerne, während im zweiten Untergeschoss mit kleinerem Fussabdruck alle Technikräume untergebracht sind.
Adresse: Der Gebäudeteil C ist auf die geplante Nutzung des Grossmieters ausgelegt. Ein ausladendes Vordach und ein Rückzug der Fassade markieren den Haupteingang des Single Tenants an der Bürgenstrasse. Von aussen ist der grosszügige Wartebereich für Besucher einsehbar. Ein repräsentativer Empfangs-Desk und Zutrittssysteme vermitteln zwischen internem und externem Bereich.
Atrium: Das Herzstück des Gebäudes C bildet das dahinter liegende Atrium, das hell und grosszügig ausgestaltet ist und über eine spiralartige Treppe alle Geschosse repräsentativ miteinander verbindet. Es liegt zentral im Gebäudeteil C, eingespannt zwischen den beiden Kerne, die mit Liften und Fluchttreppen ausgestattet sind. Diese sind jedoch so ausgebildet, dass sie zum Atrium hin grossflächig verglast sind, wodurch kurze Distanzen über die Geschosse hinweg einfach überwunden werden können. Als verbindende, repräsentative Vertikalerschliessung stellt das Atrium die visuelle und räumliche Verbindung über die Geschosse hinweg sicher und ermöglicht den Mitarbeitenden kurze Wege und eine gute Orientierung. Mit Steharbeitsplätzen und Lounge-Bereichen ausgestattet bietet sie zudem die Möglichkeit für den Informellen Austausch der Mitarbeitenden.
Plaza: Das erste Obergeschoss ist als öffentliche Plaza ausgebildet. Hier befinden sich Personalrestaurant mit Free-Flow, Work-Café, Konferenz- und Meetingräume sowie verschieden Amenities. Die Plaza ist für die Mitarbeitenden gut auffindbar und als Ort der Begegnung und des Austauschs ausgebildet. Externe Gäste gelangen über den Empfang und die Spiraltreppe direkt in den Konferenzbereich. Dieser ist so ausgestaltet, dass die mittig platzierten Konferenzräume flexibel zu grösseren Einheiten zusammen gefasst werden können. Sie können jedoch auch komplett zur Seite geschoben werden, wodurch sich das Work-Café in eine grosse Town-Hall für Meetings mit 200 Personen umwandeln lässt.
Bürokonzept: Bei der Entwicklung des Bürokonzepts wurde grossen Wert auf nutzungsspezifische Flexibilität sowie auf eine optimale Belichtung gelegt. Das Atrium belichtet die Mitte des Gebäudes, so dass Arbeitsplätze auch in der Nähe des Atriums angelegt werden können. Ein Fassadenraster von 2.70 Metern, kurze Erschiessungswege und eine einfache Leitungsführung ermöglichen es, die Büroflächen flexibel als Open Space oder als Einzelbüros zu nutzen.
Das Bürolayout des Grossmieters basiert auf dem Konzept des „Activity Based Working“ und dem Leitgedanken „Your Office Is Where You Are“. Der gesamte Gebäudeteil des Hauptmieters ist so konzipiert, dass überall – im Atrium, auf den Balkonen, im Café, in der Bürolandschaft oder auf dem Dach des Attikageschosses – gearbeitet werden kann und soll. Die Mitarbeiter sucht sich dabei die für ihre Tätigkeit die gerade am besten geeignete Arbeitsumgebung aus; feste Arbeitsplätze gibt es nicht. Akustisch abgetrennte und mit einem Vorhang abtrennbare „Working Pills“ zonieren die Bürolandschaft in einzelne Neighbourhoods unterschiedlicher Grösse. Sie stehen für Telefongespräche, konzentrierte Einzelarbeit oder Meetings zur Verfügung und können individuell gebucht werden. Der Standort der „Working Pills“ innerhalb der Bürolandschaft ist flexibel. Er kann je nach gewünschter Grösse der Neighbourhood variiert werden.
Erdgeschossnutzung Öffentliche Erdgeschossnutzungen sind ein wichtiger Faktor für die Attraktivität des neuen Areals Rösslimatt. Der Platzierung der Gastro-, Atelier- und Gewerbeflächen wird deshalb grösste Beachtung geschenkt. Die Gebäudeköpfe entlang der Allee, entlang des neuen Parkbandes sowie die Flächen direkt beim Durchgang wurden dabei als Orte mit dem höchsten zu erwartenden Publikumsverkehr ausgelotet. Das grösste Potenzial für solche Flächen liegt schwergewichtig beim Erdgeschoss entlang der Güterstrasse. Um die Attraktivität dieses Standorts zu stärken sind hier Gastro-, Atelier- und Gewerbeflächen vorgesehen, die sich über interne Treppen ins 1. Obergeschoss erweitern lassen.
–
Erarbeitet mit Demuth Hagenmüller & Lamprecht Architekten
Zusammenarbeit mit Alessandra Villa Architektur
Mitarbeit Wettbewerb
Lilian Demuth, Sandra Hagenmüller, Andreas Lamprecht, Alessandra Villa
Mitarbeit Planung und Ausführung
Bernard Resewski, Andreas Lober, Federico Farinatti, Paula Seeling, Manuel Oswald, Maria Milic Sticca, Jan Pelcik, Sandra Hagenmüller, Andreas Lamprecht
Bauherrschaft
SBB Immobilien AG
Baumanagagement
Caretta + Weidmann AG
Totalunternehmer
Implenia Schweiz AG
Landschaftsarchitekt: w+s Landschaftsarchitekten AG
Ingenieur: Walt Galmarini AG
HLKS-Planer: ADZ AG
Elektroplaner: Boess AG
Bauphysik: Durable GmbH
Fassade: Mebatech AG
Lichtplanung: Reflexion AG
Brandschutz: Makiol Wiederkehr AG
BÜRO- UND GEWERBEHAUS RÖSSLIMATT
LUZERN, 2022-2025
EINGELADENER PROJEKTWETTBEWERB, 2020, 1. Preis
Als Auftakt für das Quartier Rösslimatt fasst der neue Stadtbaustein die Baufelder B und C zu einem einzigen, differenzierten und vielschichtigen Gebäude zusammen. Gleichermassen robust und einladend im Sockelbereich wird der öffentliche Anspruch des Gebäudes markiert. Die darüber liegenden Bürogeschosse werden von einem Kleid aus Metall und Glas umhüllt und stellen den Austausch einer modernen Arbeitswelt zwischen innen und aussen her. An ausgezeichneten städtebaulichen Stellen zieht sich die Bürofassade zurück und schafft begrünte, klimatische Pufferzonen. Wie Köpfe und Taillen helfen sie, das Gebäude zu zonieren, ihm einen Massstab zu geben und im Quartier zu verankern. Während die durchgängigen Balkone an den Stirnseiten Blicke zur Allee und in den Park freigeben, leiten die Einzüge die Fussgänger durch die zweigeschossige Passage.
Drei in der Mittelzone gesetzte Treppenkerne strukturieren das Gebäude sowohl statisch als auch räumlich. Als betonierte Kerne verbinden sie sich mit dem Untergeschoss und bilden das Rückgrat des Gebäudes. Das eingeführte Stützenraster gewährleistet eine maximale Nutzungsflexibilität. Die Schnittstelle der beiden Gebäudeteile über dem Durchgang ist als flexible Schaltzone ausgebildet, die je nach gewünschter Nutzung dem einen oder dem anderen Gebäudeteil zugeschlagen werden kann. Eine gemeinsame Tiefgarage im ersten Untergeschoss erschliesst alle Treppenkerne, während im zweiten Untergeschoss mit kleinerem Fussabdruck alle Technikräume untergebracht sind.
Adresse: Der Gebäudeteil C ist auf die geplante Nutzung des Grossmieters ausgelegt. Ein ausladendes Vordach und ein Rückzug der Fassade markieren den Haupteingang des Single Tenants an der Bürgenstrasse. Von aussen ist der grosszügige Wartebereich für Besucher einsehbar. Ein repräsentativer Empfangs-Desk und Zutrittssysteme vermitteln zwischen internem und externem Bereich.
Atrium: Das Herzstück des Gebäudes C bildet das dahinter liegende Atrium, das hell und grosszügig ausgestaltet ist und über eine spiralartige Treppe alle Geschosse repräsentativ miteinander verbindet. Es liegt zentral im Gebäudeteil C, eingespannt zwischen den beiden Kerne, die mit Liften und Fluchttreppen ausgestattet sind. Diese sind jedoch so ausgebildet, dass sie zum Atrium hin grossflächig verglast sind, wodurch kurze Distanzen über die Geschosse hinweg einfach überwunden werden können. Als verbindende, repräsentative Vertikalerschliessung stellt das Atrium die visuelle und räumliche Verbindung über die Geschosse hinweg sicher und ermöglicht den Mitarbeitenden kurze Wege und eine gute Orientierung. Mit Steharbeitsplätzen und Lounge-Bereichen ausgestattet bietet sie zudem die Möglichkeit für den Informellen Austausch der Mitarbeitenden.
Plaza: Das erste Obergeschoss ist als öffentliche Plaza ausgebildet. Hier befinden sich Personalrestaurant mit Free-Flow, Work-Café, Konferenz- und Meetingräume sowie verschieden Amenities. Die Plaza ist für die Mitarbeitenden gut auffindbar und als Ort der Begegnung und des Austauschs ausgebildet. Externe Gäste gelangen über den Empfang und die Spiraltreppe direkt in den Konferenzbereich. Dieser ist so ausgestaltet, dass die mittig platzierten Konferenzräume flexibel zu grösseren Einheiten zusammen gefasst werden können. Sie können jedoch auch komplett zur Seite geschoben werden, wodurch sich das Work-Café in eine grosse Town-Hall für Meetings mit 200 Personen umwandeln lässt.
Bürokonzept: Bei der Entwicklung des Bürokonzepts wurde grossen Wert auf nutzungsspezifische Flexibilität sowie auf eine optimale Belichtung gelegt. Das Atrium belichtet die Mitte des Gebäudes, so dass Arbeitsplätze auch in der Nähe des Atriums angelegt werden können. Ein Fassadenraster von 2.70 Metern, kurze Erschiessungswege und eine einfache Leitungsführung ermöglichen es, die Büroflächen flexibel als Open Space oder als Einzelbüros zu nutzen.
Das Bürolayout des Grossmieters basiert auf dem Konzept des „Activity Based Working“ und dem Leitgedanken „Your Office Is Where You Are“. Der gesamte Gebäudeteil des Hauptmieters ist so konzipiert, dass überall – im Atrium, auf den Balkonen, im Café, in der Bürolandschaft oder auf dem Dach des Attikageschosses – gearbeitet werden kann und soll. Die Mitarbeiter sucht sich dabei die für ihre Tätigkeit die gerade am besten geeignete Arbeitsumgebung aus; feste Arbeitsplätze gibt es nicht. Akustisch abgetrennte und mit einem Vorhang abtrennbare „Working Pills“ zonieren die Bürolandschaft in einzelne Neighbourhoods unterschiedlicher Grösse. Sie stehen für Telefongespräche, konzentrierte Einzelarbeit oder Meetings zur Verfügung und können individuell gebucht werden. Der Standort der „Working Pills“ innerhalb der Bürolandschaft ist flexibel. Er kann je nach gewünschter Grösse der Neighbourhood variiert werden.
Erdgeschossnutzung Öffentliche Erdgeschossnutzungen sind ein wichtiger Faktor für die Attraktivität des neuen Areals Rösslimatt. Der Platzierung der Gastro-, Atelier- und Gewerbeflächen wird deshalb grösste Beachtung geschenkt. Die Gebäudeköpfe entlang der Allee, entlang des neuen Parkbandes sowie die Flächen direkt beim Durchgang wurden dabei als Orte mit dem höchsten zu erwartenden Publikumsverkehr ausgelotet. Das grösste Potenzial für solche Flächen liegt schwergewichtig beim Erdgeschoss entlang der Güterstrasse. Um die Attraktivität dieses Standorts zu stärken sind hier Gastro-, Atelier- und Gewerbeflächen vorgesehen, die sich über interne Treppen ins 1. Obergeschoss erweitern lassen.
–
Erarbeitet mit Demuth Hagenmüller & Lamprecht Architekten
Zusammenarbeit mit Alessandra Villa Architektur
Mitarbeit Wettbewerb
Lilian Demuth, Sandra Hagenmüller, Andreas Lamprecht, Alessandra Villa
Mitarbeit Planung und Ausführung
Bernard Resewski, Andreas Lober, Federico Farinatti, Paula Seeling, Manuel Oswald, Maria Milic Sticca, Jan Pelcik, Sandra Hagenmüller, Andreas Lamprecht
Bauherrschaft
SBB Immobilien AG
Baumanagagement
Caretta + Weidmann AG
Totalunternehmer
Implenia Schweiz AG
Landschaftsarchitekt: w+s Landschaftsarchitekten AG
Ingenieur: Walt Galmarini AG
HLKS-Planer: ADZ AG
Elektroplaner: Boess AG
Bauphysik: Durable GmbH
Fassade: Mebatech AG
Lichtplanung: Reflexion AG
Brandschutz: Makiol Wiederkehr AG
BÜRO- UND GEWERBEHAUS RÖSSLIMATT
LUZERN, 2022-2025
EINGELADENER PROJEKTWETTBEWERB, 2020, 1. Preis
Als Auftakt für das Quartier Rösslimatt fasst der neue Stadtbaustein die Baufelder B und C zu einem einzigen, differenzierten und vielschichtigen Gebäude zusammen. Gleichermassen robust und einladend im Sockelbereich wird der öffentliche Anspruch des Gebäudes markiert. Die darüber liegenden Bürogeschosse werden von einem Kleid aus Metall und Glas umhüllt und stellen den Austausch einer modernen Arbeitswelt zwischen innen und aussen her. An ausgezeichneten städtebaulichen Stellen zieht sich die Bürofassade zurück und schafft begrünte, klimatische Pufferzonen. Wie Köpfe und Taillen helfen sie, das Gebäude zu zonieren, ihm einen Massstab zu geben und im Quartier zu verankern. Während die durchgängigen Balkone an den Stirnseiten Blicke zur Allee und in den Park freigeben, leiten die Einzüge die Fussgänger durch die zweigeschossige Passage.
Drei in der Mittelzone gesetzte Treppenkerne strukturieren das Gebäude sowohl statisch als auch räumlich. Als betonierte Kerne verbinden sie sich mit dem Untergeschoss und bilden das Rückgrat des Gebäudes. Das eingeführte Stützenraster gewährleistet eine maximale Nutzungsflexibilität. Die Schnittstelle der beiden Gebäudeteile über dem Durchgang ist als flexible Schaltzone ausgebildet, die je nach gewünschter Nutzung dem einen oder dem anderen Gebäudeteil zugeschlagen werden kann. Eine gemeinsame Tiefgarage im ersten Untergeschoss erschliesst alle Treppenkerne, während im zweiten Untergeschoss mit kleinerem Fussabdruck alle Technikräume untergebracht sind.
Adresse: Der Gebäudeteil C ist auf die geplante Nutzung des Grossmieters ausgelegt. Ein ausladendes Vordach und ein Rückzug der Fassade markieren den Haupteingang des Single Tenants an der Bürgenstrasse. Von aussen ist der grosszügige Wartebereich für Besucher einsehbar. Ein repräsentativer Empfangs-Desk und Zutrittssysteme vermitteln zwischen internem und externem Bereich.
Atrium: Das Herzstück des Gebäudes C bildet das dahinter liegende Atrium, das hell und grosszügig ausgestaltet ist und über eine spiralartige Treppe alle Geschosse repräsentativ miteinander verbindet. Es liegt zentral im Gebäudeteil C, eingespannt zwischen den beiden Kerne, die mit Liften und Fluchttreppen ausgestattet sind. Diese sind jedoch so ausgebildet, dass sie zum Atrium hin grossflächig verglast sind, wodurch kurze Distanzen über die Geschosse hinweg einfach überwunden werden können. Als verbindende, repräsentative Vertikalerschliessung stellt das Atrium die visuelle und räumliche Verbindung über die Geschosse hinweg sicher und ermöglicht den Mitarbeitenden kurze Wege und eine gute Orientierung. Mit Steharbeitsplätzen und Lounge-Bereichen ausgestattet bietet sie zudem die Möglichkeit für den Informellen Austausch der Mitarbeitenden.
Plaza: Das erste Obergeschoss ist als öffentliche Plaza ausgebildet. Hier befinden sich Personalrestaurant mit Free-Flow, Work-Café, Konferenz- und Meetingräume sowie verschieden Amenities. Die Plaza ist für die Mitarbeitenden gut auffindbar und als Ort der Begegnung und des Austauschs ausgebildet. Externe Gäste gelangen über den Empfang und die Spiraltreppe direkt in den Konferenzbereich. Dieser ist so ausgestaltet, dass die mittig platzierten Konferenzräume flexibel zu grösseren Einheiten zusammen gefasst werden können. Sie können jedoch auch komplett zur Seite geschoben werden, wodurch sich das Work-Café in eine grosse Town-Hall für Meetings mit 200 Personen umwandeln lässt.
Bürokonzept: Bei der Entwicklung des Bürokonzepts wurde grossen Wert auf nutzungsspezifische Flexibilität sowie auf eine optimale Belichtung gelegt. Das Atrium belichtet die Mitte des Gebäudes, so dass Arbeitsplätze auch in der Nähe des Atriums angelegt werden können. Ein Fassadenraster von 2.70 Metern, kurze Erschiessungswege und eine einfache Leitungsführung ermöglichen es, die Büroflächen flexibel als Open Space oder als Einzelbüros zu nutzen.
Das Bürolayout des Grossmieters basiert auf dem Konzept des „Activity Based Working“ und dem Leitgedanken „Your Office Is Where You Are“. Der gesamte Gebäudeteil des Hauptmieters ist so konzipiert, dass überall – im Atrium, auf den Balkonen, im Café, in der Bürolandschaft oder auf dem Dach des Attikageschosses – gearbeitet werden kann und soll. Die Mitarbeiter sucht sich dabei die für ihre Tätigkeit die gerade am besten geeignete Arbeitsumgebung aus; feste Arbeitsplätze gibt es nicht. Akustisch abgetrennte und mit einem Vorhang abtrennbare „Working Pills“ zonieren die Bürolandschaft in einzelne Neighbourhoods unterschiedlicher Grösse. Sie stehen für Telefongespräche, konzentrierte Einzelarbeit oder Meetings zur Verfügung und können individuell gebucht werden. Der Standort der „Working Pills“ innerhalb der Bürolandschaft ist flexibel. Er kann je nach gewünschter Grösse der Neighbourhood variiert werden.
Erdgeschossnutzung Öffentliche Erdgeschossnutzungen sind ein wichtiger Faktor für die Attraktivität des neuen Areals Rösslimatt. Der Platzierung der Gastro-, Atelier- und Gewerbeflächen wird deshalb grösste Beachtung geschenkt. Die Gebäudeköpfe entlang der Allee, entlang des neuen Parkbandes sowie die Flächen direkt beim Durchgang wurden dabei als Orte mit dem höchsten zu erwartenden Publikumsverkehr ausgelotet. Das grösste Potenzial für solche Flächen liegt schwergewichtig beim Erdgeschoss entlang der Güterstrasse. Um die Attraktivität dieses Standorts zu stärken sind hier Gastro-, Atelier- und Gewerbeflächen vorgesehen, die sich über interne Treppen ins 1. Obergeschoss erweitern lassen.
–
Erarbeitet mit Demuth Hagenmüller & Lamprecht Architekten
Zusammenarbeit mit Alessandra Villa Architektur
Mitarbeit Wettbewerb
Lilian Demuth, Sandra Hagenmüller, Andreas Lamprecht, Alessandra Villa
Mitarbeit Planung und Ausführung
Bernard Resewski, Andreas Lober, Federico Farinatti, Paula Seeling, Manuel Oswald, Maria Milic Sticca, Jan Pelcik, Sandra Hagenmüller, Andreas Lamprecht
Bauherrschaft
SBB Immobilien AG
Baumanagagement
Caretta + Weidmann AG
Totalunternehmer
Implenia Schweiz AG
Landschaftsarchitekt: w+s Landschaftsarchitekten AG
Ingenieur: Walt Galmarini AG
HLKS-Planer: ADZ AG
Elektroplaner: Boess AG
Bauphysik: Durable GmbH
Fassade: Mebatech AG
Lichtplanung: Reflexion AG
Brandschutz: Makiol Wiederkehr AG
BÜRO- UND GEWERBEHAUS RÖSSLIMATT
LUZERN, 2022-2025
EINGELADENER PROJEKTWETTBEWERB, 2020, 1. Preis
Als Auftakt für das Quartier Rösslimatt fasst der neue Stadtbaustein die Baufelder B und C zu einem einzigen, differenzierten und vielschichtigen Gebäude zusammen. Gleichermassen robust und einladend im Sockelbereich wird der öffentliche Anspruch des Gebäudes markiert. Die darüber liegenden Bürogeschosse werden von einem Kleid aus Metall und Glas umhüllt und stellen den Austausch einer modernen Arbeitswelt zwischen innen und aussen her. An ausgezeichneten städtebaulichen Stellen zieht sich die Bürofassade zurück und schafft begrünte, klimatische Pufferzonen. Wie Köpfe und Taillen helfen sie, das Gebäude zu zonieren, ihm einen Massstab zu geben und im Quartier zu verankern. Während die durchgängigen Balkone an den Stirnseiten Blicke zur Allee und in den Park freigeben, leiten die Einzüge die Fussgänger durch die zweigeschossige Passage.
Drei in der Mittelzone gesetzte Treppenkerne strukturieren das Gebäude sowohl statisch als auch räumlich. Als betonierte Kerne verbinden sie sich mit dem Untergeschoss und bilden das Rückgrat des Gebäudes. Das eingeführte Stützenraster gewährleistet eine maximale Nutzungsflexibilität. Die Schnittstelle der beiden Gebäudeteile über dem Durchgang ist als flexible Schaltzone ausgebildet, die je nach gewünschter Nutzung dem einen oder dem anderen Gebäudeteil zugeschlagen werden kann. Eine gemeinsame Tiefgarage im ersten Untergeschoss erschliesst alle Treppenkerne, während im zweiten Untergeschoss mit kleinerem Fussabdruck alle Technikräume untergebracht sind.
Adresse: Der Gebäudeteil C ist auf die geplante Nutzung des Grossmieters ausgelegt. Ein ausladendes Vordach und ein Rückzug der Fassade markieren den Haupteingang des Single Tenants an der Bürgenstrasse. Von aussen ist der grosszügige Wartebereich für Besucher einsehbar. Ein repräsentativer Empfangs-Desk und Zutrittssysteme vermitteln zwischen internem und externem Bereich.
Atrium: Das Herzstück des Gebäudes C bildet das dahinter liegende Atrium, das hell und grosszügig ausgestaltet ist und über eine spiralartige Treppe alle Geschosse repräsentativ miteinander verbindet. Es liegt zentral im Gebäudeteil C, eingespannt zwischen den beiden Kerne, die mit Liften und Fluchttreppen ausgestattet sind. Diese sind jedoch so ausgebildet, dass sie zum Atrium hin grossflächig verglast sind, wodurch kurze Distanzen über die Geschosse hinweg einfach überwunden werden können. Als verbindende, repräsentative Vertikalerschliessung stellt das Atrium die visuelle und räumliche Verbindung über die Geschosse hinweg sicher und ermöglicht den Mitarbeitenden kurze Wege und eine gute Orientierung. Mit Steharbeitsplätzen und Lounge-Bereichen ausgestattet bietet sie zudem die Möglichkeit für den Informellen Austausch der Mitarbeitenden.
Plaza: Das erste Obergeschoss ist als öffentliche Plaza ausgebildet. Hier befinden sich Personalrestaurant mit Free-Flow, Work-Café, Konferenz- und Meetingräume sowie verschieden Amenities. Die Plaza ist für die Mitarbeitenden gut auffindbar und als Ort der Begegnung und des Austauschs ausgebildet. Externe Gäste gelangen über den Empfang und die Spiraltreppe direkt in den Konferenzbereich. Dieser ist so ausgestaltet, dass die mittig platzierten Konferenzräume flexibel zu grösseren Einheiten zusammen gefasst werden können. Sie können jedoch auch komplett zur Seite geschoben werden, wodurch sich das Work-Café in eine grosse Town-Hall für Meetings mit 200 Personen umwandeln lässt.
Bürokonzept: Bei der Entwicklung des Bürokonzepts wurde grossen Wert auf nutzungsspezifische Flexibilität sowie auf eine optimale Belichtung gelegt. Das Atrium belichtet die Mitte des Gebäudes, so dass Arbeitsplätze auch in der Nähe des Atriums angelegt werden können. Ein Fassadenraster von 2.70 Metern, kurze Erschiessungswege und eine einfache Leitungsführung ermöglichen es, die Büroflächen flexibel als Open Space oder als Einzelbüros zu nutzen.
Das Bürolayout des Grossmieters basiert auf dem Konzept des „Activity Based Working“ und dem Leitgedanken „Your Office Is Where You Are“. Der gesamte Gebäudeteil des Hauptmieters ist so konzipiert, dass überall – im Atrium, auf den Balkonen, im Café, in der Bürolandschaft oder auf dem Dach des Attikageschosses – gearbeitet werden kann und soll. Die Mitarbeiter sucht sich dabei die für ihre Tätigkeit die gerade am besten geeignete Arbeitsumgebung aus; feste Arbeitsplätze gibt es nicht. Akustisch abgetrennte und mit einem Vorhang abtrennbare „Working Pills“ zonieren die Bürolandschaft in einzelne Neighbourhoods unterschiedlicher Grösse. Sie stehen für Telefongespräche, konzentrierte Einzelarbeit oder Meetings zur Verfügung und können individuell gebucht werden. Der Standort der „Working Pills“ innerhalb der Bürolandschaft ist flexibel. Er kann je nach gewünschter Grösse der Neighbourhood variiert werden.
Erdgeschossnutzung Öffentliche Erdgeschossnutzungen sind ein wichtiger Faktor für die Attraktivität des neuen Areals Rösslimatt. Der Platzierung der Gastro-, Atelier- und Gewerbeflächen wird deshalb grösste Beachtung geschenkt. Die Gebäudeköpfe entlang der Allee, entlang des neuen Parkbandes sowie die Flächen direkt beim Durchgang wurden dabei als Orte mit dem höchsten zu erwartenden Publikumsverkehr ausgelotet. Das grösste Potenzial für solche Flächen liegt schwergewichtig beim Erdgeschoss entlang der Güterstrasse. Um die Attraktivität dieses Standorts zu stärken sind hier Gastro-, Atelier- und Gewerbeflächen vorgesehen, die sich über interne Treppen ins 1. Obergeschoss erweitern lassen.
–
Erarbeitet mit Demuth Hagenmüller & Lamprecht Architekten
Zusammenarbeit mit Alessandra Villa Architektur
Mitarbeit Wettbewerb
Lilian Demuth, Sandra Hagenmüller, Andreas Lamprecht, Alessandra Villa
Mitarbeit Planung und Ausführung
Bernard Resewski, Andreas Lober, Federico Farinatti, Paula Seeling, Manuel Oswald, Maria Milic Sticca, Jan Pelcik, Sandra Hagenmüller, Andreas Lamprecht
Bauherrschaft
SBB Immobilien AG
Baumanagagement
Caretta + Weidmann AG
Totalunternehmer
Implenia Schweiz AG
Landschaftsarchitekt: w+s Landschaftsarchitekten AG
Ingenieur: Walt Galmarini AG
HLKS-Planer: ADZ AG
Elektroplaner: Boess AG
Bauphysik: Durable GmbH
Fassade: Mebatech AG
Lichtplanung: Reflexion AG
Brandschutz: Makiol Wiederkehr AG
BÜRO- UND GEWERBEHAUS RÖSSLIMATT
LUZERN, 2022-2025
EINGELADENER PROJEKTWETTBEWERB, 2020, 1. Preis
Als Auftakt für das Quartier Rösslimatt fasst der neue Stadtbaustein die Baufelder B und C zu einem einzigen, differenzierten und vielschichtigen Gebäude zusammen. Gleichermassen robust und einladend im Sockelbereich wird der öffentliche Anspruch des Gebäudes markiert. Die darüber liegenden Bürogeschosse werden von einem Kleid aus Metall und Glas umhüllt und stellen den Austausch einer modernen Arbeitswelt zwischen innen und aussen her. An ausgezeichneten städtebaulichen Stellen zieht sich die Bürofassade zurück und schafft begrünte, klimatische Pufferzonen. Wie Köpfe und Taillen helfen sie, das Gebäude zu zonieren, ihm einen Massstab zu geben und im Quartier zu verankern. Während die durchgängigen Balkone an den Stirnseiten Blicke zur Allee und in den Park freigeben, leiten die Einzüge die Fussgänger durch die zweigeschossige Passage.
Drei in der Mittelzone gesetzte Treppenkerne strukturieren das Gebäude sowohl statisch als auch räumlich. Als betonierte Kerne verbinden sie sich mit dem Untergeschoss und bilden das Rückgrat des Gebäudes. Das eingeführte Stützenraster gewährleistet eine maximale Nutzungsflexibilität. Die Schnittstelle der beiden Gebäudeteile über dem Durchgang ist als flexible Schaltzone ausgebildet, die je nach gewünschter Nutzung dem einen oder dem anderen Gebäudeteil zugeschlagen werden kann. Eine gemeinsame Tiefgarage im ersten Untergeschoss erschliesst alle Treppenkerne, während im zweiten Untergeschoss mit kleinerem Fussabdruck alle Technikräume untergebracht sind.
Adresse: Der Gebäudeteil C ist auf die geplante Nutzung des Grossmieters ausgelegt. Ein ausladendes Vordach und ein Rückzug der Fassade markieren den Haupteingang des Single Tenants an der Bürgenstrasse. Von aussen ist der grosszügige Wartebereich für Besucher einsehbar. Ein repräsentativer Empfangs-Desk und Zutrittssysteme vermitteln zwischen internem und externem Bereich.
Atrium: Das Herzstück des Gebäudes C bildet das dahinter liegende Atrium, das hell und grosszügig ausgestaltet ist und über eine spiralartige Treppe alle Geschosse repräsentativ miteinander verbindet. Es liegt zentral im Gebäudeteil C, eingespannt zwischen den beiden Kerne, die mit Liften und Fluchttreppen ausgestattet sind. Diese sind jedoch so ausgebildet, dass sie zum Atrium hin grossflächig verglast sind, wodurch kurze Distanzen über die Geschosse hinweg einfach überwunden werden können. Als verbindende, repräsentative Vertikalerschliessung stellt das Atrium die visuelle und räumliche Verbindung über die Geschosse hinweg sicher und ermöglicht den Mitarbeitenden kurze Wege und eine gute Orientierung. Mit Steharbeitsplätzen und Lounge-Bereichen ausgestattet bietet sie zudem die Möglichkeit für den Informellen Austausch der Mitarbeitenden.
Plaza: Das erste Obergeschoss ist als öffentliche Plaza ausgebildet. Hier befinden sich Personalrestaurant mit Free-Flow, Work-Café, Konferenz- und Meetingräume sowie verschieden Amenities. Die Plaza ist für die Mitarbeitenden gut auffindbar und als Ort der Begegnung und des Austauschs ausgebildet. Externe Gäste gelangen über den Empfang und die Spiraltreppe direkt in den Konferenzbereich. Dieser ist so ausgestaltet, dass die mittig platzierten Konferenzräume flexibel zu grösseren Einheiten zusammen gefasst werden können. Sie können jedoch auch komplett zur Seite geschoben werden, wodurch sich das Work-Café in eine grosse Town-Hall für Meetings mit 200 Personen umwandeln lässt.
Bürokonzept: Bei der Entwicklung des Bürokonzepts wurde grossen Wert auf nutzungsspezifische Flexibilität sowie auf eine optimale Belichtung gelegt. Das Atrium belichtet die Mitte des Gebäudes, so dass Arbeitsplätze auch in der Nähe des Atriums angelegt werden können. Ein Fassadenraster von 2.70 Metern, kurze Erschiessungswege und eine einfache Leitungsführung ermöglichen es, die Büroflächen flexibel als Open Space oder als Einzelbüros zu nutzen.
Das Bürolayout des Grossmieters basiert auf dem Konzept des „Activity Based Working“ und dem Leitgedanken „Your Office Is Where You Are“. Der gesamte Gebäudeteil des Hauptmieters ist so konzipiert, dass überall – im Atrium, auf den Balkonen, im Café, in der Bürolandschaft oder auf dem Dach des Attikageschosses – gearbeitet werden kann und soll. Die Mitarbeiter sucht sich dabei die für ihre Tätigkeit die gerade am besten geeignete Arbeitsumgebung aus; feste Arbeitsplätze gibt es nicht. Akustisch abgetrennte und mit einem Vorhang abtrennbare „Working Pills“ zonieren die Bürolandschaft in einzelne Neighbourhoods unterschiedlicher Grösse. Sie stehen für Telefongespräche, konzentrierte Einzelarbeit oder Meetings zur Verfügung und können individuell gebucht werden. Der Standort der „Working Pills“ innerhalb der Bürolandschaft ist flexibel. Er kann je nach gewünschter Grösse der Neighbourhood variiert werden.
Erdgeschossnutzung Öffentliche Erdgeschossnutzungen sind ein wichtiger Faktor für die Attraktivität des neuen Areals Rösslimatt. Der Platzierung der Gastro-, Atelier- und Gewerbeflächen wird deshalb grösste Beachtung geschenkt. Die Gebäudeköpfe entlang der Allee, entlang des neuen Parkbandes sowie die Flächen direkt beim Durchgang wurden dabei als Orte mit dem höchsten zu erwartenden Publikumsverkehr ausgelotet. Das grösste Potenzial für solche Flächen liegt schwergewichtig beim Erdgeschoss entlang der Güterstrasse. Um die Attraktivität dieses Standorts zu stärken sind hier Gastro-, Atelier- und Gewerbeflächen vorgesehen, die sich über interne Treppen ins 1. Obergeschoss erweitern lassen.
–
Erarbeitet mit Demuth Hagenmüller & Lamprecht Architekten
Zusammenarbeit mit Alessandra Villa Architektur
Mitarbeit Wettbewerb
Lilian Demuth, Sandra Hagenmüller, Andreas Lamprecht, Alessandra Villa
Mitarbeit Planung und Ausführung
Bernard Resewski, Andreas Lober, Federico Farinatti, Paula Seeling, Manuel Oswald, Maria Milic Sticca, Jan Pelcik, Sandra Hagenmüller, Andreas Lamprecht
Bauherrschaft
SBB Immobilien AG
Baumanagagement
Caretta + Weidmann AG
Totalunternehmer
Implenia Schweiz AG
Landschaftsarchitekt: w+s Landschaftsarchitekten AG
Ingenieur: Walt Galmarini AG
HLKS-Planer: ADZ AG
Elektroplaner: Boess AG
Bauphysik: Durable GmbH
Fassade: Mebatech AG
Lichtplanung: Reflexion AG
Brandschutz: Makiol Wiederkehr AG
BÜRO- UND GEWERBEHAUS RÖSSLIMATT
LUZERN, 2022-2025
EINGELADENER PROJEKTWETTBEWERB, 2020, 1. Preis
Als Auftakt für das Quartier Rösslimatt fasst der neue Stadtbaustein die Baufelder B und C zu einem einzigen, differenzierten und vielschichtigen Gebäude zusammen. Gleichermassen robust und einladend im Sockelbereich wird der öffentliche Anspruch des Gebäudes markiert. Die darüber liegenden Bürogeschosse werden von einem Kleid aus Metall und Glas umhüllt und stellen den Austausch einer modernen Arbeitswelt zwischen innen und aussen her. An ausgezeichneten städtebaulichen Stellen zieht sich die Bürofassade zurück und schafft begrünte, klimatische Pufferzonen. Wie Köpfe und Taillen helfen sie, das Gebäude zu zonieren, ihm einen Massstab zu geben und im Quartier zu verankern. Während die durchgängigen Balkone an den Stirnseiten Blicke zur Allee und in den Park freigeben, leiten die Einzüge die Fussgänger durch die zweigeschossige Passage.
Drei in der Mittelzone gesetzte Treppenkerne strukturieren das Gebäude sowohl statisch als auch räumlich. Als betonierte Kerne verbinden sie sich mit dem Untergeschoss und bilden das Rückgrat des Gebäudes. Das eingeführte Stützenraster gewährleistet eine maximale Nutzungsflexibilität. Die Schnittstelle der beiden Gebäudeteile über dem Durchgang ist als flexible Schaltzone ausgebildet, die je nach gewünschter Nutzung dem einen oder dem anderen Gebäudeteil zugeschlagen werden kann. Eine gemeinsame Tiefgarage im ersten Untergeschoss erschliesst alle Treppenkerne, während im zweiten Untergeschoss mit kleinerem Fussabdruck alle Technikräume untergebracht sind.
Adresse: Der Gebäudeteil C ist auf die geplante Nutzung des Grossmieters ausgelegt. Ein ausladendes Vordach und ein Rückzug der Fassade markieren den Haupteingang des Single Tenants an der Bürgenstrasse. Von aussen ist der grosszügige Wartebereich für Besucher einsehbar. Ein repräsentativer Empfangs-Desk und Zutrittssysteme vermitteln zwischen internem und externem Bereich.
Atrium: Das Herzstück des Gebäudes C bildet das dahinter liegende Atrium, das hell und grosszügig ausgestaltet ist und über eine spiralartige Treppe alle Geschosse repräsentativ miteinander verbindet. Es liegt zentral im Gebäudeteil C, eingespannt zwischen den beiden Kerne, die mit Liften und Fluchttreppen ausgestattet sind. Diese sind jedoch so ausgebildet, dass sie zum Atrium hin grossflächig verglast sind, wodurch kurze Distanzen über die Geschosse hinweg einfach überwunden werden können. Als verbindende, repräsentative Vertikalerschliessung stellt das Atrium die visuelle und räumliche Verbindung über die Geschosse hinweg sicher und ermöglicht den Mitarbeitenden kurze Wege und eine gute Orientierung. Mit Steharbeitsplätzen und Lounge-Bereichen ausgestattet bietet sie zudem die Möglichkeit für den Informellen Austausch der Mitarbeitenden.
Plaza: Das erste Obergeschoss ist als öffentliche Plaza ausgebildet. Hier befinden sich Personalrestaurant mit Free-Flow, Work-Café, Konferenz- und Meetingräume sowie verschieden Amenities. Die Plaza ist für die Mitarbeitenden gut auffindbar und als Ort der Begegnung und des Austauschs ausgebildet. Externe Gäste gelangen über den Empfang und die Spiraltreppe direkt in den Konferenzbereich. Dieser ist so ausgestaltet, dass die mittig platzierten Konferenzräume flexibel zu grösseren Einheiten zusammen gefasst werden können. Sie können jedoch auch komplett zur Seite geschoben werden, wodurch sich das Work-Café in eine grosse Town-Hall für Meetings mit 200 Personen umwandeln lässt.
Bürokonzept: Bei der Entwicklung des Bürokonzepts wurde grossen Wert auf nutzungsspezifische Flexibilität sowie auf eine optimale Belichtung gelegt. Das Atrium belichtet die Mitte des Gebäudes, so dass Arbeitsplätze auch in der Nähe des Atriums angelegt werden können. Ein Fassadenraster von 2.70 Metern, kurze Erschiessungswege und eine einfache Leitungsführung ermöglichen es, die Büroflächen flexibel als Open Space oder als Einzelbüros zu nutzen.
Das Bürolayout des Grossmieters basiert auf dem Konzept des „Activity Based Working“ und dem Leitgedanken „Your Office Is Where You Are“. Der gesamte Gebäudeteil des Hauptmieters ist so konzipiert, dass überall – im Atrium, auf den Balkonen, im Café, in der Bürolandschaft oder auf dem Dach des Attikageschosses – gearbeitet werden kann und soll. Die Mitarbeiter sucht sich dabei die für ihre Tätigkeit die gerade am besten geeignete Arbeitsumgebung aus; feste Arbeitsplätze gibt es nicht. Akustisch abgetrennte und mit einem Vorhang abtrennbare „Working Pills“ zonieren die Bürolandschaft in einzelne Neighbourhoods unterschiedlicher Grösse. Sie stehen für Telefongespräche, konzentrierte Einzelarbeit oder Meetings zur Verfügung und können individuell gebucht werden. Der Standort der „Working Pills“ innerhalb der Bürolandschaft ist flexibel. Er kann je nach gewünschter Grösse der Neighbourhood variiert werden.
Erdgeschossnutzung Öffentliche Erdgeschossnutzungen sind ein wichtiger Faktor für die Attraktivität des neuen Areals Rösslimatt. Der Platzierung der Gastro-, Atelier- und Gewerbeflächen wird deshalb grösste Beachtung geschenkt. Die Gebäudeköpfe entlang der Allee, entlang des neuen Parkbandes sowie die Flächen direkt beim Durchgang wurden dabei als Orte mit dem höchsten zu erwartenden Publikumsverkehr ausgelotet. Das grösste Potenzial für solche Flächen liegt schwergewichtig beim Erdgeschoss entlang der Güterstrasse. Um die Attraktivität dieses Standorts zu stärken sind hier Gastro-, Atelier- und Gewerbeflächen vorgesehen, die sich über interne Treppen ins 1. Obergeschoss erweitern lassen.
–
Erarbeitet mit Demuth Hagenmüller & Lamprecht Architekten
Zusammenarbeit mit Alessandra Villa Architektur
Mitarbeit Wettbewerb
Lilian Demuth, Sandra Hagenmüller, Andreas Lamprecht, Alessandra Villa
Mitarbeit Planung und Ausführung
Bernard Resewski, Andreas Lober, Federico Farinatti, Paula Seeling, Manuel Oswald, Maria Milic Sticca, Jan Pelcik, Sandra Hagenmüller, Andreas Lamprecht
Bauherrschaft
SBB Immobilien AG
Baumanagagement
Caretta + Weidmann AG
Totalunternehmer
Implenia Schweiz AG
Landschaftsarchitekt: w+s Landschaftsarchitekten AG
Ingenieur: Walt Galmarini AG
HLKS-Planer: ADZ AG
Elektroplaner: Boess AG
Bauphysik: Durable GmbH
Fassade: Mebatech AG
Lichtplanung: Reflexion AG
Brandschutz: Makiol Wiederkehr AG
BÜRO- UND GEWERBEHAUS RÖSSLIMATT
LUZERN, 2022-2025
EINGELADENER PROJEKTWETTBEWERB, 2020, 1. Preis
Als Auftakt für das Quartier Rösslimatt fasst der neue Stadtbaustein die Baufelder B und C zu einem einzigen, differenzierten und vielschichtigen Gebäude zusammen. Gleichermassen robust und einladend im Sockelbereich wird der öffentliche Anspruch des Gebäudes markiert. Die darüber liegenden Bürogeschosse werden von einem Kleid aus Metall und Glas umhüllt und stellen den Austausch einer modernen Arbeitswelt zwischen innen und aussen her. An ausgezeichneten städtebaulichen Stellen zieht sich die Bürofassade zurück und schafft begrünte, klimatische Pufferzonen. Wie Köpfe und Taillen helfen sie, das Gebäude zu zonieren, ihm einen Massstab zu geben und im Quartier zu verankern. Während die durchgängigen Balkone an den Stirnseiten Blicke zur Allee und in den Park freigeben, leiten die Einzüge die Fussgänger durch die zweigeschossige Passage.
Drei in der Mittelzone gesetzte Treppenkerne strukturieren das Gebäude sowohl statisch als auch räumlich. Als betonierte Kerne verbinden sie sich mit dem Untergeschoss und bilden das Rückgrat des Gebäudes. Das eingeführte Stützenraster gewährleistet eine maximale Nutzungsflexibilität. Die Schnittstelle der beiden Gebäudeteile über dem Durchgang ist als flexible Schaltzone ausgebildet, die je nach gewünschter Nutzung dem einen oder dem anderen Gebäudeteil zugeschlagen werden kann. Eine gemeinsame Tiefgarage im ersten Untergeschoss erschliesst alle Treppenkerne, während im zweiten Untergeschoss mit kleinerem Fussabdruck alle Technikräume untergebracht sind.
Adresse: Der Gebäudeteil C ist auf die geplante Nutzung des Grossmieters ausgelegt. Ein ausladendes Vordach und ein Rückzug der Fassade markieren den Haupteingang des Single Tenants an der Bürgenstrasse. Von aussen ist der grosszügige Wartebereich für Besucher einsehbar. Ein repräsentativer Empfangs-Desk und Zutrittssysteme vermitteln zwischen internem und externem Bereich.
Atrium: Das Herzstück des Gebäudes C bildet das dahinter liegende Atrium, das hell und grosszügig ausgestaltet ist und über eine spiralartige Treppe alle Geschosse repräsentativ miteinander verbindet. Es liegt zentral im Gebäudeteil C, eingespannt zwischen den beiden Kerne, die mit Liften und Fluchttreppen ausgestattet sind. Diese sind jedoch so ausgebildet, dass sie zum Atrium hin grossflächig verglast sind, wodurch kurze Distanzen über die Geschosse hinweg einfach überwunden werden können. Als verbindende, repräsentative Vertikalerschliessung stellt das Atrium die visuelle und räumliche Verbindung über die Geschosse hinweg sicher und ermöglicht den Mitarbeitenden kurze Wege und eine gute Orientierung. Mit Steharbeitsplätzen und Lounge-Bereichen ausgestattet bietet sie zudem die Möglichkeit für den Informellen Austausch der Mitarbeitenden.
Plaza: Das erste Obergeschoss ist als öffentliche Plaza ausgebildet. Hier befinden sich Personalrestaurant mit Free-Flow, Work-Café, Konferenz- und Meetingräume sowie verschieden Amenities. Die Plaza ist für die Mitarbeitenden gut auffindbar und als Ort der Begegnung und des Austauschs ausgebildet. Externe Gäste gelangen über den Empfang und die Spiraltreppe direkt in den Konferenzbereich. Dieser ist so ausgestaltet, dass die mittig platzierten Konferenzräume flexibel zu grösseren Einheiten zusammen gefasst werden können. Sie können jedoch auch komplett zur Seite geschoben werden, wodurch sich das Work-Café in eine grosse Town-Hall für Meetings mit 200 Personen umwandeln lässt.
Bürokonzept: Bei der Entwicklung des Bürokonzepts wurde grossen Wert auf nutzungsspezifische Flexibilität sowie auf eine optimale Belichtung gelegt. Das Atrium belichtet die Mitte des Gebäudes, so dass Arbeitsplätze auch in der Nähe des Atriums angelegt werden können. Ein Fassadenraster von 2.70 Metern, kurze Erschiessungswege und eine einfache Leitungsführung ermöglichen es, die Büroflächen flexibel als Open Space oder als Einzelbüros zu nutzen.
Das Bürolayout des Grossmieters basiert auf dem Konzept des „Activity Based Working“ und dem Leitgedanken „Your Office Is Where You Are“. Der gesamte Gebäudeteil des Hauptmieters ist so konzipiert, dass überall – im Atrium, auf den Balkonen, im Café, in der Bürolandschaft oder auf dem Dach des Attikageschosses – gearbeitet werden kann und soll. Die Mitarbeiter sucht sich dabei die für ihre Tätigkeit die gerade am besten geeignete Arbeitsumgebung aus; feste Arbeitsplätze gibt es nicht. Akustisch abgetrennte und mit einem Vorhang abtrennbare „Working Pills“ zonieren die Bürolandschaft in einzelne Neighbourhoods unterschiedlicher Grösse. Sie stehen für Telefongespräche, konzentrierte Einzelarbeit oder Meetings zur Verfügung und können individuell gebucht werden. Der Standort der „Working Pills“ innerhalb der Bürolandschaft ist flexibel. Er kann je nach gewünschter Grösse der Neighbourhood variiert werden.
Erdgeschossnutzung Öffentliche Erdgeschossnutzungen sind ein wichtiger Faktor für die Attraktivität des neuen Areals Rösslimatt. Der Platzierung der Gastro-, Atelier- und Gewerbeflächen wird deshalb grösste Beachtung geschenkt. Die Gebäudeköpfe entlang der Allee, entlang des neuen Parkbandes sowie die Flächen direkt beim Durchgang wurden dabei als Orte mit dem höchsten zu erwartenden Publikumsverkehr ausgelotet. Das grösste Potenzial für solche Flächen liegt schwergewichtig beim Erdgeschoss entlang der Güterstrasse. Um die Attraktivität dieses Standorts zu stärken sind hier Gastro-, Atelier- und Gewerbeflächen vorgesehen, die sich über interne Treppen ins 1. Obergeschoss erweitern lassen.
–
Erarbeitet mit Demuth Hagenmüller & Lamprecht Architekten
Zusammenarbeit mit Alessandra Villa Architektur
Mitarbeit Wettbewerb
Lilian Demuth, Sandra Hagenmüller, Andreas Lamprecht, Alessandra Villa
Mitarbeit Planung und Ausführung
Bernard Resewski, Andreas Lober, Federico Farinatti, Paula Seeling, Manuel Oswald, Maria Milic Sticca, Jan Pelcik, Sandra Hagenmüller, Andreas Lamprecht
Bauherrschaft
SBB Immobilien AG
Baumanagagement
Caretta + Weidmann AG
Totalunternehmer
Implenia Schweiz AG
Landschaftsarchitekt: w+s Landschaftsarchitekten AG
Ingenieur: Walt Galmarini AG
HLKS-Planer: ADZ AG
Elektroplaner: Boess AG
Bauphysik: Durable GmbH
Fassade: Mebatech AG
Lichtplanung: Reflexion AG
Brandschutz: Makiol Wiederkehr AG
BÜRO- UND GEWERBEHAUS RÖSSLIMATT
LUZERN, 2022-2025
EINGELADENER PROJEKTWETTBEWERB, 2020, 1. Preis
Als Auftakt für das Quartier Rösslimatt fasst der neue Stadtbaustein die Baufelder B und C zu einem einzigen, differenzierten und vielschichtigen Gebäude zusammen. Gleichermassen robust und einladend im Sockelbereich wird der öffentliche Anspruch des Gebäudes markiert. Die darüber liegenden Bürogeschosse werden von einem Kleid aus Metall und Glas umhüllt und stellen den Austausch einer modernen Arbeitswelt zwischen innen und aussen her. An ausgezeichneten städtebaulichen Stellen zieht sich die Bürofassade zurück und schafft begrünte, klimatische Pufferzonen. Wie Köpfe und Taillen helfen sie, das Gebäude zu zonieren, ihm einen Massstab zu geben und im Quartier zu verankern. Während die durchgängigen Balkone an den Stirnseiten Blicke zur Allee und in den Park freigeben, leiten die Einzüge die Fussgänger durch die zweigeschossige Passage.
Drei in der Mittelzone gesetzte Treppenkerne strukturieren das Gebäude sowohl statisch als auch räumlich. Als betonierte Kerne verbinden sie sich mit dem Untergeschoss und bilden das Rückgrat des Gebäudes. Das eingeführte Stützenraster gewährleistet eine maximale Nutzungsflexibilität. Die Schnittstelle der beiden Gebäudeteile über dem Durchgang ist als flexible Schaltzone ausgebildet, die je nach gewünschter Nutzung dem einen oder dem anderen Gebäudeteil zugeschlagen werden kann. Eine gemeinsame Tiefgarage im ersten Untergeschoss erschliesst alle Treppenkerne, während im zweiten Untergeschoss mit kleinerem Fussabdruck alle Technikräume untergebracht sind.
Adresse: Der Gebäudeteil C ist auf die geplante Nutzung des Grossmieters ausgelegt. Ein ausladendes Vordach und ein Rückzug der Fassade markieren den Haupteingang des Single Tenants an der Bürgenstrasse. Von aussen ist der grosszügige Wartebereich für Besucher einsehbar. Ein repräsentativer Empfangs-Desk und Zutrittssysteme vermitteln zwischen internem und externem Bereich.
Atrium: Das Herzstück des Gebäudes C bildet das dahinter liegende Atrium, das hell und grosszügig ausgestaltet ist und über eine spiralartige Treppe alle Geschosse repräsentativ miteinander verbindet. Es liegt zentral im Gebäudeteil C, eingespannt zwischen den beiden Kerne, die mit Liften und Fluchttreppen ausgestattet sind. Diese sind jedoch so ausgebildet, dass sie zum Atrium hin grossflächig verglast sind, wodurch kurze Distanzen über die Geschosse hinweg einfach überwunden werden können. Als verbindende, repräsentative Vertikalerschliessung stellt das Atrium die visuelle und räumliche Verbindung über die Geschosse hinweg sicher und ermöglicht den Mitarbeitenden kurze Wege und eine gute Orientierung. Mit Steharbeitsplätzen und Lounge-Bereichen ausgestattet bietet sie zudem die Möglichkeit für den Informellen Austausch der Mitarbeitenden.
Plaza: Das erste Obergeschoss ist als öffentliche Plaza ausgebildet. Hier befinden sich Personalrestaurant mit Free-Flow, Work-Café, Konferenz- und Meetingräume sowie verschieden Amenities. Die Plaza ist für die Mitarbeitenden gut auffindbar und als Ort der Begegnung und des Austauschs ausgebildet. Externe Gäste gelangen über den Empfang und die Spiraltreppe direkt in den Konferenzbereich. Dieser ist so ausgestaltet, dass die mittig platzierten Konferenzräume flexibel zu grösseren Einheiten zusammen gefasst werden können. Sie können jedoch auch komplett zur Seite geschoben werden, wodurch sich das Work-Café in eine grosse Town-Hall für Meetings mit 200 Personen umwandeln lässt.
Bürokonzept: Bei der Entwicklung des Bürokonzepts wurde grossen Wert auf nutzungsspezifische Flexibilität sowie auf eine optimale Belichtung gelegt. Das Atrium belichtet die Mitte des Gebäudes, so dass Arbeitsplätze auch in der Nähe des Atriums angelegt werden können. Ein Fassadenraster von 2.70 Metern, kurze Erschiessungswege und eine einfache Leitungsführung ermöglichen es, die Büroflächen flexibel als Open Space oder als Einzelbüros zu nutzen.
Das Bürolayout des Grossmieters basiert auf dem Konzept des „Activity Based Working“ und dem Leitgedanken „Your Office Is Where You Are“. Der gesamte Gebäudeteil des Hauptmieters ist so konzipiert, dass überall – im Atrium, auf den Balkonen, im Café, in der Bürolandschaft oder auf dem Dach des Attikageschosses – gearbeitet werden kann und soll. Die Mitarbeiter sucht sich dabei die für ihre Tätigkeit die gerade am besten geeignete Arbeitsumgebung aus; feste Arbeitsplätze gibt es nicht. Akustisch abgetrennte und mit einem Vorhang abtrennbare „Working Pills“ zonieren die Bürolandschaft in einzelne Neighbourhoods unterschiedlicher Grösse. Sie stehen für Telefongespräche, konzentrierte Einzelarbeit oder Meetings zur Verfügung und können individuell gebucht werden. Der Standort der „Working Pills“ innerhalb der Bürolandschaft ist flexibel. Er kann je nach gewünschter Grösse der Neighbourhood variiert werden.
Erdgeschossnutzung Öffentliche Erdgeschossnutzungen sind ein wichtiger Faktor für die Attraktivität des neuen Areals Rösslimatt. Der Platzierung der Gastro-, Atelier- und Gewerbeflächen wird deshalb grösste Beachtung geschenkt. Die Gebäudeköpfe entlang der Allee, entlang des neuen Parkbandes sowie die Flächen direkt beim Durchgang wurden dabei als Orte mit dem höchsten zu erwartenden Publikumsverkehr ausgelotet. Das grösste Potenzial für solche Flächen liegt schwergewichtig beim Erdgeschoss entlang der Güterstrasse. Um die Attraktivität dieses Standorts zu stärken sind hier Gastro-, Atelier- und Gewerbeflächen vorgesehen, die sich über interne Treppen ins 1. Obergeschoss erweitern lassen.
–
Erarbeitet mit Demuth Hagenmüller & Lamprecht Architekten
Zusammenarbeit mit Alessandra Villa Architektur
Mitarbeit Wettbewerb
Lilian Demuth, Sandra Hagenmüller, Andreas Lamprecht, Alessandra Villa
Mitarbeit Planung und Ausführung
Bernard Resewski, Andreas Lober, Federico Farinatti, Paula Seeling, Manuel Oswald, Maria Milic Sticca, Jan Pelcik, Sandra Hagenmüller, Andreas Lamprecht
Bauherrschaft
SBB Immobilien AG
Baumanagagement
Caretta + Weidmann AG
Totalunternehmer
Implenia Schweiz AG
Landschaftsarchitekt: w+s Landschaftsarchitekten AG
Ingenieur: Walt Galmarini AG
HLKS-Planer: ADZ AG
Elektroplaner: Boess AG
Bauphysik: Durable GmbH
Fassade: Mebatech AG
Lichtplanung: Reflexion AG
Brandschutz: Makiol Wiederkehr AG
BÜRO- UND GEWERBEHAUS RÖSSLIMATT
LUZERN, 2022-2025
EINGELADENER PROJEKTWETTBEWERB, 2020, 1. Preis
Als Auftakt für das Quartier Rösslimatt fasst der neue Stadtbaustein die Baufelder B und C zu einem einzigen, differenzierten und vielschichtigen Gebäude zusammen. Gleichermassen robust und einladend im Sockelbereich wird der öffentliche Anspruch des Gebäudes markiert. Die darüber liegenden Bürogeschosse werden von einem Kleid aus Metall und Glas umhüllt und stellen den Austausch einer modernen Arbeitswelt zwischen innen und aussen her. An ausgezeichneten städtebaulichen Stellen zieht sich die Bürofassade zurück und schafft begrünte, klimatische Pufferzonen. Wie Köpfe und Taillen helfen sie, das Gebäude zu zonieren, ihm einen Massstab zu geben und im Quartier zu verankern. Während die durchgängigen Balkone an den Stirnseiten Blicke zur Allee und in den Park freigeben, leiten die Einzüge die Fussgänger durch die zweigeschossige Passage.
Drei in der Mittelzone gesetzte Treppenkerne strukturieren das Gebäude sowohl statisch als auch räumlich. Als betonierte Kerne verbinden sie sich mit dem Untergeschoss und bilden das Rückgrat des Gebäudes. Das eingeführte Stützenraster gewährleistet eine maximale Nutzungsflexibilität. Die Schnittstelle der beiden Gebäudeteile über dem Durchgang ist als flexible Schaltzone ausgebildet, die je nach gewünschter Nutzung dem einen oder dem anderen Gebäudeteil zugeschlagen werden kann. Eine gemeinsame Tiefgarage im ersten Untergeschoss erschliesst alle Treppenkerne, während im zweiten Untergeschoss mit kleinerem Fussabdruck alle Technikräume untergebracht sind.
Adresse: Der Gebäudeteil C ist auf die geplante Nutzung des Grossmieters ausgelegt. Ein ausladendes Vordach und ein Rückzug der Fassade markieren den Haupteingang des Single Tenants an der Bürgenstrasse. Von aussen ist der grosszügige Wartebereich für Besucher einsehbar. Ein repräsentativer Empfangs-Desk und Zutrittssysteme vermitteln zwischen internem und externem Bereich.
Atrium: Das Herzstück des Gebäudes C bildet das dahinter liegende Atrium, das hell und grosszügig ausgestaltet ist und über eine spiralartige Treppe alle Geschosse repräsentativ miteinander verbindet. Es liegt zentral im Gebäudeteil C, eingespannt zwischen den beiden Kerne, die mit Liften und Fluchttreppen ausgestattet sind. Diese sind jedoch so ausgebildet, dass sie zum Atrium hin grossflächig verglast sind, wodurch kurze Distanzen über die Geschosse hinweg einfach überwunden werden können. Als verbindende, repräsentative Vertikalerschliessung stellt das Atrium die visuelle und räumliche Verbindung über die Geschosse hinweg sicher und ermöglicht den Mitarbeitenden kurze Wege und eine gute Orientierung. Mit Steharbeitsplätzen und Lounge-Bereichen ausgestattet bietet sie zudem die Möglichkeit für den Informellen Austausch der Mitarbeitenden.
Plaza: Das erste Obergeschoss ist als öffentliche Plaza ausgebildet. Hier befinden sich Personalrestaurant mit Free-Flow, Work-Café, Konferenz- und Meetingräume sowie verschieden Amenities. Die Plaza ist für die Mitarbeitenden gut auffindbar und als Ort der Begegnung und des Austauschs ausgebildet. Externe Gäste gelangen über den Empfang und die Spiraltreppe direkt in den Konferenzbereich. Dieser ist so ausgestaltet, dass die mittig platzierten Konferenzräume flexibel zu grösseren Einheiten zusammen gefasst werden können. Sie können jedoch auch komplett zur Seite geschoben werden, wodurch sich das Work-Café in eine grosse Town-Hall für Meetings mit 200 Personen umwandeln lässt.
Bürokonzept: Bei der Entwicklung des Bürokonzepts wurde grossen Wert auf nutzungsspezifische Flexibilität sowie auf eine optimale Belichtung gelegt. Das Atrium belichtet die Mitte des Gebäudes, so dass Arbeitsplätze auch in der Nähe des Atriums angelegt werden können. Ein Fassadenraster von 2.70 Metern, kurze Erschiessungswege und eine einfache Leitungsführung ermöglichen es, die Büroflächen flexibel als Open Space oder als Einzelbüros zu nutzen.
Das Bürolayout des Grossmieters basiert auf dem Konzept des „Activity Based Working“ und dem Leitgedanken „Your Office Is Where You Are“. Der gesamte Gebäudeteil des Hauptmieters ist so konzipiert, dass überall – im Atrium, auf den Balkonen, im Café, in der Bürolandschaft oder auf dem Dach des Attikageschosses – gearbeitet werden kann und soll. Die Mitarbeiter sucht sich dabei die für ihre Tätigkeit die gerade am besten geeignete Arbeitsumgebung aus; feste Arbeitsplätze gibt es nicht. Akustisch abgetrennte und mit einem Vorhang abtrennbare „Working Pills“ zonieren die Bürolandschaft in einzelne Neighbourhoods unterschiedlicher Grösse. Sie stehen für Telefongespräche, konzentrierte Einzelarbeit oder Meetings zur Verfügung und können individuell gebucht werden. Der Standort der „Working Pills“ innerhalb der Bürolandschaft ist flexibel. Er kann je nach gewünschter Grösse der Neighbourhood variiert werden.
Erdgeschossnutzung Öffentliche Erdgeschossnutzungen sind ein wichtiger Faktor für die Attraktivität des neuen Areals Rösslimatt. Der Platzierung der Gastro-, Atelier- und Gewerbeflächen wird deshalb grösste Beachtung geschenkt. Die Gebäudeköpfe entlang der Allee, entlang des neuen Parkbandes sowie die Flächen direkt beim Durchgang wurden dabei als Orte mit dem höchsten zu erwartenden Publikumsverkehr ausgelotet. Das grösste Potenzial für solche Flächen liegt schwergewichtig beim Erdgeschoss entlang der Güterstrasse. Um die Attraktivität dieses Standorts zu stärken sind hier Gastro-, Atelier- und Gewerbeflächen vorgesehen, die sich über interne Treppen ins 1. Obergeschoss erweitern lassen.
–
Erarbeitet mit Demuth Hagenmüller & Lamprecht Architekten
Zusammenarbeit mit Alessandra Villa Architektur
Mitarbeit Wettbewerb
Lilian Demuth, Sandra Hagenmüller, Andreas Lamprecht, Alessandra Villa
Mitarbeit Planung und Ausführung
Bernard Resewski, Andreas Lober, Federico Farinatti, Paula Seeling, Manuel Oswald, Maria Milic Sticca, Jan Pelcik, Sandra Hagenmüller, Andreas Lamprecht
Bauherrschaft
SBB Immobilien AG
Baumanagagement
Caretta + Weidmann AG
Totalunternehmer
Implenia Schweiz AG
Landschaftsarchitekt: w+s Landschaftsarchitekten AG
Ingenieur: Walt Galmarini AG
HLKS-Planer: ADZ AG
Elektroplaner: Boess AG
Bauphysik: Durable GmbH
Fassade: Mebatech AG
Lichtplanung: Reflexion AG
Brandschutz: Makiol Wiederkehr AG
BÜRO- UND GEWERBEHAUS RÖSSLIMATT
LUZERN, 2022-2025
EINGELADENER PROJEKTWETTBEWERB, 2020, 1. Preis
Als Auftakt für das Quartier Rösslimatt fasst der neue Stadtbaustein die Baufelder B und C zu einem einzigen, differenzierten und vielschichtigen Gebäude zusammen. Gleichermassen robust und einladend im Sockelbereich wird der öffentliche Anspruch des Gebäudes markiert. Die darüber liegenden Bürogeschosse werden von einem Kleid aus Metall und Glas umhüllt und stellen den Austausch einer modernen Arbeitswelt zwischen innen und aussen her. An ausgezeichneten städtebaulichen Stellen zieht sich die Bürofassade zurück und schafft begrünte, klimatische Pufferzonen. Wie Köpfe und Taillen helfen sie, das Gebäude zu zonieren, ihm einen Massstab zu geben und im Quartier zu verankern. Während die durchgängigen Balkone an den Stirnseiten Blicke zur Allee und in den Park freigeben, leiten die Einzüge die Fussgänger durch die zweigeschossige Passage.
Drei in der Mittelzone gesetzte Treppenkerne strukturieren das Gebäude sowohl statisch als auch räumlich. Als betonierte Kerne verbinden sie sich mit dem Untergeschoss und bilden das Rückgrat des Gebäudes. Das eingeführte Stützenraster gewährleistet eine maximale Nutzungsflexibilität. Die Schnittstelle der beiden Gebäudeteile über dem Durchgang ist als flexible Schaltzone ausgebildet, die je nach gewünschter Nutzung dem einen oder dem anderen Gebäudeteil zugeschlagen werden kann. Eine gemeinsame Tiefgarage im ersten Untergeschoss erschliesst alle Treppenkerne, während im zweiten Untergeschoss mit kleinerem Fussabdruck alle Technikräume untergebracht sind.
Adresse: Der Gebäudeteil C ist auf die geplante Nutzung des Grossmieters ausgelegt. Ein ausladendes Vordach und ein Rückzug der Fassade markieren den Haupteingang des Single Tenants an der Bürgenstrasse. Von aussen ist der grosszügige Wartebereich für Besucher einsehbar. Ein repräsentativer Empfangs-Desk und Zutrittssysteme vermitteln zwischen internem und externem Bereich.
Atrium: Das Herzstück des Gebäudes C bildet das dahinter liegende Atrium, das hell und grosszügig ausgestaltet ist und über eine spiralartige Treppe alle Geschosse repräsentativ miteinander verbindet. Es liegt zentral im Gebäudeteil C, eingespannt zwischen den beiden Kerne, die mit Liften und Fluchttreppen ausgestattet sind. Diese sind jedoch so ausgebildet, dass sie zum Atrium hin grossflächig verglast sind, wodurch kurze Distanzen über die Geschosse hinweg einfach überwunden werden können. Als verbindende, repräsentative Vertikalerschliessung stellt das Atrium die visuelle und räumliche Verbindung über die Geschosse hinweg sicher und ermöglicht den Mitarbeitenden kurze Wege und eine gute Orientierung. Mit Steharbeitsplätzen und Lounge-Bereichen ausgestattet bietet sie zudem die Möglichkeit für den Informellen Austausch der Mitarbeitenden.
Plaza: Das erste Obergeschoss ist als öffentliche Plaza ausgebildet. Hier befinden sich Personalrestaurant mit Free-Flow, Work-Café, Konferenz- und Meetingräume sowie verschieden Amenities. Die Plaza ist für die Mitarbeitenden gut auffindbar und als Ort der Begegnung und des Austauschs ausgebildet. Externe Gäste gelangen über den Empfang und die Spiraltreppe direkt in den Konferenzbereich. Dieser ist so ausgestaltet, dass die mittig platzierten Konferenzräume flexibel zu grösseren Einheiten zusammen gefasst werden können. Sie können jedoch auch komplett zur Seite geschoben werden, wodurch sich das Work-Café in eine grosse Town-Hall für Meetings mit 200 Personen umwandeln lässt.
Bürokonzept: Bei der Entwicklung des Bürokonzepts wurde grossen Wert auf nutzungsspezifische Flexibilität sowie auf eine optimale Belichtung gelegt. Das Atrium belichtet die Mitte des Gebäudes, so dass Arbeitsplätze auch in der Nähe des Atriums angelegt werden können. Ein Fassadenraster von 2.70 Metern, kurze Erschiessungswege und eine einfache Leitungsführung ermöglichen es, die Büroflächen flexibel als Open Space oder als Einzelbüros zu nutzen.
Das Bürolayout des Grossmieters basiert auf dem Konzept des „Activity Based Working“ und dem Leitgedanken „Your Office Is Where You Are“. Der gesamte Gebäudeteil des Hauptmieters ist so konzipiert, dass überall – im Atrium, auf den Balkonen, im Café, in der Bürolandschaft oder auf dem Dach des Attikageschosses – gearbeitet werden kann und soll. Die Mitarbeiter sucht sich dabei die für ihre Tätigkeit die gerade am besten geeignete Arbeitsumgebung aus; feste Arbeitsplätze gibt es nicht. Akustisch abgetrennte und mit einem Vorhang abtrennbare „Working Pills“ zonieren die Bürolandschaft in einzelne Neighbourhoods unterschiedlicher Grösse. Sie stehen für Telefongespräche, konzentrierte Einzelarbeit oder Meetings zur Verfügung und können individuell gebucht werden. Der Standort der „Working Pills“ innerhalb der Bürolandschaft ist flexibel. Er kann je nach gewünschter Grösse der Neighbourhood variiert werden.
Erdgeschossnutzung Öffentliche Erdgeschossnutzungen sind ein wichtiger Faktor für die Attraktivität des neuen Areals Rösslimatt. Der Platzierung der Gastro-, Atelier- und Gewerbeflächen wird deshalb grösste Beachtung geschenkt. Die Gebäudeköpfe entlang der Allee, entlang des neuen Parkbandes sowie die Flächen direkt beim Durchgang wurden dabei als Orte mit dem höchsten zu erwartenden Publikumsverkehr ausgelotet. Das grösste Potenzial für solche Flächen liegt schwergewichtig beim Erdgeschoss entlang der Güterstrasse. Um die Attraktivität dieses Standorts zu stärken sind hier Gastro-, Atelier- und Gewerbeflächen vorgesehen, die sich über interne Treppen ins 1. Obergeschoss erweitern lassen.
–
Erarbeitet mit Demuth Hagenmüller & Lamprecht Architekten
Zusammenarbeit mit Alessandra Villa Architektur
Mitarbeit Wettbewerb
Lilian Demuth, Sandra Hagenmüller, Andreas Lamprecht, Alessandra Villa
Mitarbeit Planung und Ausführung
Bernard Resewski, Andreas Lober, Federico Farinatti, Paula Seeling, Manuel Oswald, Maria Milic Sticca, Jan Pelcik, Sandra Hagenmüller, Andreas Lamprecht
Bauherrschaft
SBB Immobilien AG
Baumanagagement
Caretta + Weidmann AG
Totalunternehmer
Implenia Schweiz AG
Landschaftsarchitekt: w+s Landschaftsarchitekten AG
Ingenieur: Walt Galmarini AG
HLKS-Planer: ADZ AG
Elektroplaner: Boess AG
Bauphysik: Durable GmbH
Fassade: Mebatech AG
Lichtplanung: Reflexion AG
Brandschutz: Makiol Wiederkehr AG
ERSATZNEUBAU WOHNHAUS REGENSDORFERSTRASSE
ZÜRICH, 2022-2024
PROJEKTWETTBEWERB, 2016, 1. Preis
Das neue Wohnhaus liegt am durchgrünten Südhang von Zürich-Höngg. Die Parzelle schliesst zur Nordseite an die stark befahrene Regensdorferstrasse an und öffnet sich gegen Süden in die Tiefe des topographisch stark abfallenden Grundstücks. Der dreigeschossige Baukörper dehnt sich in Ost-West-Richtung über die komplette Breite der Parzelle aus und bildet so eine nördliche Strassenfront und eine südliche Gartenfront aus: Zur Strasse hin tritt der Baukörper als Abfolge von einzelnen, zusammengebauten Gebäuden in Erscheinung, die den Strassenraum fassen und in ihrer Grösse die Massstäblichkeit des Quartiers fortsetzen, während sich zurückgesetzt in den Buchten der Häuser jeweils die Eingänge befinden.
Zur Südseite hin greift der Baukörper in den Gartenraum aus und verzahnt sich mit ihm: Die Fassadenflächen gegen Süden hin werden vergrössert und alle Wohnungen profitieren von der Lage über der Stadt.
Die Wohnungen gliedern sich typologisch in zwei Arten: Die hangseitigen Durchstosswohnungen bilden ihr Zentrum in einem hallenartigen Wohnraum aus, dem südseitig die Loggia und strassenseitig die Küche angegliedert ist. Diagonale Blickbezüge ermöglichen aus der Tiefe der Wohnung Aussichten gegen Süden über die Stadt. Wohnküchen und Bäder sind zur Strasse hin angeordnet während die Zimmer zur Gartenseite hin orientiert sind. Die Gartenwohnungen andererseits sind als Abfolge von Eingang, Küche, Wohnraum und Loggia organisiert, so dass die Wohnungen sowohl Sichtbezüge zu den seitlichen Gärten als auch zum Süden hin haben.
Das Gebäude wird als Massivbau aus Beton und Mauerwerk erstellt. Die Hülle wird von einem tragenden und dämmenden Einsteinmauerwerk gebildet, das aussen mit hellem Waschputz überzogen ist. Die einheitliche Wirkung der Hülle verstärkt die plastische Erscheinung des Baukörpers. Die vorgelagerten Balkontürme auf der Südseite sind als Kontrast dazu als feine Stahlkonstruktionen ausformuliert. Unterschiedlich proportionierte, tief in der Leibung angeschlagene Fenster mit Schiebefaltläden überziehen das Volumen.
Die Topographie der Anlage wird mithilfe niedriger Mauern gefasst und terrassiert. Die Vegetation der Anlage wird durch eine Blumenwiese definiert. Mehrere Einzelbäume und Baumgruppen verbinden die unterschiedlichen Bereiche der Anlage. Hochstämmige Bäume an der Strasse bezeichnen den öffentlichen Bereich. In der direkten Nachbarschaft zu den privaten Terrassen, ergänzen Pflanzungen aus Ziergras, Kräutern und kleinere mehrstämmige Obstbäume das Pflanzsortiment. Freistehende Gruppen von Pfirsich, Feigen und Zieräpfel, verleihen der Südseite der Siedlung mit ihrer Blüte und Fruchtpracht einen üppigen Gartencharakter.
–
Erarbeitet mit Demuth Hagenmüller & Lamprecht Architekten
Mitarbeit Wettbewerb
Daniela Viviani, Lilian Demuth, Sandra Hagenmüller, Andreas Lamprecht
Mitarbeit Planung und Ausführung
Svenja Egge, Paul Frlicka, Pierre Chèvremont, Agnieszka Latak, Lilian Demuth, Sandra Hagenmüller, Andreas Lamprecht
Bauherrschaft
Immofonds Immobilien AG
Baumangagement:
Jaeger Coneco AG
Landschaftsarchitekt:Mettler Landschaftsarchitektur
Ingenieur: Synaxis AG
HLKS-Planer: Neukom Engineering AG
Elektroplaner: IBG Engineering AG
Bauphysik: Raumanzug
Brandschutz: Giessser Architektur + Planung
Bilder: Andreas Buschmann
ERSATZNEUBAU WOHNHAUS REGENSDORFERSTRASSE
ZÜRICH, 2022-2024
PROJEKTWETTBEWERB, 2016, 1. Preis
Das neue Wohnhaus liegt am durchgrünten Südhang von Zürich-Höngg. Die Parzelle schliesst zur Nordseite an die stark befahrene Regensdorferstrasse an und öffnet sich gegen Süden in die Tiefe des topographisch stark abfallenden Grundstücks. Der dreigeschossige Baukörper dehnt sich in Ost-West-Richtung über die komplette Breite der Parzelle aus und bildet so eine nördliche Strassenfront und eine südliche Gartenfront aus: Zur Strasse hin tritt der Baukörper als Abfolge von einzelnen, zusammengebauten Gebäuden in Erscheinung, die den Strassenraum fassen und in ihrer Grösse die Massstäblichkeit des Quartiers fortsetzen, während sich zurückgesetzt in den Buchten der Häuser jeweils die Eingänge befinden.
Zur Südseite hin greift der Baukörper in den Gartenraum aus und verzahnt sich mit ihm: Die Fassadenflächen gegen Süden hin werden vergrössert und alle Wohnungen profitieren von der Lage über der Stadt.
Die Wohnungen gliedern sich typologisch in zwei Arten: Die hangseitigen Durchstosswohnungen bilden ihr Zentrum in einem hallenartigen Wohnraum aus, dem südseitig die Loggia und strassenseitig die Küche angegliedert ist. Diagonale Blickbezüge ermöglichen aus der Tiefe der Wohnung Aussichten gegen Süden über die Stadt. Wohnküchen und Bäder sind zur Strasse hin angeordnet während die Zimmer zur Gartenseite hin orientiert sind. Die Gartenwohnungen andererseits sind als Abfolge von Eingang, Küche, Wohnraum und Loggia organisiert, so dass die Wohnungen sowohl Sichtbezüge zu den seitlichen Gärten als auch zum Süden hin haben.
Das Gebäude wird als Massivbau aus Beton und Mauerwerk erstellt. Die Hülle wird von einem tragenden und dämmenden Einsteinmauerwerk gebildet, das aussen mit hellem Waschputz überzogen ist. Die einheitliche Wirkung der Hülle verstärkt die plastische Erscheinung des Baukörpers. Die vorgelagerten Balkontürme auf der Südseite sind als Kontrast dazu als feine Stahlkonstruktionen ausformuliert. Unterschiedlich proportionierte, tief in der Leibung angeschlagene Fenster mit Schiebefaltläden überziehen das Volumen.
Die Topographie der Anlage wird mithilfe niedriger Mauern gefasst und terrassiert. Die Vegetation der Anlage wird durch eine Blumenwiese definiert. Mehrere Einzelbäume und Baumgruppen verbinden die unterschiedlichen Bereiche der Anlage. Hochstämmige Bäume an der Strasse bezeichnen den öffentlichen Bereich. In der direkten Nachbarschaft zu den privaten Terrassen, ergänzen Pflanzungen aus Ziergras, Kräutern und kleinere mehrstämmige Obstbäume das Pflanzsortiment. Freistehende Gruppen von Pfirsich, Feigen und Zieräpfel, verleihen der Südseite der Siedlung mit ihrer Blüte und Fruchtpracht einen üppigen Gartencharakter.
–
Erarbeitet mit Demuth Hagenmüller & Lamprecht Architekten
Mitarbeit Wettbewerb
Daniela Viviani, Lilian Demuth, Sandra Hagenmüller, Andreas Lamprecht
Mitarbeit Planung und Ausführung
Svenja Egge, Paul Frlicka, Pierre Chèvremont, Agnieszka Latak, Lilian Demuth, Sandra Hagenmüller, Andreas Lamprecht
Bauherrschaft
Immofonds Immobilien AG
Baumangagement:
Jaeger Coneco AG
Landschaftsarchitekt:Mettler Landschaftsarchitektur
Ingenieur: Synaxis AG
HLKS-Planer: Neukom Engineering AG
Elektroplaner: IBG Engineering AG
Bauphysik: Raumanzug
Brandschutz: Giessser Architektur + Planung
Bilder: Andreas Buschmann
ERSATZNEUBAU WOHNHAUS REGENSDORFERSTRASSE
ZÜRICH, 2022-2024
PROJEKTWETTBEWERB, 2016, 1. Preis
Das neue Wohnhaus liegt am durchgrünten Südhang von Zürich-Höngg. Die Parzelle schliesst zur Nordseite an die stark befahrene Regensdorferstrasse an und öffnet sich gegen Süden in die Tiefe des topographisch stark abfallenden Grundstücks. Der dreigeschossige Baukörper dehnt sich in Ost-West-Richtung über die komplette Breite der Parzelle aus und bildet so eine nördliche Strassenfront und eine südliche Gartenfront aus: Zur Strasse hin tritt der Baukörper als Abfolge von einzelnen, zusammengebauten Gebäuden in Erscheinung, die den Strassenraum fassen und in ihrer Grösse die Massstäblichkeit des Quartiers fortsetzen, während sich zurückgesetzt in den Buchten der Häuser jeweils die Eingänge befinden.
Zur Südseite hin greift der Baukörper in den Gartenraum aus und verzahnt sich mit ihm: Die Fassadenflächen gegen Süden hin werden vergrössert und alle Wohnungen profitieren von der Lage über der Stadt.
Die Wohnungen gliedern sich typologisch in zwei Arten: Die hangseitigen Durchstosswohnungen bilden ihr Zentrum in einem hallenartigen Wohnraum aus, dem südseitig die Loggia und strassenseitig die Küche angegliedert ist. Diagonale Blickbezüge ermöglichen aus der Tiefe der Wohnung Aussichten gegen Süden über die Stadt. Wohnküchen und Bäder sind zur Strasse hin angeordnet während die Zimmer zur Gartenseite hin orientiert sind. Die Gartenwohnungen andererseits sind als Abfolge von Eingang, Küche, Wohnraum und Loggia organisiert, so dass die Wohnungen sowohl Sichtbezüge zu den seitlichen Gärten als auch zum Süden hin haben.
Das Gebäude wird als Massivbau aus Beton und Mauerwerk erstellt. Die Hülle wird von einem tragenden und dämmenden Einsteinmauerwerk gebildet, das aussen mit hellem Waschputz überzogen ist. Die einheitliche Wirkung der Hülle verstärkt die plastische Erscheinung des Baukörpers. Die vorgelagerten Balkontürme auf der Südseite sind als Kontrast dazu als feine Stahlkonstruktionen ausformuliert. Unterschiedlich proportionierte, tief in der Leibung angeschlagene Fenster mit Schiebefaltläden überziehen das Volumen.
Die Topographie der Anlage wird mithilfe niedriger Mauern gefasst und terrassiert. Die Vegetation der Anlage wird durch eine Blumenwiese definiert. Mehrere Einzelbäume und Baumgruppen verbinden die unterschiedlichen Bereiche der Anlage. Hochstämmige Bäume an der Strasse bezeichnen den öffentlichen Bereich. In der direkten Nachbarschaft zu den privaten Terrassen, ergänzen Pflanzungen aus Ziergras, Kräutern und kleinere mehrstämmige Obstbäume das Pflanzsortiment. Freistehende Gruppen von Pfirsich, Feigen und Zieräpfel, verleihen der Südseite der Siedlung mit ihrer Blüte und Fruchtpracht einen üppigen Gartencharakter.
–
Erarbeitet mit Demuth Hagenmüller & Lamprecht Architekten
Mitarbeit Wettbewerb
Daniela Viviani, Lilian Demuth, Sandra Hagenmüller, Andreas Lamprecht
Mitarbeit Planung und Ausführung
Svenja Egge, Paul Frlicka, Pierre Chèvremont, Agnieszka Latak, Lilian Demuth, Sandra Hagenmüller, Andreas Lamprecht
Bauherrschaft
Immofonds Immobilien AG
Baumangagement:
Jaeger Coneco AG
Landschaftsarchitekt:Mettler Landschaftsarchitektur
Ingenieur: Synaxis AG
HLKS-Planer: Neukom Engineering AG
Elektroplaner: IBG Engineering AG
Bauphysik: Raumanzug
Brandschutz: Giessser Architektur + Planung
Bilder: Andreas Buschmann
ERSATZNEUBAU WOHNHAUS REGENSDORFERSTRASSE
ZÜRICH, 2022-2024
PROJEKTWETTBEWERB, 2016, 1. Preis
Das neue Wohnhaus liegt am durchgrünten Südhang von Zürich-Höngg. Die Parzelle schliesst zur Nordseite an die stark befahrene Regensdorferstrasse an und öffnet sich gegen Süden in die Tiefe des topographisch stark abfallenden Grundstücks. Der dreigeschossige Baukörper dehnt sich in Ost-West-Richtung über die komplette Breite der Parzelle aus und bildet so eine nördliche Strassenfront und eine südliche Gartenfront aus: Zur Strasse hin tritt der Baukörper als Abfolge von einzelnen, zusammengebauten Gebäuden in Erscheinung, die den Strassenraum fassen und in ihrer Grösse die Massstäblichkeit des Quartiers fortsetzen, während sich zurückgesetzt in den Buchten der Häuser jeweils die Eingänge befinden.
Zur Südseite hin greift der Baukörper in den Gartenraum aus und verzahnt sich mit ihm: Die Fassadenflächen gegen Süden hin werden vergrössert und alle Wohnungen profitieren von der Lage über der Stadt.
Die Wohnungen gliedern sich typologisch in zwei Arten: Die hangseitigen Durchstosswohnungen bilden ihr Zentrum in einem hallenartigen Wohnraum aus, dem südseitig die Loggia und strassenseitig die Küche angegliedert ist. Diagonale Blickbezüge ermöglichen aus der Tiefe der Wohnung Aussichten gegen Süden über die Stadt. Wohnküchen und Bäder sind zur Strasse hin angeordnet während die Zimmer zur Gartenseite hin orientiert sind. Die Gartenwohnungen andererseits sind als Abfolge von Eingang, Küche, Wohnraum und Loggia organisiert, so dass die Wohnungen sowohl Sichtbezüge zu den seitlichen Gärten als auch zum Süden hin haben.
Das Gebäude wird als Massivbau aus Beton und Mauerwerk erstellt. Die Hülle wird von einem tragenden und dämmenden Einsteinmauerwerk gebildet, das aussen mit hellem Waschputz überzogen ist. Die einheitliche Wirkung der Hülle verstärkt die plastische Erscheinung des Baukörpers. Die vorgelagerten Balkontürme auf der Südseite sind als Kontrast dazu als feine Stahlkonstruktionen ausformuliert. Unterschiedlich proportionierte, tief in der Leibung angeschlagene Fenster mit Schiebefaltläden überziehen das Volumen.
Die Topographie der Anlage wird mithilfe niedriger Mauern gefasst und terrassiert. Die Vegetation der Anlage wird durch eine Blumenwiese definiert. Mehrere Einzelbäume und Baumgruppen verbinden die unterschiedlichen Bereiche der Anlage. Hochstämmige Bäume an der Strasse bezeichnen den öffentlichen Bereich. In der direkten Nachbarschaft zu den privaten Terrassen, ergänzen Pflanzungen aus Ziergras, Kräutern und kleinere mehrstämmige Obstbäume das Pflanzsortiment. Freistehende Gruppen von Pfirsich, Feigen und Zieräpfel, verleihen der Südseite der Siedlung mit ihrer Blüte und Fruchtpracht einen üppigen Gartencharakter.
–
Erarbeitet mit Demuth Hagenmüller & Lamprecht Architekten
Mitarbeit Wettbewerb
Daniela Viviani, Lilian Demuth, Sandra Hagenmüller, Andreas Lamprecht
Mitarbeit Planung und Ausführung
Svenja Egge, Paul Frlicka, Pierre Chèvremont, Agnieszka Latak, Lilian Demuth, Sandra Hagenmüller, Andreas Lamprecht
Bauherrschaft
Immofonds Immobilien AG
Baumangagement:
Jaeger Coneco AG
Landschaftsarchitekt:Mettler Landschaftsarchitektur
Ingenieur: Synaxis AG
HLKS-Planer: Neukom Engineering AG
Elektroplaner: IBG Engineering AG
Bauphysik: Raumanzug
Brandschutz: Giessser Architektur + Planung
Bilder: Andreas Buschmann
ERSATZNEUBAU WOHNHAUS REGENSDORFERSTRASSE
ZÜRICH, 2022-2024
PROJEKTWETTBEWERB, 2016, 1. Preis
Das neue Wohnhaus liegt am durchgrünten Südhang von Zürich-Höngg. Die Parzelle schliesst zur Nordseite an die stark befahrene Regensdorferstrasse an und öffnet sich gegen Süden in die Tiefe des topographisch stark abfallenden Grundstücks. Der dreigeschossige Baukörper dehnt sich in Ost-West-Richtung über die komplette Breite der Parzelle aus und bildet so eine nördliche Strassenfront und eine südliche Gartenfront aus: Zur Strasse hin tritt der Baukörper als Abfolge von einzelnen, zusammengebauten Gebäuden in Erscheinung, die den Strassenraum fassen und in ihrer Grösse die Massstäblichkeit des Quartiers fortsetzen, während sich zurückgesetzt in den Buchten der Häuser jeweils die Eingänge befinden.
Zur Südseite hin greift der Baukörper in den Gartenraum aus und verzahnt sich mit ihm: Die Fassadenflächen gegen Süden hin werden vergrössert und alle Wohnungen profitieren von der Lage über der Stadt.
Die Wohnungen gliedern sich typologisch in zwei Arten: Die hangseitigen Durchstosswohnungen bilden ihr Zentrum in einem hallenartigen Wohnraum aus, dem südseitig die Loggia und strassenseitig die Küche angegliedert ist. Diagonale Blickbezüge ermöglichen aus der Tiefe der Wohnung Aussichten gegen Süden über die Stadt. Wohnküchen und Bäder sind zur Strasse hin angeordnet während die Zimmer zur Gartenseite hin orientiert sind. Die Gartenwohnungen andererseits sind als Abfolge von Eingang, Küche, Wohnraum und Loggia organisiert, so dass die Wohnungen sowohl Sichtbezüge zu den seitlichen Gärten als auch zum Süden hin haben.
Das Gebäude wird als Massivbau aus Beton und Mauerwerk erstellt. Die Hülle wird von einem tragenden und dämmenden Einsteinmauerwerk gebildet, das aussen mit hellem Waschputz überzogen ist. Die einheitliche Wirkung der Hülle verstärkt die plastische Erscheinung des Baukörpers. Die vorgelagerten Balkontürme auf der Südseite sind als Kontrast dazu als feine Stahlkonstruktionen ausformuliert. Unterschiedlich proportionierte, tief in der Leibung angeschlagene Fenster mit Schiebefaltläden überziehen das Volumen.
Die Topographie der Anlage wird mithilfe niedriger Mauern gefasst und terrassiert. Die Vegetation der Anlage wird durch eine Blumenwiese definiert. Mehrere Einzelbäume und Baumgruppen verbinden die unterschiedlichen Bereiche der Anlage. Hochstämmige Bäume an der Strasse bezeichnen den öffentlichen Bereich. In der direkten Nachbarschaft zu den privaten Terrassen, ergänzen Pflanzungen aus Ziergras, Kräutern und kleinere mehrstämmige Obstbäume das Pflanzsortiment. Freistehende Gruppen von Pfirsich, Feigen und Zieräpfel, verleihen der Südseite der Siedlung mit ihrer Blüte und Fruchtpracht einen üppigen Gartencharakter.
–
Erarbeitet mit Demuth Hagenmüller & Lamprecht Architekten
Mitarbeit Wettbewerb
Daniela Viviani, Lilian Demuth, Sandra Hagenmüller, Andreas Lamprecht
Mitarbeit Planung und Ausführung
Svenja Egge, Paul Frlicka, Pierre Chèvremont, Agnieszka Latak, Lilian Demuth, Sandra Hagenmüller, Andreas Lamprecht
Bauherrschaft
Immofonds Immobilien AG
Baumangagement:
Jaeger Coneco AG
Landschaftsarchitekt:Mettler Landschaftsarchitektur
Ingenieur: Synaxis AG
HLKS-Planer: Neukom Engineering AG
Elektroplaner: IBG Engineering AG
Bauphysik: Raumanzug
Brandschutz: Giessser Architektur + Planung
Bilder: Andreas Buschmann
ERSATZNEUBAU WOHNHAUS REGENSDORFERSTRASSE
ZÜRICH, 2022-2024
PROJEKTWETTBEWERB, 2016, 1. Preis
Das neue Wohnhaus liegt am durchgrünten Südhang von Zürich-Höngg. Die Parzelle schliesst zur Nordseite an die stark befahrene Regensdorferstrasse an und öffnet sich gegen Süden in die Tiefe des topographisch stark abfallenden Grundstücks. Der dreigeschossige Baukörper dehnt sich in Ost-West-Richtung über die komplette Breite der Parzelle aus und bildet so eine nördliche Strassenfront und eine südliche Gartenfront aus: Zur Strasse hin tritt der Baukörper als Abfolge von einzelnen, zusammengebauten Gebäuden in Erscheinung, die den Strassenraum fassen und in ihrer Grösse die Massstäblichkeit des Quartiers fortsetzen, während sich zurückgesetzt in den Buchten der Häuser jeweils die Eingänge befinden.
Zur Südseite hin greift der Baukörper in den Gartenraum aus und verzahnt sich mit ihm: Die Fassadenflächen gegen Süden hin werden vergrössert und alle Wohnungen profitieren von der Lage über der Stadt.
Die Wohnungen gliedern sich typologisch in zwei Arten: Die hangseitigen Durchstosswohnungen bilden ihr Zentrum in einem hallenartigen Wohnraum aus, dem südseitig die Loggia und strassenseitig die Küche angegliedert ist. Diagonale Blickbezüge ermöglichen aus der Tiefe der Wohnung Aussichten gegen Süden über die Stadt. Wohnküchen und Bäder sind zur Strasse hin angeordnet während die Zimmer zur Gartenseite hin orientiert sind. Die Gartenwohnungen andererseits sind als Abfolge von Eingang, Küche, Wohnraum und Loggia organisiert, so dass die Wohnungen sowohl Sichtbezüge zu den seitlichen Gärten als auch zum Süden hin haben.
Das Gebäude wird als Massivbau aus Beton und Mauerwerk erstellt. Die Hülle wird von einem tragenden und dämmenden Einsteinmauerwerk gebildet, das aussen mit hellem Waschputz überzogen ist. Die einheitliche Wirkung der Hülle verstärkt die plastische Erscheinung des Baukörpers. Die vorgelagerten Balkontürme auf der Südseite sind als Kontrast dazu als feine Stahlkonstruktionen ausformuliert. Unterschiedlich proportionierte, tief in der Leibung angeschlagene Fenster mit Schiebefaltläden überziehen das Volumen.
Die Topographie der Anlage wird mithilfe niedriger Mauern gefasst und terrassiert. Die Vegetation der Anlage wird durch eine Blumenwiese definiert. Mehrere Einzelbäume und Baumgruppen verbinden die unterschiedlichen Bereiche der Anlage. Hochstämmige Bäume an der Strasse bezeichnen den öffentlichen Bereich. In der direkten Nachbarschaft zu den privaten Terrassen, ergänzen Pflanzungen aus Ziergras, Kräutern und kleinere mehrstämmige Obstbäume das Pflanzsortiment. Freistehende Gruppen von Pfirsich, Feigen und Zieräpfel, verleihen der Südseite der Siedlung mit ihrer Blüte und Fruchtpracht einen üppigen Gartencharakter.
–
Erarbeitet mit Demuth Hagenmüller & Lamprecht Architekten
Mitarbeit Wettbewerb
Daniela Viviani, Lilian Demuth, Sandra Hagenmüller, Andreas Lamprecht
Mitarbeit Planung und Ausführung
Svenja Egge, Paul Frlicka, Pierre Chèvremont, Agnieszka Latak, Lilian Demuth, Sandra Hagenmüller, Andreas Lamprecht
Bauherrschaft
Immofonds Immobilien AG
Baumangagement:
Jaeger Coneco AG
Landschaftsarchitekt:Mettler Landschaftsarchitektur
Ingenieur: Synaxis AG
HLKS-Planer: Neukom Engineering AG
Elektroplaner: IBG Engineering AG
Bauphysik: Raumanzug
Brandschutz: Giessser Architektur + Planung
Bilder: Andreas Buschmann
ERSATZNEUBAU WOHNHAUS REGENSDORFERSTRASSE
ZÜRICH, 2022-2024
PROJEKTWETTBEWERB, 2016, 1. Preis
Das neue Wohnhaus liegt am durchgrünten Südhang von Zürich-Höngg. Die Parzelle schliesst zur Nordseite an die stark befahrene Regensdorferstrasse an und öffnet sich gegen Süden in die Tiefe des topographisch stark abfallenden Grundstücks. Der dreigeschossige Baukörper dehnt sich in Ost-West-Richtung über die komplette Breite der Parzelle aus und bildet so eine nördliche Strassenfront und eine südliche Gartenfront aus: Zur Strasse hin tritt der Baukörper als Abfolge von einzelnen, zusammengebauten Gebäuden in Erscheinung, die den Strassenraum fassen und in ihrer Grösse die Massstäblichkeit des Quartiers fortsetzen, während sich zurückgesetzt in den Buchten der Häuser jeweils die Eingänge befinden.
Zur Südseite hin greift der Baukörper in den Gartenraum aus und verzahnt sich mit ihm: Die Fassadenflächen gegen Süden hin werden vergrössert und alle Wohnungen profitieren von der Lage über der Stadt.
Die Wohnungen gliedern sich typologisch in zwei Arten: Die hangseitigen Durchstosswohnungen bilden ihr Zentrum in einem hallenartigen Wohnraum aus, dem südseitig die Loggia und strassenseitig die Küche angegliedert ist. Diagonale Blickbezüge ermöglichen aus der Tiefe der Wohnung Aussichten gegen Süden über die Stadt. Wohnküchen und Bäder sind zur Strasse hin angeordnet während die Zimmer zur Gartenseite hin orientiert sind. Die Gartenwohnungen andererseits sind als Abfolge von Eingang, Küche, Wohnraum und Loggia organisiert, so dass die Wohnungen sowohl Sichtbezüge zu den seitlichen Gärten als auch zum Süden hin haben.
Das Gebäude wird als Massivbau aus Beton und Mauerwerk erstellt. Die Hülle wird von einem tragenden und dämmenden Einsteinmauerwerk gebildet, das aussen mit hellem Waschputz überzogen ist. Die einheitliche Wirkung der Hülle verstärkt die plastische Erscheinung des Baukörpers. Die vorgelagerten Balkontürme auf der Südseite sind als Kontrast dazu als feine Stahlkonstruktionen ausformuliert. Unterschiedlich proportionierte, tief in der Leibung angeschlagene Fenster mit Schiebefaltläden überziehen das Volumen.
Die Topographie der Anlage wird mithilfe niedriger Mauern gefasst und terrassiert. Die Vegetation der Anlage wird durch eine Blumenwiese definiert. Mehrere Einzelbäume und Baumgruppen verbinden die unterschiedlichen Bereiche der Anlage. Hochstämmige Bäume an der Strasse bezeichnen den öffentlichen Bereich. In der direkten Nachbarschaft zu den privaten Terrassen, ergänzen Pflanzungen aus Ziergras, Kräutern und kleinere mehrstämmige Obstbäume das Pflanzsortiment. Freistehende Gruppen von Pfirsich, Feigen und Zieräpfel, verleihen der Südseite der Siedlung mit ihrer Blüte und Fruchtpracht einen üppigen Gartencharakter.
–
Erarbeitet mit Demuth Hagenmüller & Lamprecht Architekten
Mitarbeit Wettbewerb
Daniela Viviani, Lilian Demuth, Sandra Hagenmüller, Andreas Lamprecht
Mitarbeit Planung und Ausführung
Svenja Egge, Paul Frlicka, Pierre Chèvremont, Agnieszka Latak, Lilian Demuth, Sandra Hagenmüller, Andreas Lamprecht
Bauherrschaft
Immofonds Immobilien AG
Baumangagement:
Jaeger Coneco AG
Landschaftsarchitekt:Mettler Landschaftsarchitektur
Ingenieur: Synaxis AG
HLKS-Planer: Neukom Engineering AG
Elektroplaner: IBG Engineering AG
Bauphysik: Raumanzug
Brandschutz: Giessser Architektur + Planung
Bilder: Andreas Buschmann
ERSATZNEUBAU WOHNHAUS REGENSDORFERSTRASSE
ZÜRICH, 2022-2024
PROJEKTWETTBEWERB, 2016, 1. Preis
Das neue Wohnhaus liegt am durchgrünten Südhang von Zürich-Höngg. Die Parzelle schliesst zur Nordseite an die stark befahrene Regensdorferstrasse an und öffnet sich gegen Süden in die Tiefe des topographisch stark abfallenden Grundstücks. Der dreigeschossige Baukörper dehnt sich in Ost-West-Richtung über die komplette Breite der Parzelle aus und bildet so eine nördliche Strassenfront und eine südliche Gartenfront aus: Zur Strasse hin tritt der Baukörper als Abfolge von einzelnen, zusammengebauten Gebäuden in Erscheinung, die den Strassenraum fassen und in ihrer Grösse die Massstäblichkeit des Quartiers fortsetzen, während sich zurückgesetzt in den Buchten der Häuser jeweils die Eingänge befinden.
Zur Südseite hin greift der Baukörper in den Gartenraum aus und verzahnt sich mit ihm: Die Fassadenflächen gegen Süden hin werden vergrössert und alle Wohnungen profitieren von der Lage über der Stadt.
Die Wohnungen gliedern sich typologisch in zwei Arten: Die hangseitigen Durchstosswohnungen bilden ihr Zentrum in einem hallenartigen Wohnraum aus, dem südseitig die Loggia und strassenseitig die Küche angegliedert ist. Diagonale Blickbezüge ermöglichen aus der Tiefe der Wohnung Aussichten gegen Süden über die Stadt. Wohnküchen und Bäder sind zur Strasse hin angeordnet während die Zimmer zur Gartenseite hin orientiert sind. Die Gartenwohnungen andererseits sind als Abfolge von Eingang, Küche, Wohnraum und Loggia organisiert, so dass die Wohnungen sowohl Sichtbezüge zu den seitlichen Gärten als auch zum Süden hin haben.
Das Gebäude wird als Massivbau aus Beton und Mauerwerk erstellt. Die Hülle wird von einem tragenden und dämmenden Einsteinmauerwerk gebildet, das aussen mit hellem Waschputz überzogen ist. Die einheitliche Wirkung der Hülle verstärkt die plastische Erscheinung des Baukörpers. Die vorgelagerten Balkontürme auf der Südseite sind als Kontrast dazu als feine Stahlkonstruktionen ausformuliert. Unterschiedlich proportionierte, tief in der Leibung angeschlagene Fenster mit Schiebefaltläden überziehen das Volumen.
Die Topographie der Anlage wird mithilfe niedriger Mauern gefasst und terrassiert. Die Vegetation der Anlage wird durch eine Blumenwiese definiert. Mehrere Einzelbäume und Baumgruppen verbinden die unterschiedlichen Bereiche der Anlage. Hochstämmige Bäume an der Strasse bezeichnen den öffentlichen Bereich. In der direkten Nachbarschaft zu den privaten Terrassen, ergänzen Pflanzungen aus Ziergras, Kräutern und kleinere mehrstämmige Obstbäume das Pflanzsortiment. Freistehende Gruppen von Pfirsich, Feigen und Zieräpfel, verleihen der Südseite der Siedlung mit ihrer Blüte und Fruchtpracht einen üppigen Gartencharakter.
–
Erarbeitet mit Demuth Hagenmüller & Lamprecht Architekten
Mitarbeit Wettbewerb
Daniela Viviani, Lilian Demuth, Sandra Hagenmüller, Andreas Lamprecht
Mitarbeit Planung und Ausführung
Svenja Egge, Paul Frlicka, Pierre Chèvremont, Agnieszka Latak, Lilian Demuth, Sandra Hagenmüller, Andreas Lamprecht
Bauherrschaft
Immofonds Immobilien AG
Baumangagement:
Jaeger Coneco AG
Landschaftsarchitekt:Mettler Landschaftsarchitektur
Ingenieur: Synaxis AG
HLKS-Planer: Neukom Engineering AG
Elektroplaner: IBG Engineering AG
Bauphysik: Raumanzug
Brandschutz: Giessser Architektur + Planung
Bilder: Andreas Buschmann
ERSATZNEUBAU WOHNHAUS REGENSDORFERSTRASSE
ZÜRICH, 2022-2024
PROJEKTWETTBEWERB, 2016, 1. Preis
Das neue Wohnhaus liegt am durchgrünten Südhang von Zürich-Höngg. Die Parzelle schliesst zur Nordseite an die stark befahrene Regensdorferstrasse an und öffnet sich gegen Süden in die Tiefe des topographisch stark abfallenden Grundstücks. Der dreigeschossige Baukörper dehnt sich in Ost-West-Richtung über die komplette Breite der Parzelle aus und bildet so eine nördliche Strassenfront und eine südliche Gartenfront aus: Zur Strasse hin tritt der Baukörper als Abfolge von einzelnen, zusammengebauten Gebäuden in Erscheinung, die den Strassenraum fassen und in ihrer Grösse die Massstäblichkeit des Quartiers fortsetzen, während sich zurückgesetzt in den Buchten der Häuser jeweils die Eingänge befinden.
Zur Südseite hin greift der Baukörper in den Gartenraum aus und verzahnt sich mit ihm: Die Fassadenflächen gegen Süden hin werden vergrössert und alle Wohnungen profitieren von der Lage über der Stadt.
Die Wohnungen gliedern sich typologisch in zwei Arten: Die hangseitigen Durchstosswohnungen bilden ihr Zentrum in einem hallenartigen Wohnraum aus, dem südseitig die Loggia und strassenseitig die Küche angegliedert ist. Diagonale Blickbezüge ermöglichen aus der Tiefe der Wohnung Aussichten gegen Süden über die Stadt. Wohnküchen und Bäder sind zur Strasse hin angeordnet während die Zimmer zur Gartenseite hin orientiert sind. Die Gartenwohnungen andererseits sind als Abfolge von Eingang, Küche, Wohnraum und Loggia organisiert, so dass die Wohnungen sowohl Sichtbezüge zu den seitlichen Gärten als auch zum Süden hin haben.
Das Gebäude wird als Massivbau aus Beton und Mauerwerk erstellt. Die Hülle wird von einem tragenden und dämmenden Einsteinmauerwerk gebildet, das aussen mit hellem Waschputz überzogen ist. Die einheitliche Wirkung der Hülle verstärkt die plastische Erscheinung des Baukörpers. Die vorgelagerten Balkontürme auf der Südseite sind als Kontrast dazu als feine Stahlkonstruktionen ausformuliert. Unterschiedlich proportionierte, tief in der Leibung angeschlagene Fenster mit Schiebefaltläden überziehen das Volumen.
Die Topographie der Anlage wird mithilfe niedriger Mauern gefasst und terrassiert. Die Vegetation der Anlage wird durch eine Blumenwiese definiert. Mehrere Einzelbäume und Baumgruppen verbinden die unterschiedlichen Bereiche der Anlage. Hochstämmige Bäume an der Strasse bezeichnen den öffentlichen Bereich. In der direkten Nachbarschaft zu den privaten Terrassen, ergänzen Pflanzungen aus Ziergras, Kräutern und kleinere mehrstämmige Obstbäume das Pflanzsortiment. Freistehende Gruppen von Pfirsich, Feigen und Zieräpfel, verleihen der Südseite der Siedlung mit ihrer Blüte und Fruchtpracht einen üppigen Gartencharakter.
–
Erarbeitet mit Demuth Hagenmüller & Lamprecht Architekten
Mitarbeit Wettbewerb
Daniela Viviani, Lilian Demuth, Sandra Hagenmüller, Andreas Lamprecht
Mitarbeit Planung und Ausführung
Svenja Egge, Paul Frlicka, Pierre Chèvremont, Agnieszka Latak, Lilian Demuth, Sandra Hagenmüller, Andreas Lamprecht
Bauherrschaft
Immofonds Immobilien AG
Baumangagement:
Jaeger Coneco AG
Landschaftsarchitekt:Mettler Landschaftsarchitektur
Ingenieur: Synaxis AG
HLKS-Planer: Neukom Engineering AG
Elektroplaner: IBG Engineering AG
Bauphysik: Raumanzug
Brandschutz: Giessser Architektur + Planung
Bilder: Andreas Buschmann
ERSATZNEUBAU WOHNHAUS REGENSDORFERSTRASSE
ZÜRICH, 2022-2024
PROJEKTWETTBEWERB, 2016, 1. Preis
Das neue Wohnhaus liegt am durchgrünten Südhang von Zürich-Höngg. Die Parzelle schliesst zur Nordseite an die stark befahrene Regensdorferstrasse an und öffnet sich gegen Süden in die Tiefe des topographisch stark abfallenden Grundstücks. Der dreigeschossige Baukörper dehnt sich in Ost-West-Richtung über die komplette Breite der Parzelle aus und bildet so eine nördliche Strassenfront und eine südliche Gartenfront aus: Zur Strasse hin tritt der Baukörper als Abfolge von einzelnen, zusammengebauten Gebäuden in Erscheinung, die den Strassenraum fassen und in ihrer Grösse die Massstäblichkeit des Quartiers fortsetzen, während sich zurückgesetzt in den Buchten der Häuser jeweils die Eingänge befinden.
Zur Südseite hin greift der Baukörper in den Gartenraum aus und verzahnt sich mit ihm: Die Fassadenflächen gegen Süden hin werden vergrössert und alle Wohnungen profitieren von der Lage über der Stadt.
Die Wohnungen gliedern sich typologisch in zwei Arten: Die hangseitigen Durchstosswohnungen bilden ihr Zentrum in einem hallenartigen Wohnraum aus, dem südseitig die Loggia und strassenseitig die Küche angegliedert ist. Diagonale Blickbezüge ermöglichen aus der Tiefe der Wohnung Aussichten gegen Süden über die Stadt. Wohnküchen und Bäder sind zur Strasse hin angeordnet während die Zimmer zur Gartenseite hin orientiert sind. Die Gartenwohnungen andererseits sind als Abfolge von Eingang, Küche, Wohnraum und Loggia organisiert, so dass die Wohnungen sowohl Sichtbezüge zu den seitlichen Gärten als auch zum Süden hin haben.
Das Gebäude wird als Massivbau aus Beton und Mauerwerk erstellt. Die Hülle wird von einem tragenden und dämmenden Einsteinmauerwerk gebildet, das aussen mit hellem Waschputz überzogen ist. Die einheitliche Wirkung der Hülle verstärkt die plastische Erscheinung des Baukörpers. Die vorgelagerten Balkontürme auf der Südseite sind als Kontrast dazu als feine Stahlkonstruktionen ausformuliert. Unterschiedlich proportionierte, tief in der Leibung angeschlagene Fenster mit Schiebefaltläden überziehen das Volumen.
Die Topographie der Anlage wird mithilfe niedriger Mauern gefasst und terrassiert. Die Vegetation der Anlage wird durch eine Blumenwiese definiert. Mehrere Einzelbäume und Baumgruppen verbinden die unterschiedlichen Bereiche der Anlage. Hochstämmige Bäume an der Strasse bezeichnen den öffentlichen Bereich. In der direkten Nachbarschaft zu den privaten Terrassen, ergänzen Pflanzungen aus Ziergras, Kräutern und kleinere mehrstämmige Obstbäume das Pflanzsortiment. Freistehende Gruppen von Pfirsich, Feigen und Zieräpfel, verleihen der Südseite der Siedlung mit ihrer Blüte und Fruchtpracht einen üppigen Gartencharakter.
–
Erarbeitet mit Demuth Hagenmüller & Lamprecht Architekten
Mitarbeit Wettbewerb
Daniela Viviani, Lilian Demuth, Sandra Hagenmüller, Andreas Lamprecht
Mitarbeit Planung und Ausführung
Svenja Egge, Paul Frlicka, Pierre Chèvremont, Agnieszka Latak, Lilian Demuth, Sandra Hagenmüller, Andreas Lamprecht
Bauherrschaft
Immofonds Immobilien AG
Baumangagement:
Jaeger Coneco AG
Landschaftsarchitekt:Mettler Landschaftsarchitektur
Ingenieur: Synaxis AG
HLKS-Planer: Neukom Engineering AG
Elektroplaner: IBG Engineering AG
Bauphysik: Raumanzug
Brandschutz: Giessser Architektur + Planung
Bilder: Andreas Buschmann
ERSATZNEUBAU WOHNHAUS REGENSDORFERSTRASSE
ZÜRICH, 2022-2024
PROJEKTWETTBEWERB, 2016, 1. Preis
Das neue Wohnhaus liegt am durchgrünten Südhang von Zürich-Höngg. Die Parzelle schliesst zur Nordseite an die stark befahrene Regensdorferstrasse an und öffnet sich gegen Süden in die Tiefe des topographisch stark abfallenden Grundstücks. Der dreigeschossige Baukörper dehnt sich in Ost-West-Richtung über die komplette Breite der Parzelle aus und bildet so eine nördliche Strassenfront und eine südliche Gartenfront aus: Zur Strasse hin tritt der Baukörper als Abfolge von einzelnen, zusammengebauten Gebäuden in Erscheinung, die den Strassenraum fassen und in ihrer Grösse die Massstäblichkeit des Quartiers fortsetzen, während sich zurückgesetzt in den Buchten der Häuser jeweils die Eingänge befinden.
Zur Südseite hin greift der Baukörper in den Gartenraum aus und verzahnt sich mit ihm: Die Fassadenflächen gegen Süden hin werden vergrössert und alle Wohnungen profitieren von der Lage über der Stadt.
Die Wohnungen gliedern sich typologisch in zwei Arten: Die hangseitigen Durchstosswohnungen bilden ihr Zentrum in einem hallenartigen Wohnraum aus, dem südseitig die Loggia und strassenseitig die Küche angegliedert ist. Diagonale Blickbezüge ermöglichen aus der Tiefe der Wohnung Aussichten gegen Süden über die Stadt. Wohnküchen und Bäder sind zur Strasse hin angeordnet während die Zimmer zur Gartenseite hin orientiert sind. Die Gartenwohnungen andererseits sind als Abfolge von Eingang, Küche, Wohnraum und Loggia organisiert, so dass die Wohnungen sowohl Sichtbezüge zu den seitlichen Gärten als auch zum Süden hin haben.
Das Gebäude wird als Massivbau aus Beton und Mauerwerk erstellt. Die Hülle wird von einem tragenden und dämmenden Einsteinmauerwerk gebildet, das aussen mit hellem Waschputz überzogen ist. Die einheitliche Wirkung der Hülle verstärkt die plastische Erscheinung des Baukörpers. Die vorgelagerten Balkontürme auf der Südseite sind als Kontrast dazu als feine Stahlkonstruktionen ausformuliert. Unterschiedlich proportionierte, tief in der Leibung angeschlagene Fenster mit Schiebefaltläden überziehen das Volumen.
Die Topographie der Anlage wird mithilfe niedriger Mauern gefasst und terrassiert. Die Vegetation der Anlage wird durch eine Blumenwiese definiert. Mehrere Einzelbäume und Baumgruppen verbinden die unterschiedlichen Bereiche der Anlage. Hochstämmige Bäume an der Strasse bezeichnen den öffentlichen Bereich. In der direkten Nachbarschaft zu den privaten Terrassen, ergänzen Pflanzungen aus Ziergras, Kräutern und kleinere mehrstämmige Obstbäume das Pflanzsortiment. Freistehende Gruppen von Pfirsich, Feigen und Zieräpfel, verleihen der Südseite der Siedlung mit ihrer Blüte und Fruchtpracht einen üppigen Gartencharakter.
–
Erarbeitet mit Demuth Hagenmüller & Lamprecht Architekten
Mitarbeit Wettbewerb
Daniela Viviani, Lilian Demuth, Sandra Hagenmüller, Andreas Lamprecht
Mitarbeit Planung und Ausführung
Svenja Egge, Paul Frlicka, Pierre Chèvremont, Agnieszka Latak, Lilian Demuth, Sandra Hagenmüller, Andreas Lamprecht
Bauherrschaft
Immofonds Immobilien AG
Baumangagement:
Jaeger Coneco AG
Landschaftsarchitekt:Mettler Landschaftsarchitektur
Ingenieur: Synaxis AG
HLKS-Planer: Neukom Engineering AG
Elektroplaner: IBG Engineering AG
Bauphysik: Raumanzug
Brandschutz: Giessser Architektur + Planung
Bilder: Andreas Buschmann
ERSATZNEUBAU WOHNHAUS REGENSDORFERSTRASSE
ZÜRICH, 2022-2024
PROJEKTWETTBEWERB, 2016, 1. Preis
Das neue Wohnhaus liegt am durchgrünten Südhang von Zürich-Höngg. Die Parzelle schliesst zur Nordseite an die stark befahrene Regensdorferstrasse an und öffnet sich gegen Süden in die Tiefe des topographisch stark abfallenden Grundstücks. Der dreigeschossige Baukörper dehnt sich in Ost-West-Richtung über die komplette Breite der Parzelle aus und bildet so eine nördliche Strassenfront und eine südliche Gartenfront aus: Zur Strasse hin tritt der Baukörper als Abfolge von einzelnen, zusammengebauten Gebäuden in Erscheinung, die den Strassenraum fassen und in ihrer Grösse die Massstäblichkeit des Quartiers fortsetzen, während sich zurückgesetzt in den Buchten der Häuser jeweils die Eingänge befinden.
Zur Südseite hin greift der Baukörper in den Gartenraum aus und verzahnt sich mit ihm: Die Fassadenflächen gegen Süden hin werden vergrössert und alle Wohnungen profitieren von der Lage über der Stadt.
Die Wohnungen gliedern sich typologisch in zwei Arten: Die hangseitigen Durchstosswohnungen bilden ihr Zentrum in einem hallenartigen Wohnraum aus, dem südseitig die Loggia und strassenseitig die Küche angegliedert ist. Diagonale Blickbezüge ermöglichen aus der Tiefe der Wohnung Aussichten gegen Süden über die Stadt. Wohnküchen und Bäder sind zur Strasse hin angeordnet während die Zimmer zur Gartenseite hin orientiert sind. Die Gartenwohnungen andererseits sind als Abfolge von Eingang, Küche, Wohnraum und Loggia organisiert, so dass die Wohnungen sowohl Sichtbezüge zu den seitlichen Gärten als auch zum Süden hin haben.
Das Gebäude wird als Massivbau aus Beton und Mauerwerk erstellt. Die Hülle wird von einem tragenden und dämmenden Einsteinmauerwerk gebildet, das aussen mit hellem Waschputz überzogen ist. Die einheitliche Wirkung der Hülle verstärkt die plastische Erscheinung des Baukörpers. Die vorgelagerten Balkontürme auf der Südseite sind als Kontrast dazu als feine Stahlkonstruktionen ausformuliert. Unterschiedlich proportionierte, tief in der Leibung angeschlagene Fenster mit Schiebefaltläden überziehen das Volumen.
Die Topographie der Anlage wird mithilfe niedriger Mauern gefasst und terrassiert. Die Vegetation der Anlage wird durch eine Blumenwiese definiert. Mehrere Einzelbäume und Baumgruppen verbinden die unterschiedlichen Bereiche der Anlage. Hochstämmige Bäume an der Strasse bezeichnen den öffentlichen Bereich. In der direkten Nachbarschaft zu den privaten Terrassen, ergänzen Pflanzungen aus Ziergras, Kräutern und kleinere mehrstämmige Obstbäume das Pflanzsortiment. Freistehende Gruppen von Pfirsich, Feigen und Zieräpfel, verleihen der Südseite der Siedlung mit ihrer Blüte und Fruchtpracht einen üppigen Gartencharakter.
–
Erarbeitet mit Demuth Hagenmüller & Lamprecht Architekten
Mitarbeit Wettbewerb
Daniela Viviani, Lilian Demuth, Sandra Hagenmüller, Andreas Lamprecht
Mitarbeit Planung und Ausführung
Svenja Egge, Paul Frlicka, Pierre Chèvremont, Agnieszka Latak, Lilian Demuth, Sandra Hagenmüller, Andreas Lamprecht
Bauherrschaft
Immofonds Immobilien AG
Baumangagement:
Jaeger Coneco AG
Landschaftsarchitekt:Mettler Landschaftsarchitektur
Ingenieur: Synaxis AG
HLKS-Planer: Neukom Engineering AG
Elektroplaner: IBG Engineering AG
Bauphysik: Raumanzug
Brandschutz: Giessser Architektur + Planung
Bilder: Andreas Buschmann
ERSATZNEUBAU WOHNHAUS REGENSDORFERSTRASSE
ZÜRICH, 2022-2024
PROJEKTWETTBEWERB, 2016, 1. Preis
Das neue Wohnhaus liegt am durchgrünten Südhang von Zürich-Höngg. Die Parzelle schliesst zur Nordseite an die stark befahrene Regensdorferstrasse an und öffnet sich gegen Süden in die Tiefe des topographisch stark abfallenden Grundstücks. Der dreigeschossige Baukörper dehnt sich in Ost-West-Richtung über die komplette Breite der Parzelle aus und bildet so eine nördliche Strassenfront und eine südliche Gartenfront aus: Zur Strasse hin tritt der Baukörper als Abfolge von einzelnen, zusammengebauten Gebäuden in Erscheinung, die den Strassenraum fassen und in ihrer Grösse die Massstäblichkeit des Quartiers fortsetzen, während sich zurückgesetzt in den Buchten der Häuser jeweils die Eingänge befinden.
Zur Südseite hin greift der Baukörper in den Gartenraum aus und verzahnt sich mit ihm: Die Fassadenflächen gegen Süden hin werden vergrössert und alle Wohnungen profitieren von der Lage über der Stadt.
Die Wohnungen gliedern sich typologisch in zwei Arten: Die hangseitigen Durchstosswohnungen bilden ihr Zentrum in einem hallenartigen Wohnraum aus, dem südseitig die Loggia und strassenseitig die Küche angegliedert ist. Diagonale Blickbezüge ermöglichen aus der Tiefe der Wohnung Aussichten gegen Süden über die Stadt. Wohnküchen und Bäder sind zur Strasse hin angeordnet während die Zimmer zur Gartenseite hin orientiert sind. Die Gartenwohnungen andererseits sind als Abfolge von Eingang, Küche, Wohnraum und Loggia organisiert, so dass die Wohnungen sowohl Sichtbezüge zu den seitlichen Gärten als auch zum Süden hin haben.
Das Gebäude wird als Massivbau aus Beton und Mauerwerk erstellt. Die Hülle wird von einem tragenden und dämmenden Einsteinmauerwerk gebildet, das aussen mit hellem Waschputz überzogen ist. Die einheitliche Wirkung der Hülle verstärkt die plastische Erscheinung des Baukörpers. Die vorgelagerten Balkontürme auf der Südseite sind als Kontrast dazu als feine Stahlkonstruktionen ausformuliert. Unterschiedlich proportionierte, tief in der Leibung angeschlagene Fenster mit Schiebefaltläden überziehen das Volumen.
Die Topographie der Anlage wird mithilfe niedriger Mauern gefasst und terrassiert. Die Vegetation der Anlage wird durch eine Blumenwiese definiert. Mehrere Einzelbäume und Baumgruppen verbinden die unterschiedlichen Bereiche der Anlage. Hochstämmige Bäume an der Strasse bezeichnen den öffentlichen Bereich. In der direkten Nachbarschaft zu den privaten Terrassen, ergänzen Pflanzungen aus Ziergras, Kräutern und kleinere mehrstämmige Obstbäume das Pflanzsortiment. Freistehende Gruppen von Pfirsich, Feigen und Zieräpfel, verleihen der Südseite der Siedlung mit ihrer Blüte und Fruchtpracht einen üppigen Gartencharakter.
–
Erarbeitet mit Demuth Hagenmüller & Lamprecht Architekten
Mitarbeit Wettbewerb
Daniela Viviani, Lilian Demuth, Sandra Hagenmüller, Andreas Lamprecht
Mitarbeit Planung und Ausführung
Svenja Egge, Paul Frlicka, Pierre Chèvremont, Agnieszka Latak, Lilian Demuth, Sandra Hagenmüller, Andreas Lamprecht
Bauherrschaft
Immofonds Immobilien AG
Baumangagement:
Jaeger Coneco AG
Landschaftsarchitekt:Mettler Landschaftsarchitektur
Ingenieur: Synaxis AG
HLKS-Planer: Neukom Engineering AG
Elektroplaner: IBG Engineering AG
Bauphysik: Raumanzug
Brandschutz: Giessser Architektur + Planung
Bilder: Andreas Buschmann
ERSATZNEUBAU WOHNHAUS REGENSDORFERSTRASSE
ZÜRICH, 2022-2024
PROJEKTWETTBEWERB, 2016, 1. Preis
Das neue Wohnhaus liegt am durchgrünten Südhang von Zürich-Höngg. Die Parzelle schliesst zur Nordseite an die stark befahrene Regensdorferstrasse an und öffnet sich gegen Süden in die Tiefe des topographisch stark abfallenden Grundstücks. Der dreigeschossige Baukörper dehnt sich in Ost-West-Richtung über die komplette Breite der Parzelle aus und bildet so eine nördliche Strassenfront und eine südliche Gartenfront aus: Zur Strasse hin tritt der Baukörper als Abfolge von einzelnen, zusammengebauten Gebäuden in Erscheinung, die den Strassenraum fassen und in ihrer Grösse die Massstäblichkeit des Quartiers fortsetzen, während sich zurückgesetzt in den Buchten der Häuser jeweils die Eingänge befinden.
Zur Südseite hin greift der Baukörper in den Gartenraum aus und verzahnt sich mit ihm: Die Fassadenflächen gegen Süden hin werden vergrössert und alle Wohnungen profitieren von der Lage über der Stadt.
Die Wohnungen gliedern sich typologisch in zwei Arten: Die hangseitigen Durchstosswohnungen bilden ihr Zentrum in einem hallenartigen Wohnraum aus, dem südseitig die Loggia und strassenseitig die Küche angegliedert ist. Diagonale Blickbezüge ermöglichen aus der Tiefe der Wohnung Aussichten gegen Süden über die Stadt. Wohnküchen und Bäder sind zur Strasse hin angeordnet während die Zimmer zur Gartenseite hin orientiert sind. Die Gartenwohnungen andererseits sind als Abfolge von Eingang, Küche, Wohnraum und Loggia organisiert, so dass die Wohnungen sowohl Sichtbezüge zu den seitlichen Gärten als auch zum Süden hin haben.
Das Gebäude wird als Massivbau aus Beton und Mauerwerk erstellt. Die Hülle wird von einem tragenden und dämmenden Einsteinmauerwerk gebildet, das aussen mit hellem Waschputz überzogen ist. Die einheitliche Wirkung der Hülle verstärkt die plastische Erscheinung des Baukörpers. Die vorgelagerten Balkontürme auf der Südseite sind als Kontrast dazu als feine Stahlkonstruktionen ausformuliert. Unterschiedlich proportionierte, tief in der Leibung angeschlagene Fenster mit Schiebefaltläden überziehen das Volumen.
Die Topographie der Anlage wird mithilfe niedriger Mauern gefasst und terrassiert. Die Vegetation der Anlage wird durch eine Blumenwiese definiert. Mehrere Einzelbäume und Baumgruppen verbinden die unterschiedlichen Bereiche der Anlage. Hochstämmige Bäume an der Strasse bezeichnen den öffentlichen Bereich. In der direkten Nachbarschaft zu den privaten Terrassen, ergänzen Pflanzungen aus Ziergras, Kräutern und kleinere mehrstämmige Obstbäume das Pflanzsortiment. Freistehende Gruppen von Pfirsich, Feigen und Zieräpfel, verleihen der Südseite der Siedlung mit ihrer Blüte und Fruchtpracht einen üppigen Gartencharakter.
–
Erarbeitet mit Demuth Hagenmüller & Lamprecht Architekten
Mitarbeit Wettbewerb
Daniela Viviani, Lilian Demuth, Sandra Hagenmüller, Andreas Lamprecht
Mitarbeit Planung und Ausführung
Svenja Egge, Paul Frlicka, Pierre Chèvremont, Agnieszka Latak, Lilian Demuth, Sandra Hagenmüller, Andreas Lamprecht
Bauherrschaft
Immofonds Immobilien AG
Baumangagement:
Jaeger Coneco AG
Landschaftsarchitekt:Mettler Landschaftsarchitektur
Ingenieur: Synaxis AG
HLKS-Planer: Neukom Engineering AG
Elektroplaner: IBG Engineering AG
Bauphysik: Raumanzug
Brandschutz: Giessser Architektur + Planung
Bilder: Andreas Buschmann
UMBAU GEWERBEHAUS ZENTRALSTRASSE, WOHNEN UND GEWERBE
ZÜRICH, 2015-2017
PROJEKTWETTBEWERB, 2011, 1. Preis
Innerhalb des durch die typischen Bauten des ausgehenden 19. Jahrhunderts geprägten, kleinparzelligen Blockrandquartiers stellt die Liegenschaft an der Ecke Zentralstrasse/ Bremgartnerstrasse eine der grossmassstäblichen Ausnahmen aus den 60er- und 70er-Jahren dar. Dem Gebäude fällt dadurch eine Sonderstellung zu.
Auf städtebaulicher Ebene sind es kleine Massnahmen in Form schiefwinkliger Erkerausstülpungen, welche den Hochbau im Strassengeviert verorten und die bewegte Fassadentektonik etablieren. Für die überformende Massnahme am Kopfbau, die ergänzenden Aufbauten des Flachbaus und Attikageschosses und schliesslich für die raumdefinierenden Wände der Wohnungen wird die bewegte Wand zum Leitmotiv.
Das Gebäude wird auf seine Grundstruktur zurückgebaut, welche als generierendes Prinzip sowohl für die Fassaden als auch den Zuschnitt der Wohnungen massgebend ist. Durch die Bewegtheit der inneren Wände kann das für Wohnungsbau ungünstige Achsmass und starre Stützenraster umspielt werden. Bestehende Stützen werden in die neuen Wände integriert oder freigestellt. An der tiefsten Stelle des Langbaus ermöglicht der sich über vier Geschosse nach oben entfaltende Lichthof jeweils zwei Durchstosswohnungen. Deren Tiefe von beinahe 26 Metern wird dabei in einen mehrfach geknickten Bewegungs- und Aufenthaltsraum umgewandelt. Der Lichtkörper entwickelt sich über die Geschosse als Oblicht in überhohen Räumen hin zu einem raumhohen Lichthof. Ab dem dritten, respektive vierten Obergeschoss entstehen durch die Staffelung der Aufbauten zur Erika- und Bremgartnerstrasse vorgelagerte Terrassen. Eine gemeinsame Dachterrasse für den Kopfbau ergänzt dessen Wohnungen mit einem wertvollen Aussenraum. Die Hochparterresituation im Langbau wird in Form von Studios und Stadthausmaisonetten als Wohnraum genutzt, während sich im Erdgeschoss des Kopfbaus vier Gewerberäume zur Zentralstrasse hin adressieren.
Eingefärbte Fassadenelemente aus Glasfaserbeton fügen sich zu einem geflochtenen Ganzen aus Gesimsen, Lisenen und Wandflächen, welches das Gebäude zu einem integrativen Glied des Gevierts werden lässt. Im Ausdruck verleiht eine feine Profilierung der Elemente dem Gebäude etwas Textiles, welches mit der Art der Fügung korreliert.
–
Erarbeitet mit Demuth Hagenmüller & Lamprecht Architekten
Mitarbeit Wettbewerb
Lilian Demuth, Sandra Hagenmüller
Mitarbeit Planung und Ausführung
Jutta Romberg, Tanja Hustinx, Alessia Agosti, Michael Grunitz, Lilian Demuth, Sandra Hagenmüller, Andreas Lamprecht
Bauherrschaft
moser bau Immobilien Ag
Baumangagement:
Implenia AG
Landschaftsarchitekt: Mettler Landschaftsarchitektur
Ingenieur: Dr. J. Grob & Partner AG
HLKS-Planer: Getec AG
Elektroplaner: R+B Engineering AG
Bauphysik: Buri Bauphysik & Akustik AG
Brandschutz: Giessser Architektur + Planung
UMBAU GEWERBEHAUS ZENTRALSTRASSE, WOHNEN UND GEWERBE
ZÜRICH, 2015-2017
PROJEKTWETTBEWERB, 2011, 1. Preis
Innerhalb des durch die typischen Bauten des ausgehenden 19. Jahrhunderts geprägten, kleinparzelligen Blockrandquartiers stellt die Liegenschaft an der Ecke Zentralstrasse/ Bremgartnerstrasse eine der grossmassstäblichen Ausnahmen aus den 60er- und 70er-Jahren dar. Dem Gebäude fällt dadurch eine Sonderstellung zu.
Auf städtebaulicher Ebene sind es kleine Massnahmen in Form schiefwinkliger Erkerausstülpungen, welche den Hochbau im Strassengeviert verorten und die bewegte Fassadentektonik etablieren. Für die überformende Massnahme am Kopfbau, die ergänzenden Aufbauten des Flachbaus und Attikageschosses und schliesslich für die raumdefinierenden Wände der Wohnungen wird die bewegte Wand zum Leitmotiv.
Das Gebäude wird auf seine Grundstruktur zurückgebaut, welche als generierendes Prinzip sowohl für die Fassaden als auch den Zuschnitt der Wohnungen massgebend ist. Durch die Bewegtheit der inneren Wände kann das für Wohnungsbau ungünstige Achsmass und starre Stützenraster umspielt werden. Bestehende Stützen werden in die neuen Wände integriert oder freigestellt. An der tiefsten Stelle des Langbaus ermöglicht der sich über vier Geschosse nach oben entfaltende Lichthof jeweils zwei Durchstosswohnungen. Deren Tiefe von beinahe 26 Metern wird dabei in einen mehrfach geknickten Bewegungs- und Aufenthaltsraum umgewandelt. Der Lichtkörper entwickelt sich über die Geschosse als Oblicht in überhohen Räumen hin zu einem raumhohen Lichthof. Ab dem dritten, respektive vierten Obergeschoss entstehen durch die Staffelung der Aufbauten zur Erika- und Bremgartnerstrasse vorgelagerte Terrassen. Eine gemeinsame Dachterrasse für den Kopfbau ergänzt dessen Wohnungen mit einem wertvollen Aussenraum. Die Hochparterresituation im Langbau wird in Form von Studios und Stadthausmaisonetten als Wohnraum genutzt, während sich im Erdgeschoss des Kopfbaus vier Gewerberäume zur Zentralstrasse hin adressieren.
Eingefärbte Fassadenelemente aus Glasfaserbeton fügen sich zu einem geflochtenen Ganzen aus Gesimsen, Lisenen und Wandflächen, welches das Gebäude zu einem integrativen Glied des Gevierts werden lässt. Im Ausdruck verleiht eine feine Profilierung der Elemente dem Gebäude etwas Textiles, welches mit der Art der Fügung korreliert.
–
Erarbeitet mit Demuth Hagenmüller & Lamprecht Architekten
Mitarbeit Wettbewerb
Lilian Demuth, Sandra Hagenmüller
Mitarbeit Planung und Ausführung
Jutta Romberg, Tanja Hustinx, Alessia Agosti, Michael Grunitz, Lilian Demuth, Sandra Hagenmüller, Andreas Lamprecht
Bauherrschaft
moser bau Immobilien Ag
Baumangagement:
Implenia AG
Landschaftsarchitekt: Mettler Landschaftsarchitektur
Ingenieur: Dr. J. Grob & Partner AG
HLKS-Planer: Getec AG
Elektroplaner: R+B Engineering AG
Bauphysik: Buri Bauphysik & Akustik AG
Brandschutz: Giessser Architektur + Planung
UMBAU GEWERBEHAUS ZENTRALSTRASSE, WOHNEN UND GEWERBE
ZÜRICH, 2015-2017
PROJEKTWETTBEWERB, 2011, 1. Preis
Innerhalb des durch die typischen Bauten des ausgehenden 19. Jahrhunderts geprägten, kleinparzelligen Blockrandquartiers stellt die Liegenschaft an der Ecke Zentralstrasse/ Bremgartnerstrasse eine der grossmassstäblichen Ausnahmen aus den 60er- und 70er-Jahren dar. Dem Gebäude fällt dadurch eine Sonderstellung zu.
Auf städtebaulicher Ebene sind es kleine Massnahmen in Form schiefwinkliger Erkerausstülpungen, welche den Hochbau im Strassengeviert verorten und die bewegte Fassadentektonik etablieren. Für die überformende Massnahme am Kopfbau, die ergänzenden Aufbauten des Flachbaus und Attikageschosses und schliesslich für die raumdefinierenden Wände der Wohnungen wird die bewegte Wand zum Leitmotiv.
Das Gebäude wird auf seine Grundstruktur zurückgebaut, welche als generierendes Prinzip sowohl für die Fassaden als auch den Zuschnitt der Wohnungen massgebend ist. Durch die Bewegtheit der inneren Wände kann das für Wohnungsbau ungünstige Achsmass und starre Stützenraster umspielt werden. Bestehende Stützen werden in die neuen Wände integriert oder freigestellt. An der tiefsten Stelle des Langbaus ermöglicht der sich über vier Geschosse nach oben entfaltende Lichthof jeweils zwei Durchstosswohnungen. Deren Tiefe von beinahe 26 Metern wird dabei in einen mehrfach geknickten Bewegungs- und Aufenthaltsraum umgewandelt. Der Lichtkörper entwickelt sich über die Geschosse als Oblicht in überhohen Räumen hin zu einem raumhohen Lichthof. Ab dem dritten, respektive vierten Obergeschoss entstehen durch die Staffelung der Aufbauten zur Erika- und Bremgartnerstrasse vorgelagerte Terrassen. Eine gemeinsame Dachterrasse für den Kopfbau ergänzt dessen Wohnungen mit einem wertvollen Aussenraum. Die Hochparterresituation im Langbau wird in Form von Studios und Stadthausmaisonetten als Wohnraum genutzt, während sich im Erdgeschoss des Kopfbaus vier Gewerberäume zur Zentralstrasse hin adressieren.
Eingefärbte Fassadenelemente aus Glasfaserbeton fügen sich zu einem geflochtenen Ganzen aus Gesimsen, Lisenen und Wandflächen, welches das Gebäude zu einem integrativen Glied des Gevierts werden lässt. Im Ausdruck verleiht eine feine Profilierung der Elemente dem Gebäude etwas Textiles, welches mit der Art der Fügung korreliert.
–
Erarbeitet mit Demuth Hagenmüller & Lamprecht Architekten
Mitarbeit Wettbewerb
Lilian Demuth, Sandra Hagenmüller
Mitarbeit Planung und Ausführung
Jutta Romberg, Tanja Hustinx, Alessia Agosti, Michael Grunitz, Lilian Demuth, Sandra Hagenmüller, Andreas Lamprecht
Bauherrschaft
moser bau Immobilien Ag
Baumangagement:
Implenia AG
Landschaftsarchitekt: Mettler Landschaftsarchitektur
Ingenieur: Dr. J. Grob & Partner AG
HLKS-Planer: Getec AG
Elektroplaner: R+B Engineering AG
Bauphysik: Buri Bauphysik & Akustik AG
Brandschutz: Giessser Architektur + Planung
UMBAU GEWERBEHAUS ZENTRALSTRASSE, WOHNEN UND GEWERBE
ZÜRICH, 2015-2017
PROJEKTWETTBEWERB, 2011, 1. Preis
Innerhalb des durch die typischen Bauten des ausgehenden 19. Jahrhunderts geprägten, kleinparzelligen Blockrandquartiers stellt die Liegenschaft an der Ecke Zentralstrasse/ Bremgartnerstrasse eine der grossmassstäblichen Ausnahmen aus den 60er- und 70er-Jahren dar. Dem Gebäude fällt dadurch eine Sonderstellung zu.
Auf städtebaulicher Ebene sind es kleine Massnahmen in Form schiefwinkliger Erkerausstülpungen, welche den Hochbau im Strassengeviert verorten und die bewegte Fassadentektonik etablieren. Für die überformende Massnahme am Kopfbau, die ergänzenden Aufbauten des Flachbaus und Attikageschosses und schliesslich für die raumdefinierenden Wände der Wohnungen wird die bewegte Wand zum Leitmotiv.
Das Gebäude wird auf seine Grundstruktur zurückgebaut, welche als generierendes Prinzip sowohl für die Fassaden als auch den Zuschnitt der Wohnungen massgebend ist. Durch die Bewegtheit der inneren Wände kann das für Wohnungsbau ungünstige Achsmass und starre Stützenraster umspielt werden. Bestehende Stützen werden in die neuen Wände integriert oder freigestellt. An der tiefsten Stelle des Langbaus ermöglicht der sich über vier Geschosse nach oben entfaltende Lichthof jeweils zwei Durchstosswohnungen. Deren Tiefe von beinahe 26 Metern wird dabei in einen mehrfach geknickten Bewegungs- und Aufenthaltsraum umgewandelt. Der Lichtkörper entwickelt sich über die Geschosse als Oblicht in überhohen Räumen hin zu einem raumhohen Lichthof. Ab dem dritten, respektive vierten Obergeschoss entstehen durch die Staffelung der Aufbauten zur Erika- und Bremgartnerstrasse vorgelagerte Terrassen. Eine gemeinsame Dachterrasse für den Kopfbau ergänzt dessen Wohnungen mit einem wertvollen Aussenraum. Die Hochparterresituation im Langbau wird in Form von Studios und Stadthausmaisonetten als Wohnraum genutzt, während sich im Erdgeschoss des Kopfbaus vier Gewerberäume zur Zentralstrasse hin adressieren.
Eingefärbte Fassadenelemente aus Glasfaserbeton fügen sich zu einem geflochtenen Ganzen aus Gesimsen, Lisenen und Wandflächen, welches das Gebäude zu einem integrativen Glied des Gevierts werden lässt. Im Ausdruck verleiht eine feine Profilierung der Elemente dem Gebäude etwas Textiles, welches mit der Art der Fügung korreliert.
–
Erarbeitet mit Demuth Hagenmüller & Lamprecht Architekten
Mitarbeit Wettbewerb
Lilian Demuth, Sandra Hagenmüller
Mitarbeit Planung und Ausführung
Jutta Romberg, Tanja Hustinx, Alessia Agosti, Michael Grunitz, Lilian Demuth, Sandra Hagenmüller, Andreas Lamprecht
Bauherrschaft
moser bau Immobilien Ag
Baumangagement:
Implenia AG
Landschaftsarchitekt: Mettler Landschaftsarchitektur
Ingenieur: Dr. J. Grob & Partner AG
HLKS-Planer: Getec AG
Elektroplaner: R+B Engineering AG
Bauphysik: Buri Bauphysik & Akustik AG
Brandschutz: Giessser Architektur + Planung
UMBAU GEWERBEHAUS ZENTRALSTRASSE, WOHNEN UND GEWERBE
ZÜRICH, 2015-2017
PROJEKTWETTBEWERB, 2011, 1. Preis
Innerhalb des durch die typischen Bauten des ausgehenden 19. Jahrhunderts geprägten, kleinparzelligen Blockrandquartiers stellt die Liegenschaft an der Ecke Zentralstrasse/ Bremgartnerstrasse eine der grossmassstäblichen Ausnahmen aus den 60er- und 70er-Jahren dar. Dem Gebäude fällt dadurch eine Sonderstellung zu.
Auf städtebaulicher Ebene sind es kleine Massnahmen in Form schiefwinkliger Erkerausstülpungen, welche den Hochbau im Strassengeviert verorten und die bewegte Fassadentektonik etablieren. Für die überformende Massnahme am Kopfbau, die ergänzenden Aufbauten des Flachbaus und Attikageschosses und schliesslich für die raumdefinierenden Wände der Wohnungen wird die bewegte Wand zum Leitmotiv.
Das Gebäude wird auf seine Grundstruktur zurückgebaut, welche als generierendes Prinzip sowohl für die Fassaden als auch den Zuschnitt der Wohnungen massgebend ist. Durch die Bewegtheit der inneren Wände kann das für Wohnungsbau ungünstige Achsmass und starre Stützenraster umspielt werden. Bestehende Stützen werden in die neuen Wände integriert oder freigestellt. An der tiefsten Stelle des Langbaus ermöglicht der sich über vier Geschosse nach oben entfaltende Lichthof jeweils zwei Durchstosswohnungen. Deren Tiefe von beinahe 26 Metern wird dabei in einen mehrfach geknickten Bewegungs- und Aufenthaltsraum umgewandelt. Der Lichtkörper entwickelt sich über die Geschosse als Oblicht in überhohen Räumen hin zu einem raumhohen Lichthof. Ab dem dritten, respektive vierten Obergeschoss entstehen durch die Staffelung der Aufbauten zur Erika- und Bremgartnerstrasse vorgelagerte Terrassen. Eine gemeinsame Dachterrasse für den Kopfbau ergänzt dessen Wohnungen mit einem wertvollen Aussenraum. Die Hochparterresituation im Langbau wird in Form von Studios und Stadthausmaisonetten als Wohnraum genutzt, während sich im Erdgeschoss des Kopfbaus vier Gewerberäume zur Zentralstrasse hin adressieren.
Eingefärbte Fassadenelemente aus Glasfaserbeton fügen sich zu einem geflochtenen Ganzen aus Gesimsen, Lisenen und Wandflächen, welches das Gebäude zu einem integrativen Glied des Gevierts werden lässt. Im Ausdruck verleiht eine feine Profilierung der Elemente dem Gebäude etwas Textiles, welches mit der Art der Fügung korreliert.
–
Erarbeitet mit Demuth Hagenmüller & Lamprecht Architekten
Mitarbeit Wettbewerb
Lilian Demuth, Sandra Hagenmüller
Mitarbeit Planung und Ausführung
Jutta Romberg, Tanja Hustinx, Alessia Agosti, Michael Grunitz, Lilian Demuth, Sandra Hagenmüller, Andreas Lamprecht
Bauherrschaft
moser bau Immobilien Ag
Baumangagement:
Implenia AG
Landschaftsarchitekt: Mettler Landschaftsarchitektur
Ingenieur: Dr. J. Grob & Partner AG
HLKS-Planer: Getec AG
Elektroplaner: R+B Engineering AG
Bauphysik: Buri Bauphysik & Akustik AG
Brandschutz: Giessser Architektur + Planung
UMBAU GEWERBEHAUS ZENTRALSTRASSE, WOHNEN UND GEWERBE
ZÜRICH, 2015-2017
PROJEKTWETTBEWERB, 2011, 1. Preis
Innerhalb des durch die typischen Bauten des ausgehenden 19. Jahrhunderts geprägten, kleinparzelligen Blockrandquartiers stellt die Liegenschaft an der Ecke Zentralstrasse/ Bremgartnerstrasse eine der grossmassstäblichen Ausnahmen aus den 60er- und 70er-Jahren dar. Dem Gebäude fällt dadurch eine Sonderstellung zu.
Auf städtebaulicher Ebene sind es kleine Massnahmen in Form schiefwinkliger Erkerausstülpungen, welche den Hochbau im Strassengeviert verorten und die bewegte Fassadentektonik etablieren. Für die überformende Massnahme am Kopfbau, die ergänzenden Aufbauten des Flachbaus und Attikageschosses und schliesslich für die raumdefinierenden Wände der Wohnungen wird die bewegte Wand zum Leitmotiv.
Das Gebäude wird auf seine Grundstruktur zurückgebaut, welche als generierendes Prinzip sowohl für die Fassaden als auch den Zuschnitt der Wohnungen massgebend ist. Durch die Bewegtheit der inneren Wände kann das für Wohnungsbau ungünstige Achsmass und starre Stützenraster umspielt werden. Bestehende Stützen werden in die neuen Wände integriert oder freigestellt. An der tiefsten Stelle des Langbaus ermöglicht der sich über vier Geschosse nach oben entfaltende Lichthof jeweils zwei Durchstosswohnungen. Deren Tiefe von beinahe 26 Metern wird dabei in einen mehrfach geknickten Bewegungs- und Aufenthaltsraum umgewandelt. Der Lichtkörper entwickelt sich über die Geschosse als Oblicht in überhohen Räumen hin zu einem raumhohen Lichthof. Ab dem dritten, respektive vierten Obergeschoss entstehen durch die Staffelung der Aufbauten zur Erika- und Bremgartnerstrasse vorgelagerte Terrassen. Eine gemeinsame Dachterrasse für den Kopfbau ergänzt dessen Wohnungen mit einem wertvollen Aussenraum. Die Hochparterresituation im Langbau wird in Form von Studios und Stadthausmaisonetten als Wohnraum genutzt, während sich im Erdgeschoss des Kopfbaus vier Gewerberäume zur Zentralstrasse hin adressieren.
Eingefärbte Fassadenelemente aus Glasfaserbeton fügen sich zu einem geflochtenen Ganzen aus Gesimsen, Lisenen und Wandflächen, welches das Gebäude zu einem integrativen Glied des Gevierts werden lässt. Im Ausdruck verleiht eine feine Profilierung der Elemente dem Gebäude etwas Textiles, welches mit der Art der Fügung korreliert.
–
Erarbeitet mit Demuth Hagenmüller & Lamprecht Architekten
Mitarbeit Wettbewerb
Lilian Demuth, Sandra Hagenmüller
Mitarbeit Planung und Ausführung
Jutta Romberg, Tanja Hustinx, Alessia Agosti, Michael Grunitz, Lilian Demuth, Sandra Hagenmüller, Andreas Lamprecht
Bauherrschaft
moser bau Immobilien Ag
Baumangagement:
Implenia AG
Landschaftsarchitekt: Mettler Landschaftsarchitektur
Ingenieur: Dr. J. Grob & Partner AG
HLKS-Planer: Getec AG
Elektroplaner: R+B Engineering AG
Bauphysik: Buri Bauphysik & Akustik AG
Brandschutz: Giessser Architektur + Planung
UMBAU GEWERBEHAUS ZENTRALSTRASSE, WOHNEN UND GEWERBE
ZÜRICH, 2015-2017
PROJEKTWETTBEWERB, 2011, 1. Preis
Innerhalb des durch die typischen Bauten des ausgehenden 19. Jahrhunderts geprägten, kleinparzelligen Blockrandquartiers stellt die Liegenschaft an der Ecke Zentralstrasse/ Bremgartnerstrasse eine der grossmassstäblichen Ausnahmen aus den 60er- und 70er-Jahren dar. Dem Gebäude fällt dadurch eine Sonderstellung zu.
Auf städtebaulicher Ebene sind es kleine Massnahmen in Form schiefwinkliger Erkerausstülpungen, welche den Hochbau im Strassengeviert verorten und die bewegte Fassadentektonik etablieren. Für die überformende Massnahme am Kopfbau, die ergänzenden Aufbauten des Flachbaus und Attikageschosses und schliesslich für die raumdefinierenden Wände der Wohnungen wird die bewegte Wand zum Leitmotiv.
Das Gebäude wird auf seine Grundstruktur zurückgebaut, welche als generierendes Prinzip sowohl für die Fassaden als auch den Zuschnitt der Wohnungen massgebend ist. Durch die Bewegtheit der inneren Wände kann das für Wohnungsbau ungünstige Achsmass und starre Stützenraster umspielt werden. Bestehende Stützen werden in die neuen Wände integriert oder freigestellt. An der tiefsten Stelle des Langbaus ermöglicht der sich über vier Geschosse nach oben entfaltende Lichthof jeweils zwei Durchstosswohnungen. Deren Tiefe von beinahe 26 Metern wird dabei in einen mehrfach geknickten Bewegungs- und Aufenthaltsraum umgewandelt. Der Lichtkörper entwickelt sich über die Geschosse als Oblicht in überhohen Räumen hin zu einem raumhohen Lichthof. Ab dem dritten, respektive vierten Obergeschoss entstehen durch die Staffelung der Aufbauten zur Erika- und Bremgartnerstrasse vorgelagerte Terrassen. Eine gemeinsame Dachterrasse für den Kopfbau ergänzt dessen Wohnungen mit einem wertvollen Aussenraum. Die Hochparterresituation im Langbau wird in Form von Studios und Stadthausmaisonetten als Wohnraum genutzt, während sich im Erdgeschoss des Kopfbaus vier Gewerberäume zur Zentralstrasse hin adressieren.
Eingefärbte Fassadenelemente aus Glasfaserbeton fügen sich zu einem geflochtenen Ganzen aus Gesimsen, Lisenen und Wandflächen, welches das Gebäude zu einem integrativen Glied des Gevierts werden lässt. Im Ausdruck verleiht eine feine Profilierung der Elemente dem Gebäude etwas Textiles, welches mit der Art der Fügung korreliert.
–
Erarbeitet mit Demuth Hagenmüller & Lamprecht Architekten
Mitarbeit Wettbewerb
Lilian Demuth, Sandra Hagenmüller
Mitarbeit Planung und Ausführung
Jutta Romberg, Tanja Hustinx, Alessia Agosti, Michael Grunitz, Lilian Demuth, Sandra Hagenmüller, Andreas Lamprecht
Bauherrschaft
moser bau Immobilien Ag
Baumangagement:
Implenia AG
Landschaftsarchitekt: Mettler Landschaftsarchitektur
Ingenieur: Dr. J. Grob & Partner AG
HLKS-Planer: Getec AG
Elektroplaner: R+B Engineering AG
Bauphysik: Buri Bauphysik & Akustik AG
Brandschutz: Giessser Architektur + Planung
UMBAU GEWERBEHAUS ZENTRALSTRASSE, WOHNEN UND GEWERBE
ZÜRICH, 2015-2017
PROJEKTWETTBEWERB, 2011, 1. Preis
Innerhalb des durch die typischen Bauten des ausgehenden 19. Jahrhunderts geprägten, kleinparzelligen Blockrandquartiers stellt die Liegenschaft an der Ecke Zentralstrasse/ Bremgartnerstrasse eine der grossmassstäblichen Ausnahmen aus den 60er- und 70er-Jahren dar. Dem Gebäude fällt dadurch eine Sonderstellung zu.
Auf städtebaulicher Ebene sind es kleine Massnahmen in Form schiefwinkliger Erkerausstülpungen, welche den Hochbau im Strassengeviert verorten und die bewegte Fassadentektonik etablieren. Für die überformende Massnahme am Kopfbau, die ergänzenden Aufbauten des Flachbaus und Attikageschosses und schliesslich für die raumdefinierenden Wände der Wohnungen wird die bewegte Wand zum Leitmotiv.
Das Gebäude wird auf seine Grundstruktur zurückgebaut, welche als generierendes Prinzip sowohl für die Fassaden als auch den Zuschnitt der Wohnungen massgebend ist. Durch die Bewegtheit der inneren Wände kann das für Wohnungsbau ungünstige Achsmass und starre Stützenraster umspielt werden. Bestehende Stützen werden in die neuen Wände integriert oder freigestellt. An der tiefsten Stelle des Langbaus ermöglicht der sich über vier Geschosse nach oben entfaltende Lichthof jeweils zwei Durchstosswohnungen. Deren Tiefe von beinahe 26 Metern wird dabei in einen mehrfach geknickten Bewegungs- und Aufenthaltsraum umgewandelt. Der Lichtkörper entwickelt sich über die Geschosse als Oblicht in überhohen Räumen hin zu einem raumhohen Lichthof. Ab dem dritten, respektive vierten Obergeschoss entstehen durch die Staffelung der Aufbauten zur Erika- und Bremgartnerstrasse vorgelagerte Terrassen. Eine gemeinsame Dachterrasse für den Kopfbau ergänzt dessen Wohnungen mit einem wertvollen Aussenraum. Die Hochparterresituation im Langbau wird in Form von Studios und Stadthausmaisonetten als Wohnraum genutzt, während sich im Erdgeschoss des Kopfbaus vier Gewerberäume zur Zentralstrasse hin adressieren.
Eingefärbte Fassadenelemente aus Glasfaserbeton fügen sich zu einem geflochtenen Ganzen aus Gesimsen, Lisenen und Wandflächen, welches das Gebäude zu einem integrativen Glied des Gevierts werden lässt. Im Ausdruck verleiht eine feine Profilierung der Elemente dem Gebäude etwas Textiles, welches mit der Art der Fügung korreliert.
–
Erarbeitet mit Demuth Hagenmüller & Lamprecht Architekten
Mitarbeit Wettbewerb
Lilian Demuth, Sandra Hagenmüller
Mitarbeit Planung und Ausführung
Jutta Romberg, Tanja Hustinx, Alessia Agosti, Michael Grunitz, Lilian Demuth, Sandra Hagenmüller, Andreas Lamprecht
Bauherrschaft
moser bau Immobilien Ag
Baumangagement:
Implenia AG
Landschaftsarchitekt: Mettler Landschaftsarchitektur
Ingenieur: Dr. J. Grob & Partner AG
HLKS-Planer: Getec AG
Elektroplaner: R+B Engineering AG
Bauphysik: Buri Bauphysik & Akustik AG
Brandschutz: Giessser Architektur + Planung
UMBAU GEWERBEHAUS ZENTRALSTRASSE, WOHNEN UND GEWERBE
ZÜRICH, 2015-2017
PROJEKTWETTBEWERB, 2011, 1. Preis
Innerhalb des durch die typischen Bauten des ausgehenden 19. Jahrhunderts geprägten, kleinparzelligen Blockrandquartiers stellt die Liegenschaft an der Ecke Zentralstrasse/ Bremgartnerstrasse eine der grossmassstäblichen Ausnahmen aus den 60er- und 70er-Jahren dar. Dem Gebäude fällt dadurch eine Sonderstellung zu.
Auf städtebaulicher Ebene sind es kleine Massnahmen in Form schiefwinkliger Erkerausstülpungen, welche den Hochbau im Strassengeviert verorten und die bewegte Fassadentektonik etablieren. Für die überformende Massnahme am Kopfbau, die ergänzenden Aufbauten des Flachbaus und Attikageschosses und schliesslich für die raumdefinierenden Wände der Wohnungen wird die bewegte Wand zum Leitmotiv.
Das Gebäude wird auf seine Grundstruktur zurückgebaut, welche als generierendes Prinzip sowohl für die Fassaden als auch den Zuschnitt der Wohnungen massgebend ist. Durch die Bewegtheit der inneren Wände kann das für Wohnungsbau ungünstige Achsmass und starre Stützenraster umspielt werden. Bestehende Stützen werden in die neuen Wände integriert oder freigestellt. An der tiefsten Stelle des Langbaus ermöglicht der sich über vier Geschosse nach oben entfaltende Lichthof jeweils zwei Durchstosswohnungen. Deren Tiefe von beinahe 26 Metern wird dabei in einen mehrfach geknickten Bewegungs- und Aufenthaltsraum umgewandelt. Der Lichtkörper entwickelt sich über die Geschosse als Oblicht in überhohen Räumen hin zu einem raumhohen Lichthof. Ab dem dritten, respektive vierten Obergeschoss entstehen durch die Staffelung der Aufbauten zur Erika- und Bremgartnerstrasse vorgelagerte Terrassen. Eine gemeinsame Dachterrasse für den Kopfbau ergänzt dessen Wohnungen mit einem wertvollen Aussenraum. Die Hochparterresituation im Langbau wird in Form von Studios und Stadthausmaisonetten als Wohnraum genutzt, während sich im Erdgeschoss des Kopfbaus vier Gewerberäume zur Zentralstrasse hin adressieren.
Eingefärbte Fassadenelemente aus Glasfaserbeton fügen sich zu einem geflochtenen Ganzen aus Gesimsen, Lisenen und Wandflächen, welches das Gebäude zu einem integrativen Glied des Gevierts werden lässt. Im Ausdruck verleiht eine feine Profilierung der Elemente dem Gebäude etwas Textiles, welches mit der Art der Fügung korreliert.
–
Erarbeitet mit Demuth Hagenmüller & Lamprecht Architekten
Mitarbeit Wettbewerb
Lilian Demuth, Sandra Hagenmüller
Mitarbeit Planung und Ausführung
Jutta Romberg, Tanja Hustinx, Alessia Agosti, Michael Grunitz, Lilian Demuth, Sandra Hagenmüller, Andreas Lamprecht
Bauherrschaft
moser bau Immobilien Ag
Baumangagement:
Implenia AG
Landschaftsarchitekt: Mettler Landschaftsarchitektur
Ingenieur: Dr. J. Grob & Partner AG
HLKS-Planer: Getec AG
Elektroplaner: R+B Engineering AG
Bauphysik: Buri Bauphysik & Akustik AG
Brandschutz: Giessser Architektur + Planung
UMBAU GEWERBEHAUS ZENTRALSTRASSE, WOHNEN UND GEWERBE
ZÜRICH, 2015-2017
PROJEKTWETTBEWERB, 2011, 1. Preis
Innerhalb des durch die typischen Bauten des ausgehenden 19. Jahrhunderts geprägten, kleinparzelligen Blockrandquartiers stellt die Liegenschaft an der Ecke Zentralstrasse/ Bremgartnerstrasse eine der grossmassstäblichen Ausnahmen aus den 60er- und 70er-Jahren dar. Dem Gebäude fällt dadurch eine Sonderstellung zu.
Auf städtebaulicher Ebene sind es kleine Massnahmen in Form schiefwinkliger Erkerausstülpungen, welche den Hochbau im Strassengeviert verorten und die bewegte Fassadentektonik etablieren. Für die überformende Massnahme am Kopfbau, die ergänzenden Aufbauten des Flachbaus und Attikageschosses und schliesslich für die raumdefinierenden Wände der Wohnungen wird die bewegte Wand zum Leitmotiv.
Das Gebäude wird auf seine Grundstruktur zurückgebaut, welche als generierendes Prinzip sowohl für die Fassaden als auch den Zuschnitt der Wohnungen massgebend ist. Durch die Bewegtheit der inneren Wände kann das für Wohnungsbau ungünstige Achsmass und starre Stützenraster umspielt werden. Bestehende Stützen werden in die neuen Wände integriert oder freigestellt. An der tiefsten Stelle des Langbaus ermöglicht der sich über vier Geschosse nach oben entfaltende Lichthof jeweils zwei Durchstosswohnungen. Deren Tiefe von beinahe 26 Metern wird dabei in einen mehrfach geknickten Bewegungs- und Aufenthaltsraum umgewandelt. Der Lichtkörper entwickelt sich über die Geschosse als Oblicht in überhohen Räumen hin zu einem raumhohen Lichthof. Ab dem dritten, respektive vierten Obergeschoss entstehen durch die Staffelung der Aufbauten zur Erika- und Bremgartnerstrasse vorgelagerte Terrassen. Eine gemeinsame Dachterrasse für den Kopfbau ergänzt dessen Wohnungen mit einem wertvollen Aussenraum. Die Hochparterresituation im Langbau wird in Form von Studios und Stadthausmaisonetten als Wohnraum genutzt, während sich im Erdgeschoss des Kopfbaus vier Gewerberäume zur Zentralstrasse hin adressieren.
Eingefärbte Fassadenelemente aus Glasfaserbeton fügen sich zu einem geflochtenen Ganzen aus Gesimsen, Lisenen und Wandflächen, welches das Gebäude zu einem integrativen Glied des Gevierts werden lässt. Im Ausdruck verleiht eine feine Profilierung der Elemente dem Gebäude etwas Textiles, welches mit der Art der Fügung korreliert.
–
Erarbeitet mit Demuth Hagenmüller & Lamprecht Architekten
Mitarbeit Wettbewerb
Lilian Demuth, Sandra Hagenmüller
Mitarbeit Planung und Ausführung
Jutta Romberg, Tanja Hustinx, Alessia Agosti, Michael Grunitz, Lilian Demuth, Sandra Hagenmüller, Andreas Lamprecht
Bauherrschaft
moser bau Immobilien Ag
Baumangagement:
Implenia AG
Landschaftsarchitekt: Mettler Landschaftsarchitektur
Ingenieur: Dr. J. Grob & Partner AG
HLKS-Planer: Getec AG
Elektroplaner: R+B Engineering AG
Bauphysik: Buri Bauphysik & Akustik AG
Brandschutz: Giessser Architektur + Planung
UMBAU GEWERBEHAUS ZENTRALSTRASSE, WOHNEN UND GEWERBE
ZÜRICH, 2015-2017
PROJEKTWETTBEWERB, 2011, 1. Preis
Innerhalb des durch die typischen Bauten des ausgehenden 19. Jahrhunderts geprägten, kleinparzelligen Blockrandquartiers stellt die Liegenschaft an der Ecke Zentralstrasse/ Bremgartnerstrasse eine der grossmassstäblichen Ausnahmen aus den 60er- und 70er-Jahren dar. Dem Gebäude fällt dadurch eine Sonderstellung zu.
Auf städtebaulicher Ebene sind es kleine Massnahmen in Form schiefwinkliger Erkerausstülpungen, welche den Hochbau im Strassengeviert verorten und die bewegte Fassadentektonik etablieren. Für die überformende Massnahme am Kopfbau, die ergänzenden Aufbauten des Flachbaus und Attikageschosses und schliesslich für die raumdefinierenden Wände der Wohnungen wird die bewegte Wand zum Leitmotiv.
Das Gebäude wird auf seine Grundstruktur zurückgebaut, welche als generierendes Prinzip sowohl für die Fassaden als auch den Zuschnitt der Wohnungen massgebend ist. Durch die Bewegtheit der inneren Wände kann das für Wohnungsbau ungünstige Achsmass und starre Stützenraster umspielt werden. Bestehende Stützen werden in die neuen Wände integriert oder freigestellt. An der tiefsten Stelle des Langbaus ermöglicht der sich über vier Geschosse nach oben entfaltende Lichthof jeweils zwei Durchstosswohnungen. Deren Tiefe von beinahe 26 Metern wird dabei in einen mehrfach geknickten Bewegungs- und Aufenthaltsraum umgewandelt. Der Lichtkörper entwickelt sich über die Geschosse als Oblicht in überhohen Räumen hin zu einem raumhohen Lichthof. Ab dem dritten, respektive vierten Obergeschoss entstehen durch die Staffelung der Aufbauten zur Erika- und Bremgartnerstrasse vorgelagerte Terrassen. Eine gemeinsame Dachterrasse für den Kopfbau ergänzt dessen Wohnungen mit einem wertvollen Aussenraum. Die Hochparterresituation im Langbau wird in Form von Studios und Stadthausmaisonetten als Wohnraum genutzt, während sich im Erdgeschoss des Kopfbaus vier Gewerberäume zur Zentralstrasse hin adressieren.
Eingefärbte Fassadenelemente aus Glasfaserbeton fügen sich zu einem geflochtenen Ganzen aus Gesimsen, Lisenen und Wandflächen, welches das Gebäude zu einem integrativen Glied des Gevierts werden lässt. Im Ausdruck verleiht eine feine Profilierung der Elemente dem Gebäude etwas Textiles, welches mit der Art der Fügung korreliert.
–
Erarbeitet mit Demuth Hagenmüller & Lamprecht Architekten
Mitarbeit Wettbewerb
Lilian Demuth, Sandra Hagenmüller
Mitarbeit Planung und Ausführung
Jutta Romberg, Tanja Hustinx, Alessia Agosti, Michael Grunitz, Lilian Demuth, Sandra Hagenmüller, Andreas Lamprecht
Bauherrschaft
moser bau Immobilien Ag
Baumangagement:
Implenia AG
Landschaftsarchitekt: Mettler Landschaftsarchitektur
Ingenieur: Dr. J. Grob & Partner AG
HLKS-Planer: Getec AG
Elektroplaner: R+B Engineering AG
Bauphysik: Buri Bauphysik & Akustik AG
Brandschutz: Giessser Architektur + Planung
UMBAU GEWERBEHAUS ZENTRALSTRASSE, WOHNEN UND GEWERBE
ZÜRICH, 2015-2017
PROJEKTWETTBEWERB, 2011, 1. Preis
Innerhalb des durch die typischen Bauten des ausgehenden 19. Jahrhunderts geprägten, kleinparzelligen Blockrandquartiers stellt die Liegenschaft an der Ecke Zentralstrasse/ Bremgartnerstrasse eine der grossmassstäblichen Ausnahmen aus den 60er- und 70er-Jahren dar. Dem Gebäude fällt dadurch eine Sonderstellung zu.
Auf städtebaulicher Ebene sind es kleine Massnahmen in Form schiefwinkliger Erkerausstülpungen, welche den Hochbau im Strassengeviert verorten und die bewegte Fassadentektonik etablieren. Für die überformende Massnahme am Kopfbau, die ergänzenden Aufbauten des Flachbaus und Attikageschosses und schliesslich für die raumdefinierenden Wände der Wohnungen wird die bewegte Wand zum Leitmotiv.
Das Gebäude wird auf seine Grundstruktur zurückgebaut, welche als generierendes Prinzip sowohl für die Fassaden als auch den Zuschnitt der Wohnungen massgebend ist. Durch die Bewegtheit der inneren Wände kann das für Wohnungsbau ungünstige Achsmass und starre Stützenraster umspielt werden. Bestehende Stützen werden in die neuen Wände integriert oder freigestellt. An der tiefsten Stelle des Langbaus ermöglicht der sich über vier Geschosse nach oben entfaltende Lichthof jeweils zwei Durchstosswohnungen. Deren Tiefe von beinahe 26 Metern wird dabei in einen mehrfach geknickten Bewegungs- und Aufenthaltsraum umgewandelt. Der Lichtkörper entwickelt sich über die Geschosse als Oblicht in überhohen Räumen hin zu einem raumhohen Lichthof. Ab dem dritten, respektive vierten Obergeschoss entstehen durch die Staffelung der Aufbauten zur Erika- und Bremgartnerstrasse vorgelagerte Terrassen. Eine gemeinsame Dachterrasse für den Kopfbau ergänzt dessen Wohnungen mit einem wertvollen Aussenraum. Die Hochparterresituation im Langbau wird in Form von Studios und Stadthausmaisonetten als Wohnraum genutzt, während sich im Erdgeschoss des Kopfbaus vier Gewerberäume zur Zentralstrasse hin adressieren.
Eingefärbte Fassadenelemente aus Glasfaserbeton fügen sich zu einem geflochtenen Ganzen aus Gesimsen, Lisenen und Wandflächen, welches das Gebäude zu einem integrativen Glied des Gevierts werden lässt. Im Ausdruck verleiht eine feine Profilierung der Elemente dem Gebäude etwas Textiles, welches mit der Art der Fügung korreliert.
–
Erarbeitet mit Demuth Hagenmüller & Lamprecht Architekten
Mitarbeit Wettbewerb
Lilian Demuth, Sandra Hagenmüller
Mitarbeit Planung und Ausführung
Jutta Romberg, Tanja Hustinx, Alessia Agosti, Michael Grunitz, Lilian Demuth, Sandra Hagenmüller, Andreas Lamprecht
Bauherrschaft
moser bau Immobilien Ag
Baumangagement:
Implenia AG
Landschaftsarchitekt: Mettler Landschaftsarchitektur
Ingenieur: Dr. J. Grob & Partner AG
HLKS-Planer: Getec AG
Elektroplaner: R+B Engineering AG
Bauphysik: Buri Bauphysik & Akustik AG
Brandschutz: Giessser Architektur + Planung
UMBAU GEWERBEHAUS ZENTRALSTRASSE, WOHNEN UND GEWERBE
ZÜRICH, 2015-2017
PROJEKTWETTBEWERB, 2011, 1. Preis
Innerhalb des durch die typischen Bauten des ausgehenden 19. Jahrhunderts geprägten, kleinparzelligen Blockrandquartiers stellt die Liegenschaft an der Ecke Zentralstrasse/ Bremgartnerstrasse eine der grossmassstäblichen Ausnahmen aus den 60er- und 70er-Jahren dar. Dem Gebäude fällt dadurch eine Sonderstellung zu.
Auf städtebaulicher Ebene sind es kleine Massnahmen in Form schiefwinkliger Erkerausstülpungen, welche den Hochbau im Strassengeviert verorten und die bewegte Fassadentektonik etablieren. Für die überformende Massnahme am Kopfbau, die ergänzenden Aufbauten des Flachbaus und Attikageschosses und schliesslich für die raumdefinierenden Wände der Wohnungen wird die bewegte Wand zum Leitmotiv.
Das Gebäude wird auf seine Grundstruktur zurückgebaut, welche als generierendes Prinzip sowohl für die Fassaden als auch den Zuschnitt der Wohnungen massgebend ist. Durch die Bewegtheit der inneren Wände kann das für Wohnungsbau ungünstige Achsmass und starre Stützenraster umspielt werden. Bestehende Stützen werden in die neuen Wände integriert oder freigestellt. An der tiefsten Stelle des Langbaus ermöglicht der sich über vier Geschosse nach oben entfaltende Lichthof jeweils zwei Durchstosswohnungen. Deren Tiefe von beinahe 26 Metern wird dabei in einen mehrfach geknickten Bewegungs- und Aufenthaltsraum umgewandelt. Der Lichtkörper entwickelt sich über die Geschosse als Oblicht in überhohen Räumen hin zu einem raumhohen Lichthof. Ab dem dritten, respektive vierten Obergeschoss entstehen durch die Staffelung der Aufbauten zur Erika- und Bremgartnerstrasse vorgelagerte Terrassen. Eine gemeinsame Dachterrasse für den Kopfbau ergänzt dessen Wohnungen mit einem wertvollen Aussenraum. Die Hochparterresituation im Langbau wird in Form von Studios und Stadthausmaisonetten als Wohnraum genutzt, während sich im Erdgeschoss des Kopfbaus vier Gewerberäume zur Zentralstrasse hin adressieren.
Eingefärbte Fassadenelemente aus Glasfaserbeton fügen sich zu einem geflochtenen Ganzen aus Gesimsen, Lisenen und Wandflächen, welches das Gebäude zu einem integrativen Glied des Gevierts werden lässt. Im Ausdruck verleiht eine feine Profilierung der Elemente dem Gebäude etwas Textiles, welches mit der Art der Fügung korreliert.
–
Erarbeitet mit Demuth Hagenmüller & Lamprecht Architekten
Mitarbeit Wettbewerb
Lilian Demuth, Sandra Hagenmüller
Mitarbeit Planung und Ausführung
Jutta Romberg, Tanja Hustinx, Alessia Agosti, Michael Grunitz, Lilian Demuth, Sandra Hagenmüller, Andreas Lamprecht
Bauherrschaft
moser bau Immobilien Ag
Baumangagement:
Implenia AG
Landschaftsarchitekt: Mettler Landschaftsarchitektur
Ingenieur: Dr. J. Grob & Partner AG
HLKS-Planer: Getec AG
Elektroplaner: R+B Engineering AG
Bauphysik: Buri Bauphysik & Akustik AG
Brandschutz: Giessser Architektur + Planung
UMBAU GEWERBEHAUS ZENTRALSTRASSE, WOHNEN UND GEWERBE
ZÜRICH, 2015-2017
PROJEKTWETTBEWERB, 2011, 1. Preis
Innerhalb des durch die typischen Bauten des ausgehenden 19. Jahrhunderts geprägten, kleinparzelligen Blockrandquartiers stellt die Liegenschaft an der Ecke Zentralstrasse/ Bremgartnerstrasse eine der grossmassstäblichen Ausnahmen aus den 60er- und 70er-Jahren dar. Dem Gebäude fällt dadurch eine Sonderstellung zu.
Auf städtebaulicher Ebene sind es kleine Massnahmen in Form schiefwinkliger Erkerausstülpungen, welche den Hochbau im Strassengeviert verorten und die bewegte Fassadentektonik etablieren. Für die überformende Massnahme am Kopfbau, die ergänzenden Aufbauten des Flachbaus und Attikageschosses und schliesslich für die raumdefinierenden Wände der Wohnungen wird die bewegte Wand zum Leitmotiv.
Das Gebäude wird auf seine Grundstruktur zurückgebaut, welche als generierendes Prinzip sowohl für die Fassaden als auch den Zuschnitt der Wohnungen massgebend ist. Durch die Bewegtheit der inneren Wände kann das für Wohnungsbau ungünstige Achsmass und starre Stützenraster umspielt werden. Bestehende Stützen werden in die neuen Wände integriert oder freigestellt. An der tiefsten Stelle des Langbaus ermöglicht der sich über vier Geschosse nach oben entfaltende Lichthof jeweils zwei Durchstosswohnungen. Deren Tiefe von beinahe 26 Metern wird dabei in einen mehrfach geknickten Bewegungs- und Aufenthaltsraum umgewandelt. Der Lichtkörper entwickelt sich über die Geschosse als Oblicht in überhohen Räumen hin zu einem raumhohen Lichthof. Ab dem dritten, respektive vierten Obergeschoss entstehen durch die Staffelung der Aufbauten zur Erika- und Bremgartnerstrasse vorgelagerte Terrassen. Eine gemeinsame Dachterrasse für den Kopfbau ergänzt dessen Wohnungen mit einem wertvollen Aussenraum. Die Hochparterresituation im Langbau wird in Form von Studios und Stadthausmaisonetten als Wohnraum genutzt, während sich im Erdgeschoss des Kopfbaus vier Gewerberäume zur Zentralstrasse hin adressieren.
Eingefärbte Fassadenelemente aus Glasfaserbeton fügen sich zu einem geflochtenen Ganzen aus Gesimsen, Lisenen und Wandflächen, welches das Gebäude zu einem integrativen Glied des Gevierts werden lässt. Im Ausdruck verleiht eine feine Profilierung der Elemente dem Gebäude etwas Textiles, welches mit der Art der Fügung korreliert.
–
Erarbeitet mit Demuth Hagenmüller & Lamprecht Architekten
Mitarbeit Wettbewerb
Lilian Demuth, Sandra Hagenmüller
Mitarbeit Planung und Ausführung
Jutta Romberg, Tanja Hustinx, Alessia Agosti, Michael Grunitz, Lilian Demuth, Sandra Hagenmüller, Andreas Lamprecht
Bauherrschaft
moser bau Immobilien Ag
Baumangagement:
Implenia AG
Landschaftsarchitekt: Mettler Landschaftsarchitektur
Ingenieur: Dr. J. Grob & Partner AG
HLKS-Planer: Getec AG
Elektroplaner: R+B Engineering AG
Bauphysik: Buri Bauphysik & Akustik AG
Brandschutz: Giessser Architektur + Planung
UMBAU GEWERBEHAUS ZENTRALSTRASSE, WOHNEN UND GEWERBE
ZÜRICH, 2015-2017
PROJEKTWETTBEWERB, 2011, 1. Preis
Innerhalb des durch die typischen Bauten des ausgehenden 19. Jahrhunderts geprägten, kleinparzelligen Blockrandquartiers stellt die Liegenschaft an der Ecke Zentralstrasse/ Bremgartnerstrasse eine der grossmassstäblichen Ausnahmen aus den 60er- und 70er-Jahren dar. Dem Gebäude fällt dadurch eine Sonderstellung zu.
Auf städtebaulicher Ebene sind es kleine Massnahmen in Form schiefwinkliger Erkerausstülpungen, welche den Hochbau im Strassengeviert verorten und die bewegte Fassadentektonik etablieren. Für die überformende Massnahme am Kopfbau, die ergänzenden Aufbauten des Flachbaus und Attikageschosses und schliesslich für die raumdefinierenden Wände der Wohnungen wird die bewegte Wand zum Leitmotiv.
Das Gebäude wird auf seine Grundstruktur zurückgebaut, welche als generierendes Prinzip sowohl für die Fassaden als auch den Zuschnitt der Wohnungen massgebend ist. Durch die Bewegtheit der inneren Wände kann das für Wohnungsbau ungünstige Achsmass und starre Stützenraster umspielt werden. Bestehende Stützen werden in die neuen Wände integriert oder freigestellt. An der tiefsten Stelle des Langbaus ermöglicht der sich über vier Geschosse nach oben entfaltende Lichthof jeweils zwei Durchstosswohnungen. Deren Tiefe von beinahe 26 Metern wird dabei in einen mehrfach geknickten Bewegungs- und Aufenthaltsraum umgewandelt. Der Lichtkörper entwickelt sich über die Geschosse als Oblicht in überhohen Räumen hin zu einem raumhohen Lichthof. Ab dem dritten, respektive vierten Obergeschoss entstehen durch die Staffelung der Aufbauten zur Erika- und Bremgartnerstrasse vorgelagerte Terrassen. Eine gemeinsame Dachterrasse für den Kopfbau ergänzt dessen Wohnungen mit einem wertvollen Aussenraum. Die Hochparterresituation im Langbau wird in Form von Studios und Stadthausmaisonetten als Wohnraum genutzt, während sich im Erdgeschoss des Kopfbaus vier Gewerberäume zur Zentralstrasse hin adressieren.
Eingefärbte Fassadenelemente aus Glasfaserbeton fügen sich zu einem geflochtenen Ganzen aus Gesimsen, Lisenen und Wandflächen, welches das Gebäude zu einem integrativen Glied des Gevierts werden lässt. Im Ausdruck verleiht eine feine Profilierung der Elemente dem Gebäude etwas Textiles, welches mit der Art der Fügung korreliert.
–
Erarbeitet mit Demuth Hagenmüller & Lamprecht Architekten
Mitarbeit Wettbewerb
Lilian Demuth, Sandra Hagenmüller
Mitarbeit Planung und Ausführung
Jutta Romberg, Tanja Hustinx, Alessia Agosti, Michael Grunitz, Lilian Demuth, Sandra Hagenmüller, Andreas Lamprecht
Bauherrschaft
moser bau Immobilien Ag
Baumangagement:
Implenia AG
Landschaftsarchitekt: Mettler Landschaftsarchitektur
Ingenieur: Dr. J. Grob & Partner AG
HLKS-Planer: Getec AG
Elektroplaner: R+B Engineering AG
Bauphysik: Buri Bauphysik & Akustik AG
Brandschutz: Giessser Architektur + Planung
UMBAU GEWERBEHAUS ZENTRALSTRASSE, WOHNEN UND GEWERBE
ZÜRICH, 2015-2017
PROJEKTWETTBEWERB, 2011, 1. Preis
Innerhalb des durch die typischen Bauten des ausgehenden 19. Jahrhunderts geprägten, kleinparzelligen Blockrandquartiers stellt die Liegenschaft an der Ecke Zentralstrasse/ Bremgartnerstrasse eine der grossmassstäblichen Ausnahmen aus den 60er- und 70er-Jahren dar. Dem Gebäude fällt dadurch eine Sonderstellung zu.
Auf städtebaulicher Ebene sind es kleine Massnahmen in Form schiefwinkliger Erkerausstülpungen, welche den Hochbau im Strassengeviert verorten und die bewegte Fassadentektonik etablieren. Für die überformende Massnahme am Kopfbau, die ergänzenden Aufbauten des Flachbaus und Attikageschosses und schliesslich für die raumdefinierenden Wände der Wohnungen wird die bewegte Wand zum Leitmotiv.
Das Gebäude wird auf seine Grundstruktur zurückgebaut, welche als generierendes Prinzip sowohl für die Fassaden als auch den Zuschnitt der Wohnungen massgebend ist. Durch die Bewegtheit der inneren Wände kann das für Wohnungsbau ungünstige Achsmass und starre Stützenraster umspielt werden. Bestehende Stützen werden in die neuen Wände integriert oder freigestellt. An der tiefsten Stelle des Langbaus ermöglicht der sich über vier Geschosse nach oben entfaltende Lichthof jeweils zwei Durchstosswohnungen. Deren Tiefe von beinahe 26 Metern wird dabei in einen mehrfach geknickten Bewegungs- und Aufenthaltsraum umgewandelt. Der Lichtkörper entwickelt sich über die Geschosse als Oblicht in überhohen Räumen hin zu einem raumhohen Lichthof. Ab dem dritten, respektive vierten Obergeschoss entstehen durch die Staffelung der Aufbauten zur Erika- und Bremgartnerstrasse vorgelagerte Terrassen. Eine gemeinsame Dachterrasse für den Kopfbau ergänzt dessen Wohnungen mit einem wertvollen Aussenraum. Die Hochparterresituation im Langbau wird in Form von Studios und Stadthausmaisonetten als Wohnraum genutzt, während sich im Erdgeschoss des Kopfbaus vier Gewerberäume zur Zentralstrasse hin adressieren.
Eingefärbte Fassadenelemente aus Glasfaserbeton fügen sich zu einem geflochtenen Ganzen aus Gesimsen, Lisenen und Wandflächen, welches das Gebäude zu einem integrativen Glied des Gevierts werden lässt. Im Ausdruck verleiht eine feine Profilierung der Elemente dem Gebäude etwas Textiles, welches mit der Art der Fügung korreliert.
–
Erarbeitet mit Demuth Hagenmüller & Lamprecht Architekten
Mitarbeit Wettbewerb
Lilian Demuth, Sandra Hagenmüller
Mitarbeit Planung und Ausführung
Jutta Romberg, Tanja Hustinx, Alessia Agosti, Michael Grunitz, Lilian Demuth, Sandra Hagenmüller, Andreas Lamprecht
Bauherrschaft
moser bau Immobilien Ag
Baumangagement:
Implenia AG
Landschaftsarchitekt: Mettler Landschaftsarchitektur
Ingenieur: Dr. J. Grob & Partner AG
HLKS-Planer: Getec AG
Elektroplaner: R+B Engineering AG
Bauphysik: Buri Bauphysik & Akustik AG
Brandschutz: Giessser Architektur + Planung
WOHNHAUS ZÜRICH OERLIKON
PROJEKTWETTBEWERB AUF EINLADUNG, 2024
Wohnquartieren tut es gut, wenn neben den Binnenräumen, den Gärten und Höfen hinter dem Haus, auch die Qualität des Strassenraums städtebaulich und architektonisch gestärkt wird. Das Volumen konzentriert seinen Schwerpunkt deshalb entlang der Wohnstrasse, wo es eine identitätsstiftende Wirkung entfalten kann. In der Tiefe des Grundstücks reagiert der kompakte Baukörper mit seiner Gliederung auf die Massstäblichkeit der Nachbarschaft und die Qualitäten des Aussenraums. Der Grundriss verformt sich mit der Tiefe der Parzelle: Die Fassaden springen zurück und öffnen den Blick zu Grün und Sonne.
Die zur Strasse hin orientierte Eingangshalle empfängt die Bewohner. Hier ist die Adresse und der Eingang zu allen 26 Wohnungen. Die Eingangshalle und der kleine Vorplatz wirken einladend und fördern den sozialen Austausch innerhalb des Mehrfamilienhauses. Erst auf dem Niveau des Hochparterres liegt das erste Wohngeschoss. Dies erlaubt den Bezug der Wohnungen zum Strassenraum zu kontrollieren. Im Bereich des Gartenraumes und einige Stufen Strasse abgehoben, wird das Wohnhaus zusätzlich erschlossen und ermöglicht den direkten Zugang zum Garten.
WOHNUNGEN
Jeweils sechs 2.5- Zimmer und 3.5- Zimmer Wohnungen pro Geschoss werden in den Regelgeschossen über ein einziges Treppenhaus erschlossen. Obwohl das Treppenhaus kompakt gehalten ist, ist es mit einer Sitzgelegenheit und einem Treppenauge hochwertig ausgestaltet. Die grösseren Familienwohnungen liegen im Erdgeschoss am Gartenraum, zwei größere 4.5- Zimmer Wohnungen befinden sich im Attika.
Durch den aufgefächerten Grundriss erhalten alle Wohnungen Anteil am Ausblick nach Süden und damit eine sehr gute Belichtungssituation. Alle Wohnungen sind zweiseitig orientiert. Die winkelförmig um die Balkone angeordneten Raumsequenzen von Wohnen, Essen und Schlafen ermöglichen vielfältige Durchblicke und verleihen auch den kleinen Einheiten Grosszügigkeit. Durch das feine Ausscheren der Balkone aus der rechtwinkligen Grundstruktur, wird die Möglichkeit nach maximalem Lichteinfall und zusätzlichen Blicken in die Tiefe des Grundstücks möglich. An der Nordseite profitieren die Wohnungen zusätzlich von der Sicht über Zürich Nord ins Glatttal.
Das Wohnhaus erhebt sich über 5 Wohngeschosse mit einem kompakten Grundriss mit sechs Wohnungen pro Geschoss, die alle von einem zentralen Treppenhaus und Flur erschlossen werden. Die zulässige aGF von 1’869m2 wird vollständig erreicht und 26 Wohnungen können erstellt werden. Obschon ökonomisch geschnitten, werden durch die Raumanlage vielfältige Blickbezüge und Wege innerhalb der Wohnungen angeboten. So bleibt die Architektur offen für die Gestaltung durch die Bewohner.
Das Gebäude ist neben der sehr vorteilhaften Ökonomie auch sehr ökologisch erstellbar. Mit einem etablierten Holz-Hybrid-Bau, bestehend aus einem massiven Untergeschoss, aufgehenden Kern und davon abgehenden Holzdecken, leistet das Tragwerk einen wesentlichen Anteil an die ökologisch sinnhafte und zugleich wirtschaftliche Erstellung des Gebäudes. Ausgewogene 18cm Brettsperrholzplatten (CLT) überspannen von der Mittelachse des Gebäudes an die Fassade. Dort, wo es die Spannweiten erlauben, unterstützungsfrei, sonst zwischenabgestützt auf ausgewählten Innenwänden. Die Deckenkonstruktion besticht durch eine einfache Montage mit hohem Vorfabrikationsgrad, die ebene Untersicht sowie den ökologischen Vorteilen des Baustoffs. Zusammen mit der beschwerenden Schüttung und dem Unterlagsboden entsteht ein systemgetrennter, optimierter Gesamtaufbau, der alle bauakustischen Anforderungen zu erfüllen vermag. In der Fassade liegen die Decken auf den tragenden Holzelement-Aussenwänden auf. Im Inneren liegen sie zur Hauptsache auf den Wohnungstrennwänden auf, resp. schliessen an den aufgehenden Kern an. Dies erlaubt die konsequente Trennung an den Nutzungsgrenzen ohne Mehraufwand. Dem Manko der fehlenden Speichermasse wird durch die gezielte Beplankung oder Ausfachung der Innenwände begegnet. Verputzte Lehmplatten oder Lehmsteine bringen die benötigte Masse und unterstützen das Raumklima, mit ausgeprägten ökologischen Vorteilen. Die Balkone werden als vorfabrizierte Betonelemente der restlichen Konstruktion vorgestellt und einzig horizontal an das Gebäude angebunden. Dadurch ergeben sich nur minimale Bauteilabmessungen und reduzierte Durchdringungen der Dämmebene.
Die Geschossdecken leisten in Bezug auf die Erstellungskosten und die ökologischen Konsequenzen einen entscheidenden Beitrag. Die konsequente Ausgestaltung des Tragwerks als «Flachdecke» in Holz bringt die notwendige Flexibilität gegebenenfalls in der weiteren Projektierung auf die Bedürfnisse und Möglichkeiten der Bauherrin sowie den Entwicklungen der Branche Rücksicht zu nehmen. Anpassungen an der Ausgestaltung und Materialisierung der Deckenkonstruktion bleiben ohne signifikanten Einfluss auf den architektonischen Entwurf.
Der leichte Holzbau wird durch den betonierten Erschliessungskern stabilisiert, wodurch die aufwendige Materialisierung des vertikalen Fluchtweges wesentlich vereinfacht wird. Eingespannt wird der Kern im ebenfalls betonierten Untergeschoss. Die anfallenden Vertikallasten aus dem Holzbau werden über das massive Untergeschoss flach in den anstehenden Baugrund abgetragen. Dessen terrassierte Ausgestaltung fügt sich optimal ins Gelände ein und nimmt, soweit sinnhaft, Rücksicht auf das rückzubauende Volumen unter Terrain.
Der ökologische Fussabdruck der Stahlbetonbauteile wird durch die konsequente Minimierung der erforderlichen Bauteilstärken mit einfachen und ausgeglichen belasteten Tragsystemen weitestgehend reduziert. Darüber hinaus erlaubt der Einsatz von Emissionsreduzierten RC-Betonen heute bereits eine massgebliche Verbesserung der ökologischen Eigenschaften, die zusätzlich durch das aktive Einspeichern von CO2 in der Konstruktion ausgeglichen werden können.
NACHHALTIGKEIT
Der städtebauliche Ansatz orientiert sich an der quartierüblichen Bebauungsstruktur einer dichteren Bebauung entlang der Quartierstrassen und rückwärtig locker bebautem Gartenraum. Der Baukörper ist kompakt und gegen Süden gegliedert. Die Wohnräume profitieren von einer sehr guten Tageslichtqualität dank durchwegs guter Ausrichtung und angemessen grossen Fenstern. Im Gegenzug dazu garantieren der aussenliegende Sonnenschutz und die passive Speichermasse dank verputzter Lehmplatten im Innern einen guten sommerlichen Wärmeschutz und hohen hygrothermischen Innenraumkomfort.
Die kontrollierte Lüftung mit zentraler Abluft in den Nasszellen und passiver Nachströmung von Frischluft in den Zimmern bringt genügend frische Luft. Eine WRG vermindert den Lüftungswärmeverlust und gewährleistet neben der guten Gebäudehülle die Minergie-P Anforderungen. Im Sommer wird die Abwärme für die partielle Regeneration der Erdwärmesonden genutzt, was die Systemeffizienz im Winter erhöht und die Wohnräume moderat kühlt.
Der Aufwand für die Erstellung, die Graue Energie, wird in erster Linie mit dem effizienten Tragwerk tief gehalten. Aktuell ist eine Mischbauweise angedacht. Die Spannweiten sind jedoch derart konzipiert, dass im Verlauf der weiteren Planung eine ökologisch-ökonomische Optimierung in beide Richtungen (Holzbau oder Massivbau) ohne weiteres machbar ist. Als zweites ist der Fensteranteil angemessen und die Gebäudetechnik auf ein Minimum reduziert, ohne Einbussen beim Komfort in Kauf nehmen zu müssen. Die Wärmeerzeugung basiert auf 100% erneuerbarer Energie. Die Dächer werden extensiv begrünt und mit aufgeständerten PV-Modulen bestückt. So wird ein guter Teil des Strombedarfs selbst produziert.
Da das Gebäude auf maximale Kompaktheit und eine effiziente Unterkellerung setzt, wird ein grosser Gartenraum als Grünraum freigespielt. 90% der Bestandesbäume können erhalten bleiben. Mit einer ergänzenden, standortgerechten und an trockene und heisse Perioden angepasste Bepflanzung wird zudem eine kühlende Schattenwirkung erzielt. Das anfallende Regenwasser kann auf dem Grundstück bestens aufgenommen werden.
Mitarbeit Wettbewerb
Emy Vicencio, Paul Baumann, Svenja Egge
Landschaftsarchitekt: Mettler Landschaftsarchitektur AG, Gossau
Ingenieur: WaltGalmarini AG, Zürich
Nachhaltigkeit: Durable Planung und Beratung GmbH, Zürich
WOHNHAUS ZÜRICH OERLIKON
PROJEKTWETTBEWERB AUF EINLADUNG, 2024
Wohnquartieren tut es gut, wenn neben den Binnenräumen, den Gärten und Höfen hinter dem Haus, auch die Qualität des Strassenraums städtebaulich und architektonisch gestärkt wird. Das Volumen konzentriert seinen Schwerpunkt deshalb entlang der Wohnstrasse, wo es eine identitätsstiftende Wirkung entfalten kann. In der Tiefe des Grundstücks reagiert der kompakte Baukörper mit seiner Gliederung auf die Massstäblichkeit der Nachbarschaft und die Qualitäten des Aussenraums. Der Grundriss verformt sich mit der Tiefe der Parzelle: Die Fassaden springen zurück und öffnen den Blick zu Grün und Sonne.
Die zur Strasse hin orientierte Eingangshalle empfängt die Bewohner. Hier ist die Adresse und der Eingang zu allen 26 Wohnungen. Die Eingangshalle und der kleine Vorplatz wirken einladend und fördern den sozialen Austausch innerhalb des Mehrfamilienhauses. Erst auf dem Niveau des Hochparterres liegt das erste Wohngeschoss. Dies erlaubt den Bezug der Wohnungen zum Strassenraum zu kontrollieren. Im Bereich des Gartenraumes und einige Stufen Strasse abgehoben, wird das Wohnhaus zusätzlich erschlossen und ermöglicht den direkten Zugang zum Garten.
WOHNUNGEN
Jeweils sechs 2.5- Zimmer und 3.5- Zimmer Wohnungen pro Geschoss werden in den Regelgeschossen über ein einziges Treppenhaus erschlossen. Obwohl das Treppenhaus kompakt gehalten ist, ist es mit einer Sitzgelegenheit und einem Treppenauge hochwertig ausgestaltet. Die grösseren Familienwohnungen liegen im Erdgeschoss am Gartenraum, zwei größere 4.5- Zimmer Wohnungen befinden sich im Attika.
Durch den aufgefächerten Grundriss erhalten alle Wohnungen Anteil am Ausblick nach Süden und damit eine sehr gute Belichtungssituation. Alle Wohnungen sind zweiseitig orientiert. Die winkelförmig um die Balkone angeordneten Raumsequenzen von Wohnen, Essen und Schlafen ermöglichen vielfältige Durchblicke und verleihen auch den kleinen Einheiten Grosszügigkeit. Durch das feine Ausscheren der Balkone aus der rechtwinkligen Grundstruktur, wird die Möglichkeit nach maximalem Lichteinfall und zusätzlichen Blicken in die Tiefe des Grundstücks möglich. An der Nordseite profitieren die Wohnungen zusätzlich von der Sicht über Zürich Nord ins Glatttal.
Das Wohnhaus erhebt sich über 5 Wohngeschosse mit einem kompakten Grundriss mit sechs Wohnungen pro Geschoss, die alle von einem zentralen Treppenhaus und Flur erschlossen werden. Die zulässige aGF von 1’869m2 wird vollständig erreicht und 26 Wohnungen können erstellt werden. Obschon ökonomisch geschnitten, werden durch die Raumanlage vielfältige Blickbezüge und Wege innerhalb der Wohnungen angeboten. So bleibt die Architektur offen für die Gestaltung durch die Bewohner.
Das Gebäude ist neben der sehr vorteilhaften Ökonomie auch sehr ökologisch erstellbar. Mit einem etablierten Holz-Hybrid-Bau, bestehend aus einem massiven Untergeschoss, aufgehenden Kern und davon abgehenden Holzdecken, leistet das Tragwerk einen wesentlichen Anteil an die ökologisch sinnhafte und zugleich wirtschaftliche Erstellung des Gebäudes. Ausgewogene 18cm Brettsperrholzplatten (CLT) überspannen von der Mittelachse des Gebäudes an die Fassade. Dort, wo es die Spannweiten erlauben, unterstützungsfrei, sonst zwischenabgestützt auf ausgewählten Innenwänden. Die Deckenkonstruktion besticht durch eine einfache Montage mit hohem Vorfabrikationsgrad, die ebene Untersicht sowie den ökologischen Vorteilen des Baustoffs. Zusammen mit der beschwerenden Schüttung und dem Unterlagsboden entsteht ein systemgetrennter, optimierter Gesamtaufbau, der alle bauakustischen Anforderungen zu erfüllen vermag. In der Fassade liegen die Decken auf den tragenden Holzelement-Aussenwänden auf. Im Inneren liegen sie zur Hauptsache auf den Wohnungstrennwänden auf, resp. schliessen an den aufgehenden Kern an. Dies erlaubt die konsequente Trennung an den Nutzungsgrenzen ohne Mehraufwand. Dem Manko der fehlenden Speichermasse wird durch die gezielte Beplankung oder Ausfachung der Innenwände begegnet. Verputzte Lehmplatten oder Lehmsteine bringen die benötigte Masse und unterstützen das Raumklima, mit ausgeprägten ökologischen Vorteilen. Die Balkone werden als vorfabrizierte Betonelemente der restlichen Konstruktion vorgestellt und einzig horizontal an das Gebäude angebunden. Dadurch ergeben sich nur minimale Bauteilabmessungen und reduzierte Durchdringungen der Dämmebene.
Die Geschossdecken leisten in Bezug auf die Erstellungskosten und die ökologischen Konsequenzen einen entscheidenden Beitrag. Die konsequente Ausgestaltung des Tragwerks als «Flachdecke» in Holz bringt die notwendige Flexibilität gegebenenfalls in der weiteren Projektierung auf die Bedürfnisse und Möglichkeiten der Bauherrin sowie den Entwicklungen der Branche Rücksicht zu nehmen. Anpassungen an der Ausgestaltung und Materialisierung der Deckenkonstruktion bleiben ohne signifikanten Einfluss auf den architektonischen Entwurf.
Der leichte Holzbau wird durch den betonierten Erschliessungskern stabilisiert, wodurch die aufwendige Materialisierung des vertikalen Fluchtweges wesentlich vereinfacht wird. Eingespannt wird der Kern im ebenfalls betonierten Untergeschoss. Die anfallenden Vertikallasten aus dem Holzbau werden über das massive Untergeschoss flach in den anstehenden Baugrund abgetragen. Dessen terrassierte Ausgestaltung fügt sich optimal ins Gelände ein und nimmt, soweit sinnhaft, Rücksicht auf das rückzubauende Volumen unter Terrain.
Der ökologische Fussabdruck der Stahlbetonbauteile wird durch die konsequente Minimierung der erforderlichen Bauteilstärken mit einfachen und ausgeglichen belasteten Tragsystemen weitestgehend reduziert. Darüber hinaus erlaubt der Einsatz von Emissionsreduzierten RC-Betonen heute bereits eine massgebliche Verbesserung der ökologischen Eigenschaften, die zusätzlich durch das aktive Einspeichern von CO2 in der Konstruktion ausgeglichen werden können.
NACHHALTIGKEIT
Der städtebauliche Ansatz orientiert sich an der quartierüblichen Bebauungsstruktur einer dichteren Bebauung entlang der Quartierstrassen und rückwärtig locker bebautem Gartenraum. Der Baukörper ist kompakt und gegen Süden gegliedert. Die Wohnräume profitieren von einer sehr guten Tageslichtqualität dank durchwegs guter Ausrichtung und angemessen grossen Fenstern. Im Gegenzug dazu garantieren der aussenliegende Sonnenschutz und die passive Speichermasse dank verputzter Lehmplatten im Innern einen guten sommerlichen Wärmeschutz und hohen hygrothermischen Innenraumkomfort.
Die kontrollierte Lüftung mit zentraler Abluft in den Nasszellen und passiver Nachströmung von Frischluft in den Zimmern bringt genügend frische Luft. Eine WRG vermindert den Lüftungswärmeverlust und gewährleistet neben der guten Gebäudehülle die Minergie-P Anforderungen. Im Sommer wird die Abwärme für die partielle Regeneration der Erdwärmesonden genutzt, was die Systemeffizienz im Winter erhöht und die Wohnräume moderat kühlt.
Der Aufwand für die Erstellung, die Graue Energie, wird in erster Linie mit dem effizienten Tragwerk tief gehalten. Aktuell ist eine Mischbauweise angedacht. Die Spannweiten sind jedoch derart konzipiert, dass im Verlauf der weiteren Planung eine ökologisch-ökonomische Optimierung in beide Richtungen (Holzbau oder Massivbau) ohne weiteres machbar ist. Als zweites ist der Fensteranteil angemessen und die Gebäudetechnik auf ein Minimum reduziert, ohne Einbussen beim Komfort in Kauf nehmen zu müssen. Die Wärmeerzeugung basiert auf 100% erneuerbarer Energie. Die Dächer werden extensiv begrünt und mit aufgeständerten PV-Modulen bestückt. So wird ein guter Teil des Strombedarfs selbst produziert.
Da das Gebäude auf maximale Kompaktheit und eine effiziente Unterkellerung setzt, wird ein grosser Gartenraum als Grünraum freigespielt. 90% der Bestandesbäume können erhalten bleiben. Mit einer ergänzenden, standortgerechten und an trockene und heisse Perioden angepasste Bepflanzung wird zudem eine kühlende Schattenwirkung erzielt. Das anfallende Regenwasser kann auf dem Grundstück bestens aufgenommen werden.
Mitarbeit Wettbewerb
Emy Vicencio, Paul Baumann, Svenja Egge
Landschaftsarchitekt: Mettler Landschaftsarchitektur AG, Gossau
Ingenieur: WaltGalmarini AG, Zürich
Nachhaltigkeit: Durable Planung und Beratung GmbH, Zürich
WOHNHAUS ZÜRICH OERLIKON
PROJEKTWETTBEWERB AUF EINLADUNG, 2024
Wohnquartieren tut es gut, wenn neben den Binnenräumen, den Gärten und Höfen hinter dem Haus, auch die Qualität des Strassenraums städtebaulich und architektonisch gestärkt wird. Das Volumen konzentriert seinen Schwerpunkt deshalb entlang der Wohnstrasse, wo es eine identitätsstiftende Wirkung entfalten kann. In der Tiefe des Grundstücks reagiert der kompakte Baukörper mit seiner Gliederung auf die Massstäblichkeit der Nachbarschaft und die Qualitäten des Aussenraums. Der Grundriss verformt sich mit der Tiefe der Parzelle: Die Fassaden springen zurück und öffnen den Blick zu Grün und Sonne.
Die zur Strasse hin orientierte Eingangshalle empfängt die Bewohner. Hier ist die Adresse und der Eingang zu allen 26 Wohnungen. Die Eingangshalle und der kleine Vorplatz wirken einladend und fördern den sozialen Austausch innerhalb des Mehrfamilienhauses. Erst auf dem Niveau des Hochparterres liegt das erste Wohngeschoss. Dies erlaubt den Bezug der Wohnungen zum Strassenraum zu kontrollieren. Im Bereich des Gartenraumes und einige Stufen Strasse abgehoben, wird das Wohnhaus zusätzlich erschlossen und ermöglicht den direkten Zugang zum Garten.
WOHNUNGEN
Jeweils sechs 2.5- Zimmer und 3.5- Zimmer Wohnungen pro Geschoss werden in den Regelgeschossen über ein einziges Treppenhaus erschlossen. Obwohl das Treppenhaus kompakt gehalten ist, ist es mit einer Sitzgelegenheit und einem Treppenauge hochwertig ausgestaltet. Die grösseren Familienwohnungen liegen im Erdgeschoss am Gartenraum, zwei größere 4.5- Zimmer Wohnungen befinden sich im Attika.
Durch den aufgefächerten Grundriss erhalten alle Wohnungen Anteil am Ausblick nach Süden und damit eine sehr gute Belichtungssituation. Alle Wohnungen sind zweiseitig orientiert. Die winkelförmig um die Balkone angeordneten Raumsequenzen von Wohnen, Essen und Schlafen ermöglichen vielfältige Durchblicke und verleihen auch den kleinen Einheiten Grosszügigkeit. Durch das feine Ausscheren der Balkone aus der rechtwinkligen Grundstruktur, wird die Möglichkeit nach maximalem Lichteinfall und zusätzlichen Blicken in die Tiefe des Grundstücks möglich. An der Nordseite profitieren die Wohnungen zusätzlich von der Sicht über Zürich Nord ins Glatttal.
Das Wohnhaus erhebt sich über 5 Wohngeschosse mit einem kompakten Grundriss mit sechs Wohnungen pro Geschoss, die alle von einem zentralen Treppenhaus und Flur erschlossen werden. Die zulässige aGF von 1’869m2 wird vollständig erreicht und 26 Wohnungen können erstellt werden. Obschon ökonomisch geschnitten, werden durch die Raumanlage vielfältige Blickbezüge und Wege innerhalb der Wohnungen angeboten. So bleibt die Architektur offen für die Gestaltung durch die Bewohner.
Das Gebäude ist neben der sehr vorteilhaften Ökonomie auch sehr ökologisch erstellbar. Mit einem etablierten Holz-Hybrid-Bau, bestehend aus einem massiven Untergeschoss, aufgehenden Kern und davon abgehenden Holzdecken, leistet das Tragwerk einen wesentlichen Anteil an die ökologisch sinnhafte und zugleich wirtschaftliche Erstellung des Gebäudes. Ausgewogene 18cm Brettsperrholzplatten (CLT) überspannen von der Mittelachse des Gebäudes an die Fassade. Dort, wo es die Spannweiten erlauben, unterstützungsfrei, sonst zwischenabgestützt auf ausgewählten Innenwänden. Die Deckenkonstruktion besticht durch eine einfache Montage mit hohem Vorfabrikationsgrad, die ebene Untersicht sowie den ökologischen Vorteilen des Baustoffs. Zusammen mit der beschwerenden Schüttung und dem Unterlagsboden entsteht ein systemgetrennter, optimierter Gesamtaufbau, der alle bauakustischen Anforderungen zu erfüllen vermag. In der Fassade liegen die Decken auf den tragenden Holzelement-Aussenwänden auf. Im Inneren liegen sie zur Hauptsache auf den Wohnungstrennwänden auf, resp. schliessen an den aufgehenden Kern an. Dies erlaubt die konsequente Trennung an den Nutzungsgrenzen ohne Mehraufwand. Dem Manko der fehlenden Speichermasse wird durch die gezielte Beplankung oder Ausfachung der Innenwände begegnet. Verputzte Lehmplatten oder Lehmsteine bringen die benötigte Masse und unterstützen das Raumklima, mit ausgeprägten ökologischen Vorteilen. Die Balkone werden als vorfabrizierte Betonelemente der restlichen Konstruktion vorgestellt und einzig horizontal an das Gebäude angebunden. Dadurch ergeben sich nur minimale Bauteilabmessungen und reduzierte Durchdringungen der Dämmebene.
Die Geschossdecken leisten in Bezug auf die Erstellungskosten und die ökologischen Konsequenzen einen entscheidenden Beitrag. Die konsequente Ausgestaltung des Tragwerks als «Flachdecke» in Holz bringt die notwendige Flexibilität gegebenenfalls in der weiteren Projektierung auf die Bedürfnisse und Möglichkeiten der Bauherrin sowie den Entwicklungen der Branche Rücksicht zu nehmen. Anpassungen an der Ausgestaltung und Materialisierung der Deckenkonstruktion bleiben ohne signifikanten Einfluss auf den architektonischen Entwurf.
Der leichte Holzbau wird durch den betonierten Erschliessungskern stabilisiert, wodurch die aufwendige Materialisierung des vertikalen Fluchtweges wesentlich vereinfacht wird. Eingespannt wird der Kern im ebenfalls betonierten Untergeschoss. Die anfallenden Vertikallasten aus dem Holzbau werden über das massive Untergeschoss flach in den anstehenden Baugrund abgetragen. Dessen terrassierte Ausgestaltung fügt sich optimal ins Gelände ein und nimmt, soweit sinnhaft, Rücksicht auf das rückzubauende Volumen unter Terrain.
Der ökologische Fussabdruck der Stahlbetonbauteile wird durch die konsequente Minimierung der erforderlichen Bauteilstärken mit einfachen und ausgeglichen belasteten Tragsystemen weitestgehend reduziert. Darüber hinaus erlaubt der Einsatz von Emissionsreduzierten RC-Betonen heute bereits eine massgebliche Verbesserung der ökologischen Eigenschaften, die zusätzlich durch das aktive Einspeichern von CO2 in der Konstruktion ausgeglichen werden können.
NACHHALTIGKEIT
Der städtebauliche Ansatz orientiert sich an der quartierüblichen Bebauungsstruktur einer dichteren Bebauung entlang der Quartierstrassen und rückwärtig locker bebautem Gartenraum. Der Baukörper ist kompakt und gegen Süden gegliedert. Die Wohnräume profitieren von einer sehr guten Tageslichtqualität dank durchwegs guter Ausrichtung und angemessen grossen Fenstern. Im Gegenzug dazu garantieren der aussenliegende Sonnenschutz und die passive Speichermasse dank verputzter Lehmplatten im Innern einen guten sommerlichen Wärmeschutz und hohen hygrothermischen Innenraumkomfort.
Die kontrollierte Lüftung mit zentraler Abluft in den Nasszellen und passiver Nachströmung von Frischluft in den Zimmern bringt genügend frische Luft. Eine WRG vermindert den Lüftungswärmeverlust und gewährleistet neben der guten Gebäudehülle die Minergie-P Anforderungen. Im Sommer wird die Abwärme für die partielle Regeneration der Erdwärmesonden genutzt, was die Systemeffizienz im Winter erhöht und die Wohnräume moderat kühlt.
Der Aufwand für die Erstellung, die Graue Energie, wird in erster Linie mit dem effizienten Tragwerk tief gehalten. Aktuell ist eine Mischbauweise angedacht. Die Spannweiten sind jedoch derart konzipiert, dass im Verlauf der weiteren Planung eine ökologisch-ökonomische Optimierung in beide Richtungen (Holzbau oder Massivbau) ohne weiteres machbar ist. Als zweites ist der Fensteranteil angemessen und die Gebäudetechnik auf ein Minimum reduziert, ohne Einbussen beim Komfort in Kauf nehmen zu müssen. Die Wärmeerzeugung basiert auf 100% erneuerbarer Energie. Die Dächer werden extensiv begrünt und mit aufgeständerten PV-Modulen bestückt. So wird ein guter Teil des Strombedarfs selbst produziert.
Da das Gebäude auf maximale Kompaktheit und eine effiziente Unterkellerung setzt, wird ein grosser Gartenraum als Grünraum freigespielt. 90% der Bestandesbäume können erhalten bleiben. Mit einer ergänzenden, standortgerechten und an trockene und heisse Perioden angepasste Bepflanzung wird zudem eine kühlende Schattenwirkung erzielt. Das anfallende Regenwasser kann auf dem Grundstück bestens aufgenommen werden.
Mitarbeit Wettbewerb
Emy Vicencio, Paul Baumann, Svenja Egge
Landschaftsarchitekt: Mettler Landschaftsarchitektur AG, Gossau
Ingenieur: WaltGalmarini AG, Zürich
Nachhaltigkeit: Durable Planung und Beratung GmbH, Zürich
UMBAU WOHNHAUS UND HEUSTALL
AGUMS, 2024 –
DIREKTAUFTRAG
UMBAU WOHNHAUS UND HEUSTALL
AGUMS, 2024 –
DIREKTAUFTRAG
UMBAU WOHNHAUS UND HEUSTALL
AGUMS, 2024 –
DIREKTAUFTRAG
WOHNHAUS UND GEWERBE
OBERSTADT BADEN (AG), 2024-
DIREKTAUFTRAG, 2020
An zentraler Lage in der Badener Vorstadt entsteht ein mehrgeschossiges Wohnhaus mit 20 Wohnungen und unterteilbaren Gewerbeeinheiten im Erdgeschoss für eine lebendige, Generationen übergreifende Bewohnerschaft. Die bestehende Liegenschaft, eine alte Schlosserei, soll dabei rückgebaut und das Grundstück neu überbaut werden. Die Parzelle an der Oberstadtstrasse liegt von der Erschliessungsstrasse zurückversetzt und halb verborgen mittig im Geviert. Südseitig eingebettet in das ruhige Wohnquartier und nordseitig mit Blick auf die Bürowelt befindet sich die Parzelle an einer stadtstrukturellen Schnittstelle.
Der Gebäudekörper ist kompakt ausgebildet und nimmt vorhandene Geometrien des Gevierts auf. Ostseitig ist das 5-geschossige Haus mit Attika direkt an die Nachbarliegenschaft angebaut. Durch den Rückzug aus den Parzellenecken werden verschiedene Aussenräume freigespielt. Durch die volumetrische Ausbildung eines Plätzchens wird ein Ankunftsbereich vor dem Gebäude ausgeformt.
Am Ende des Plätzchens betritt man die Eingangshalle und wird zum zentral gelegenen Treppenhaus geführt. Ein Regelgeschoss besteht aus vier flächenoptimierten Wohnungen mit je eigener Ausrichtung, wobei sich die grossen Wohnungen in den beiden Flügeln des Gebäudes befinden. Im Attika befindet sich ein gemeinschaftlich genutzter Raum, der gleichzeitig die Waschküche aufnimmt. Der Raum öffnet sich auf die mit einer Pergola überdachten Terrasse.
Über einen Treppenabgang kann von der Ostseite her das Gebäude ebenfalls betreten werden. Dank der terrassierten Hanglage und einer leichten Abgrabung besteht die Möglichkeit neben dem Zugang einen Mehrzweckraum mit seitlicher Belichtung anzubieten.
Durch den Verzicht auf eine Komfortlüftung können dünne Deckenstärken realisiert, und mit dem Entscheid, autofreies Wohnen umzusetzen, kann das Untergeschoss kompakt gehalten und der Einsatz von Beton im ganzen Projekt minimiert werden. Zusammen mit der Einplanung, eines hinterlüfteten Fassadensystems, können auf diese Weise wichtige Punkte bezüglich Nachhaltigkeit umgesetzt werden.
Der Anspruch des Gebäudes, eine neue Mitte im Geviert und ein Anstoss für die weitere Entwicklung des Oberstadtgebietes zu bilden, sowie die Ansiedlung von halböffentlichen Nutzungen im Erdgeschoss verlangen nach einem Ausdruck der die Präsenz aus der zweiten Reihe heraus bis in den Strassenraum wirken lässt.
Vorgeschlagen wird eine Komposition aus rohen, trapezförmig gefalteten Aluminiumblechplatten und farbig beschichteten Stahlprofilen. Beides sind einfache und günstige Standardprodukte aus der Metallproduktion die in einfacher Weise zusammen gefügt und mit sichtbaren Verschraubungen befestigt werden. Die Anwendung roher unveredelter Materialien sowie das Fügungsprinzip derselben, welche unter Umständen Bauteile und Arbeitsprozesse ablesbar lassen und schlagen eine Brücke zur Geschichte des Ortes als industriellen Standort der Metallverarbeitung.
–
Erarbeitet mit Demuth Hagenmüller & Lamprecht Architekten
Mitarbeit Planung und Ausführung
Lilian Demuth, Sandra Hagenmüller, Andreas Lamprecht, Jenny Caviezel, Federico Farinatti
Bauherrschaft
Wohnbaustiftung Baden
Baumangagement
Quali-bau GmbH
Landschaftsarchitekt: Antón Landschaft GmbH
Ingenieur: HKP Bauingenieure AG
HLKS-Planer: Sero GmbH
Elektroplaner: P. Keller und Partner AG
Bauphysik: Bakus Bauphysik & Akusitk GmbH
Nachhaltigkeit: Durable Planung und Beratung GmbH
WOHNHAUS UND GEWERBE
OBERSTADT BADEN (AG), 2024-
DIREKTAUFTRAG, 2020
An zentraler Lage in der Badener Vorstadt entsteht ein mehrgeschossiges Wohnhaus mit 20 Wohnungen und unterteilbaren Gewerbeeinheiten im Erdgeschoss für eine lebendige, Generationen übergreifende Bewohnerschaft. Die bestehende Liegenschaft, eine alte Schlosserei, soll dabei rückgebaut und das Grundstück neu überbaut werden. Die Parzelle an der Oberstadtstrasse liegt von der Erschliessungsstrasse zurückversetzt und halb verborgen mittig im Geviert. Südseitig eingebettet in das ruhige Wohnquartier und nordseitig mit Blick auf die Bürowelt befindet sich die Parzelle an einer stadtstrukturellen Schnittstelle.
Der Gebäudekörper ist kompakt ausgebildet und nimmt vorhandene Geometrien des Gevierts auf. Ostseitig ist das 5-geschossige Haus mit Attika direkt an die Nachbarliegenschaft angebaut. Durch den Rückzug aus den Parzellenecken werden verschiedene Aussenräume freigespielt. Durch die volumetrische Ausbildung eines Plätzchens wird ein Ankunftsbereich vor dem Gebäude ausgeformt.
Am Ende des Plätzchens betritt man die Eingangshalle und wird zum zentral gelegenen Treppenhaus geführt. Ein Regelgeschoss besteht aus vier flächenoptimierten Wohnungen mit je eigener Ausrichtung, wobei sich die grossen Wohnungen in den beiden Flügeln des Gebäudes befinden. Im Attika befindet sich ein gemeinschaftlich genutzter Raum, der gleichzeitig die Waschküche aufnimmt. Der Raum öffnet sich auf die mit einer Pergola überdachten Terrasse.
Über einen Treppenabgang kann von der Ostseite her das Gebäude ebenfalls betreten werden. Dank der terrassierten Hanglage und einer leichten Abgrabung besteht die Möglichkeit neben dem Zugang einen Mehrzweckraum mit seitlicher Belichtung anzubieten.
Durch den Verzicht auf eine Komfortlüftung können dünne Deckenstärken realisiert, und mit dem Entscheid, autofreies Wohnen umzusetzen, kann das Untergeschoss kompakt gehalten und der Einsatz von Beton im ganzen Projekt minimiert werden. Zusammen mit der Einplanung, eines hinterlüfteten Fassadensystems, können auf diese Weise wichtige Punkte bezüglich Nachhaltigkeit umgesetzt werden.
Der Anspruch des Gebäudes, eine neue Mitte im Geviert und ein Anstoss für die weitere Entwicklung des Oberstadtgebietes zu bilden, sowie die Ansiedlung von halböffentlichen Nutzungen im Erdgeschoss verlangen nach einem Ausdruck der die Präsenz aus der zweiten Reihe heraus bis in den Strassenraum wirken lässt.
Vorgeschlagen wird eine Komposition aus rohen, trapezförmig gefalteten Aluminiumblechplatten und farbig beschichteten Stahlprofilen. Beides sind einfache und günstige Standardprodukte aus der Metallproduktion die in einfacher Weise zusammen gefügt und mit sichtbaren Verschraubungen befestigt werden. Die Anwendung roher unveredelter Materialien sowie das Fügungsprinzip derselben, welche unter Umständen Bauteile und Arbeitsprozesse ablesbar lassen und schlagen eine Brücke zur Geschichte des Ortes als industriellen Standort der Metallverarbeitung.
–
Erarbeitet mit Demuth Hagenmüller & Lamprecht Architekten
Mitarbeit Planung und Ausführung
Lilian Demuth, Sandra Hagenmüller, Andreas Lamprecht, Jenny Caviezel, Federico Farinatti
Bauherrschaft
Wohnbaustiftung Baden
Baumangagement
Quali-bau GmbH
Landschaftsarchitekt: Antón Landschaft GmbH
Ingenieur: HKP Bauingenieure AG
HLKS-Planer: Sero GmbH
Elektroplaner: P. Keller und Partner AG
Bauphysik: Bakus Bauphysik & Akusitk GmbH
Nachhaltigkeit: Durable Planung und Beratung GmbH
WOHNHAUS UND GEWERBE
OBERSTADT BADEN (AG), 2024-
DIREKTAUFTRAG, 2020
An zentraler Lage in der Badener Vorstadt entsteht ein mehrgeschossiges Wohnhaus mit 20 Wohnungen und unterteilbaren Gewerbeeinheiten im Erdgeschoss für eine lebendige, Generationen übergreifende Bewohnerschaft. Die bestehende Liegenschaft, eine alte Schlosserei, soll dabei rückgebaut und das Grundstück neu überbaut werden. Die Parzelle an der Oberstadtstrasse liegt von der Erschliessungsstrasse zurückversetzt und halb verborgen mittig im Geviert. Südseitig eingebettet in das ruhige Wohnquartier und nordseitig mit Blick auf die Bürowelt befindet sich die Parzelle an einer stadtstrukturellen Schnittstelle.
Der Gebäudekörper ist kompakt ausgebildet und nimmt vorhandene Geometrien des Gevierts auf. Ostseitig ist das 5-geschossige Haus mit Attika direkt an die Nachbarliegenschaft angebaut. Durch den Rückzug aus den Parzellenecken werden verschiedene Aussenräume freigespielt. Durch die volumetrische Ausbildung eines Plätzchens wird ein Ankunftsbereich vor dem Gebäude ausgeformt.
Am Ende des Plätzchens betritt man die Eingangshalle und wird zum zentral gelegenen Treppenhaus geführt. Ein Regelgeschoss besteht aus vier flächenoptimierten Wohnungen mit je eigener Ausrichtung, wobei sich die grossen Wohnungen in den beiden Flügeln des Gebäudes befinden. Im Attika befindet sich ein gemeinschaftlich genutzter Raum, der gleichzeitig die Waschküche aufnimmt. Der Raum öffnet sich auf die mit einer Pergola überdachten Terrasse.
Über einen Treppenabgang kann von der Ostseite her das Gebäude ebenfalls betreten werden. Dank der terrassierten Hanglage und einer leichten Abgrabung besteht die Möglichkeit neben dem Zugang einen Mehrzweckraum mit seitlicher Belichtung anzubieten.
Durch den Verzicht auf eine Komfortlüftung können dünne Deckenstärken realisiert, und mit dem Entscheid, autofreies Wohnen umzusetzen, kann das Untergeschoss kompakt gehalten und der Einsatz von Beton im ganzen Projekt minimiert werden. Zusammen mit der Einplanung, eines hinterlüfteten Fassadensystems, können auf diese Weise wichtige Punkte bezüglich Nachhaltigkeit umgesetzt werden.
Der Anspruch des Gebäudes, eine neue Mitte im Geviert und ein Anstoss für die weitere Entwicklung des Oberstadtgebietes zu bilden, sowie die Ansiedlung von halböffentlichen Nutzungen im Erdgeschoss verlangen nach einem Ausdruck der die Präsenz aus der zweiten Reihe heraus bis in den Strassenraum wirken lässt.
Vorgeschlagen wird eine Komposition aus rohen, trapezförmig gefalteten Aluminiumblechplatten und farbig beschichteten Stahlprofilen. Beides sind einfache und günstige Standardprodukte aus der Metallproduktion die in einfacher Weise zusammen gefügt und mit sichtbaren Verschraubungen befestigt werden. Die Anwendung roher unveredelter Materialien sowie das Fügungsprinzip derselben, welche unter Umständen Bauteile und Arbeitsprozesse ablesbar lassen und schlagen eine Brücke zur Geschichte des Ortes als industriellen Standort der Metallverarbeitung.
–
Erarbeitet mit Demuth Hagenmüller & Lamprecht Architekten
Mitarbeit Planung und Ausführung
Lilian Demuth, Sandra Hagenmüller, Andreas Lamprecht, Jenny Caviezel, Federico Farinatti
Bauherrschaft
Wohnbaustiftung Baden
Baumangagement
Quali-bau GmbH
Landschaftsarchitekt: Antón Landschaft GmbH
Ingenieur: HKP Bauingenieure AG
HLKS-Planer: Sero GmbH
Elektroplaner: P. Keller und Partner AG
Bauphysik: Bakus Bauphysik & Akusitk GmbH
Nachhaltigkeit: Durable Planung und Beratung GmbH
WOHNHAUS UND GEWERBE
OBERSTADT BADEN (AG), 2024-
DIREKTAUFTRAG, 2020
An zentraler Lage in der Badener Vorstadt entsteht ein mehrgeschossiges Wohnhaus mit 20 Wohnungen und unterteilbaren Gewerbeeinheiten im Erdgeschoss für eine lebendige, Generationen übergreifende Bewohnerschaft. Die bestehende Liegenschaft, eine alte Schlosserei, soll dabei rückgebaut und das Grundstück neu überbaut werden. Die Parzelle an der Oberstadtstrasse liegt von der Erschliessungsstrasse zurückversetzt und halb verborgen mittig im Geviert. Südseitig eingebettet in das ruhige Wohnquartier und nordseitig mit Blick auf die Bürowelt befindet sich die Parzelle an einer stadtstrukturellen Schnittstelle.
Der Gebäudekörper ist kompakt ausgebildet und nimmt vorhandene Geometrien des Gevierts auf. Ostseitig ist das 5-geschossige Haus mit Attika direkt an die Nachbarliegenschaft angebaut. Durch den Rückzug aus den Parzellenecken werden verschiedene Aussenräume freigespielt. Durch die volumetrische Ausbildung eines Plätzchens wird ein Ankunftsbereich vor dem Gebäude ausgeformt.
Am Ende des Plätzchens betritt man die Eingangshalle und wird zum zentral gelegenen Treppenhaus geführt. Ein Regelgeschoss besteht aus vier flächenoptimierten Wohnungen mit je eigener Ausrichtung, wobei sich die grossen Wohnungen in den beiden Flügeln des Gebäudes befinden. Im Attika befindet sich ein gemeinschaftlich genutzter Raum, der gleichzeitig die Waschküche aufnimmt. Der Raum öffnet sich auf die mit einer Pergola überdachten Terrasse.
Über einen Treppenabgang kann von der Ostseite her das Gebäude ebenfalls betreten werden. Dank der terrassierten Hanglage und einer leichten Abgrabung besteht die Möglichkeit neben dem Zugang einen Mehrzweckraum mit seitlicher Belichtung anzubieten.
Durch den Verzicht auf eine Komfortlüftung können dünne Deckenstärken realisiert, und mit dem Entscheid, autofreies Wohnen umzusetzen, kann das Untergeschoss kompakt gehalten und der Einsatz von Beton im ganzen Projekt minimiert werden. Zusammen mit der Einplanung, eines hinterlüfteten Fassadensystems, können auf diese Weise wichtige Punkte bezüglich Nachhaltigkeit umgesetzt werden.
Der Anspruch des Gebäudes, eine neue Mitte im Geviert und ein Anstoss für die weitere Entwicklung des Oberstadtgebietes zu bilden, sowie die Ansiedlung von halböffentlichen Nutzungen im Erdgeschoss verlangen nach einem Ausdruck der die Präsenz aus der zweiten Reihe heraus bis in den Strassenraum wirken lässt.
Vorgeschlagen wird eine Komposition aus rohen, trapezförmig gefalteten Aluminiumblechplatten und farbig beschichteten Stahlprofilen. Beides sind einfache und günstige Standardprodukte aus der Metallproduktion die in einfacher Weise zusammen gefügt und mit sichtbaren Verschraubungen befestigt werden. Die Anwendung roher unveredelter Materialien sowie das Fügungsprinzip derselben, welche unter Umständen Bauteile und Arbeitsprozesse ablesbar lassen und schlagen eine Brücke zur Geschichte des Ortes als industriellen Standort der Metallverarbeitung.
–
Erarbeitet mit Demuth Hagenmüller & Lamprecht Architekten
Mitarbeit Planung und Ausführung
Lilian Demuth, Sandra Hagenmüller, Andreas Lamprecht, Jenny Caviezel, Federico Farinatti
Bauherrschaft
Wohnbaustiftung Baden
Baumangagement
Quali-bau GmbH
Landschaftsarchitekt: Antón Landschaft GmbH
Ingenieur: HKP Bauingenieure AG
HLKS-Planer: Sero GmbH
Elektroplaner: P. Keller und Partner AG
Bauphysik: Bakus Bauphysik & Akusitk GmbH
Nachhaltigkeit: Durable Planung und Beratung GmbH
WOHNHAUS UND GEWERBE
OBERSTADT BADEN (AG), 2024-
DIREKTAUFTRAG, 2020
An zentraler Lage in der Badener Vorstadt entsteht ein mehrgeschossiges Wohnhaus mit 20 Wohnungen und unterteilbaren Gewerbeeinheiten im Erdgeschoss für eine lebendige, Generationen übergreifende Bewohnerschaft. Die bestehende Liegenschaft, eine alte Schlosserei, soll dabei rückgebaut und das Grundstück neu überbaut werden. Die Parzelle an der Oberstadtstrasse liegt von der Erschliessungsstrasse zurückversetzt und halb verborgen mittig im Geviert. Südseitig eingebettet in das ruhige Wohnquartier und nordseitig mit Blick auf die Bürowelt befindet sich die Parzelle an einer stadtstrukturellen Schnittstelle.
Der Gebäudekörper ist kompakt ausgebildet und nimmt vorhandene Geometrien des Gevierts auf. Ostseitig ist das 5-geschossige Haus mit Attika direkt an die Nachbarliegenschaft angebaut. Durch den Rückzug aus den Parzellenecken werden verschiedene Aussenräume freigespielt. Durch die volumetrische Ausbildung eines Plätzchens wird ein Ankunftsbereich vor dem Gebäude ausgeformt.
Am Ende des Plätzchens betritt man die Eingangshalle und wird zum zentral gelegenen Treppenhaus geführt. Ein Regelgeschoss besteht aus vier flächenoptimierten Wohnungen mit je eigener Ausrichtung, wobei sich die grossen Wohnungen in den beiden Flügeln des Gebäudes befinden. Im Attika befindet sich ein gemeinschaftlich genutzter Raum, der gleichzeitig die Waschküche aufnimmt. Der Raum öffnet sich auf die mit einer Pergola überdachten Terrasse.
Über einen Treppenabgang kann von der Ostseite her das Gebäude ebenfalls betreten werden. Dank der terrassierten Hanglage und einer leichten Abgrabung besteht die Möglichkeit neben dem Zugang einen Mehrzweckraum mit seitlicher Belichtung anzubieten.
Durch den Verzicht auf eine Komfortlüftung können dünne Deckenstärken realisiert, und mit dem Entscheid, autofreies Wohnen umzusetzen, kann das Untergeschoss kompakt gehalten und der Einsatz von Beton im ganzen Projekt minimiert werden. Zusammen mit der Einplanung, eines hinterlüfteten Fassadensystems, können auf diese Weise wichtige Punkte bezüglich Nachhaltigkeit umgesetzt werden.
Der Anspruch des Gebäudes, eine neue Mitte im Geviert und ein Anstoss für die weitere Entwicklung des Oberstadtgebietes zu bilden, sowie die Ansiedlung von halböffentlichen Nutzungen im Erdgeschoss verlangen nach einem Ausdruck der die Präsenz aus der zweiten Reihe heraus bis in den Strassenraum wirken lässt.
Vorgeschlagen wird eine Komposition aus rohen, trapezförmig gefalteten Aluminiumblechplatten und farbig beschichteten Stahlprofilen. Beides sind einfache und günstige Standardprodukte aus der Metallproduktion die in einfacher Weise zusammen gefügt und mit sichtbaren Verschraubungen befestigt werden. Die Anwendung roher unveredelter Materialien sowie das Fügungsprinzip derselben, welche unter Umständen Bauteile und Arbeitsprozesse ablesbar lassen und schlagen eine Brücke zur Geschichte des Ortes als industriellen Standort der Metallverarbeitung.
–
Erarbeitet mit Demuth Hagenmüller & Lamprecht Architekten
Mitarbeit Planung und Ausführung
Lilian Demuth, Sandra Hagenmüller, Andreas Lamprecht, Jenny Caviezel, Federico Farinatti
Bauherrschaft
Wohnbaustiftung Baden
Baumangagement
Quali-bau GmbH
Landschaftsarchitekt: Antón Landschaft GmbH
Ingenieur: HKP Bauingenieure AG
HLKS-Planer: Sero GmbH
Elektroplaner: P. Keller und Partner AG
Bauphysik: Bakus Bauphysik & Akusitk GmbH
Nachhaltigkeit: Durable Planung und Beratung GmbH
WOHNHAUS UND GEWERBE
OBERSTADT BADEN (AG), 2024-
DIREKTAUFTRAG, 2020
An zentraler Lage in der Badener Vorstadt entsteht ein mehrgeschossiges Wohnhaus mit 20 Wohnungen und unterteilbaren Gewerbeeinheiten im Erdgeschoss für eine lebendige, Generationen übergreifende Bewohnerschaft. Die bestehende Liegenschaft, eine alte Schlosserei, soll dabei rückgebaut und das Grundstück neu überbaut werden. Die Parzelle an der Oberstadtstrasse liegt von der Erschliessungsstrasse zurückversetzt und halb verborgen mittig im Geviert. Südseitig eingebettet in das ruhige Wohnquartier und nordseitig mit Blick auf die Bürowelt befindet sich die Parzelle an einer stadtstrukturellen Schnittstelle.
Der Gebäudekörper ist kompakt ausgebildet und nimmt vorhandene Geometrien des Gevierts auf. Ostseitig ist das 5-geschossige Haus mit Attika direkt an die Nachbarliegenschaft angebaut. Durch den Rückzug aus den Parzellenecken werden verschiedene Aussenräume freigespielt. Durch die volumetrische Ausbildung eines Plätzchens wird ein Ankunftsbereich vor dem Gebäude ausgeformt.
Am Ende des Plätzchens betritt man die Eingangshalle und wird zum zentral gelegenen Treppenhaus geführt. Ein Regelgeschoss besteht aus vier flächenoptimierten Wohnungen mit je eigener Ausrichtung, wobei sich die grossen Wohnungen in den beiden Flügeln des Gebäudes befinden. Im Attika befindet sich ein gemeinschaftlich genutzter Raum, der gleichzeitig die Waschküche aufnimmt. Der Raum öffnet sich auf die mit einer Pergola überdachten Terrasse.
Über einen Treppenabgang kann von der Ostseite her das Gebäude ebenfalls betreten werden. Dank der terrassierten Hanglage und einer leichten Abgrabung besteht die Möglichkeit neben dem Zugang einen Mehrzweckraum mit seitlicher Belichtung anzubieten.
Durch den Verzicht auf eine Komfortlüftung können dünne Deckenstärken realisiert, und mit dem Entscheid, autofreies Wohnen umzusetzen, kann das Untergeschoss kompakt gehalten und der Einsatz von Beton im ganzen Projekt minimiert werden. Zusammen mit der Einplanung, eines hinterlüfteten Fassadensystems, können auf diese Weise wichtige Punkte bezüglich Nachhaltigkeit umgesetzt werden.
Der Anspruch des Gebäudes, eine neue Mitte im Geviert und ein Anstoss für die weitere Entwicklung des Oberstadtgebietes zu bilden, sowie die Ansiedlung von halböffentlichen Nutzungen im Erdgeschoss verlangen nach einem Ausdruck der die Präsenz aus der zweiten Reihe heraus bis in den Strassenraum wirken lässt.
Vorgeschlagen wird eine Komposition aus rohen, trapezförmig gefalteten Aluminiumblechplatten und farbig beschichteten Stahlprofilen. Beides sind einfache und günstige Standardprodukte aus der Metallproduktion die in einfacher Weise zusammen gefügt und mit sichtbaren Verschraubungen befestigt werden. Die Anwendung roher unveredelter Materialien sowie das Fügungsprinzip derselben, welche unter Umständen Bauteile und Arbeitsprozesse ablesbar lassen und schlagen eine Brücke zur Geschichte des Ortes als industriellen Standort der Metallverarbeitung.
–
Erarbeitet mit Demuth Hagenmüller & Lamprecht Architekten
Mitarbeit Planung und Ausführung
Lilian Demuth, Sandra Hagenmüller, Andreas Lamprecht, Jenny Caviezel, Federico Farinatti
Bauherrschaft
Wohnbaustiftung Baden
Baumangagement
Quali-bau GmbH
Landschaftsarchitekt: Antón Landschaft GmbH
Ingenieur: HKP Bauingenieure AG
HLKS-Planer: Sero GmbH
Elektroplaner: P. Keller und Partner AG
Bauphysik: Bakus Bauphysik & Akusitk GmbH
Nachhaltigkeit: Durable Planung und Beratung GmbH
WOHNHAUS UND GEWERBE
OBERSTADT BADEN (AG), 2024-
DIREKTAUFTRAG, 2020
An zentraler Lage in der Badener Vorstadt entsteht ein mehrgeschossiges Wohnhaus mit 20 Wohnungen und unterteilbaren Gewerbeeinheiten im Erdgeschoss für eine lebendige, Generationen übergreifende Bewohnerschaft. Die bestehende Liegenschaft, eine alte Schlosserei, soll dabei rückgebaut und das Grundstück neu überbaut werden. Die Parzelle an der Oberstadtstrasse liegt von der Erschliessungsstrasse zurückversetzt und halb verborgen mittig im Geviert. Südseitig eingebettet in das ruhige Wohnquartier und nordseitig mit Blick auf die Bürowelt befindet sich die Parzelle an einer stadtstrukturellen Schnittstelle.
Der Gebäudekörper ist kompakt ausgebildet und nimmt vorhandene Geometrien des Gevierts auf. Ostseitig ist das 5-geschossige Haus mit Attika direkt an die Nachbarliegenschaft angebaut. Durch den Rückzug aus den Parzellenecken werden verschiedene Aussenräume freigespielt. Durch die volumetrische Ausbildung eines Plätzchens wird ein Ankunftsbereich vor dem Gebäude ausgeformt.
Am Ende des Plätzchens betritt man die Eingangshalle und wird zum zentral gelegenen Treppenhaus geführt. Ein Regelgeschoss besteht aus vier flächenoptimierten Wohnungen mit je eigener Ausrichtung, wobei sich die grossen Wohnungen in den beiden Flügeln des Gebäudes befinden. Im Attika befindet sich ein gemeinschaftlich genutzter Raum, der gleichzeitig die Waschküche aufnimmt. Der Raum öffnet sich auf die mit einer Pergola überdachten Terrasse.
Über einen Treppenabgang kann von der Ostseite her das Gebäude ebenfalls betreten werden. Dank der terrassierten Hanglage und einer leichten Abgrabung besteht die Möglichkeit neben dem Zugang einen Mehrzweckraum mit seitlicher Belichtung anzubieten.
Durch den Verzicht auf eine Komfortlüftung können dünne Deckenstärken realisiert, und mit dem Entscheid, autofreies Wohnen umzusetzen, kann das Untergeschoss kompakt gehalten und der Einsatz von Beton im ganzen Projekt minimiert werden. Zusammen mit der Einplanung, eines hinterlüfteten Fassadensystems, können auf diese Weise wichtige Punkte bezüglich Nachhaltigkeit umgesetzt werden.
Der Anspruch des Gebäudes, eine neue Mitte im Geviert und ein Anstoss für die weitere Entwicklung des Oberstadtgebietes zu bilden, sowie die Ansiedlung von halböffentlichen Nutzungen im Erdgeschoss verlangen nach einem Ausdruck der die Präsenz aus der zweiten Reihe heraus bis in den Strassenraum wirken lässt.
Vorgeschlagen wird eine Komposition aus rohen, trapezförmig gefalteten Aluminiumblechplatten und farbig beschichteten Stahlprofilen. Beides sind einfache und günstige Standardprodukte aus der Metallproduktion die in einfacher Weise zusammen gefügt und mit sichtbaren Verschraubungen befestigt werden. Die Anwendung roher unveredelter Materialien sowie das Fügungsprinzip derselben, welche unter Umständen Bauteile und Arbeitsprozesse ablesbar lassen und schlagen eine Brücke zur Geschichte des Ortes als industriellen Standort der Metallverarbeitung.
–
Erarbeitet mit Demuth Hagenmüller & Lamprecht Architekten
Mitarbeit Planung und Ausführung
Lilian Demuth, Sandra Hagenmüller, Andreas Lamprecht, Jenny Caviezel, Federico Farinatti
Bauherrschaft
Wohnbaustiftung Baden
Baumangagement
Quali-bau GmbH
Landschaftsarchitekt: Antón Landschaft GmbH
Ingenieur: HKP Bauingenieure AG
HLKS-Planer: Sero GmbH
Elektroplaner: P. Keller und Partner AG
Bauphysik: Bakus Bauphysik & Akusitk GmbH
Nachhaltigkeit: Durable Planung und Beratung GmbH
WOHNHAUS UND GEWERBE
OBERSTADT BADEN (AG), 2024-
DIREKTAUFTRAG, 2020
An zentraler Lage in der Badener Vorstadt entsteht ein mehrgeschossiges Wohnhaus mit 20 Wohnungen und unterteilbaren Gewerbeeinheiten im Erdgeschoss für eine lebendige, Generationen übergreifende Bewohnerschaft. Die bestehende Liegenschaft, eine alte Schlosserei, soll dabei rückgebaut und das Grundstück neu überbaut werden. Die Parzelle an der Oberstadtstrasse liegt von der Erschliessungsstrasse zurückversetzt und halb verborgen mittig im Geviert. Südseitig eingebettet in das ruhige Wohnquartier und nordseitig mit Blick auf die Bürowelt befindet sich die Parzelle an einer stadtstrukturellen Schnittstelle.
Der Gebäudekörper ist kompakt ausgebildet und nimmt vorhandene Geometrien des Gevierts auf. Ostseitig ist das 5-geschossige Haus mit Attika direkt an die Nachbarliegenschaft angebaut. Durch den Rückzug aus den Parzellenecken werden verschiedene Aussenräume freigespielt. Durch die volumetrische Ausbildung eines Plätzchens wird ein Ankunftsbereich vor dem Gebäude ausgeformt.
Am Ende des Plätzchens betritt man die Eingangshalle und wird zum zentral gelegenen Treppenhaus geführt. Ein Regelgeschoss besteht aus vier flächenoptimierten Wohnungen mit je eigener Ausrichtung, wobei sich die grossen Wohnungen in den beiden Flügeln des Gebäudes befinden. Im Attika befindet sich ein gemeinschaftlich genutzter Raum, der gleichzeitig die Waschküche aufnimmt. Der Raum öffnet sich auf die mit einer Pergola überdachten Terrasse.
Über einen Treppenabgang kann von der Ostseite her das Gebäude ebenfalls betreten werden. Dank der terrassierten Hanglage und einer leichten Abgrabung besteht die Möglichkeit neben dem Zugang einen Mehrzweckraum mit seitlicher Belichtung anzubieten.
Durch den Verzicht auf eine Komfortlüftung können dünne Deckenstärken realisiert, und mit dem Entscheid, autofreies Wohnen umzusetzen, kann das Untergeschoss kompakt gehalten und der Einsatz von Beton im ganzen Projekt minimiert werden. Zusammen mit der Einplanung, eines hinterlüfteten Fassadensystems, können auf diese Weise wichtige Punkte bezüglich Nachhaltigkeit umgesetzt werden.
Der Anspruch des Gebäudes, eine neue Mitte im Geviert und ein Anstoss für die weitere Entwicklung des Oberstadtgebietes zu bilden, sowie die Ansiedlung von halböffentlichen Nutzungen im Erdgeschoss verlangen nach einem Ausdruck der die Präsenz aus der zweiten Reihe heraus bis in den Strassenraum wirken lässt.
Vorgeschlagen wird eine Komposition aus rohen, trapezförmig gefalteten Aluminiumblechplatten und farbig beschichteten Stahlprofilen. Beides sind einfache und günstige Standardprodukte aus der Metallproduktion die in einfacher Weise zusammen gefügt und mit sichtbaren Verschraubungen befestigt werden. Die Anwendung roher unveredelter Materialien sowie das Fügungsprinzip derselben, welche unter Umständen Bauteile und Arbeitsprozesse ablesbar lassen und schlagen eine Brücke zur Geschichte des Ortes als industriellen Standort der Metallverarbeitung.
–
Erarbeitet mit Demuth Hagenmüller & Lamprecht Architekten
Mitarbeit Planung und Ausführung
Lilian Demuth, Sandra Hagenmüller, Andreas Lamprecht, Jenny Caviezel, Federico Farinatti
Bauherrschaft
Wohnbaustiftung Baden
Baumangagement
Quali-bau GmbH
Landschaftsarchitekt: Antón Landschaft GmbH
Ingenieur: HKP Bauingenieure AG
HLKS-Planer: Sero GmbH
Elektroplaner: P. Keller und Partner AG
Bauphysik: Bakus Bauphysik & Akusitk GmbH
Nachhaltigkeit: Durable Planung und Beratung GmbH
WOHNHAUS UND GEWERBE
OBERSTADT BADEN (AG), 2024-
DIREKTAUFTRAG, 2020
An zentraler Lage in der Badener Vorstadt entsteht ein mehrgeschossiges Wohnhaus mit 20 Wohnungen und unterteilbaren Gewerbeeinheiten im Erdgeschoss für eine lebendige, Generationen übergreifende Bewohnerschaft. Die bestehende Liegenschaft, eine alte Schlosserei, soll dabei rückgebaut und das Grundstück neu überbaut werden. Die Parzelle an der Oberstadtstrasse liegt von der Erschliessungsstrasse zurückversetzt und halb verborgen mittig im Geviert. Südseitig eingebettet in das ruhige Wohnquartier und nordseitig mit Blick auf die Bürowelt befindet sich die Parzelle an einer stadtstrukturellen Schnittstelle.
Der Gebäudekörper ist kompakt ausgebildet und nimmt vorhandene Geometrien des Gevierts auf. Ostseitig ist das 5-geschossige Haus mit Attika direkt an die Nachbarliegenschaft angebaut. Durch den Rückzug aus den Parzellenecken werden verschiedene Aussenräume freigespielt. Durch die volumetrische Ausbildung eines Plätzchens wird ein Ankunftsbereich vor dem Gebäude ausgeformt.
Am Ende des Plätzchens betritt man die Eingangshalle und wird zum zentral gelegenen Treppenhaus geführt. Ein Regelgeschoss besteht aus vier flächenoptimierten Wohnungen mit je eigener Ausrichtung, wobei sich die grossen Wohnungen in den beiden Flügeln des Gebäudes befinden. Im Attika befindet sich ein gemeinschaftlich genutzter Raum, der gleichzeitig die Waschküche aufnimmt. Der Raum öffnet sich auf die mit einer Pergola überdachten Terrasse.
Über einen Treppenabgang kann von der Ostseite her das Gebäude ebenfalls betreten werden. Dank der terrassierten Hanglage und einer leichten Abgrabung besteht die Möglichkeit neben dem Zugang einen Mehrzweckraum mit seitlicher Belichtung anzubieten.
Durch den Verzicht auf eine Komfortlüftung können dünne Deckenstärken realisiert, und mit dem Entscheid, autofreies Wohnen umzusetzen, kann das Untergeschoss kompakt gehalten und der Einsatz von Beton im ganzen Projekt minimiert werden. Zusammen mit der Einplanung, eines hinterlüfteten Fassadensystems, können auf diese Weise wichtige Punkte bezüglich Nachhaltigkeit umgesetzt werden.
Der Anspruch des Gebäudes, eine neue Mitte im Geviert und ein Anstoss für die weitere Entwicklung des Oberstadtgebietes zu bilden, sowie die Ansiedlung von halböffentlichen Nutzungen im Erdgeschoss verlangen nach einem Ausdruck der die Präsenz aus der zweiten Reihe heraus bis in den Strassenraum wirken lässt.
Vorgeschlagen wird eine Komposition aus rohen, trapezförmig gefalteten Aluminiumblechplatten und farbig beschichteten Stahlprofilen. Beides sind einfache und günstige Standardprodukte aus der Metallproduktion die in einfacher Weise zusammen gefügt und mit sichtbaren Verschraubungen befestigt werden. Die Anwendung roher unveredelter Materialien sowie das Fügungsprinzip derselben, welche unter Umständen Bauteile und Arbeitsprozesse ablesbar lassen und schlagen eine Brücke zur Geschichte des Ortes als industriellen Standort der Metallverarbeitung.
–
Erarbeitet mit Demuth Hagenmüller & Lamprecht Architekten
Mitarbeit Planung und Ausführung
Lilian Demuth, Sandra Hagenmüller, Andreas Lamprecht, Jenny Caviezel, Federico Farinatti
Bauherrschaft
Wohnbaustiftung Baden
Baumangagement
Quali-bau GmbH
Landschaftsarchitekt: Antón Landschaft GmbH
Ingenieur: HKP Bauingenieure AG
HLKS-Planer: Sero GmbH
Elektroplaner: P. Keller und Partner AG
Bauphysik: Bakus Bauphysik & Akusitk GmbH
Nachhaltigkeit: Durable Planung und Beratung GmbH
WOHNHAUS UND GEWERBE
PROJEKTWETTBEWERB, 2021, 2. RANG
Erarbeitet mit Demuth Hagenmüller & Lamprecht Architekten
WOHNHAUS UND GEWERBE
PROJEKTWETTBEWERB, 2021, 2. RANG
Erarbeitet mit Demuth Hagenmüller & Lamprecht Architekten
WOHNHAUS UND GEWERBE
PROJEKTWETTBEWERB, 2021, 2. RANG
Erarbeitet mit Demuth Hagenmüller & Lamprecht Architekten
WOHNHAUS UND GEWERBE
PROJEKTWETTBEWERB, 2021, 2. RANG
Erarbeitet mit Demuth Hagenmüller & Lamprecht Architekten
WOHNHAUS UND GEWERBE
PROJEKTWETTBEWERB, 2021, 2. RANG
Erarbeitet mit Demuth Hagenmüller & Lamprecht Architekten
WOHNHAUS UND GEWERBE
PROJEKTWETTBEWERB, 2021, 2. RANG
Erarbeitet mit Demuth Hagenmüller & Lamprecht Architekten
WOHNHAUS UND GEWERBE
PROJEKTWETTBEWERB, 2021, 2. RANG
Erarbeitet mit Demuth Hagenmüller & Lamprecht Architekten
WOHNHAUS UND GEWERBE
PROJEKTWETTBEWERB, 2021, 2. RANG
Erarbeitet mit Demuth Hagenmüller & Lamprecht Architekten
WOHNHAUS UND GEWERBE
PROJEKTWETTBEWERB, 2021, 2. RANG
Erarbeitet mit Demuth Hagenmüller & Lamprecht Architekten
VIETTA STREDAS IN CELERINA (GR)
PROJEKTSTUDIE, 2024
Seit Mitte des 19. Jahrhunderts bildet die Vietta Stredas eine Verbindungslinie zwischen Crasta (als Abzweiger von der Kirche St. Maria herkommend) und dem hanggelegenen Ortsteil Celerina Seglias. Seit 1903, mit der Eröffnung der Bahnstation, erhielt die Strasse eine noch wichtigere Bedeutung für die Vernetzung von Crasta und Celerina und bildet bis heute und mit ihrem späteren Verlauf als Via Pradé die direkteste, vielgenutzte Fussverbindung von Crasta zum Bahnhof. Das neue Wohnhaus legt als kompaktes Gebäudevolumen an dieser alten Verbindung an, die historische Dorfstruktur wird weitergebaut und die Bedeutung der Querverbindung zwischen den Ortsteilen gestärkt. Diese Wiedererlangung an Struktur und Definiertheit ist wichtig, nach der Entwicklung der letzten Jahrzehnte mit vielen eher bezugslosen Ferienhäusern in Crasta. Traufständig folgt das Wohnhaus der Strasse und bildet ihren Giebel zur Nordseite an der Spinel Giat und gegen Süden hin aus. Gemeinsam mit der Chesa Caviezel wird der Dorfkörper so weiter definiert. Mittels feiner geometrischer Massnahmen, dem Abknicken des Neubaus zur Chesa Caviezel hin, kann die identitätsstiftende Ansicht auf den geschützten Baukörper erhalten werden und das grosse Volumen behutsam und unter mitschwingender Analogie gewachsener Engadiner Dorfstrukturen in den Kontext integriert werden.
Die Grundrisse werden mit der Effizienz alter Engadiner Häuser entwickelt. Über eine Eingangsloggia wird das neue Wohnhaus an der meistfrequentierten Ecke Vietta Stredas/ Spinel Giat erschlossen. Der gedeckte Hauszugang mit Bänkchen und der mittig angelegte „Sulèr“ bieten viel Raum für die Begegnungen der Bewohner. Jeweils vier Wohnungen werden aus dem zentralen Treppenraum pro Geschoss erschlossen. Mit der Typologie der kammerartigen Raum-zu-Raumerschliessung alter Engadiner Häuser wird der Grundriss disponiert: Gegen Osten und Westen profitieren die Wohnungen von breitflankend angelegten, einfach geschnittenen und optimal belichteten Wohnhallen. Hier findet auf knapp geschnittener Fläche das ganze Leben statt. Küchen- und Schlafräume sind im Wesentlichen als Kammern zu den Stirnseiten des Wohnhauses ausgerichtet. Familienwohnungen befinden sich hauptsächlich zum Gartenraum hin ausgerichtet. Zwei Familien-Maisonettewohnungenbereichern dabei das Angebot und werden aus dem 2. Obergeschoss unter das Dach entwickelt. Grosszügige Schlaf- und Badezimmer, Schrank und Reduiträume, sowie eine gut bespielbare und mit dem überhohen Wohnraum kommunizierende Galerie, können auf der oberen Ebene angeboten werden. Alle Wohnungen profitieren von einer maximalen Belichtung und schönen Ausblicken. Gegen Osten wird der Bezug zum alten Dorf von Crasta und der Blick auf die Kirche St. Maria stimmungsprägend. Gegen Westen sind die Wohnungen auf den kleinen Weiher im Garten des Hauses und die Berge bis zu den Trais Fluors ausgerichtet. Über die breiten Wohnzimmerfenster kann sowohl die Dorfszenerie mit Kirche als auch die umliegende Bergkulisse ideal eingefangen werden.
Die Grundgeometrie des kompakten Körpers ist typisch für das Engadin. Das Dach ist ortsüblich leicht schräg. Die Mauern sind mit Dämmbacksteinen massiv gebaut. Kleinere und tief in die Leibung eingeschriebene quadratische Öffnungen sind den Zimmern und Küchenräumen zugeschrieben und bespielen im Wesentlichen die Giebelfassaden. Sie kontrastieren mit den grossen liegenden Öffnungen der seitlich orientierten Wohnräume. Umlaufend ist das Haus mit Sgraffiti verziert. Ausdrucksstark wird so eine Interpretation der alten Fassadentechnik geschaffen, die dem Wohnhaus einen eigenen Charakter verleiht. Mit einem verglätteten hydraulischen Kalkputz und geringem Zementanteil kann der Deckputz zweilagig bis zu 6mm dick aufgetragen werden. Sgraffito als Al-fresco-Technik wird darüber eingearbeitet: Der angetrocknete, aber noch nassen Putz wird mit einem mehr oder weniger verdünnten Sumpfkalk (und gegebenenfalls mit Farbpigmenten) überstrichen. So werden weisse Flächen mit einem unterschiedlichen Deckungsgrad erzeugt. Kalk kann in alter Technik vor Ort gebrannt werden.
Mitarbeit Wettbewerb
Paul Frlicka, Emy Vicencio
Bauherrschaft
Gemeinde Celerina/ Schlarigna
Landschaftsarchitekt: Tschumi Landschaftsarchitektur
Ingenieur: Synaxis AG Zürich
Bauphysik: Durable GmbH
VIETTA STREDAS IN CELERINA (GR)
PROJEKTSTUDIE, 2024
Seit Mitte des 19. Jahrhunderts bildet die Vietta Stredas eine Verbindungslinie zwischen Crasta (als Abzweiger von der Kirche St. Maria herkommend) und dem hanggelegenen Ortsteil Celerina Seglias. Seit 1903, mit der Eröffnung der Bahnstation, erhielt die Strasse eine noch wichtigere Bedeutung für die Vernetzung von Crasta und Celerina und bildet bis heute und mit ihrem späteren Verlauf als Via Pradé die direkteste, vielgenutzte Fussverbindung von Crasta zum Bahnhof. Das neue Wohnhaus legt als kompaktes Gebäudevolumen an dieser alten Verbindung an, die historische Dorfstruktur wird weitergebaut und die Bedeutung der Querverbindung zwischen den Ortsteilen gestärkt. Diese Wiedererlangung an Struktur und Definiertheit ist wichtig, nach der Entwicklung der letzten Jahrzehnte mit vielen eher bezugslosen Ferienhäusern in Crasta. Traufständig folgt das Wohnhaus der Strasse und bildet ihren Giebel zur Nordseite an der Spinel Giat und gegen Süden hin aus. Gemeinsam mit der Chesa Caviezel wird der Dorfkörper so weiter definiert. Mittels feiner geometrischer Massnahmen, dem Abknicken des Neubaus zur Chesa Caviezel hin, kann die identitätsstiftende Ansicht auf den geschützten Baukörper erhalten werden und das grosse Volumen behutsam und unter mitschwingender Analogie gewachsener Engadiner Dorfstrukturen in den Kontext integriert werden.
Die Grundrisse werden mit der Effizienz alter Engadiner Häuser entwickelt. Über eine Eingangsloggia wird das neue Wohnhaus an der meistfrequentierten Ecke Vietta Stredas/ Spinel Giat erschlossen. Der gedeckte Hauszugang mit Bänkchen und der mittig angelegte „Sulèr“ bieten viel Raum für die Begegnungen der Bewohner. Jeweils vier Wohnungen werden aus dem zentralen Treppenraum pro Geschoss erschlossen. Mit der Typologie der kammerartigen Raum-zu-Raumerschliessung alter Engadiner Häuser wird der Grundriss disponiert: Gegen Osten und Westen profitieren die Wohnungen von breitflankend angelegten, einfach geschnittenen und optimal belichteten Wohnhallen. Hier findet auf knapp geschnittener Fläche das ganze Leben statt. Küchen- und Schlafräume sind im Wesentlichen als Kammern zu den Stirnseiten des Wohnhauses ausgerichtet. Familienwohnungen befinden sich hauptsächlich zum Gartenraum hin ausgerichtet. Zwei Familien-Maisonettewohnungenbereichern dabei das Angebot und werden aus dem 2. Obergeschoss unter das Dach entwickelt. Grosszügige Schlaf- und Badezimmer, Schrank und Reduiträume, sowie eine gut bespielbare und mit dem überhohen Wohnraum kommunizierende Galerie, können auf der oberen Ebene angeboten werden. Alle Wohnungen profitieren von einer maximalen Belichtung und schönen Ausblicken. Gegen Osten wird der Bezug zum alten Dorf von Crasta und der Blick auf die Kirche St. Maria stimmungsprägend. Gegen Westen sind die Wohnungen auf den kleinen Weiher im Garten des Hauses und die Berge bis zu den Trais Fluors ausgerichtet. Über die breiten Wohnzimmerfenster kann sowohl die Dorfszenerie mit Kirche als auch die umliegende Bergkulisse ideal eingefangen werden.
Die Grundgeometrie des kompakten Körpers ist typisch für das Engadin. Das Dach ist ortsüblich leicht schräg. Die Mauern sind mit Dämmbacksteinen massiv gebaut. Kleinere und tief in die Leibung eingeschriebene quadratische Öffnungen sind den Zimmern und Küchenräumen zugeschrieben und bespielen im Wesentlichen die Giebelfassaden. Sie kontrastieren mit den grossen liegenden Öffnungen der seitlich orientierten Wohnräume. Umlaufend ist das Haus mit Sgraffiti verziert. Ausdrucksstark wird so eine Interpretation der alten Fassadentechnik geschaffen, die dem Wohnhaus einen eigenen Charakter verleiht. Mit einem verglätteten hydraulischen Kalkputz und geringem Zementanteil kann der Deckputz zweilagig bis zu 6mm dick aufgetragen werden. Sgraffito als Al-fresco-Technik wird darüber eingearbeitet: Der angetrocknete, aber noch nassen Putz wird mit einem mehr oder weniger verdünnten Sumpfkalk (und gegebenenfalls mit Farbpigmenten) überstrichen. So werden weisse Flächen mit einem unterschiedlichen Deckungsgrad erzeugt. Kalk kann in alter Technik vor Ort gebrannt werden.
Mitarbeit Wettbewerb
Paul Frlicka, Emy Vicencio
Bauherrschaft
Gemeinde Celerina/ Schlarigna
Landschaftsarchitekt: Tschumi Landschaftsarchitektur
Ingenieur: Synaxis AG Zürich
Bauphysik: Durable GmbH
VIETTA STREDAS IN CELERINA (GR)
PROJEKTSTUDIE, 2024
Seit Mitte des 19. Jahrhunderts bildet die Vietta Stredas eine Verbindungslinie zwischen Crasta (als Abzweiger von der Kirche St. Maria herkommend) und dem hanggelegenen Ortsteil Celerina Seglias. Seit 1903, mit der Eröffnung der Bahnstation, erhielt die Strasse eine noch wichtigere Bedeutung für die Vernetzung von Crasta und Celerina und bildet bis heute und mit ihrem späteren Verlauf als Via Pradé die direkteste, vielgenutzte Fussverbindung von Crasta zum Bahnhof. Das neue Wohnhaus legt als kompaktes Gebäudevolumen an dieser alten Verbindung an, die historische Dorfstruktur wird weitergebaut und die Bedeutung der Querverbindung zwischen den Ortsteilen gestärkt. Diese Wiedererlangung an Struktur und Definiertheit ist wichtig, nach der Entwicklung der letzten Jahrzehnte mit vielen eher bezugslosen Ferienhäusern in Crasta. Traufständig folgt das Wohnhaus der Strasse und bildet ihren Giebel zur Nordseite an der Spinel Giat und gegen Süden hin aus. Gemeinsam mit der Chesa Caviezel wird der Dorfkörper so weiter definiert. Mittels feiner geometrischer Massnahmen, dem Abknicken des Neubaus zur Chesa Caviezel hin, kann die identitätsstiftende Ansicht auf den geschützten Baukörper erhalten werden und das grosse Volumen behutsam und unter mitschwingender Analogie gewachsener Engadiner Dorfstrukturen in den Kontext integriert werden.
Die Grundrisse werden mit der Effizienz alter Engadiner Häuser entwickelt. Über eine Eingangsloggia wird das neue Wohnhaus an der meistfrequentierten Ecke Vietta Stredas/ Spinel Giat erschlossen. Der gedeckte Hauszugang mit Bänkchen und der mittig angelegte „Sulèr“ bieten viel Raum für die Begegnungen der Bewohner. Jeweils vier Wohnungen werden aus dem zentralen Treppenraum pro Geschoss erschlossen. Mit der Typologie der kammerartigen Raum-zu-Raumerschliessung alter Engadiner Häuser wird der Grundriss disponiert: Gegen Osten und Westen profitieren die Wohnungen von breitflankend angelegten, einfach geschnittenen und optimal belichteten Wohnhallen. Hier findet auf knapp geschnittener Fläche das ganze Leben statt. Küchen- und Schlafräume sind im Wesentlichen als Kammern zu den Stirnseiten des Wohnhauses ausgerichtet. Familienwohnungen befinden sich hauptsächlich zum Gartenraum hin ausgerichtet. Zwei Familien-Maisonettewohnungenbereichern dabei das Angebot und werden aus dem 2. Obergeschoss unter das Dach entwickelt. Grosszügige Schlaf- und Badezimmer, Schrank und Reduiträume, sowie eine gut bespielbare und mit dem überhohen Wohnraum kommunizierende Galerie, können auf der oberen Ebene angeboten werden. Alle Wohnungen profitieren von einer maximalen Belichtung und schönen Ausblicken. Gegen Osten wird der Bezug zum alten Dorf von Crasta und der Blick auf die Kirche St. Maria stimmungsprägend. Gegen Westen sind die Wohnungen auf den kleinen Weiher im Garten des Hauses und die Berge bis zu den Trais Fluors ausgerichtet. Über die breiten Wohnzimmerfenster kann sowohl die Dorfszenerie mit Kirche als auch die umliegende Bergkulisse ideal eingefangen werden.
Die Grundgeometrie des kompakten Körpers ist typisch für das Engadin. Das Dach ist ortsüblich leicht schräg. Die Mauern sind mit Dämmbacksteinen massiv gebaut. Kleinere und tief in die Leibung eingeschriebene quadratische Öffnungen sind den Zimmern und Küchenräumen zugeschrieben und bespielen im Wesentlichen die Giebelfassaden. Sie kontrastieren mit den grossen liegenden Öffnungen der seitlich orientierten Wohnräume. Umlaufend ist das Haus mit Sgraffiti verziert. Ausdrucksstark wird so eine Interpretation der alten Fassadentechnik geschaffen, die dem Wohnhaus einen eigenen Charakter verleiht. Mit einem verglätteten hydraulischen Kalkputz und geringem Zementanteil kann der Deckputz zweilagig bis zu 6mm dick aufgetragen werden. Sgraffito als Al-fresco-Technik wird darüber eingearbeitet: Der angetrocknete, aber noch nassen Putz wird mit einem mehr oder weniger verdünnten Sumpfkalk (und gegebenenfalls mit Farbpigmenten) überstrichen. So werden weisse Flächen mit einem unterschiedlichen Deckungsgrad erzeugt. Kalk kann in alter Technik vor Ort gebrannt werden.
Mitarbeit Wettbewerb
Paul Frlicka, Emy Vicencio
Bauherrschaft
Gemeinde Celerina/ Schlarigna
Landschaftsarchitekt: Tschumi Landschaftsarchitektur
Ingenieur: Synaxis AG Zürich
Bauphysik: Durable GmbH
VIETTA STREDAS IN CELERINA (GR)
PROJEKTSTUDIE, 2024
Seit Mitte des 19. Jahrhunderts bildet die Vietta Stredas eine Verbindungslinie zwischen Crasta (als Abzweiger von der Kirche St. Maria herkommend) und dem hanggelegenen Ortsteil Celerina Seglias. Seit 1903, mit der Eröffnung der Bahnstation, erhielt die Strasse eine noch wichtigere Bedeutung für die Vernetzung von Crasta und Celerina und bildet bis heute und mit ihrem späteren Verlauf als Via Pradé die direkteste, vielgenutzte Fussverbindung von Crasta zum Bahnhof. Das neue Wohnhaus legt als kompaktes Gebäudevolumen an dieser alten Verbindung an, die historische Dorfstruktur wird weitergebaut und die Bedeutung der Querverbindung zwischen den Ortsteilen gestärkt. Diese Wiedererlangung an Struktur und Definiertheit ist wichtig, nach der Entwicklung der letzten Jahrzehnte mit vielen eher bezugslosen Ferienhäusern in Crasta. Traufständig folgt das Wohnhaus der Strasse und bildet ihren Giebel zur Nordseite an der Spinel Giat und gegen Süden hin aus. Gemeinsam mit der Chesa Caviezel wird der Dorfkörper so weiter definiert. Mittels feiner geometrischer Massnahmen, dem Abknicken des Neubaus zur Chesa Caviezel hin, kann die identitätsstiftende Ansicht auf den geschützten Baukörper erhalten werden und das grosse Volumen behutsam und unter mitschwingender Analogie gewachsener Engadiner Dorfstrukturen in den Kontext integriert werden.
Die Grundrisse werden mit der Effizienz alter Engadiner Häuser entwickelt. Über eine Eingangsloggia wird das neue Wohnhaus an der meistfrequentierten Ecke Vietta Stredas/ Spinel Giat erschlossen. Der gedeckte Hauszugang mit Bänkchen und der mittig angelegte „Sulèr“ bieten viel Raum für die Begegnungen der Bewohner. Jeweils vier Wohnungen werden aus dem zentralen Treppenraum pro Geschoss erschlossen. Mit der Typologie der kammerartigen Raum-zu-Raumerschliessung alter Engadiner Häuser wird der Grundriss disponiert: Gegen Osten und Westen profitieren die Wohnungen von breitflankend angelegten, einfach geschnittenen und optimal belichteten Wohnhallen. Hier findet auf knapp geschnittener Fläche das ganze Leben statt. Küchen- und Schlafräume sind im Wesentlichen als Kammern zu den Stirnseiten des Wohnhauses ausgerichtet. Familienwohnungen befinden sich hauptsächlich zum Gartenraum hin ausgerichtet. Zwei Familien-Maisonettewohnungenbereichern dabei das Angebot und werden aus dem 2. Obergeschoss unter das Dach entwickelt. Grosszügige Schlaf- und Badezimmer, Schrank und Reduiträume, sowie eine gut bespielbare und mit dem überhohen Wohnraum kommunizierende Galerie, können auf der oberen Ebene angeboten werden. Alle Wohnungen profitieren von einer maximalen Belichtung und schönen Ausblicken. Gegen Osten wird der Bezug zum alten Dorf von Crasta und der Blick auf die Kirche St. Maria stimmungsprägend. Gegen Westen sind die Wohnungen auf den kleinen Weiher im Garten des Hauses und die Berge bis zu den Trais Fluors ausgerichtet. Über die breiten Wohnzimmerfenster kann sowohl die Dorfszenerie mit Kirche als auch die umliegende Bergkulisse ideal eingefangen werden.
Die Grundgeometrie des kompakten Körpers ist typisch für das Engadin. Das Dach ist ortsüblich leicht schräg. Die Mauern sind mit Dämmbacksteinen massiv gebaut. Kleinere und tief in die Leibung eingeschriebene quadratische Öffnungen sind den Zimmern und Küchenräumen zugeschrieben und bespielen im Wesentlichen die Giebelfassaden. Sie kontrastieren mit den grossen liegenden Öffnungen der seitlich orientierten Wohnräume. Umlaufend ist das Haus mit Sgraffiti verziert. Ausdrucksstark wird so eine Interpretation der alten Fassadentechnik geschaffen, die dem Wohnhaus einen eigenen Charakter verleiht. Mit einem verglätteten hydraulischen Kalkputz und geringem Zementanteil kann der Deckputz zweilagig bis zu 6mm dick aufgetragen werden. Sgraffito als Al-fresco-Technik wird darüber eingearbeitet: Der angetrocknete, aber noch nassen Putz wird mit einem mehr oder weniger verdünnten Sumpfkalk (und gegebenenfalls mit Farbpigmenten) überstrichen. So werden weisse Flächen mit einem unterschiedlichen Deckungsgrad erzeugt. Kalk kann in alter Technik vor Ort gebrannt werden.
Mitarbeit Wettbewerb
Paul Frlicka, Emy Vicencio
Bauherrschaft
Gemeinde Celerina/ Schlarigna
Landschaftsarchitekt: Tschumi Landschaftsarchitektur
Ingenieur: Synaxis AG Zürich
Bauphysik: Durable GmbH
VIETTA STREDAS IN CELERINA (GR)
PROJEKTSTUDIE, 2024
Seit Mitte des 19. Jahrhunderts bildet die Vietta Stredas eine Verbindungslinie zwischen Crasta (als Abzweiger von der Kirche St. Maria herkommend) und dem hanggelegenen Ortsteil Celerina Seglias. Seit 1903, mit der Eröffnung der Bahnstation, erhielt die Strasse eine noch wichtigere Bedeutung für die Vernetzung von Crasta und Celerina und bildet bis heute und mit ihrem späteren Verlauf als Via Pradé die direkteste, vielgenutzte Fussverbindung von Crasta zum Bahnhof. Das neue Wohnhaus legt als kompaktes Gebäudevolumen an dieser alten Verbindung an, die historische Dorfstruktur wird weitergebaut und die Bedeutung der Querverbindung zwischen den Ortsteilen gestärkt. Diese Wiedererlangung an Struktur und Definiertheit ist wichtig, nach der Entwicklung der letzten Jahrzehnte mit vielen eher bezugslosen Ferienhäusern in Crasta. Traufständig folgt das Wohnhaus der Strasse und bildet ihren Giebel zur Nordseite an der Spinel Giat und gegen Süden hin aus. Gemeinsam mit der Chesa Caviezel wird der Dorfkörper so weiter definiert. Mittels feiner geometrischer Massnahmen, dem Abknicken des Neubaus zur Chesa Caviezel hin, kann die identitätsstiftende Ansicht auf den geschützten Baukörper erhalten werden und das grosse Volumen behutsam und unter mitschwingender Analogie gewachsener Engadiner Dorfstrukturen in den Kontext integriert werden.
Die Grundrisse werden mit der Effizienz alter Engadiner Häuser entwickelt. Über eine Eingangsloggia wird das neue Wohnhaus an der meistfrequentierten Ecke Vietta Stredas/ Spinel Giat erschlossen. Der gedeckte Hauszugang mit Bänkchen und der mittig angelegte „Sulèr“ bieten viel Raum für die Begegnungen der Bewohner. Jeweils vier Wohnungen werden aus dem zentralen Treppenraum pro Geschoss erschlossen. Mit der Typologie der kammerartigen Raum-zu-Raumerschliessung alter Engadiner Häuser wird der Grundriss disponiert: Gegen Osten und Westen profitieren die Wohnungen von breitflankend angelegten, einfach geschnittenen und optimal belichteten Wohnhallen. Hier findet auf knapp geschnittener Fläche das ganze Leben statt. Küchen- und Schlafräume sind im Wesentlichen als Kammern zu den Stirnseiten des Wohnhauses ausgerichtet. Familienwohnungen befinden sich hauptsächlich zum Gartenraum hin ausgerichtet. Zwei Familien-Maisonettewohnungenbereichern dabei das Angebot und werden aus dem 2. Obergeschoss unter das Dach entwickelt. Grosszügige Schlaf- und Badezimmer, Schrank und Reduiträume, sowie eine gut bespielbare und mit dem überhohen Wohnraum kommunizierende Galerie, können auf der oberen Ebene angeboten werden. Alle Wohnungen profitieren von einer maximalen Belichtung und schönen Ausblicken. Gegen Osten wird der Bezug zum alten Dorf von Crasta und der Blick auf die Kirche St. Maria stimmungsprägend. Gegen Westen sind die Wohnungen auf den kleinen Weiher im Garten des Hauses und die Berge bis zu den Trais Fluors ausgerichtet. Über die breiten Wohnzimmerfenster kann sowohl die Dorfszenerie mit Kirche als auch die umliegende Bergkulisse ideal eingefangen werden.
Die Grundgeometrie des kompakten Körpers ist typisch für das Engadin. Das Dach ist ortsüblich leicht schräg. Die Mauern sind mit Dämmbacksteinen massiv gebaut. Kleinere und tief in die Leibung eingeschriebene quadratische Öffnungen sind den Zimmern und Küchenräumen zugeschrieben und bespielen im Wesentlichen die Giebelfassaden. Sie kontrastieren mit den grossen liegenden Öffnungen der seitlich orientierten Wohnräume. Umlaufend ist das Haus mit Sgraffiti verziert. Ausdrucksstark wird so eine Interpretation der alten Fassadentechnik geschaffen, die dem Wohnhaus einen eigenen Charakter verleiht. Mit einem verglätteten hydraulischen Kalkputz und geringem Zementanteil kann der Deckputz zweilagig bis zu 6mm dick aufgetragen werden. Sgraffito als Al-fresco-Technik wird darüber eingearbeitet: Der angetrocknete, aber noch nassen Putz wird mit einem mehr oder weniger verdünnten Sumpfkalk (und gegebenenfalls mit Farbpigmenten) überstrichen. So werden weisse Flächen mit einem unterschiedlichen Deckungsgrad erzeugt. Kalk kann in alter Technik vor Ort gebrannt werden.
Mitarbeit Wettbewerb
Paul Frlicka, Emy Vicencio
Bauherrschaft
Gemeinde Celerina/ Schlarigna
Landschaftsarchitekt: Tschumi Landschaftsarchitektur
Ingenieur: Synaxis AG Zürich
Bauphysik: Durable GmbH
VIETTA STREDAS IN CELERINA (GR)
PROJEKTSTUDIE, 2024
Seit Mitte des 19. Jahrhunderts bildet die Vietta Stredas eine Verbindungslinie zwischen Crasta (als Abzweiger von der Kirche St. Maria herkommend) und dem hanggelegenen Ortsteil Celerina Seglias. Seit 1903, mit der Eröffnung der Bahnstation, erhielt die Strasse eine noch wichtigere Bedeutung für die Vernetzung von Crasta und Celerina und bildet bis heute und mit ihrem späteren Verlauf als Via Pradé die direkteste, vielgenutzte Fussverbindung von Crasta zum Bahnhof. Das neue Wohnhaus legt als kompaktes Gebäudevolumen an dieser alten Verbindung an, die historische Dorfstruktur wird weitergebaut und die Bedeutung der Querverbindung zwischen den Ortsteilen gestärkt. Diese Wiedererlangung an Struktur und Definiertheit ist wichtig, nach der Entwicklung der letzten Jahrzehnte mit vielen eher bezugslosen Ferienhäusern in Crasta. Traufständig folgt das Wohnhaus der Strasse und bildet ihren Giebel zur Nordseite an der Spinel Giat und gegen Süden hin aus. Gemeinsam mit der Chesa Caviezel wird der Dorfkörper so weiter definiert. Mittels feiner geometrischer Massnahmen, dem Abknicken des Neubaus zur Chesa Caviezel hin, kann die identitätsstiftende Ansicht auf den geschützten Baukörper erhalten werden und das grosse Volumen behutsam und unter mitschwingender Analogie gewachsener Engadiner Dorfstrukturen in den Kontext integriert werden.
Die Grundrisse werden mit der Effizienz alter Engadiner Häuser entwickelt. Über eine Eingangsloggia wird das neue Wohnhaus an der meistfrequentierten Ecke Vietta Stredas/ Spinel Giat erschlossen. Der gedeckte Hauszugang mit Bänkchen und der mittig angelegte „Sulèr“ bieten viel Raum für die Begegnungen der Bewohner. Jeweils vier Wohnungen werden aus dem zentralen Treppenraum pro Geschoss erschlossen. Mit der Typologie der kammerartigen Raum-zu-Raumerschliessung alter Engadiner Häuser wird der Grundriss disponiert: Gegen Osten und Westen profitieren die Wohnungen von breitflankend angelegten, einfach geschnittenen und optimal belichteten Wohnhallen. Hier findet auf knapp geschnittener Fläche das ganze Leben statt. Küchen- und Schlafräume sind im Wesentlichen als Kammern zu den Stirnseiten des Wohnhauses ausgerichtet. Familienwohnungen befinden sich hauptsächlich zum Gartenraum hin ausgerichtet. Zwei Familien-Maisonettewohnungenbereichern dabei das Angebot und werden aus dem 2. Obergeschoss unter das Dach entwickelt. Grosszügige Schlaf- und Badezimmer, Schrank und Reduiträume, sowie eine gut bespielbare und mit dem überhohen Wohnraum kommunizierende Galerie, können auf der oberen Ebene angeboten werden. Alle Wohnungen profitieren von einer maximalen Belichtung und schönen Ausblicken. Gegen Osten wird der Bezug zum alten Dorf von Crasta und der Blick auf die Kirche St. Maria stimmungsprägend. Gegen Westen sind die Wohnungen auf den kleinen Weiher im Garten des Hauses und die Berge bis zu den Trais Fluors ausgerichtet. Über die breiten Wohnzimmerfenster kann sowohl die Dorfszenerie mit Kirche als auch die umliegende Bergkulisse ideal eingefangen werden.
Die Grundgeometrie des kompakten Körpers ist typisch für das Engadin. Das Dach ist ortsüblich leicht schräg. Die Mauern sind mit Dämmbacksteinen massiv gebaut. Kleinere und tief in die Leibung eingeschriebene quadratische Öffnungen sind den Zimmern und Küchenräumen zugeschrieben und bespielen im Wesentlichen die Giebelfassaden. Sie kontrastieren mit den grossen liegenden Öffnungen der seitlich orientierten Wohnräume. Umlaufend ist das Haus mit Sgraffiti verziert. Ausdrucksstark wird so eine Interpretation der alten Fassadentechnik geschaffen, die dem Wohnhaus einen eigenen Charakter verleiht. Mit einem verglätteten hydraulischen Kalkputz und geringem Zementanteil kann der Deckputz zweilagig bis zu 6mm dick aufgetragen werden. Sgraffito als Al-fresco-Technik wird darüber eingearbeitet: Der angetrocknete, aber noch nassen Putz wird mit einem mehr oder weniger verdünnten Sumpfkalk (und gegebenenfalls mit Farbpigmenten) überstrichen. So werden weisse Flächen mit einem unterschiedlichen Deckungsgrad erzeugt. Kalk kann in alter Technik vor Ort gebrannt werden.
Mitarbeit Wettbewerb
Paul Frlicka, Emy Vicencio
Bauherrschaft
Gemeinde Celerina/ Schlarigna
Landschaftsarchitekt: Tschumi Landschaftsarchitektur
Ingenieur: Synaxis AG Zürich
Bauphysik: Durable GmbH
WOHNEN, ERGÄNZUNG GEHÖFT
PROJEKTWETTBEWERB, 2019, 2. RANG
Erarbeitet mit Demuth Hagenmüller & Lamprecht Architekten
WOHNEN, ERGÄNZUNG GEHÖFT
PROJEKTWETTBEWERB, 2019, 2. RANG
Erarbeitet mit Demuth Hagenmüller & Lamprecht Architekten
WOHNEN, ERGÄNZUNG GEHÖFT
PROJEKTWETTBEWERB, 2019, 2. RANG
Erarbeitet mit Demuth Hagenmüller & Lamprecht Architekten
WOHNEN, ERGÄNZUNG GEHÖFT
PROJEKTWETTBEWERB, 2019, 2. RANG
Erarbeitet mit Demuth Hagenmüller & Lamprecht Architekten
WOHNEN, ERGÄNZUNG GEHÖFT
PROJEKTWETTBEWERB, 2019, 2. RANG
Erarbeitet mit Demuth Hagenmüller & Lamprecht Architekten
WOHNEN UND GEWERBE
PROJEKTWETTBEWERB, 2020, 2. RANG
Erarbeitet mit Demuth Hagenmüller & Lamprecht Architekten
WOHNEN UND GEWERBE
PROJEKTWETTBEWERB, 2020, 2. RANG
Erarbeitet mit Demuth Hagenmüller & Lamprecht Architekten
WOHNEN UND GEWERBE
PROJEKTWETTBEWERB, 2020, 2. RANG
Erarbeitet mit Demuth Hagenmüller & Lamprecht Architekten
WOHNEN UND GEWERBE
PROJEKTWETTBEWERB, 2020, 2. RANG
Erarbeitet mit Demuth Hagenmüller & Lamprecht Architekten
WOHNEN UND GEWERBE
PROJEKTWETTBEWERB, 2020, 2. RANG
Erarbeitet mit Demuth Hagenmüller & Lamprecht Architekten
Regensdorf, 2012-2015, Gestaltungsplan Rechtskraft 2014
PROJEKTWETTBEWERB, 2012, 1. Preis
Auf dem Areal eines Maisfeldes nahe dem Zentrum von Regensdorf soll ein neues Quartier mit 340 Wohnungen sowie kleinen Gewerbeeinrichtungen entstehen. Das Areal liegt eingespannt zwischen dem Ortskern und grossmassstäblichen Anlagen: Ein Shoppingcenter im Süden und ein Gefängnis im Osten. Es wurde eine Bebauungsstruktur gesucht, welche die Vorzüge von städtischen Räumen mit jenen des Landes vereint.Der Bebauungsvorschlag – inspiriert von europäischen Vorbildern der Gartenstadt – stellt eine Identität stiftende Grossform dar, welche die Räume sensibel hierarchisiert und dabei öffentlichere und intimere Räume schafft.Generierendes Element des neuen Quartiers ist ein zentraler Platz, der von einer doppelwandigen Gebäudekruste umschlossen wird. Er weist zwei diagonal versetzte Hauptzugänge auf, welche die Strassenkreuzung im Südosten mit der dörflich belebten Watterstrasse im Nordwesten verbinden. Zu den stark befahrenen Strassen im Süden und Osten zeigt sich die Kruste als kompakter Riegel, der das Geviert vom Strassenlärm abschirmt. Entlang der Flanke zum kleinkörnigeren Zentrum fächert sich die Kruste in einzelne, villenartige Gebäudekörper auf, die durch einen neu angelegten Ringweg erschlossen werden. In der Kruste selbst sind ruhige Gartenhöfe angelegt.An der nordöstlichen Ecke des Gevierts zieht sich die Kruste zurück und erlaubt so eine Erweiterung des bestehenden Parks, womit gleichzeitig die Wohnlage zum lauten Ostring hin entschärft wird. An der südöstlichen Strassenkreuzung wirkt ein vorgelagerter städtischer Platz als Verbindungsglied zwischen dem neuen Quartier und den weiteren Wohnquartieren Regensdorfs.
–
Erarbeitet mit Demuth Hagenmüller & Lamprecht Architekten
Mitarbeit Wettbewerb
Jutta Romberg, Lilian Demuth, Sandra Hagenmüller, Andreas Lamprecht,
Mitarbeit Planung und Ausführung
Ioanna Thalassinou, Besa Zajmi, Tanja Hustinx, Nicola Busolini, Aikaterini Chelioudaki, Lilian Demuth, Sandra Hagenmüller, Andreas Lamprecht
Bauherrschaft
BVK Pensionskasse Kanton Zürich
Baumangagement:
b+p baurealisation ag
Landschaftsarchitekt: Mettler Landschaftsarchitektur
Raumplanung: Suter – von Känel – Wild AG
HLKS-Planer: Neukom Engineering AG
Elektroplaner: IBG Engineering AG
Bauphysik: Raumanzug
Regensdorf, 2012-2015, Gestaltungsplan Rechtskraft 2014
PROJEKTWETTBEWERB, 2012, 1. Preis
Auf dem Areal eines Maisfeldes nahe dem Zentrum von Regensdorf soll ein neues Quartier mit 340 Wohnungen sowie kleinen Gewerbeeinrichtungen entstehen. Das Areal liegt eingespannt zwischen dem Ortskern und grossmassstäblichen Anlagen: Ein Shoppingcenter im Süden und ein Gefängnis im Osten. Es wurde eine Bebauungsstruktur gesucht, welche die Vorzüge von städtischen Räumen mit jenen des Landes vereint.Der Bebauungsvorschlag – inspiriert von europäischen Vorbildern der Gartenstadt – stellt eine Identität stiftende Grossform dar, welche die Räume sensibel hierarchisiert und dabei öffentlichere und intimere Räume schafft.Generierendes Element des neuen Quartiers ist ein zentraler Platz, der von einer doppelwandigen Gebäudekruste umschlossen wird. Er weist zwei diagonal versetzte Hauptzugänge auf, welche die Strassenkreuzung im Südosten mit der dörflich belebten Watterstrasse im Nordwesten verbinden. Zu den stark befahrenen Strassen im Süden und Osten zeigt sich die Kruste als kompakter Riegel, der das Geviert vom Strassenlärm abschirmt. Entlang der Flanke zum kleinkörnigeren Zentrum fächert sich die Kruste in einzelne, villenartige Gebäudekörper auf, die durch einen neu angelegten Ringweg erschlossen werden. In der Kruste selbst sind ruhige Gartenhöfe angelegt.An der nordöstlichen Ecke des Gevierts zieht sich die Kruste zurück und erlaubt so eine Erweiterung des bestehenden Parks, womit gleichzeitig die Wohnlage zum lauten Ostring hin entschärft wird. An der südöstlichen Strassenkreuzung wirkt ein vorgelagerter städtischer Platz als Verbindungsglied zwischen dem neuen Quartier und den weiteren Wohnquartieren Regensdorfs.
–
Erarbeitet mit Demuth Hagenmüller & Lamprecht Architekten
Mitarbeit Wettbewerb
Jutta Romberg, Lilian Demuth, Sandra Hagenmüller, Andreas Lamprecht,
Mitarbeit Planung und Ausführung
Ioanna Thalassinou, Besa Zajmi, Tanja Hustinx, Nicola Busolini, Aikaterini Chelioudaki, Lilian Demuth, Sandra Hagenmüller, Andreas Lamprecht
Bauherrschaft
BVK Pensionskasse Kanton Zürich
Baumangagement:
b+p baurealisation ag
Landschaftsarchitekt: Mettler Landschaftsarchitektur
Raumplanung: Suter – von Känel – Wild AG
HLKS-Planer: Neukom Engineering AG
Elektroplaner: IBG Engineering AG
Bauphysik: Raumanzug
BÜRO- UND GEWERBEHAUS RÖSSLIMATT
LUZERN, 2022-2025
EINGELADENER PROJEKTWETTBEWERB, 2020, 1. Preis
Als Auftakt für das Quartier Rösslimatt fasst der neue Stadtbaustein die Baufelder B und C zu einem einzigen, differenzierten und vielschichtigen Gebäude zusammen. Gleichermassen robust und einladend im Sockelbereich wird der öffentliche Anspruch des Gebäudes markiert. Die darüber liegenden Bürogeschosse werden von einem Kleid aus Metall und Glas umhüllt und stellen den Austausch einer modernen Arbeitswelt zwischen innen und aussen her. An ausgezeichneten städtebaulichen Stellen zieht sich die Bürofassade zurück und schafft begrünte, klimatische Pufferzonen. Wie Köpfe und Taillen helfen sie, das Gebäude zu zonieren, ihm einen Massstab zu geben und im Quartier zu verankern. Während die durchgängigen Balkone an den Stirnseiten Blicke zur Allee und in den Park freigeben, leiten die Einzüge die Fussgänger durch die zweigeschossige Passage.
Drei in der Mittelzone gesetzte Treppenkerne strukturieren das Gebäude sowohl statisch als auch räumlich. Als betonierte Kerne verbinden sie sich mit dem Untergeschoss und bilden das Rückgrat des Gebäudes. Das eingeführte Stützenraster gewährleistet eine maximale Nutzungsflexibilität. Die Schnittstelle der beiden Gebäudeteile über dem Durchgang ist als flexible Schaltzone ausgebildet, die je nach gewünschter Nutzung dem einen oder dem anderen Gebäudeteil zugeschlagen werden kann. Eine gemeinsame Tiefgarage im ersten Untergeschoss erschliesst alle Treppenkerne, während im zweiten Untergeschoss mit kleinerem Fussabdruck alle Technikräume untergebracht sind.
Adresse: Der Gebäudeteil C ist auf die geplante Nutzung des Grossmieters ausgelegt. Ein ausladendes Vordach und ein Rückzug der Fassade markieren den Haupteingang des Single Tenants an der Bürgenstrasse. Von aussen ist der grosszügige Wartebereich für Besucher einsehbar. Ein repräsentativer Empfangs-Desk und Zutrittssysteme vermitteln zwischen internem und externem Bereich.
Atrium: Das Herzstück des Gebäudes C bildet das dahinter liegende Atrium, das hell und grosszügig ausgestaltet ist und über eine spiralartige Treppe alle Geschosse repräsentativ miteinander verbindet. Es liegt zentral im Gebäudeteil C, eingespannt zwischen den beiden Kerne, die mit Liften und Fluchttreppen ausgestattet sind. Diese sind jedoch so ausgebildet, dass sie zum Atrium hin grossflächig verglast sind, wodurch kurze Distanzen über die Geschosse hinweg einfach überwunden werden können. Als verbindende, repräsentative Vertikalerschliessung stellt das Atrium die visuelle und räumliche Verbindung über die Geschosse hinweg sicher und ermöglicht den Mitarbeitenden kurze Wege und eine gute Orientierung. Mit Steharbeitsplätzen und Lounge-Bereichen ausgestattet bietet sie zudem die Möglichkeit für den Informellen Austausch der Mitarbeitenden.
Plaza: Das erste Obergeschoss ist als öffentliche Plaza ausgebildet. Hier befinden sich Personalrestaurant mit Free-Flow, Work-Café, Konferenz- und Meetingräume sowie verschieden Amenities. Die Plaza ist für die Mitarbeitenden gut auffindbar und als Ort der Begegnung und des Austauschs ausgebildet. Externe Gäste gelangen über den Empfang und die Spiraltreppe direkt in den Konferenzbereich. Dieser ist so ausgestaltet, dass die mittig platzierten Konferenzräume flexibel zu grösseren Einheiten zusammen gefasst werden können. Sie können jedoch auch komplett zur Seite geschoben werden, wodurch sich das Work-Café in eine grosse Town-Hall für Meetings mit 200 Personen umwandeln lässt.
Bürokonzept: Bei der Entwicklung des Bürokonzepts wurde grossen Wert auf nutzungsspezifische Flexibilität sowie auf eine optimale Belichtung gelegt. Das Atrium belichtet die Mitte des Gebäudes, so dass Arbeitsplätze auch in der Nähe des Atriums angelegt werden können. Ein Fassadenraster von 2.70 Metern, kurze Erschiessungswege und eine einfache Leitungsführung ermöglichen es, die Büroflächen flexibel als Open Space oder als Einzelbüros zu nutzen.
Das Bürolayout des Grossmieters basiert auf dem Konzept des „Activity Based Working“ und dem Leitgedanken „Your Office Is Where You Are“. Der gesamte Gebäudeteil des Hauptmieters ist so konzipiert, dass überall – im Atrium, auf den Balkonen, im Café, in der Bürolandschaft oder auf dem Dach des Attikageschosses – gearbeitet werden kann und soll. Die Mitarbeiter sucht sich dabei die für ihre Tätigkeit die gerade am besten geeignete Arbeitsumgebung aus; feste Arbeitsplätze gibt es nicht. Akustisch abgetrennte und mit einem Vorhang abtrennbare „Working Pills“ zonieren die Bürolandschaft in einzelne Neighbourhoods unterschiedlicher Grösse. Sie stehen für Telefongespräche, konzentrierte Einzelarbeit oder Meetings zur Verfügung und können individuell gebucht werden. Der Standort der „Working Pills“ innerhalb der Bürolandschaft ist flexibel. Er kann je nach gewünschter Grösse der Neighbourhood variiert werden.
Erdgeschossnutzung Öffentliche Erdgeschossnutzungen sind ein wichtiger Faktor für die Attraktivität des neuen Areals Rösslimatt. Der Platzierung der Gastro-, Atelier- und Gewerbeflächen wird deshalb grösste Beachtung geschenkt. Die Gebäudeköpfe entlang der Allee, entlang des neuen Parkbandes sowie die Flächen direkt beim Durchgang wurden dabei als Orte mit dem höchsten zu erwartenden Publikumsverkehr ausgelotet. Das grösste Potenzial für solche Flächen liegt schwergewichtig beim Erdgeschoss entlang der Güterstrasse. Um die Attraktivität dieses Standorts zu stärken sind hier Gastro-, Atelier- und Gewerbeflächen vorgesehen, die sich über interne Treppen ins 1. Obergeschoss erweitern lassen.
–
Erarbeitet mit Demuth Hagenmüller & Lamprecht Architekten
Zusammenarbeit mit Alessandra Villa Architektur
Mitarbeit Wettbewerb
Lilian Demuth, Sandra Hagenmüller, Andreas Lamprecht, Alessandra Villa
Mitarbeit Planung und Ausführung
Bernard Resewski, Andreas Lober, Federico Farinatti, Paula Seeling, Manuel Oswald, Maria Milic Sticca, Jan Pelcik, Sandra Hagenmüller, Andreas Lamprecht
Bauherrschaft
SBB Immobilien AG
Baumanagagement
Caretta + Weidmann AG
Totalunternehmer
Implenia Schweiz AG
Landschaftsarchitekt: w+s Landschaftsarchitekten AG
Ingenieur: Walt Galmarini AG
HLKS-Planer: ADZ AG
Elektroplaner: Boess AG
Bauphysik: Durable GmbH
Fassade: Mebatech AG
Lichtplanung: Reflexion AG
Brandschutz: Makiol Wiederkehr AG